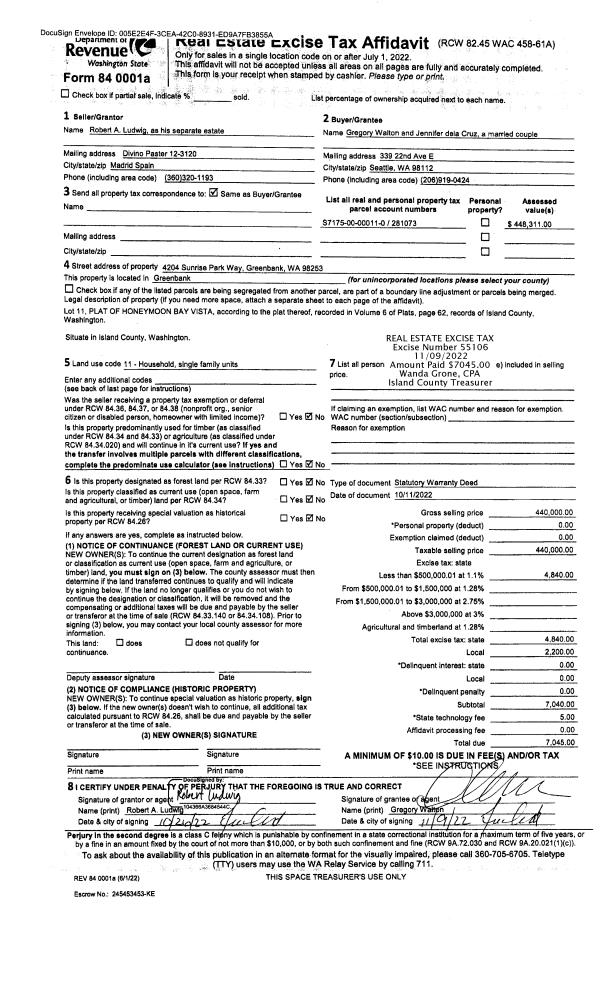
Property
Account |
| Property ID: | 612607 | Abbreviated Legal Description: | LOT 3 SP 86-12.33005.374-2180 & .386-1420 V2 SP P86-7 AF#86015701 |
| Geographic ID: | R33005-380-1600 | Agent Code: | |
| Type: | Real | | |
| Tax Area: | 542 - APPRAISER-Stan/Cam Schl Dist, Special Dist, improved, greater than 1 acre | Land Use Code | 11 |
| Open Space: | N | DFL | N |
| Historic Property: | N | Remodel Property: | N |
| Multi-Family Redevelopment: | N | | |
| Township: | 30 | Section: | 05 |
| Range: | R3 |
Location |
| Address: | 552 COUGAR LN CAMANO ISLAND, WA 98282 | Mapsco: | |
| Neighborhood: | Cycle 5 | Map ID: | 856 |
| Neighborhood CD: | 5 |
Owner |
| Name: | MCMACKIN TTEE, MICHAEL G | Owner ID: | 290288 |
| Mailing Address: | LORALEE MCMACKIN, TTEE 552 COUGAR LN CAMANO ISLAND, WA 98282-7038 | % Ownership: | 100.0000000000% |
| | | Exemptions: | |
Taxes and Assessment Details
Values
| (+) Improvement Homesite Value: | + | $0 | |
| (+) Improvement Non-Homesite Value: | + | $540,941 | |
| (+) Land Homesite Value: | + | $0 | |
| (+) Land Non-Homesite Value: | + | $550,850 | |
| (+) Curr Use (HS): | + | $0 | $0 |
| (+) Curr Use (NHS): | + | $0 | $0 |
| | | -------------------------- | |
| (=) Market Value: | = | $1,091,791 | |
| (–) Productivity Loss: | – | $0 | |
| | | -------------------------- | |
| (=) Subtotal: | = | $1,091,791 | |
| (+) Senior Appraised Value: | + | $0 | |
| (+) Non-Senior Appraised Value: | + | $1,091,791 | |
| | | -------------------------- | |
| (=) Total Appraised Value: | = | $1,091,791 | |
| (–) Senior Exemption Loss: | – | $0 | |
| (–) Exemption Loss: | – | $0 | |
| | | -------------------------- | |
| (=) Taxable Value: | = | $1,091,791 | |
Taxing Jurisdiction
| Owner: | MCMACKIN TTEE, MICHAEL G | | |
| % Ownership: | 100.0000000000% | | |
| Total Value: | $1,091,791 | | |
| Tax Area: | 542 - APPRAISER-Stan/Cam Schl Dist, Special Dist, improved, greater than 1 acre |
| CF | Conservation Futures | 0.0316035091 | $1,091,791 | $1,091,791 | $34.50 | | |
| EMS1 | Fire & Rescue Dist #1 Camano GEN (EMS) | 0.3677864386 | $1,091,791 | $1,091,791 | $401.55 | | |
| FIRE1 | Fire & Rescue Dist #1 Camano GEN | 1.2502910536 | $1,091,791 | $1,091,791 | $1,365.06 | | |
| FIRE1BOND | Fire & Rescue Dist #1 Camano BOND | 0.1570001679 | $1,091,791 | $1,091,791 | $171.41 | | |
| CE | County Current Expense | 0.3708482477 | $1,091,791 | $1,091,791 | $404.89 | | |
| CR | County Roads | 0.4584763726 | $1,091,791 | $1,091,791 | $500.56 | | |
| LCIB | Library Sno-Isle BOND (Camano Island) | 0.0396325772 | $1,091,791 | $1,091,791 | $43.27 | | |
| LIB | Library Sno-Isle GEN | 0.3153421757 | $1,091,791 | $1,091,791 | $344.29 | | |
| SCH205_401 | School 205-401 Enrichment | 1.2698420524 | $1,091,791 | $1,091,791 | $1,386.40 | | |
| SCH205BOND | School 205-401 BOND | 0.9396497583 | $1,091,791 | $1,091,791 | $1,025.90 | | |
| ST | State School | 1.3035497053 | $1,091,791 | $1,091,791 | $1,423.20 | | |
| ST2 | State School Part 2 | 0.8169543533 | $1,091,791 | $1,091,791 | $891.94 | | |
| | Total Tax Rate: | 7.3209764117 | | | | | |
| | | | | Taxes w/Current Exemptions: | $7,992.97 | | |
| | | | | Taxes w/o Exemptions: | $7,992.97 | | |
Improvement / Building
| Improvement #1: | RESIDENTIAL | State Code: | Y | 2580.4 sqft | Value: | $540,941 |
| Bathrooms: | 2.5 | Bedrooms: | 3 | | Ceiling: | DRYWALL PAINTED | Exterior Wall/Cover: | WOOD SIDING | | Floor Covering: | HARDWOOD/CARP 20-80 | Floor Structure: | WOOD W/SUBFLOOR | | Foundation: | CONCRETE | Heating: | FHA GAS | | Interior Finish: | DRYWALL PAINT | Plumbing Fixture Cnt: | 11 | | Roof Slope: | 6" IN 12" | Roof Structure/Cover: | CJ ASPHALT |
|
| | Type | Description | Class CD | Sub Class CD | Year Built | Area |
| | BAS | BASE/MAIN FLOOR | 4 | 0 | 1993 | 1827.0 |
| | DGR | DETACHED GARAGE | 4 | 0 | 1993 | 900.0 |
| | AGR | ATTACHED GARAGE | 4 | 0 | 1993 | 493.0 |
| | UPS | UPPER STORY | 4 | 0 | 1993 | 753.4 |
| | OWP | OPEN WOOD PORCH W/STEPS | 4 | 0 | 1993 | 26.6 |
| | OWP | OPEN WOOD PORCH W/STEPS | 4 | 0 | 1993 | 717.5 |
| | OWC | OPEN WOOD PORCH W/STEPS/ROOF/C | 4 | 0 | 1993 | 53.1 |
| | OWP | OPEN WOOD PORCH W/STEPS | 4 | 0 | 1993 | 70.0 |
Sketch
Property Image
Land
| 1 | HB | HIGH BLUFF | 1.8000 | 78408.00 | 85.00 | 0.00 | 1.00 | $550,000 | $0 |
| 2 | 55 | TIDES | 0.0000 | 0.00 | 85.00 | 0.00 | 1.00 | $850 | $0 |
Roll Value History
| 2026 | N/A | N/A | N/A | N/A | N/A |
| 2025 | $540,941 | $550,850 | $0 | $1,091,791 | $1,091,791 |
| 2024 | $547,440 | $550,850 | $0 | $1,098,290 | $1,098,290 |
| 2023 | $553,937 | $550,850 | $0 | $1,104,787 | $1,104,787 |
| 2022 | $507,469 | $500,850 | $0 | $1,008,319 | $1,008,319 |
| 2021 | $406,849 | $385,850 | $0 | $792,699 | $792,699 |
| 2020 | $397,045 | $385,850 | $0 | $782,895 | $782,895 |
| 2019 | $258,402 | $400,850 | $0 | $659,252 | $659,252 |
| 2018 | $259,195 | $350,000 | $0 | $609,195 | $609,195 |
| 2017 | $260,618 | $300,850 | $0 | $561,468 | $561,468 |
| 2016 | $263,797 | $300,850 | $0 | $564,647 | $564,647 |
| 2015 | $238,912 | $250,850 | $0 | $489,762 | $489,762 |
| 2014 | $242,015 | $250,850 | $0 | $492,865 | $492,865 |
| 2013 | $245,775 | $254,400 | $0 | $500,175 | $500,175 |
| 2012 | $248,886 | $254,400 | $0 | $503,286 | $503,286 |
| 2011 | $251,998 | $317,787 | $0 | $569,785 | $569,785 |
| 2010 | $261,185 | $317,787 | $0 | $578,972 | $578,972 |
| 2009 | $274,764 | $386,168 | $0 | $660,932 | $660,932 |
| 2008 | $278,159 | $386,168 | $0 | $664,327 | $664,327 |
| 2007 | $281,580 | $385,573 | $0 | $667,153 | $667,153 |
Deed and Sales History
| 1 | 06/13/2019 | WD | Warranty Deed | GIDLOF, WAYNE A / MACQUALIN M | MCMACKIN TTEE, MICHAEL G | | | $880,000.00 | 39002 | 4465540 |
| 2 | 08/01/1993 | WD | Warranty Deed | STONEMAN, JON D | GIDLOF, WAYNE A | | | $169,950.00 | 33062 | 93015803 |
| 3 | 03/01/1991 | WD | Warranty Deed | HILL, ROBERT A | STONEMAN, JON D | | | $90,000.00 | 10982 | 91004252 |
| 4 | 12/01/1986 | REC | Real Estate Contract | STONEMAN, JON D | HILL, ROBERT A | | | $63,750.00 | 63758 | 86016723 |
| 5 | 11/01/1986 | OTHER | Other - Misc. Documents | Unknown | STONEMAN, JON D | | | $0.00 | 61943 | 86014743 |
Payout Agreement
| No payout information available.. |