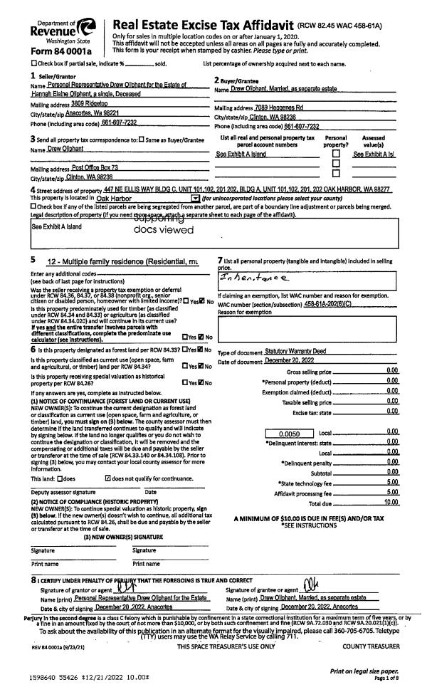
Property
Account |
| Property ID: | 612625 | Abbreviated Legal Description: | LOT A SP 84-83.32904.375-0540 V2 SP P89 AF#86016000 |
| Geographic ID: | R32904-399-0530 | Agent Code: | |
| Type: | Real | | |
| Tax Area: | 712 - APPRAISER-S Whid Schl Dist, outside Langley, improved, greater than 1 acre | Land Use Code | 11 |
| Open Space: | N | DFL | N |
| Historic Property: | N | Remodel Property: | N |
| Multi-Family Redevelopment: | N | | |
| Township: | 29 | Section: | 04 |
| Range: | R3 |
Location |
| Address: | 4925 CRAWFORD RD LANGLEY, WA 98260 | Mapsco: | |
| Neighborhood: | Cycle 4 | Map ID: | 730 |
| Neighborhood CD: | 4 |
Owner |
| Name: | MCCOY, DAVID J | Owner ID: | 305034 |
| Mailing Address: | LINDSEY A MCCOY 4925 CRAWFORD RD LANGLEY, WA 98260 | % Ownership: | 100.0000000000% |
| | | Exemptions: | |
Taxes and Assessment Details
Values
| (+) Improvement Homesite Value: | + | $0 | |
| (+) Improvement Non-Homesite Value: | + | $556,337 | |
| (+) Land Homesite Value: | + | $0 | |
| (+) Land Non-Homesite Value: | + | $310,000 | |
| (+) Curr Use (HS): | + | $0 | $0 |
| (+) Curr Use (NHS): | + | $0 | $0 |
| | | -------------------------- | |
| (=) Market Value: | = | $866,337 | |
| (–) Productivity Loss: | – | $0 | |
| | | -------------------------- | |
| (=) Subtotal: | = | $866,337 | |
| (+) Senior Appraised Value: | + | $0 | |
| (+) Non-Senior Appraised Value: | + | $866,337 | |
| | | -------------------------- | |
| (=) Total Appraised Value: | = | $866,337 | |
| (–) Senior Exemption Loss: | – | $0 | |
| (–) Exemption Loss: | – | $0 | |
| | | -------------------------- | |
| (=) Taxable Value: | = | $866,337 | |
Taxing Jurisdiction
| Owner: | MCCOY, DAVID J | | |
| % Ownership: | 100.0000000000% | | |
| Total Value: | $866,337 | | |
| Tax Area: | 712 - APPRAISER-S Whid Schl Dist, outside Langley, improved, greater than 1 acre |
| CF | Conservation Futures | 0.0316035091 | $866,337 | $866,337 | $27.38 | | |
| FIRE3 | Fire & Rescue Dist #3 S Whidbey GEN | 1.2004855531 | $866,337 | $866,337 | $1,040.03 | | |
| HOBOND | Hospital BOND | 0.1910887512 | $866,337 | $866,337 | $165.55 | | |
| HOGEN | Hospital GEN | 0.3902502903 | $866,337 | $866,337 | $338.09 | | |
| CE | County Current Expense | 0.3708482477 | $866,337 | $866,337 | $321.28 | | |
| CR | County Roads | 0.4584763726 | $866,337 | $866,337 | $397.20 | | |
| ISLANDEMS | Hospital GEN (EMS) | 0.5000000000 | $866,337 | $866,337 | $433.17 | | |
| LIB | Library Sno-Isle GEN | 0.3153421757 | $866,337 | $866,337 | $273.19 | | |
| PORTWHID | Port of S Whidbey GEN | 0.1094540357 | $866,337 | $866,337 | $94.82 | | |
| SCH206BOND | School 206 BOND | 0.3161759235 | $866,337 | $866,337 | $273.91 | | |
| SCH206MO | School 206 Enrichment | 0.4547169547 | $866,337 | $866,337 | $393.94 | | |
| ST | State School | 1.3035497053 | $866,337 | $866,337 | $1,129.31 | | |
| ST2 | State School Part 2 | 0.8169543533 | $866,337 | $866,337 | $707.76 | | |
| SWHIDPRBD | P & R S Whidbey BOND | 0.0152817568 | $866,337 | $866,337 | $13.24 | | |
| SWHIDPRBD2 | P & R S Whidbey BOND2 | 0.0138911264 | $866,337 | $866,337 | $12.03 | | |
| SWHIDPRMT | P & R S Whidbey GEN | 0.2053334452 | $866,337 | $866,337 | $177.89 | | |
| | Total Tax Rate: | 6.6934522006 | | | | | |
| | | | | Taxes w/Current Exemptions: | $5,798.79 | | |
| | | | | Taxes w/o Exemptions: | $5,798.79 | | |
Improvement / Building
| Improvement #1: | RESIDENTIAL | State Code: | Y | 2949.8 sqft | Value: | $556,337 |
| Bathrooms: | 3.5 | Bedrooms: | 3 | | Ceiling: | DRYWALL PAINTED | Cooling: | HEAT PUMP/CONV/V | | Exterior Wall/Cover: | CEMENT FIBER | Floor Covering: | VINYL/HARDWOOD 60-40 | | Floor Structure: | WOOD W/SUBFLOOR | Foundation: | CONCRETE | | Interior Finish: | DRYWALL PAINT | Plumbing Fixture Cnt: | 15 | | Roof Slope: | 8" IN 12" | Roof Structure/Cover: | CJ ASPHALT |
|
| | Type | Description | Class CD | Sub Class CD | Year Built | Area |
| | BAS | BASE/MAIN FLOOR | 4 | 0 | 2006 | 1577.5 |
| | BIG | BUILT IN GARAGE | 4 | 0 | 2006 | 672.0 |
| | UPS | UPPER STORY | 4 | 0 | 2006 | 1372.3 |
| | OWP | OPEN WOOD PORCH W/STEPS | 4 | 0 | 2006 | 248.5 |
| | ATU | ATTIC UNFINISHED | 4 | 0 | 2006 | 448.0 |
| | OWP | OPEN WOOD PORCH W/STEPS | 4 | 0 | 2006 | 78.0 |
| | OWP | OPEN WOOD PORCH W/STEPS | 4 | 0 | 2006 | 63.8 |
| | OWC | OPEN WOOD PORCH W/STEPS/ROOF/C | 4 | 0 | 2006 | 140.0 |
Sketch
Property Image
Land
| 1 | 32 | AC (03.01-09.99) | 3.2600 | 0.00 | 0.00 | 0.00 | 1.00 | $310,000 | $0 |
Roll Value History
| 2026 | N/A | N/A | N/A | N/A | N/A |
| 2025 | $556,337 | $310,000 | $0 | $866,337 | $866,337 |
| 2024 | $562,711 | $300,000 | $0 | $862,711 | $862,711 |
| 2023 | $569,087 | $290,000 | $0 | $859,087 | $859,087 |
| 2022 | $519,650 | $270,000 | $0 | $789,650 | $789,650 |
| 2021 | $455,886 | $165,000 | $0 | $620,886 | $620,886 |
| 2020 | $426,989 | $165,000 | $0 | $591,989 | $591,989 |
| 2019 | $333,227 | $200,000 | $0 | $533,227 | $533,227 |
| 2018 | $334,160 | $170,000 | $0 | $504,160 | $504,160 |
| 2017 | $335,956 | $150,000 | $0 | $485,956 | $485,956 |
| 2016 | $339,688 | $95,000 | $0 | $434,688 | $434,688 |
| 2015 | $343,421 | $95,000 | $0 | $438,421 | $438,421 |
| 2014 | $338,313 | $88,020 | $0 | $426,333 | $426,333 |
| 2013 | $342,029 | $88,020 | $0 | $430,049 | $430,049 |
| 2012 | $345,749 | $88,020 | $0 | $433,769 | $433,769 |
| 2011 | $349,467 | $88,020 | $0 | $437,487 | $437,487 |
| 2010 | $357,495 | $88,020 | $0 | $445,515 | $445,515 |
| 2009 | $372,319 | $143,440 | $0 | $515,759 | $515,759 |
| 2008 | $395,249 | $193,879 | $0 | $589,128 | $589,128 |
| 2007 | $395,400 | $193,879 | $0 | $589,279 | $589,279 |
Deed and Sales History
| 1 | 06/30/2022 | WD | Warranty Deed | COLELLA, JOSEPH R | MCCOY, DAVID J | | | $920,000.00 | 53794 | 4548243 |
| 2 | 03/14/2016 | QCD | Quit Claim Deed | COLELLA, JOSEPH R | COLELLA, JOSEPH R | | | $20,788.00 | 23589 | 4396141 |
| 3 | 08/27/2012 | WD | Warranty Deed | RICHARDSON, PETER J E | COLELLA, JOSEPH R | | | $450,000.00 | 8742 | 4322376 |
| 4 | 05/04/2004 | WD | Warranty Deed | CARLIN, BARBARA K | RICHARDSON, PETER J E | | | $82,000.00 | 42157 | 4101410 |
| 5 | 09/20/2002 | DECREE | Divorce Decree/Legal Separation | CARLIN, BARBARA K | CARLIN, BARBARA K | | | $0.00 | 23800 | 4032180 |
| 6 | 10/13/1998 | ESTSEPPROP | Establish Separate Property | CARLIN, MARK A | CARLIN, BARBARA K | | | $0.00 | 84247 | 98023104 |
| 7 | 10/12/1998 | EZ | Easement | COOKE, CHARLES E | CARLIN, MARK A | | | $0.00 | 84259 | 98023204 |
| 8 | 06/05/1998 | OTHER | Other - Misc. Documents | CARLIN, BARBARA K | COOKE, CHARLES E | | | $0.00 | 67873 | 0 |
| 9 | 10/13/1998 | WD | Warranty Deed | COOKE, CHARLES E | CARLIN, BARBARA K | | | $46,500.00 | 84246 | 98023103 |
| 10 | 04/01/1998 | OTHER | Other - Misc. Documents | COOKE, CHARLES E | COOKE, CHARLES E | | | $0.00 | 67873 | 0 |
| 11 | 02/01/1992 | QCD | Quit Claim Deed | COOKE, CHARLES E | COOKE, CHARLES E | | | $0.00 | 21332 | 92006453 |
| 12 | 01/01/1900 | OTHER | Other - Misc. Documents | Unknown | COOKE, CHARLES E | | | $0.00 | 0 | 0 |
Payout Agreement
| No payout information available.. |