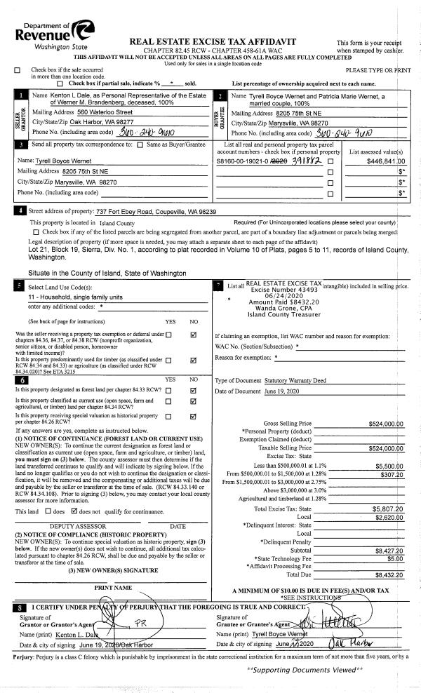
Property
Account |
| Property ID: | 61275 | Abbreviated Legal Description: | 6 - GL 3 TGW ADJ TIDES EX THAT PART PLATTED |
| Geographic ID: | R23014-193-2270 | Agent Code: | |
| Type: | Real | | |
| Tax Area: | 712 - APPRAISER-S Whid Schl Dist, outside Langley, improved, greater than 1 acre | Land Use Code | 11 |
| Open Space: | N | DFL | N |
| Historic Property: | N | Remodel Property: | N |
| Multi-Family Redevelopment: | N | | |
| Township: | 30 | Section: | 14 |
| Range: | R2 |
Location |
| Address: | | Mapsco: | |
| Neighborhood: | Cycle 3 | Map ID: | 378 |
| Neighborhood CD: | 3 |
Owner |
| Name: | SARATOGA BEACH OWNERS ASSOCIATION | Owner ID: | 15055 |
| Mailing Address: | PO BOX 158 FREELAND, WA 98249 | % Ownership: | 100.0000000000% |
| | | Exemptions: | EX |
Taxes and Assessment Details
Values
| (+) Improvement Homesite Value: | + | $0 | |
| (+) Improvement Non-Homesite Value: | + | $15,000 | |
| (+) Land Homesite Value: | + | $0 | |
| (+) Land Non-Homesite Value: | + | $1,513,320 | |
| (+) Curr Use (HS): | + | $0 | $0 |
| (+) Curr Use (NHS): | + | $0 | $0 |
| | | -------------------------- | |
| (=) Market Value: | = | $1,528,320 | |
| (–) Productivity Loss: | – | $0 | |
| | | -------------------------- | |
| (=) Subtotal: | = | $1,528,320 | |
| (+) Senior Appraised Value: | + | $0 | |
| (+) Non-Senior Appraised Value: | + | $1,528,320 | |
| | | -------------------------- | |
| (=) Total Appraised Value: | = | $1,528,320 | |
| (–) Senior Exemption Loss: | – | $0 | |
| (–) Exemption Loss: | – | $1,528,320 | |
| | | -------------------------- | |
| (=) Taxable Value: | = | $0 | |
Taxing Jurisdiction
| Owner: | SARATOGA BEACH OWNERS ASSOCIATION | | |
| % Ownership: | 100.0000000000% | | |
| Total Value: | $1,528,320 | | |
| Tax Area: | 712 - APPRAISER-S Whid Schl Dist, outside Langley, improved, greater than 1 acre |
| CF | Conservation Futures | 0.0316035091 | $1,528,320 | $0 | $0.00 | | |
| FIRE3 | Fire & Rescue Dist #3 S Whidbey GEN | 1.2004855531 | $1,528,320 | $0 | $0.00 | | |
| HOBOND | Hospital BOND | 0.1910887512 | $1,528,320 | $0 | $0.00 | | |
| HOGEN | Hospital GEN | 0.3902502903 | $1,528,320 | $0 | $0.00 | | |
| CE | County Current Expense | 0.3708482477 | $1,528,320 | $0 | $0.00 | | |
| CR | County Roads | 0.4584763726 | $1,528,320 | $0 | $0.00 | | |
| ISLANDEMS | Hospital GEN (EMS) | 0.5000000000 | $1,528,320 | $0 | $0.00 | | |
| LIB | Library Sno-Isle GEN | 0.3153421757 | $1,528,320 | $0 | $0.00 | | |
| PORTWHID | Port of S Whidbey GEN | 0.1094540357 | $1,528,320 | $0 | $0.00 | | |
| SCH206BOND | School 206 BOND | 0.3161759235 | $1,528,320 | $0 | $0.00 | | |
| SCH206MO | School 206 Enrichment | 0.4547169547 | $1,528,320 | $0 | $0.00 | | |
| ST | State School | 1.3035497053 | $1,528,320 | $0 | $0.00 | | |
| ST2 | State School Part 2 | 0.8169543533 | $1,528,320 | $0 | $0.00 | | |
| SWHIDPRBD | P & R S Whidbey BOND | 0.0152817568 | $1,528,320 | $0 | $0.00 | | |
| SWHIDPRBD2 | P & R S Whidbey BOND2 | 0.0138911264 | $1,528,320 | $0 | $0.00 | | |
| SWHIDPRMT | P & R S Whidbey GEN | 0.2053334452 | $1,528,320 | $0 | $0.00 | | |
| | Total Tax Rate: | 6.6934522006 | | | | | |
| | | | | Taxes w/Current Exemptions: | $0.00 | | |
| | | | | Taxes w/o Exemptions: | $10,229.74 | | |
Improvement / Building
| Improvement #1: | RESIDENTIAL | State Code: | Y | 0.0 sqft | Value: | $15,000 |
Sketch
| No sketches available for this property. |
Property Image
Land
| 1 | LB | LOW BANK | 0.0000 | 0.00 | 1330.00 | 0.00 | 1.00 | $1,500,000 | $0 |
| 2 | 55 | TIDES | 0.0000 | 0.00 | 1480.00 | 0.00 | 1.00 | $13,320 | $0 |
Roll Value History
| 2026 | N/A | N/A | N/A | N/A | N/A |
| 2025 | $15,000 | $1,513,320 | $0 | $1,528,320 | $0 |
| 2024 | $15,000 | $1,513,320 | $0 | $1,528,320 | $0 |
| 2023 | $15,000 | $1,513,320 | $0 | $1,528,320 | $0 |
| 2022 | $15,000 | $1,513,320 | $0 | $1,528,320 | $0 |
| 2021 | $15,000 | $1,513,320 | $0 | $1,528,320 | $0 |
| 2020 | $15,000 | $1,513,320 | $0 | $1,528,320 | $0 |
| 2019 | $15,000 | $1,513,320 | $0 | $1,528,320 | $0 |
| 2018 | $15,000 | $1,513,320 | $0 | $1,528,320 | $0 |
| 2017 | $15,000 | $1,513,320 | $0 | $1,528,320 | $0 |
| 2016 | $15,000 | $1,513,320 | $0 | $1,528,320 | $0 |
| 2015 | $15,000 | $1,513,320 | $0 | $1,528,320 | $0 |
| 2014 | $15,000 | $1,513,320 | $0 | $1,528,320 | $0 |
| 2013 | $13,716 | $1,331,550 | $0 | $1,345,266 | $0 |
| 2012 | $13,716 | $1,331,550 | $0 | $1,345,266 | $0 |
| 2011 | $13,716 | $1,331,550 | $0 | $1,345,266 | $0 |
| 2010 | $13,716 | $1,479,502 | $0 | $1,493,218 | $0 |
| 2009 | $13,939 | $1,612,649 | $0 | $1,626,588 | $0 |
| 2008 | $14,162 | $1,748,468 | $0 | $1,762,630 | $0 |
| 2007 | $14,385 | $1,738,108 | $0 | $1,752,493 | $0 |
Deed and Sales History
| 1 | 08/05/1980 | QCD | Quit Claim Deed | SARATOGA BEACH COUNTY CLUB, | SARATOGA BEACH OWNERS ASSOCIAT | | | $0.00 | 24295 | 4035470 |
| 2 | 01/01/1900 | OTHER | Other - Misc. Documents | Unknown | SARATOGA BEACH COUNTY CLUB, | | | $0.00 | 0 | 0 |
Payout Agreement
| No payout information available.. |