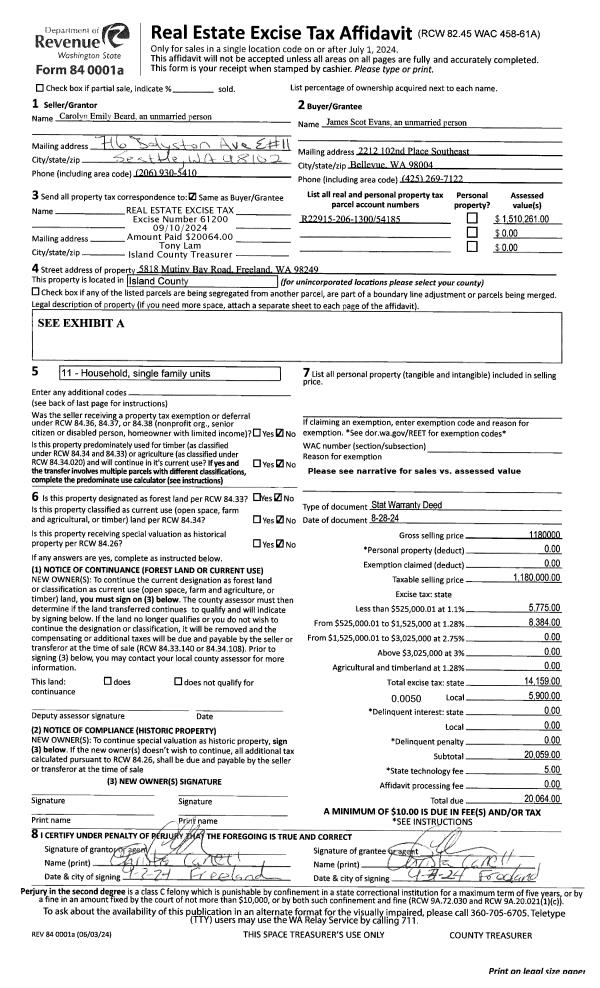
Property
Account |
| Property ID: | 612849 | Abbreviated Legal Description: | HIGHLANDS WEST #3 LOT 62 |
| Geographic ID: | S7132-03-00062-0 | Agent Code: | |
| Type: | Real | | |
| Tax Area: | 100 - APPRAISER-OH Schl Dist, in OH | Land Use Code | 11 |
| Open Space: | N | DFL | N |
| Historic Property: | N | Remodel Property: | N |
| Multi-Family Redevelopment: | N | | |
| Township: | | Section: | |
| Range: | |
Location |
| Address: | 1725 SW ROBERTSON DR OAK HARBOR, WA 98277 | Mapsco: | |
| Neighborhood: | Cycle 1 | Map ID: | 92 |
| Neighborhood CD: | 1 |
Owner |
| Name: | RHOADS, MARY ANN | Owner ID: | 301641 |
| Mailing Address: | 1725 SW ROBERTSON DR OAK HARBOR, WA 98277 | % Ownership: | 100.0000000000% |
| | | Exemptions: | |
Taxes and Assessment Details
Values
| (+) Improvement Homesite Value: | + | $0 | |
| (+) Improvement Non-Homesite Value: | + | $279,282 | |
| (+) Land Homesite Value: | + | $0 | |
| (+) Land Non-Homesite Value: | + | $210,000 | |
| (+) Curr Use (HS): | + | $0 | $0 |
| (+) Curr Use (NHS): | + | $0 | $0 |
| | | -------------------------- | |
| (=) Market Value: | = | $489,282 | |
| (–) Productivity Loss: | – | $0 | |
| | | -------------------------- | |
| (=) Subtotal: | = | $489,282 | |
| (+) Senior Appraised Value: | + | $0 | |
| (+) Non-Senior Appraised Value: | + | $489,282 | |
| | | -------------------------- | |
| (=) Total Appraised Value: | = | $489,282 | |
| (–) Senior Exemption Loss: | – | $0 | |
| (–) Exemption Loss: | – | $0 | |
| | | -------------------------- | |
| (=) Taxable Value: | = | $489,282 | |
Taxing Jurisdiction
| Owner: | RHOADS, MARY ANN | | |
| % Ownership: | 100.0000000000% | | |
| Total Value: | $489,282 | | |
| Tax Area: | 100 - APPRAISER-OH Schl Dist, in OH |
| CF | Conservation Futures | 0.0316035091 | $489,282 | $489,282 | $15.46 | | |
| CEM1 | Cemetery #1 | 0.0040320932 | $489,282 | $489,282 | $1.97 | | |
| COH | City of Oak Harbor | 2.3001546061 | $489,282 | $489,282 | $1,125.42 | | |
| OAKBOND | City of Oak Harbor BOND | 0.1926904192 | $489,282 | $489,282 | $94.28 | | |
| HOBOND | Hospital BOND | 0.1910887512 | $489,282 | $489,282 | $93.50 | | |
| HOGEN | Hospital GEN | 0.3902502903 | $489,282 | $489,282 | $190.94 | | |
| CE | County Current Expense | 0.3708482477 | $489,282 | $489,282 | $181.45 | | |
| ISLANDEMS | Hospital GEN (EMS) | 0.5000000000 | $489,282 | $489,282 | $244.64 | | |
| LIB | Library Sno-Isle GEN | 0.3153421757 | $489,282 | $489,282 | $154.29 | | |
| NWHIDPRMT | P & R N Whidbey GEN | 0.2004466701 | $489,282 | $489,282 | $98.07 | | |
| SCH201MO | School 201 Enrichment | 1.8559231640 | $489,282 | $489,282 | $908.07 | | |
| ST | State School | 1.3035497053 | $489,282 | $489,282 | $637.80 | | |
| ST2 | State School Part 2 | 0.8169543533 | $489,282 | $489,282 | $399.72 | | |
| | Total Tax Rate: | 8.4728839852 | | | | | |
| | | | | Taxes w/Current Exemptions: | $4,145.61 | | |
| | | | | Taxes w/o Exemptions: | $4,145.61 | | |
Improvement / Building
| Improvement #1: | RESIDENTIAL | State Code: | Y | 1957.3 sqft | Value: | $279,282 |
| Bathrooms: | 2.5 | Bedrooms: | 4 | | Ceiling: | DRYWALL PAINTED | Exterior Wall/Cover: | WOOD SIDING | | Floor Covering: | CARPET/VINYL 60-40 | Floor Structure: | WOOD W/SUBFLOOR | | Foundation: | CONCRETE | Heating: | FHA GAS | | Interior Finish: | DRYWALL PAINT | Plumbing Fixture Cnt: | 11 | | Roof Slope: | 4" IN 12" | Roof Structure/Cover: | CJ WOOD SHAKES |
|
| | Type | Description | Class CD | Sub Class CD | Year Built | Area |
| | BAS | BASE/MAIN FLOOR | 3 | 0 | 1987 | 1227.3 |
| | AGR | ATTACHED GARAGE | 3 | 0 | 1987 | 480.0 |
| | UPS | UPPER STORY | 3 | 0 | 1987 | 730.0 |
| | OWP | OPEN WOOD PORCH W/STEPS | 3 | 0 | 1987 | 508.7 |
Sketch
Property Image
Land
| 1 | 14 | SQ (08001-12000) | 0.0000 | 0.00 | 0.00 | 0.00 | 1.00 | $210,000 | $0 |
Roll Value History
| 2026 | N/A | N/A | N/A | N/A | N/A |
| 2025 | $279,282 | $210,000 | $0 | $489,282 | $489,282 |
| 2024 | $283,201 | $190,000 | $0 | $473,201 | $473,201 |
| 2023 | $287,123 | $190,000 | $0 | $477,123 | $477,123 |
| 2022 | $263,546 | $180,000 | $0 | $443,546 | $443,546 |
| 2021 | $218,539 | $120,000 | $0 | $338,539 | $338,539 |
| 2020 | $213,502 | $100,000 | $0 | $313,502 | $313,502 |
| 2019 | $161,830 | $150,000 | $0 | $311,830 | $311,830 |
| 2018 | $162,381 | $130,000 | $0 | $292,381 | $292,381 |
| 2017 | $165,310 | $110,000 | $0 | $275,310 | $275,310 |
| 2016 | $167,605 | $90,000 | $0 | $257,605 | $257,605 |
| 2015 | $169,902 | $70,000 | $0 | $239,902 | $239,902 |
| 2014 | $172,198 | $55,000 | $0 | $227,198 | $227,198 |
| 2013 | $174,493 | $55,000 | $0 | $229,493 | $229,493 |
| 2012 | $176,790 | $68,000 | $0 | $244,790 | $244,790 |
| 2011 | $173,035 | $68,000 | $0 | $241,035 | $241,035 |
| 2010 | $182,653 | $68,000 | $0 | $250,653 | $250,653 |
| 2009 | $190,650 | $75,000 | $0 | $265,650 | $265,650 |
| 2008 | $193,094 | $100,000 | $0 | $293,094 | $293,094 |
| 2007 | $195,538 | $100,000 | $0 | $295,538 | $295,538 |
Deed and Sales History
| 1 | 10/19/2021 | WD | Warranty Deed | OAKES, CURTIS E | RHOADS, MARY ANN | | | $444,000.00 | 50547 | 4531759 |
| 2 | 06/25/2007 | WD | Warranty Deed | KEUHHAS, TIMOTHY C | OAKES, CURTIS E | | | $310,000.00 | 72192 | 4205879 |
| 3 | 05/18/2000 | WD | Warranty Deed | HORADAN, SCOTT D/LAURA M | KEUHHAS, TIMOTHY C | | | $185,500.00 | 1836 | 20008917 |
| 4 | 05/01/1994 | WD | Warranty Deed | DUBOIS, RICHARD W | HORADAN, SCOTT D | | | $161,000.00 | 41948 | 94011386 |
| 5 | 10/01/1988 | WD | Warranty Deed | KNORR, EDWARD G | DUBOIS, RICHARD W | | | $105,500.00 | 83628 | 88013573 |
| 6 | 03/01/1987 | WD | Warranty Deed | KINGMA, R H | KNORR, EDWARD G | | | $22,000.00 | 70822 | 87004352 |
| 7 | 01/01/1900 | OTHER | Other - Misc. Documents | Unknown | KINGMA, R H | | | $0.00 | 0 | 0 |
| 8 | 01/01/1900 | OTHER | Other - Misc. Documents | HORADAN, SCOTT D | HORADAN, SCOTT D/LAURA M | | | $0.00 | 0 | 0 |
Payout Agreement
| No payout information available.. |