Property
Account |
| Property ID: | 612885 | Abbreviated Legal Description: | WATERSIDE CONDOS APT 16 1.94% INT |
| Geographic ID: | S8381-00-00016-0 | Agent Code: | |
| Type: | Real | | |
| Tax Area: | 100 - APPRAISER-OH Schl Dist, in OH | Land Use Code | 14 |
| Open Space: | N | DFL | N |
| Historic Property: | N | Remodel Property: | N |
| Multi-Family Redevelopment: | N | | |
| Township: | | Section: | |
| Range: | |
Location |
| Address: | 651 SE BAYSHORE DR UNIT A101 OAK HARBOR, WA 98277 | Mapsco: | |
| Neighborhood: | 12*OH-waterside | Map ID: | 86 |
| Neighborhood CD: | 12*OHwtrsd |
Owner |
| Name: | CRUZ, MEGAN | Owner ID: | 305970 |
| Mailing Address: | 651 SE BAYSHORE DR UNIT A101 OAK HARBOR, WA 98277 | % Ownership: | 100.0000000000% |
| | | Exemptions: | |
Taxes and Assessment Details
Values
| (+) Improvement Homesite Value: | + | $0 | |
| (+) Improvement Non-Homesite Value: | + | $292,469 | |
| (+) Land Homesite Value: | + | $0 | |
| (+) Land Non-Homesite Value: | + | $70,000 | |
| (+) Curr Use (HS): | + | $0 | $0 |
| (+) Curr Use (NHS): | + | $0 | $0 |
| | | -------------------------- | |
| (=) Market Value: | = | $362,469 | |
| (–) Productivity Loss: | – | $0 | |
| | | -------------------------- | |
| (=) Subtotal: | = | $362,469 | |
| (+) Senior Appraised Value: | + | $0 | |
| (+) Non-Senior Appraised Value: | + | $362,469 | |
| | | -------------------------- | |
| (=) Total Appraised Value: | = | $362,469 | |
| (–) Senior Exemption Loss: | – | $0 | |
| (–) Exemption Loss: | – | $0 | |
| | | -------------------------- | |
| (=) Taxable Value: | = | $362,469 | |
Taxing Jurisdiction
| Owner: | CRUZ, MEGAN | | |
| % Ownership: | 100.0000000000% | | |
| Total Value: | $362,469 | | |
| Tax Area: | 100 - APPRAISER-OH Schl Dist, in OH |
| CF | Conservation Futures | 0.0316035091 | $362,469 | $362,469 | $11.46 | | |
| CEM1 | Cemetery #1 | 0.0040320932 | $362,469 | $362,469 | $1.46 | | |
| COH | City of Oak Harbor | 2.3001546061 | $362,469 | $362,469 | $833.73 | | |
| OAKBOND | City of Oak Harbor BOND | 0.1926904192 | $362,469 | $362,469 | $69.84 | | |
| HOBOND | Hospital BOND | 0.1910887512 | $362,469 | $362,469 | $69.26 | | |
| HOGEN | Hospital GEN | 0.3902502903 | $362,469 | $362,469 | $141.45 | | |
| CE | County Current Expense | 0.3708482477 | $362,469 | $362,469 | $134.42 | | |
| ISLANDEMS | Hospital GEN (EMS) | 0.5000000000 | $362,469 | $362,469 | $181.23 | | |
| LIB | Library Sno-Isle GEN | 0.3153421757 | $362,469 | $362,469 | $114.30 | | |
| NWHIDPRMT | P & R N Whidbey GEN | 0.2004466701 | $362,469 | $362,469 | $72.66 | | |
| SCH201MO | School 201 Enrichment | 1.8559231640 | $362,469 | $362,469 | $672.71 | | |
| ST | State School | 1.3035497053 | $362,469 | $362,469 | $472.50 | | |
| ST2 | State School Part 2 | 0.8169543533 | $362,469 | $362,469 | $296.12 | | |
| | Total Tax Rate: | 8.4728839852 | | | | | |
| | | | | Taxes w/Current Exemptions: | $3,071.14 | | |
| | | | | Taxes w/o Exemptions: | $3,071.14 | | |
Improvement / Building
| Improvement #1: | RESIDENTIAL | State Code: | Y | 1553.0 sqft | Value: | $292,469 |
| Bathrooms: | 1.75 | Bedrooms: | 3 | | Ceiling: | DRYWALL PAINTED | Exterior Wall/Cover: | WOOD SIDING | | Floor Covering: | CARPET/VINYL 80-20 | Floor Structure: | WOOD W/SUBFLOOR | | Foundation: | CONCRETE | Heating: | FHA GAS | | Interior Finish: | DRYWALL PAINT | Plumbing Fixture Cnt: | 9 | | Roof Slope: | 5" IN 12" | Roof Structure/Cover: | CJ ASPHALT |
|
| | Type | Description | Class CD | Sub Class CD | Year Built | Area |
| | BAS | BASE/MAIN FLOOR | 3 | 0 | 1987 | 1553.0 |
| | OP1 | OPEN PORCH SLAB | 3 | 0 | 1987 | 112.8 |
| | oELV | ELEVATOR | 3 | 0 | 1987 | 0.0 |
| | oPV1 | PV/ASPH 2" | 3 | 0 | 1987 | 0.0 |
| | OWC | OPEN WOOD PORCH W/STEPS/ROOF/C | 3 | 0 | 1987 | 0.0 |
| | OWP | OPEN WOOD PORCH W/STEPS | 3 | 0 | 1987 | 0.0 |
| | OP1 | OPEN PORCH SLAB | 3 | 0 | 1987 | 68.0 |
| | BIG | BUILT IN GARAGE | 3 | 0 | 1987 | 0.0 |
Sketch
Property Image
Land
| 1 | 61 | MULTIPLE RESIDENCES | 0.0000 | 1364.00 | 0.00 | 0.00 | 1.00 | $70,000 | $0 |
Roll Value History
| 2026 | N/A | N/A | N/A | N/A | N/A |
| 2025 | $292,469 | $70,000 | $0 | $362,469 | $362,469 |
| 2024 | $295,777 | $70,000 | $0 | $365,777 | $365,777 |
| 2023 | $287,983 | $70,000 | $0 | $357,983 | $357,983 |
| 2022 | $265,587 | $80,000 | $0 | $345,587 | $345,587 |
| 2021 | $236,052 | $45,000 | $0 | $281,052 | $281,052 |
| 2020 | $230,543 | $30,000 | $0 | $260,543 | $260,543 |
| 2019 | $173,431 | $65,000 | $0 | $238,431 | $238,431 |
| 2018 | $173,882 | $65,000 | $0 | $238,882 | $238,882 |
| 2017 | $157,798 | $18,182 | $0 | $175,980 | $175,980 |
| 2016 | $159,920 | $18,182 | $0 | $178,102 | $178,102 |
| 2015 | $162,042 | $18,182 | $0 | $180,224 | $180,224 |
| 2014 | $164,164 | $18,182 | $0 | $182,346 | $182,346 |
| 2013 | $135,380 | $18,182 | $0 | $153,562 | $153,562 |
| 2012 | $135,380 | $18,182 | $0 | $153,562 | $153,562 |
| 2011 | $135,380 | $18,182 | $0 | $153,562 | $153,562 |
| 2010 | $107,789 | $18,182 | $0 | $125,971 | $125,971 |
| 2009 | $144,621 | $32,395 | $0 | $177,016 | $177,016 |
| 2008 | $142,940 | $48,204 | $0 | $191,144 | $191,144 |
| 2007 | $144,621 | $48,204 | $0 | $192,825 | $192,825 |
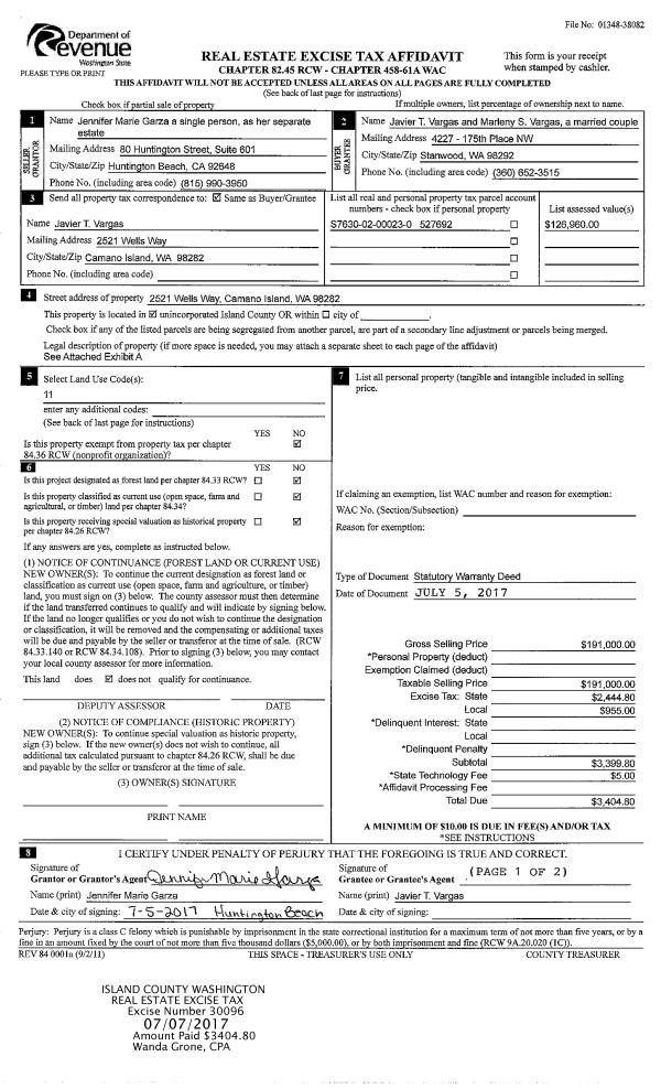
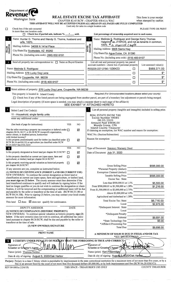
Deed and Sales History
| 1 | 09/08/2022 | WD | Warranty Deed | MCMAINS, ERIKA LYN | CRUZ, MEGAN | | | $330,000.00 | 54513 | 4551114 |
| 2 | 01/29/2020 | WD | Warranty Deed | DUGGAN, JUDY | MCMAINS, ERIKA LYN | | | $255,000.00 | 41955 | 4480409 |
| 3 | 07/13/2017 | WD | Warranty Deed | BOUGHNER, STEVEN W | DUGGAN, JUDY | | | $190,000.00 | 30164 | 4426127 |
| 4 | 04/15/2013 | PRD | Personal Representatives Deed | BOUGHNER, MARY JANE | BOUGHNER, STEVEN W | | | $0.00 | 11114 | 4338682 |
| 5 | 02/03/2003 | WD | Warranty Deed | PIRNER, JEAN G | BOUGHNER, MARY JANE | | | $160,000.00 | 30507 | 4047213 |
| 6 | 11/03/2000 | WD | Warranty Deed | WHITESEL, LESLIE E | PIRNER, JEAN G | | | $145,000.00 | 4312 | 20019749 |
| 7 | 07/01/1994 | WD | Warranty Deed | GRUND, WILLIAM A | WHITESEL, LESLIE E | | | $135,500.00 | 42950 | 94016084 |
| 8 | 10/01/1986 | WD | Warranty Deed | PROMINENT, PROPERTIES | GRUND, WILLIAM A | | | $87,500.00 | 63056 | 86013808 |
| 9 | 01/01/1900 | OTHER | Other - Misc. Documents | Unknown | PROMINENT, PROPERTIES | | | $0.00 | 50876 | 85003643 |
Payout Agreement
| No payout information available.. |