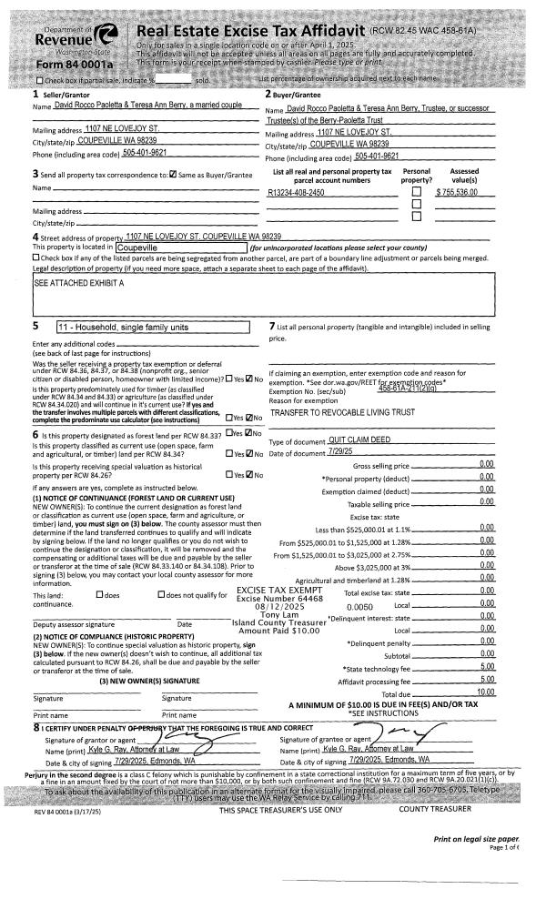
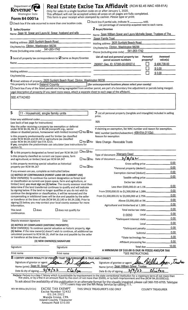
Property
Account |
| Property ID: | 613134 | Abbreviated Legal Description: | IN GL2 & PT VAC BLK 3 & VAC SEAVIEW DR AF#311845 DESC: BG NECR SEC 35 CM S300' N89*W500' S62*W915' TO ELN BEACH DR NWLY ALG CUR/R NELY TO ELN SEAVIEW DR NWLY TO NLN SEC 35 ELY TPB EX CO RD TGW & SUB EZ AF#91004129 FR 458-4610 TGW CONSERVATION EZ AF#433039 |
| Geographic ID: | R23135-509-4530 | Agent Code: | |
| Type: | Real | | |
| Tax Area: | 549 - APPRAISER-Stan/Cam Schl Dist, Special Dist, vacant & 50 acres or less | Land Use Code | 91 |
| Open Space: | N | DFL | N |
| Historic Property: | N | Remodel Property: | N |
| Multi-Family Redevelopment: | N | | |
| Township: | 31 | Section: | 35 |
| Range: | R2 |
Location |
| Address: | | Mapsco: | |
| Neighborhood: | Cycle 5 | Map ID: | 532 |
| Neighborhood CD: | 5 |
Owner |
| Name: | OLGA AND OLIO LLC | Owner ID: | 315318 |
| Mailing Address: | 7644 NE 8TH ST MEDINA, WA 98039 | % Ownership: | 100.0000000000% |
| | | Exemptions: | |
Taxes and Assessment Details
Values
| (+) Improvement Homesite Value: | + | $0 | |
| (+) Improvement Non-Homesite Value: | + | $0 | |
| (+) Land Homesite Value: | + | $0 | |
| (+) Land Non-Homesite Value: | + | $40,050 | |
| (+) Curr Use (HS): | + | $0 | $0 |
| (+) Curr Use (NHS): | + | $0 | $0 |
| | | -------------------------- | |
| (=) Market Value: | = | $40,050 | |
| (–) Productivity Loss: | – | $0 | |
| | | -------------------------- | |
| (=) Subtotal: | = | $40,050 | |
| (+) Senior Appraised Value: | + | $0 | |
| (+) Non-Senior Appraised Value: | + | $40,050 | |
| | | -------------------------- | |
| (=) Total Appraised Value: | = | $40,050 | |
| (–) Senior Exemption Loss: | – | $0 | |
| (–) Exemption Loss: | – | $0 | |
| | | -------------------------- | |
| (=) Taxable Value: | = | $40,050 | |
Taxing Jurisdiction
| Owner: | OLGA AND OLIO LLC | | |
| % Ownership: | 100.0000000000% | | |
| Total Value: | $40,050 | | |
| Tax Area: | 549 - APPRAISER-Stan/Cam Schl Dist, Special Dist, vacant & 50 acres or less |
| CF | Conservation Futures | 0.0316035091 | $40,050 | $40,050 | $1.27 | | |
| EMS1 | Fire & Rescue Dist #1 Camano GEN (EMS) | 0.3677864386 | $40,050 | $40,050 | $14.73 | | |
| CE | County Current Expense | 0.3708482477 | $40,050 | $40,050 | $14.85 | | |
| CR | County Roads | 0.4584763726 | $40,050 | $40,050 | $18.36 | | |
| LCIB | Library Sno-Isle BOND (Camano Island) | 0.0396325772 | $40,050 | $40,050 | $1.59 | | |
| LIB | Library Sno-Isle GEN | 0.3153421757 | $40,050 | $40,050 | $12.63 | | |
| SCH205_401 | School 205-401 Enrichment | 1.2698420524 | $40,050 | $40,050 | $50.86 | | |
| SCH205BOND | School 205-401 BOND | 0.9396497583 | $40,050 | $40,050 | $37.63 | | |
| ST | State School | 1.3035497053 | $40,050 | $40,050 | $52.21 | | |
| ST2 | State School Part 2 | 0.8169543533 | $40,050 | $40,050 | $32.72 | | |
| | Total Tax Rate: | 5.9136851902 | | | | | |
| | | | | Taxes w/Current Exemptions: | $236.85 | | |
| | | | | Taxes w/o Exemptions: | $236.85 | | |
Improvement / Building
Sketch
| No sketches available for this property. |
Property Image
Land
| 1 | 35 | AC (10.00-30.99) | 13.3500 | 581526.00 | 0.00 | 0.00 | 1.00 | $40,050 | $0 |
Roll Value History
| 2026 | N/A | N/A | N/A | N/A | N/A |
| 2025 | $0 | $40,050 | $0 | $40,050 | $40,050 |
| 2024 | $0 | $40,050 | $0 | $40,050 | $40,050 |
| 2023 | $0 | $40,050 | $0 | $40,050 | $40,050 |
| 2022 | $0 | $40,050 | $0 | $40,050 | $40,050 |
| 2021 | $0 | $39,510 | $0 | $39,510 | $39,510 |
| 2020 | $0 | $39,510 | $0 | $39,510 | $39,510 |
| 2019 | $0 | $39,510 | $0 | $39,510 | $39,510 |
| 2018 | $0 | $39,510 | $0 | $39,510 | $39,510 |
| 2017 | $0 | $26,340 | $0 | $26,340 | $26,340 |
| 2016 | $0 | $26,340 | $0 | $26,340 | $26,340 |
| 2015 | $0 | $18,503 | $0 | $18,503 | $18,503 |
| 2014 | $0 | $18,503 | $0 | $18,503 | $18,503 |
| 2013 | $0 | $18,503 | $0 | $18,503 | $18,503 |
| 2012 | $0 | $158,220 | $0 | $158,220 | $158,220 |
| 2011 | $0 | $158,220 | $0 | $158,220 | $158,220 |
| 2010 | $0 | $158,220 | $0 | $158,220 | $158,220 |
| 2009 | $0 | $243,410 | $0 | $243,410 | $243,410 |
| 2008 | $0 | $306,025 | $0 | $306,025 | $306,025 |
| 2007 | $0 | $306,025 | $0 | $306,025 | $306,025 |
Deed and Sales History
| 1 | 01/28/2025 | WD | Warranty Deed | HOLTON FAMILY LIMITED PARTNERSHIP | OLGA AND OLIO LLC | | | $591,750.00 | 62456 | 4581806 |
|   | |
| 2 | 05/01/1992 | WD | Warranty Deed | MILLER, RUTH G | HOLTON, FAMILY L | | | $125,000.00 | 21876 | 92009010 |
| 3 | 07/01/1991 | QCD | Quit Claim Deed | MILLER, RUTH G | MILLER, RUTH G | | | $0.00 | 12588 | 91011057 |
| 4 | 04/01/1991 | PRD | Personal Representatives Deed | MILLER, GREGORY R | MILLER, RUTH G | | | $0.00 | 11460 | 91007851 |
| 5 | 12/01/1986 | WD | Warranty Deed | CHIEF, SEATTLE L | MILLER, GREGORY R | | | $0.00 | 63612 | 86016240 |
| 6 | 01/01/1900 | OTHER | Other - Misc. Documents | Unknown | CHIEF, SEATTLE L | | | $0.00 | 0 | 0 |
Payout Agreement
| No payout information available.. |