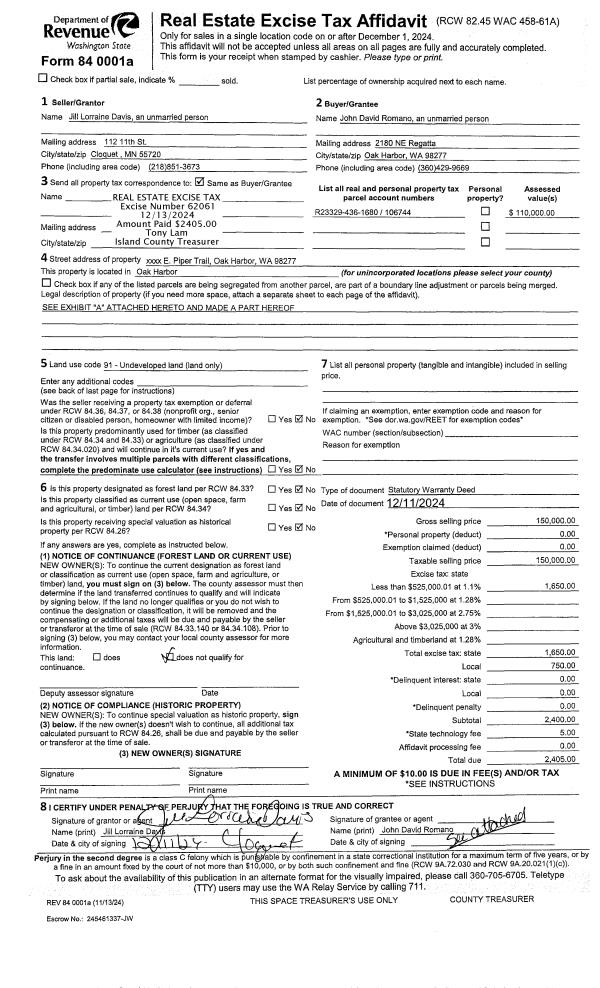
Property
Account |
| Property ID: | 613321 | Abbreviated Legal Description: | JENNE'S HOMESITE LOT 5 |
| Geographic ID: | S7246-00-00005-0 | Agent Code: | |
| Type: | Real | | |
| Tax Area: | 300 - APPRAISER-Cpvl Schl Dist, in Cpvl | Land Use Code | 11 |
| Open Space: | N | DFL | N |
| Historic Property: | N | Remodel Property: | N |
| Multi-Family Redevelopment: | N | | |
| Township: | | Section: | |
| Range: | |
Location |
| Address: | 79 SW BAINBRIDGE LN COUPEVILLE, WA 98239 | Mapsco: | |
| Neighborhood: | Cycle 2 | Map ID: | 32 |
| Neighborhood CD: | 2 |
Owner |
| Name: | DONATY, MARY BERNADETTE | Owner ID: | 312785 |
| Mailing Address: | 79 SOUTHWEST BAINBRIDGE LN COUPEVILLE, WA 98239 | % Ownership: | 100.0000000000% |
| | | Exemptions: | |
Taxes and Assessment Details
Values
| (+) Improvement Homesite Value: | + | $0 | |
| (+) Improvement Non-Homesite Value: | + | $316,548 | |
| (+) Land Homesite Value: | + | $0 | |
| (+) Land Non-Homesite Value: | + | $220,000 | |
| (+) Curr Use (HS): | + | $0 | $0 |
| (+) Curr Use (NHS): | + | $0 | $0 |
| | | -------------------------- | |
| (=) Market Value: | = | $536,548 | |
| (–) Productivity Loss: | – | $0 | |
| | | -------------------------- | |
| (=) Subtotal: | = | $536,548 | |
| (+) Senior Appraised Value: | + | $0 | |
| (+) Non-Senior Appraised Value: | + | $536,548 | |
| | | -------------------------- | |
| (=) Total Appraised Value: | = | $536,548 | |
| (–) Senior Exemption Loss: | – | $0 | |
| (–) Exemption Loss: | – | $0 | |
| | | -------------------------- | |
| (=) Taxable Value: | = | $536,548 | |
Taxing Jurisdiction
| Owner: | DONATY, MARY BERNADETTE | | |
| % Ownership: | 100.0000000000% | | |
| Total Value: | $536,548 | | |
| Tax Area: | 300 - APPRAISER-Cpvl Schl Dist, in Cpvl |
| CF | Conservation Futures | 0.0316035091 | $536,548 | $536,548 | $16.96 | | |
| CEM2 | Cemetery #2 | 0.0095056933 | $536,548 | $536,548 | $5.10 | | |
| COUP | City: Town of Coupeville | 0.8426414490 | $536,548 | $536,548 | $452.12 | | |
| FIRE5 | Fire & Rescue Dist #5 C Whidbey GEN | 1.2008080668 | $536,548 | $536,548 | $644.29 | | |
| FIRE5BOND | Fire & Rescue Dist #5 C Whidbey BOND | 0.1400090713 | $536,548 | $536,548 | $75.12 | | |
| HOBOND | Hospital BOND | 0.1910887512 | $536,548 | $536,548 | $102.53 | | |
| HOGEN | Hospital GEN | 0.3902502903 | $536,548 | $536,548 | $209.39 | | |
| CE | County Current Expense | 0.3708482477 | $536,548 | $536,548 | $198.98 | | |
| ISLANDEMS | Hospital GEN (EMS) | 0.5000000000 | $536,548 | $536,548 | $268.27 | | |
| LIB | Library Sno-Isle GEN | 0.3153421757 | $536,548 | $536,548 | $169.20 | | |
| LIBCAP | Library Sno-Isle BOND (Cap Fac Imp Area) | 0.0543427938 | $536,548 | $536,548 | $29.16 | | |
| POCOUP | Port of Coupeville GEN | 0.1093371703 | $536,548 | $536,548 | $58.66 | | |
| POCOUPIDD | Port of Coupeville IDD | 0.3409740022 | $536,548 | $536,548 | $182.95 | | |
| COUPSDTECH | School 204 CP (TECH) | 0.7545480007 | $536,548 | $536,548 | $404.85 | | |
| SCH204MO | School 204 Enrichment | 0.6716186034 | $536,548 | $536,548 | $360.36 | | |
| ST | State School | 1.3035497053 | $536,548 | $536,548 | $699.42 | | |
| ST2 | State School Part 2 | 0.8169543533 | $536,548 | $536,548 | $438.34 | | |
| | Total Tax Rate: | 8.0434218834 | | | | | |
| | | | | Taxes w/Current Exemptions: | $4,315.70 | | |
| | | | | Taxes w/o Exemptions: | $4,315.70 | | |
Improvement / Building
| Improvement #1: | RESIDENTIAL | State Code: | Y | 1668.0 sqft | Value: | $316,548 |
| Bathrooms: | 2 | Bedrooms: | 3 | | Ceiling: | DRYWALL PAINTED | Cooling: | HEAT PUMP/CONV/V | | Exterior Wall/Cover: | VINYL | Floor Covering: | HARDWOOD/CARP 20-80 | | Floor Structure: | WOOD W/SUBFLOOR | Foundation: | CONCRETE | | Interior Finish: | DRYWALL PAINT | Plumbing Fixture Cnt: | 9 | | Roof Slope: | 4" IN 12" | Roof Structure/Cover: | CJ ASPHALT |
|
| | Type | Description | Class CD | Sub Class CD | Year Built | Area |
| | BAS | BASE/MAIN FLOOR | 3 | 0 | 1988 | 1668.0 |
| | AGR | ATTACHED GARAGE | 3 | 0 | 1988 | 480.0 |
| | OWP | OPEN WOOD PORCH W/STEPS | 3 | 0 | 1988 | 320.0 |
| | OWC | OPEN WOOD PORCH W/STEPS/ROOF/C | 3 | 0 | 1988 | 24.0 |
Sketch
| No sketches available for this property. |
Property Image
Land
| 1 | 14 | SQ (08001-12000) | 0.2700 | 11761.20 | 0.00 | 0.00 | 1.00 | $220,000 | $0 |
Roll Value History
| 2026 | N/A | N/A | N/A | N/A | N/A |
| 2025 | $316,548 | $220,000 | $0 | $536,548 | $536,548 |
| 2024 | $312,746 | $200,000 | $0 | $512,746 | $512,746 |
| 2023 | $316,548 | $200,000 | $0 | $516,548 | $516,548 |
| 2022 | $252,892 | $180,000 | $0 | $432,892 | $432,892 |
| 2021 | $222,723 | $140,000 | $0 | $362,723 | $362,723 |
| 2020 | $217,325 | $110,000 | $0 | $327,325 | $327,325 |
| 2019 | $160,056 | $140,000 | $0 | $300,056 | $300,056 |
| 2018 | $157,395 | $130,000 | $0 | $287,395 | $287,395 |
| 2017 | $158,354 | $110,000 | $0 | $268,354 | $268,354 |
| 2016 | $160,286 | $85,000 | $0 | $245,286 | $245,286 |
| 2015 | $158,980 | $85,000 | $0 | $243,980 | $243,980 |
| 2014 | $160,874 | $85,000 | $0 | $245,874 | $245,874 |
| 2013 | $162,766 | $85,000 | $0 | $247,766 | $247,766 |
| 2012 | $150,085 | $89,250 | $0 | $239,335 | $239,335 |
| 2011 | $151,978 | $105,000 | $0 | $256,978 | $256,978 |
| 2010 | $161,384 | $105,000 | $0 | $266,384 | $266,384 |
| 2009 | $168,349 | $125,000 | $0 | $293,349 | $293,349 |
| 2008 | $170,528 | $133,987 | $0 | $304,515 | $304,515 |
| 2007 | $172,741 | $60,000 | $0 | $232,741 | $232,741 |
Deed and Sales History
| 1 | 06/13/2024 | WD | Warranty Deed | OVERBURY-HOWLAND, DANIEL | DONATY, MARY BERNADETTE | | | $615,000.00 | 60333 | 4573470 |
| 2 | 07/11/2022 | WD | Warranty Deed | WOOLEVER, JEFFREY D / YVONNE | OVERBURY-HOWLAND, DANIEL | | | $610,000.00 | 53798 | 4548255 |
| 3 | 08/01/1995 | WD | Warranty Deed | DAILEY, PAUL J | WOOLEVER, JEFFREY D | | | $135,000.00 | 52828 | 95013022 |
| 4 | 03/01/1988 | WD | Warranty Deed | CLINE, JAMES R | DAILEY, PAUL J | | | $71,000.00 | 80890 | 88003489 |
| 5 | 09/01/1986 | REC | Real Estate Contract | Unknown | CLINE, JAMES R | | | $12,000.00 | 62669 | 86012093 |
Payout Agreement
| No payout information available.. |