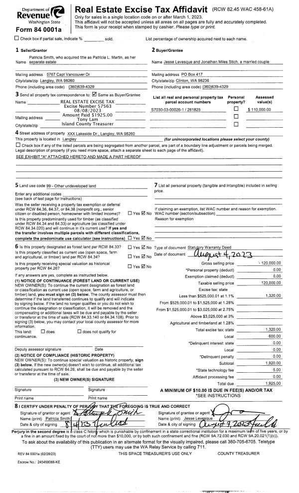
Property
Account |
| Property ID: | 614008 | Abbreviated Legal Description: | REPLACES R23235-380-2330 LOT 1 SP 81-45 R23235-329-0340 V1 SP P142 AF#398187 TGW INT WELL |
| Geographic ID: | R23235-380-0330 | Agent Code: | |
| Type: | Real | | |
| Tax Area: | 512 - APPRAISER-Stan/Cam Schl Dist, improved, greater than 1 acre | Land Use Code | 11 |
| Open Space: | N | DFL | N |
| Historic Property: | N | Remodel Property: | N |
| Multi-Family Redevelopment: | N | | |
| Township: | 32 | Section: | 35 |
| Range: | R2 |
Location |
| Address: | 292 BAMBI DR CAMANO ISLAND, WA 98282 | Mapsco: | |
| Neighborhood: | North Camano | Map ID: | 577 |
| Neighborhood CD: | 06-C |
Owner |
| Name: | MACK, JOSEPH V | Owner ID: | 282553 |
| Mailing Address: | 9229 271 ST NW BOX 1373 STANWOOD, WA 98292 | % Ownership: | 100.0000000000% |
| | | Exemptions: | |
Taxes and Assessment Details
Values
| (+) Improvement Homesite Value: | + | $0 | |
| (+) Improvement Non-Homesite Value: | + | $74,000 | |
| (+) Land Homesite Value: | + | $0 | |
| (+) Land Non-Homesite Value: | + | $270,000 | |
| (+) Curr Use (HS): | + | $0 | $0 |
| (+) Curr Use (NHS): | + | $0 | $0 |
| | | -------------------------- | |
| (=) Market Value: | = | $344,000 | |
| (–) Productivity Loss: | – | $0 | |
| | | -------------------------- | |
| (=) Subtotal: | = | $344,000 | |
| (+) Senior Appraised Value: | + | $0 | |
| (+) Non-Senior Appraised Value: | + | $344,000 | |
| | | -------------------------- | |
| (=) Total Appraised Value: | = | $344,000 | |
| (–) Senior Exemption Loss: | – | $0 | |
| (–) Exemption Loss: | – | $0 | |
| | | -------------------------- | |
| (=) Taxable Value: | = | $344,000 | |
Taxing Jurisdiction
| Owner: | MACK, JOSEPH V | | |
| % Ownership: | 100.0000000000% | | |
| Total Value: | $344,000 | | |
| Tax Area: | 512 - APPRAISER-Stan/Cam Schl Dist, improved, greater than 1 acre |
| CF | Conservation Futures | 0.0316035091 | $344,000 | $344,000 | $10.87 | | |
| EMS1 | Fire & Rescue Dist #1 Camano GEN (EMS) | 0.3677864386 | $344,000 | $344,000 | $126.52 | | |
| FIRE1 | Fire & Rescue Dist #1 Camano GEN | 1.2502910536 | $344,000 | $344,000 | $430.10 | | |
| FIRE1BOND | Fire & Rescue Dist #1 Camano BOND | 0.1570001679 | $344,000 | $344,000 | $54.01 | | |
| CE | County Current Expense | 0.3708482477 | $344,000 | $344,000 | $127.57 | | |
| CR | County Roads | 0.4584763726 | $344,000 | $344,000 | $157.72 | | |
| LCIB | Library Sno-Isle BOND (Camano Island) | 0.0396325772 | $344,000 | $344,000 | $13.63 | | |
| LIB | Library Sno-Isle GEN | 0.3153421757 | $344,000 | $344,000 | $108.48 | | |
| SCH205_401 | School 205-401 Enrichment | 1.2698420524 | $344,000 | $344,000 | $436.83 | | |
| SCH205BOND | School 205-401 BOND | 0.9396497583 | $344,000 | $344,000 | $323.24 | | |
| ST | State School | 1.3035497053 | $344,000 | $344,000 | $448.42 | | |
| ST2 | State School Part 2 | 0.8169543533 | $344,000 | $344,000 | $281.03 | | |
| | Total Tax Rate: | 7.3209764117 | | | | | |
| | | | | Taxes w/Current Exemptions: | $2,518.42 | | |
| | | | | Taxes w/o Exemptions: | $2,518.42 | | |
Improvement / Building
| Improvement #1: | RESIDENTIAL | State Code: | Y | 0.0 sqft | Value: | $74,000 |
| | Type | Description | Class CD | Sub Class CD | Year Built | Area |
| | oPOL | POLE BARN | 1 | 0 | 1990 | 1768.0 |
| | oPOL | POLE BARN | 1 | 0 | 1990 | 1512.0 |
Sketch
Property Image
Land
| 1 | 32 | AC (03.01-09.99) | 5.0000 | 0.00 | 0.00 | 0.00 | 1.00 | $270,000 | $0 |
Roll Value History
| 2026 | N/A | N/A | N/A | N/A | N/A |
| 2025 | $74,000 | $270,000 | $0 | $344,000 | $344,000 |
| 2024 | $74,000 | $250,000 | $0 | $324,000 | $324,000 |
| 2023 | $90,000 | $240,000 | $0 | $330,000 | $330,000 |
| 2022 | $12,000 | $180,000 | $0 | $192,000 | $192,000 |
| 2021 | $12,000 | $170,000 | $0 | $182,000 | $182,000 |
| 2020 | $12,000 | $170,000 | $0 | $182,000 | $182,000 |
| 2019 | $12,000 | $150,000 | $0 | $162,000 | $162,000 |
| 2018 | $12,000 | $150,000 | $0 | $162,000 | $162,000 |
| 2017 | $12,000 | $200,000 | $0 | $212,000 | $212,000 |
| 2016 | $10,000 | $160,000 | $0 | $170,000 | $170,000 |
| 2015 | $10,000 | $148,000 | $0 | $158,000 | $158,000 |
| 2014 | $10,000 | $148,000 | $0 | $158,000 | $158,000 |
| 2013 | $10,000 | $148,000 | $0 | $158,000 | $158,000 |
| 2012 | $10,000 | $148,000 | $0 | $158,000 | $158,000 |
| 2011 | $10,000 | $185,000 | $0 | $195,000 | $195,000 |
| 2010 | $16,240 | $185,000 | $0 | $201,240 | $201,240 |
| 2009 | $17,320 | $225,000 | $0 | $242,320 | $242,320 |
| 2008 | $18,400 | $225,000 | $0 | $243,400 | $243,400 |
| 2007 | $19,480 | $225,000 | $0 | $244,480 | $244,480 |
Deed and Sales History
| 1 | 10/17/2017 | WD | Warranty Deed | TIKALSKY, PETER D | MACK, JOSEPH V | | | $265,000.00 | 31610 | 4432604 |
| 2 | 04/22/2005 | WD | Warranty Deed | HOYT, BONNIE L | TIKALSKY, PETER D | | | $265,000.00 | 51836 | 4132713 |
| 3 | 11/07/2002 | WD | Warranty Deed | HOYT, BONNIE L | HOYT, BONNIE L | | | $0.00 | 30225 | 4044810 |
| 4 | 11/07/2002 | QCD | Quit Claim Deed | HOYT, H R | HOYT, BONNIE L | | | $0.00 | 24517 | 4037223 |
| 5 | 05/01/1991 | QCD | Quit Claim Deed | HOYT, HORACE R | HOYT, H R | | | $0.00 | 11877 | 91007957 |
| 6 | 07/01/1984 | EZ | Easement | HOYT, HORACE R | HOYT, HORACE R | | | $0.00 | 60974 | 84001164 |
| 7 | 12/01/1978 | OTHER | Other - Misc. Documents | Unknown | HOYT, HORACE R | | | $0.00 | 86021 | 344414 |
Payout Agreement
| No payout information available.. |