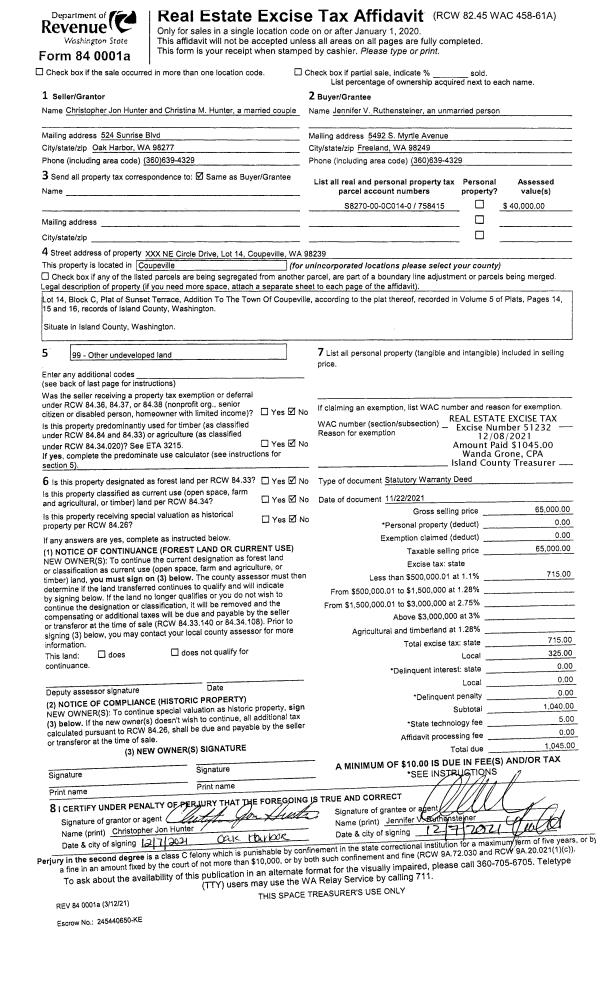
Property
Account |
| Property ID: | 614605 | Abbreviated Legal Description: | 1987 GLEN RIVER 27X44 VIN# GR2799XY TPO &069436 |
| Geographic ID: | M918500000170 | Agent Code: | |
| Type: | Mobile Home | | |
| Tax Area: | 710 - APPRAISER-S Whid Schl Dist, outside Langley, improved & 1 acre or less | Land Use Code | 11 |
| Open Space: | N | DFL | N |
| Historic Property: | N | Remodel Property: | N |
| Multi-Family Redevelopment: | N | | |
| Township: | | Section: | |
| Range: | |
Location |
| Address: | 4966 CARLIE DR LANGLEY, WA 98260 | Mapsco: | |
| Neighborhood: | Cycle 4 | Map ID: | 735 |
| Neighborhood CD: | 4 |
Owner |
| Name: | GUGGENHEIM, BETHANY | Owner ID: | 300608 |
| Mailing Address: | 4966 CARLIE DR LANGLEY, WA 98260 | % Ownership: | 100.0000000000% |
| | | Exemptions: | |
Taxes and Assessment Details
Values
| (+) Improvement Homesite Value: | + | $0 | |
| (+) Improvement Non-Homesite Value: | + | $90,934 | |
| (+) Land Homesite Value: | + | $0 | |
| (+) Land Non-Homesite Value: | + | $0 | |
| (+) Curr Use (HS): | + | $0 | $0 |
| (+) Curr Use (NHS): | + | $0 | $0 |
| | | -------------------------- | |
| (=) Market Value: | = | $90,934 | |
| (–) Productivity Loss: | – | $0 | |
| | | -------------------------- | |
| (=) Subtotal: | = | $90,934 | |
| (+) Senior Appraised Value: | + | $0 | |
| (+) Non-Senior Appraised Value: | + | $90,934 | |
| | | -------------------------- | |
| (=) Total Appraised Value: | = | $90,934 | |
| (–) Senior Exemption Loss: | – | $0 | |
| (–) Exemption Loss: | – | $0 | |
| | | -------------------------- | |
| (=) Taxable Value: | = | $90,934 | |
Taxing Jurisdiction
| Owner: | GUGGENHEIM, BETHANY | | |
| % Ownership: | 100.0000000000% | | |
| Total Value: | $90,934 | | |
| Tax Area: | 710 - APPRAISER-S Whid Schl Dist, outside Langley, improved & 1 acre or less |
| CF | Conservation Futures | 0.0316035091 | $90,934 | $90,934 | $2.87 | | |
| FIRE3 | Fire & Rescue Dist #3 S Whidbey GEN | 1.2004855531 | $90,934 | $90,934 | $109.16 | | |
| HOBOND | Hospital BOND | 0.1910887512 | $90,934 | $90,934 | $17.38 | | |
| HOGEN | Hospital GEN | 0.3902502903 | $90,934 | $90,934 | $35.49 | | |
| CE | County Current Expense | 0.3708482477 | $90,934 | $90,934 | $33.72 | | |
| CR | County Roads | 0.4584763726 | $90,934 | $90,934 | $41.69 | | |
| ISLANDEMS | Hospital GEN (EMS) | 0.5000000000 | $90,934 | $90,934 | $45.47 | | |
| LIB | Library Sno-Isle GEN | 0.3153421757 | $90,934 | $90,934 | $28.68 | | |
| PORTWHID | Port of S Whidbey GEN | 0.1094540357 | $90,934 | $90,934 | $9.95 | | |
| SCH206BOND | School 206 BOND | 0.3161759235 | $90,934 | $90,934 | $28.75 | | |
| SCH206MO | School 206 Enrichment | 0.4547169547 | $90,934 | $90,934 | $41.35 | | |
| ST | State School | 1.3035497053 | $90,934 | $90,934 | $118.54 | | |
| ST2 | State School Part 2 | 0.8169543533 | $90,934 | $90,934 | $74.29 | | |
| SWHIDPRBD | P & R S Whidbey BOND | 0.0152817568 | $90,934 | $90,934 | $1.39 | | |
| SWHIDPRBD2 | P & R S Whidbey BOND2 | 0.0138911264 | $90,934 | $90,934 | $1.26 | | |
| SWHIDPRMT | P & R S Whidbey GEN | 0.2053334452 | $90,934 | $90,934 | $18.67 | | |
| | Total Tax Rate: | 6.6934522006 | | | | | |
| | | | | Taxes w/Current Exemptions: | $608.66 | | |
| | | | | Taxes w/o Exemptions: | $608.66 | | |
Improvement / Building
| Improvement #1: | MANUFACTURED HOME | State Code: | Y | 1064.4 sqft | Value: | $90,934 |
| Bathrooms: | 2 | Bedrooms: | 2 | | Ceiling: | DRYWALL PAINTED | Exterior Wall/Cover: | VINYL | | Floor Covering: | CARPET/VINYL 80-20 | Floor Structure: | SLAB ON GRADE | | Foundation: | SLAB | Heating: | FHA ELECTRIC | | Interior Finish: | DRYWALL PAINT | Plumbing Fixture Cnt: | 1 | | Roof Slope: | 3" IN 12" | Roof Structure/Cover: | CJ ASPHALT |
|
| | Type | Description | Class CD | Sub Class CD | Year Built | Area |
| | BAS | BASE/MAIN FLOOR | 4 | 0 | 1987 | 1064.4 |
| | OCP | OPEN CARPORT | 4 | 0 | 1987 | 204.0 |
| | OWP | OPEN WOOD PORCH W/STEPS | 4 | 0 | 1987 | 135.6 |
Sketch
Property Image
Land
No land segments exist for this property.
Roll Value History
| 2026 | N/A | N/A | N/A | N/A | N/A |
| 2025 | $90,934 | $0 | $0 | $90,934 | $90,934 |
| 2024 | $93,608 | $0 | $0 | $93,608 | $93,608 |
| 2023 | $59,303 | $0 | $0 | $59,303 | $59,303 |
| 2022 | $54,446 | $0 | $0 | $54,446 | $54,446 |
| 2021 | $48,646 | $0 | $0 | $48,646 | $48,646 |
| 2020 | $39,041 | $0 | $0 | $39,041 | $39,041 |
| 2019 | $31,741 | $0 | $0 | $31,741 | $31,741 |
| 2018 | $32,734 | $0 | $0 | $32,734 | $32,734 |
| 2017 | $33,719 | $0 | $0 | $33,719 | $33,719 |
| 2016 | $34,711 | $0 | $0 | $34,711 | $34,711 |
| 2015 | $35,703 | $0 | $0 | $35,703 | $35,703 |
| 2014 | $34,698 | $0 | $0 | $34,698 | $34,698 |
| 2013 | $35,738 | $0 | $0 | $35,738 | $35,738 |
| 2012 | $36,777 | $0 | $0 | $36,777 | $36,777 |
| 2011 | $37,817 | $0 | $0 | $37,817 | $37,817 |
| 2010 | $40,696 | $0 | $0 | $40,696 | $40,696 |
| 2009 | $42,464 | $0 | $0 | $42,464 | $42,464 |
| 2008 | $44,065 | $0 | $0 | $44,065 | $44,065 |
| 2007 | $33,077 | $0 | $0 | $33,077 | $33,077 |
Deed and Sales History
| 1 | 08/05/2021 | MANHOME | Manufactured Home | DAWSON, CONSTANCE H | GUGGENHEIM, BETHANY | | | $115,125.00 | 49517 | |
| 2 | 05/31/2000 | OTHER | Other - Misc. Documents | INGRASCI, SAM / | DAWSON, CONSTANCE H | | | $55,000.00 | 2156 | 0 |
| 3 | 07/01/1996 | OTHER | Other - Misc. Documents | PEYSER, OLIVE G | INGRASCI, SAM / | | | $53,000.00 | 62657 | 0 |
| 4 | 06/01/1986 | OTHER | Other - Misc. Documents | Unknown | PEYSER, OLIVE G | | | $35,900.00 | 11111111 | 0 |
Payout Agreement
| No payout information available.. |