Property
Account |
| Property ID: | 615329 | Abbreviated Legal Description: | LOT A SP 84-103.23036.064-5070 V2 SP P106 AF#87001943 |
| Geographic ID: | R23036-116-5080 | Agent Code: | |
| Type: | Real | | |
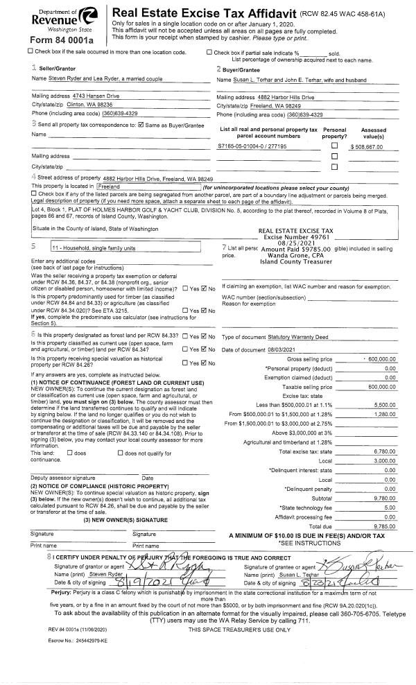
| Tax Area: | 712 - APPRAISER-S Whid Schl Dist, outside Langley, improved, greater than 1 acre | Land Use Code | 11 |
| Open Space: | N | DFL | N |
| Historic Property: | N | Remodel Property: | N |
| Multi-Family Redevelopment: | N | | |
| Township: | 30 | Section: | 36 |
| Range: | R2 |
Location |
| Address: | 4710 WAYNE LN FREELAND, WA 98249 | Mapsco: | |
| Neighborhood: | Cycle 4 | Map ID: | 446 |
| Neighborhood CD: | 4 |
Owner |
| Name: | SWENSON, RON | Owner ID: | 97314 |
| Mailing Address: | 4724 THORNWOOD LN LANGLEY, WA 98260-8633 | % Ownership: | 100.0000000000% |
| | | Exemptions: | |
Taxes and Assessment Details
Values
| (+) Improvement Homesite Value: | + | $0 | |
| (+) Improvement Non-Homesite Value: | + | $49,967 | |
| (+) Land Homesite Value: | + | $0 | |
| (+) Land Non-Homesite Value: | + | $310,000 | |
| (+) Curr Use (HS): | + | $0 | $0 |
| (+) Curr Use (NHS): | + | $0 | $0 |
| | | -------------------------- | |
| (=) Market Value: | = | $359,967 | |
| (–) Productivity Loss: | – | $0 | |
| | | -------------------------- | |
| (=) Subtotal: | = | $359,967 | |
| (+) Senior Appraised Value: | + | $0 | |
| (+) Non-Senior Appraised Value: | + | $359,967 | |
| | | -------------------------- | |
| (=) Total Appraised Value: | = | $359,967 | |
| (–) Senior Exemption Loss: | – | $0 | |
| (–) Exemption Loss: | – | $0 | |
| | | -------------------------- | |
| (=) Taxable Value: | = | $359,967 | |
Taxing Jurisdiction
| Owner: | SWENSON, RON | | |
| % Ownership: | 100.0000000000% | | |
| Total Value: | $359,967 | | |
| Tax Area: | 712 - APPRAISER-S Whid Schl Dist, outside Langley, improved, greater than 1 acre |
| CF | Conservation Futures | 0.0316035091 | $359,967 | $359,967 | $11.38 | | |
| FIRE3 | Fire & Rescue Dist #3 S Whidbey GEN | 1.2004855531 | $359,967 | $359,967 | $432.14 | | |
| HOBOND | Hospital BOND | 0.1910887512 | $359,967 | $359,967 | $68.79 | | |
| HOGEN | Hospital GEN | 0.3902502903 | $359,967 | $359,967 | $140.48 | | |
| CE | County Current Expense | 0.3708482477 | $359,967 | $359,967 | $133.49 | | |
| CR | County Roads | 0.4584763726 | $359,967 | $359,967 | $165.04 | | |
| ISLANDEMS | Hospital GEN (EMS) | 0.5000000000 | $359,967 | $359,967 | $179.98 | | |
| LIB | Library Sno-Isle GEN | 0.3153421757 | $359,967 | $359,967 | $113.51 | | |
| PORTWHID | Port of S Whidbey GEN | 0.1094540357 | $359,967 | $359,967 | $39.40 | | |
| SCH206BOND | School 206 BOND | 0.3161759235 | $359,967 | $359,967 | $113.81 | | |
| SCH206MO | School 206 Enrichment | 0.4547169547 | $359,967 | $359,967 | $163.68 | | |
| ST | State School | 1.3035497053 | $359,967 | $359,967 | $469.23 | | |
| ST2 | State School Part 2 | 0.8169543533 | $359,967 | $359,967 | $294.08 | | |
| SWHIDPRBD | P & R S Whidbey BOND | 0.0152817568 | $359,967 | $359,967 | $5.50 | | |
| SWHIDPRBD2 | P & R S Whidbey BOND2 | 0.0138911264 | $359,967 | $359,967 | $5.00 | | |
| SWHIDPRMT | P & R S Whidbey GEN | 0.2053334452 | $359,967 | $359,967 | $73.91 | | |
| | Total Tax Rate: | 6.6934522006 | | | | | |
| | | | | Taxes w/Current Exemptions: | $2,409.42 | | |
| | | | | Taxes w/o Exemptions: | $2,409.42 | | |
Improvement / Building
| Improvement #1: | MANUFACTURED HOME | State Code: | Y | 1056.0 sqft | Value: | $49,966 |
| Bathrooms: | 0 | Bedrooms: | 0 | | Ceiling: | PLASTER PAINTED | Cooling: | EVAP NO DUCT | | Exterior Wall/Cover: | VINYL | Floor Covering: | CARPET 100% | | Floor Structure: | SLAB ON GRADE | Foundation: | SLAB | | Heating: | FHA ELECTRIC | Interior Finish: | PLASTER | | Plumbing Fixture Cnt: | 1 | Roof Slope: | FLAT | | Roof Structure/Cover: | CJ ALUMINIUM HEAVY |   |   |
|
| | Type | Description | Class CD | Sub Class CD | Year Built | Area |
| | BAS | BASE/MAIN FLOOR | 3 | 0 | 1974 | 1056.0 |
| | OWP | OPEN WOOD PORCH W/STEPS | 3 | 0 | 1974 | 168.0 |
| | ENP | ENCLOSED PORCH | 3 | 0 | 1974 | 180.0 |
| Improvement #2: | RESIDENTIAL | State Code: | Y | 0.0 sqft | Value: | $1 |
Sketch
Property Image
Land
| 1 | 18 | AC (02.01-03.00) | 0.0000 | 0.00 | 0.00 | 0.00 | 1.00 | $310,000 | $0 |
Roll Value History
| 2026 | N/A | N/A | N/A | N/A | N/A |
| 2025 | $49,967 | $310,000 | $0 | $359,967 | $359,967 |
| 2024 | $53,090 | $300,000 | $0 | $353,090 | $353,090 |
| 2023 | $55,172 | $290,000 | $0 | $345,172 | $345,172 |
| 2022 | $51,845 | $270,000 | $0 | $321,845 | $321,845 |
| 2021 | $47,642 | $155,000 | $0 | $202,642 | $202,642 |
| 2020 | $15,553 | $165,000 | $0 | $180,553 | $180,553 |
| 2019 | $12,252 | $200,000 | $0 | $212,252 | $212,252 |
| 2018 | $13,476 | $170,000 | $0 | $183,476 | $183,476 |
| 2017 | $14,702 | $150,000 | $0 | $164,702 | $164,702 |
| 2016 | $15,315 | $125,000 | $0 | $140,315 | $140,315 |
| 2015 | $16,539 | $100,000 | $0 | $116,539 | $116,539 |
| 2014 | $17,152 | $85,000 | $0 | $102,152 | $102,152 |
| 2013 | $26,219 | $95,000 | $0 | $121,219 | $121,219 |
| 2012 | $26,667 | $97,750 | $0 | $124,417 | $124,417 |
| 2011 | $27,564 | $115,000 | $0 | $142,564 | $142,564 |
| 2010 | $29,259 | $115,000 | $0 | $144,259 | $144,259 |
| 2009 | $30,042 | $155,000 | $0 | $185,042 | $185,042 |
| 2008 | $30,369 | $116,886 | $0 | $147,255 | $147,255 |
| 2007 | $30,020 | $116,886 | $0 | $146,906 | $146,906 |
Deed and Sales History
| 1 | 01/01/1900 | OTHER | Other - Misc. Documents | Unknown | SWENSON, RONALD | | | $0.00 | 61871 | 86011238 |
Payout Agreement
| No payout information available.. |