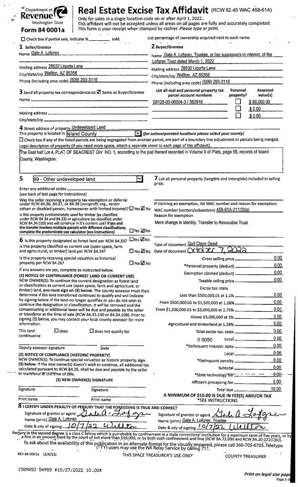
Property
Account |
| Property ID: | 61550 | Abbreviated Legal Description: | 40 IN GL1: BG SECR OF SW E660' N13*W274.56' TPB N13*W68.64' E PARA/W S SEC LN 331.36' N70*E35.03' S19*E12.27' E PARA/W S SEC LN TO ELN SD GL1 S31*E77.8' ALG SD ELN TP PAR/W SEC LN E FR TPB W ALG SD LN TPB INCL ADJ TIDES |
| Geographic ID: | R23016-028-3540 | Agent Code: | |
| Type: | Real | | |
| Tax Area: | 310 - APPRAISER-Cpvl Schl Dist, outside Cpvl, improved & 1 acre or less | Land Use Code | 11 |
| Open Space: | N | DFL | N |
| Historic Property: | N | Remodel Property: | N |
| Multi-Family Redevelopment: | N | | |
| Township: | 30 | Section: | 16 |
| Range: | R2 |
Location |
| Address: | 1081 SERENITY PINES LN GREENBANK, WA 98253 | Mapsco: | |
| Neighborhood: | Cycle 3 | Map ID: | 382 |
| Neighborhood CD: | 3 |
Owner |
| Name: | HENNELLY JR, JOSEPH M | Owner ID: | 303763 |
| Mailing Address: | 2264 E DESERT COVE AVE PHOENIX, AZ 85028 | % Ownership: | 100.0000000000% |
| | | Exemptions: | |
Taxes and Assessment Details
Values
| (+) Improvement Homesite Value: | + | $0 | |
| (+) Improvement Non-Homesite Value: | + | $237,747 | |
| (+) Land Homesite Value: | + | $0 | |
| (+) Land Non-Homesite Value: | + | $650,690 | |
| (+) Curr Use (HS): | + | $0 | $0 |
| (+) Curr Use (NHS): | + | $0 | $0 |
| | | -------------------------- | |
| (=) Market Value: | = | $888,437 | |
| (–) Productivity Loss: | – | $0 | |
| | | -------------------------- | |
| (=) Subtotal: | = | $888,437 | |
| (+) Senior Appraised Value: | + | $0 | |
| (+) Non-Senior Appraised Value: | + | $888,437 | |
| | | -------------------------- | |
| (=) Total Appraised Value: | = | $888,437 | |
| (–) Senior Exemption Loss: | – | $0 | |
| (–) Exemption Loss: | – | $0 | |
| | | -------------------------- | |
| (=) Taxable Value: | = | $888,437 | |
Taxing Jurisdiction
| Owner: | HENNELLY JR, JOSEPH M | | |
| % Ownership: | 100.0000000000% | | |
| Total Value: | $888,437 | | |
| Tax Area: | 310 - APPRAISER-Cpvl Schl Dist, outside Cpvl, improved & 1 acre or less |
| CF | Conservation Futures | 0.0316035091 | $888,437 | $888,437 | $28.08 | | |
| CEM2 | Cemetery #2 | 0.0095056933 | $888,437 | $888,437 | $8.45 | | |
| FIRE5 | Fire & Rescue Dist #5 C Whidbey GEN | 1.2008080668 | $888,437 | $888,437 | $1,066.84 | | |
| FIRE5BOND | Fire & Rescue Dist #5 C Whidbey BOND | 0.1400090713 | $888,437 | $888,437 | $124.39 | | |
| HOBOND | Hospital BOND | 0.1910887512 | $888,437 | $888,437 | $169.77 | | |
| HOGEN | Hospital GEN | 0.3902502903 | $888,437 | $888,437 | $346.71 | | |
| CE | County Current Expense | 0.3708482477 | $888,437 | $888,437 | $329.48 | | |
| CR | County Roads | 0.4584763726 | $888,437 | $888,437 | $407.33 | | |
| ISLANDEMS | Hospital GEN (EMS) | 0.5000000000 | $888,437 | $888,437 | $444.22 | | |
| LIB | Library Sno-Isle GEN | 0.3153421757 | $888,437 | $888,437 | $280.16 | | |
| LIBCAP | Library Sno-Isle BOND (Cap Fac Imp Area) | 0.0543427938 | $888,437 | $888,437 | $48.28 | | |
| POCOUP | Port of Coupeville GEN | 0.1093371703 | $888,437 | $888,437 | $97.14 | | |
| POCOUPIDD | Port of Coupeville IDD | 0.3409740022 | $888,437 | $888,437 | $302.93 | | |
| COUPSDTECH | School 204 CP (TECH) | 0.7545480007 | $888,437 | $888,437 | $670.37 | | |
| SCH204MO | School 204 Enrichment | 0.6716186034 | $888,437 | $888,437 | $596.69 | | |
| ST | State School | 1.3035497053 | $888,437 | $888,437 | $1,158.12 | | |
| ST2 | State School Part 2 | 0.8169543533 | $888,437 | $888,437 | $725.81 | | |
| | Total Tax Rate: | 7.6592568070 | | | | | |
| | | | | Taxes w/Current Exemptions: | $6,804.77 | | |
| | | | | Taxes w/o Exemptions: | $6,804.77 | | |
Improvement / Building
| Improvement #1: | RESIDENTIAL | State Code: | Y | 1149.5 sqft | Value: | $237,747 |
| Bathrooms: | 1.5 | Bedrooms: | 2 | | Ceiling: | DRYWALL PAINTED | Exterior Wall/Cover: | CEMENT FIBER | | Floor Covering: | HARDWOOD/CARP 20-80 | Floor Structure: | WOOD W/SUBFLOOR | | Foundation: | CONCRETE | Heating: | FHA OIL | | Interior Finish: | DRYWALL PAINT | Plumbing Fixture Cnt: | 8 | | Roof Slope: | 4" IN 12" | Roof Structure/Cover: | CJ ALUMINIUM HEAVY |
|
| | Type | Description | Class CD | Sub Class CD | Year Built | Area |
| | BAS | BASE/MAIN FLOOR | 3 | 0 | 1933 | 941.8 |
| | OP1 | OPEN PORCH SLAB | 3 | 0 | 1933 | 84.0 |
| | OP1 | OPEN PORCH SLAB | 3 | 0 | 1933 | 119.8 |
| | OP1 | OPEN PORCH SLAB | 3 | 0 | 1933 | 11.0 |
| | OP3 | OPEN PORCH W/ROOF | 3 | 0 | 1933 | 49.9 |
| | OWP | OPEN WOOD PORCH W/STEPS | 3 | 0 | 1933 | 367.6 |
| | DWN | DOWNSTAIRS LIVING AREA | 3 | 0 | 1933 | 207.7 |
| | oUTI | UTILITY | 3 | 0 | 1933 | 0.0 |
Sketch
Property Image
Land
| 1 | HB | HIGH BLUFF | 1.0000 | 43560.00 | 69.00 | 0.00 | 1.00 | $650,000 | $0 |
| 2 | 55 | TIDES | 0.0000 | 0.00 | 69.00 | 0.00 | 1.00 | $690 | $0 |
Roll Value History
| 2026 | N/A | N/A | N/A | N/A | N/A |
| 2025 | $237,747 | $650,690 | $0 | $888,437 | $888,437 |
| 2024 | $240,526 | $625,690 | $0 | $866,216 | $866,216 |
| 2023 | $243,303 | $575,690 | $0 | $818,993 | $818,993 |
| 2022 | $222,915 | $575,690 | $0 | $798,605 | $798,605 |
| 2021 | $196,148 | $300,690 | $0 | $496,838 | $496,838 |
| 2020 | $190,334 | $300,690 | $0 | $491,024 | $491,024 |
| 2019 | $121,793 | $375,690 | $0 | $497,483 | $497,483 |
| 2018 | $122,165 | $300,690 | $0 | $422,855 | $422,855 |
| 2017 | $122,717 | $275,690 | $0 | $398,407 | $398,407 |
| 2016 | $124,202 | $275,690 | $0 | $399,892 | $399,892 |
| 2015 | $125,687 | $250,690 | $0 | $376,377 | $376,377 |
| 2014 | $127,174 | $250,690 | $0 | $377,864 | $377,864 |
| 2013 | $132,585 | $216,102 | $0 | $348,687 | $348,687 |
| 2012 | $134,113 | $216,102 | $0 | $350,215 | $350,215 |
| 2011 | $135,640 | $216,102 | $0 | $351,742 | $351,742 |
| 2010 | $141,934 | $216,102 | $0 | $358,036 | $358,036 |
| 2009 | $147,738 | $287,907 | $0 | $435,645 | $435,645 |
| 2008 | $149,304 | $287,907 | $0 | $437,211 | $437,211 |
| 2007 | $148,672 | $227,436 | $0 | $376,108 | $376,108 |
Deed and Sales History
| 1 | 04/12/2022 | WD | Warranty Deed | DICKEY, CINDY B | HENNELLY JR, JOSEPH M | | | $961,500.00 | 52714 | 4543412 |
| 2 | 06/05/2008 | BLA | DNU - Boundary Line Adjustment | DICKEY, CINDY B | DICKEY, CINDY B | | | $0.00 | 80765 | 4186825 |
| 3 | 03/13/2008 | ESTSEPPROP | Establish Separate Property | DICKEY, CINDY B | DICKEY, CINDY B | | | $0.00 | 80723 | 4224886 |
| 4 | 09/09/2004 | TRUSTEED | Trustee's Deed | FED NAT'L MTG ASSOC, | DICKEY, CINDY B | | | $239,900.00 | 44251 | 4114538 |
| 5 | 07/14/2004 | TRUSTEED | Trustee's Deed | ROYSE, PAMELA A | FED NAT'L MTG ASSOC, | | | $239,452.00 | 43162 | 4106879 |
| 6 | 09/01/1997 | QCD | Quit Claim Deed | ROYSE, WILLIAM J | ROYSE, PAMELA A | | | $180,000.00 | 73289 | 97015511 |
| 7 | 02/01/1993 | DECREE | Divorce Decree/Legal Separation | ROYSE, WILLIAM J | ROYSE, WILLIAM J | | | $0.00 | 30549 | 93002969 |
| 8 | 08/01/1988 | OTHER | Other - Misc. Documents | ROYSE, WILLIAM J | ROYSE, WILLIAM J | | | $0.00 | 62818 | 88010533 |
| 9 | 06/01/1988 | WD | Warranty Deed | DAY, DONOVAN D | ROYSE, WILLIAM J | | | $40,800.00 | 81773 | 88006605 |
| 10 | 11/01/1980 | CD | DNU - Correction Deed | DAY, DONOVAN D | DAY, DONOVAN D | | | $0.00 | 10073 | 379878 |
| 11 | 01/01/1900 | OTHER | Other - Misc. Documents | Unknown | DAY, DONOVAN D | | | $0.00 | 0 | 0 |
Payout Agreement
| No payout information available.. |