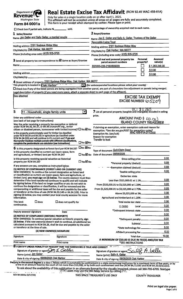
Property
Account |
| Property ID: | 615711 | Abbreviated Legal Description: | LOT 2 SP 83-64.13110.442-2180 V2 SP 105 AF#87001424 DRAINFIELD EZ AF#93008049 |
| Geographic ID: | R13110-423-2400 | Agent Code: | |
| Type: | Real | | |
| Tax Area: | 312 - APPRAISER-Cpvl Schl Dist, outside Cpvl, improved, greater than 1 acre | Land Use Code | 11 |
| Open Space: | N | DFL | N |
| Historic Property: | N | Remodel Property: | N |
| Multi-Family Redevelopment: | N | | |
| Township: | 31 | Section: | 10 |
| Range: | R1 |
Location |
| Address: | 540 FORT CASEY RD COUPEVILLE, WA 98239 | Mapsco: | |
| Neighborhood: | Cycle 2 | Map ID: | 48 |
| Neighborhood CD: | 2 |
Owner |
| Name: | EGGERMAN, M. IRENE | Owner ID: | 287991 |
| Mailing Address: | 11233 SE 313TH PL AUBURN, WA 98092 | % Ownership: | 100.0000000000% |
| | | Exemptions: | |
Taxes and Assessment Details
Values
| (+) Improvement Homesite Value: | + | $0 | |
| (+) Improvement Non-Homesite Value: | + | $726,636 | |
| (+) Land Homesite Value: | + | $0 | |
| (+) Land Non-Homesite Value: | + | $372,700 | |
| (+) Curr Use (HS): | + | $0 | $0 |
| (+) Curr Use (NHS): | + | $0 | $0 |
| | | -------------------------- | |
| (=) Market Value: | = | $1,099,336 | |
| (–) Productivity Loss: | – | $0 | |
| | | -------------------------- | |
| (=) Subtotal: | = | $1,099,336 | |
| (+) Senior Appraised Value: | + | $0 | |
| (+) Non-Senior Appraised Value: | + | $1,099,336 | |
| | | -------------------------- | |
| (=) Total Appraised Value: | = | $1,099,336 | |
| (–) Senior Exemption Loss: | – | $0 | |
| (–) Exemption Loss: | – | $0 | |
| | | -------------------------- | |
| (=) Taxable Value: | = | $1,099,336 | |
Taxing Jurisdiction
| Owner: | EGGERMAN, M. IRENE | | |
| % Ownership: | 100.0000000000% | | |
| Total Value: | $1,099,336 | | |
| Tax Area: | 312 - APPRAISER-Cpvl Schl Dist, outside Cpvl, improved, greater than 1 acre |
| CF | Conservation Futures | 0.0316035091 | $1,099,336 | $1,099,336 | $34.74 | | |
| CEM2 | Cemetery #2 | 0.0095056933 | $1,099,336 | $1,099,336 | $10.45 | | |
| FIRE5 | Fire & Rescue Dist #5 C Whidbey GEN | 1.2008080668 | $1,099,336 | $1,099,336 | $1,320.09 | | |
| FIRE5BOND | Fire & Rescue Dist #5 C Whidbey BOND | 0.1400090713 | $1,099,336 | $1,099,336 | $153.92 | | |
| HOBOND | Hospital BOND | 0.1910887512 | $1,099,336 | $1,099,336 | $210.07 | | |
| HOGEN | Hospital GEN | 0.3902502903 | $1,099,336 | $1,099,336 | $429.02 | | |
| CE | County Current Expense | 0.3708482477 | $1,099,336 | $1,099,336 | $407.69 | | |
| CR | County Roads | 0.4584763726 | $1,099,336 | $1,099,336 | $504.02 | | |
| ISLANDEMS | Hospital GEN (EMS) | 0.5000000000 | $1,099,336 | $1,099,336 | $549.67 | | |
| LIB | Library Sno-Isle GEN | 0.3153421757 | $1,099,336 | $1,099,336 | $346.67 | | |
| LIBCAP | Library Sno-Isle BOND (Cap Fac Imp Area) | 0.0543427938 | $1,099,336 | $1,099,336 | $59.74 | | |
| POCOUP | Port of Coupeville GEN | 0.1093371703 | $1,099,336 | $1,099,336 | $120.20 | | |
| POCOUPIDD | Port of Coupeville IDD | 0.3409740022 | $1,099,336 | $1,099,336 | $374.84 | | |
| COUPSDTECH | School 204 CP (TECH) | 0.7545480007 | $1,099,336 | $1,099,336 | $829.50 | | |
| SCH204MO | School 204 Enrichment | 0.6716186034 | $1,099,336 | $1,099,336 | $738.33 | | |
| ST | State School | 1.3035497053 | $1,099,336 | $1,099,336 | $1,433.04 | | |
| ST2 | State School Part 2 | 0.8169543533 | $1,099,336 | $1,099,336 | $898.11 | | |
| | Total Tax Rate: | 7.6592568070 | | | | | |
| | | | | Taxes w/Current Exemptions: | $8,420.10 | | |
| | | | | Taxes w/o Exemptions: | $8,420.10 | | |
Improvement / Building
| Improvement #1: | RESIDENTIAL | State Code: | Y | 1637.5 sqft | Value: | $726,636 |
| Bathrooms: | 2.5 | Bedrooms: | 3 | | Ceiling: | DRYWALL PAINTED | Exterior Wall/Cover: | SHINGLE | | Floor Covering: | COLORED CONCRETE | Floor Structure: | SLAB ON GRADE | | Foundation: | SLAB | Heating: | RADIANT FLOOR | | Interior Finish: | DRYWALL PAINT | Plumbing Fixture Cnt: | 16 | | Roof Slope: | 4" IN 12" | Roof Structure/Cover: | CJ ALUMINIUM HEAVY |
|
| | Type | Description | Class CD | Sub Class CD | Year Built | Area |
| | BAS | BASE/MAIN FLOOR | 6 | 0 | 2004 | 1637.5 |
| | CPD | OPEN CARPORT DIRT FLOOR | 6 | 0 | 2004 | 312.0 |
| | OP4 | OPEN PORCH W/CEILING-ROOF | 6 | 0 | 2004 | 450.3 |
| | UTY | STORAGE/UTILITY | 6 | 0 | 2004 | 196.0 |
| | OWP | OPEN WOOD PORCH W/STEPS | 6 | 0 | 2004 | 264.6 |
| | AGR | ATTACHED GARAGE | 6 | 0 | 2004 | 690.0 |
| | ENP | ENCLOSED PORCH | 6 | 0 | 2004 | 113.1 |
| | ENP | ENCLOSED PORCH | 6 | 0 | 2004 | 452.4 |
| | CPD | OPEN CARPORT DIRT FLOOR | 6 | 0 | 2004 | 160.0 |
Sketch
Property Image
Land
| 1 | HS | HOMESITE | 1.0000 | 43560.00 | 0.00 | 0.00 | 1.00 | $340,000 | $0 |
| 2 | 91 | UNDEVELOPED LAND-METES AND BOUNDS | 4.2100 | 183387.60 | 0.00 | 0.00 | 1.00 | $32,700 | $0 |
Roll Value History
| 2026 | N/A | N/A | N/A | N/A | N/A |
| 2025 | $726,636 | $372,700 | $0 | $1,099,336 | $1,099,336 |
| 2024 | $693,700 | $360,000 | $0 | $1,053,700 | $1,053,700 |
| 2023 | $701,935 | $350,000 | $0 | $1,051,935 | $1,051,935 |
| 2022 | $643,063 | $310,000 | $0 | $953,063 | $953,063 |
| 2021 | $565,672 | $260,000 | $0 | $825,672 | $825,672 |
| 2020 | $546,231 | $240,000 | $0 | $786,231 | $786,231 |
| 2019 | $418,028 | $300,000 | $0 | $718,028 | $718,028 |
| 2018 | $259,208 | $250,000 | $0 | $509,208 | $509,208 |
| 2017 | $260,614 | $180,000 | $0 | $440,614 | $440,614 |
| 2016 | $263,644 | $180,000 | $0 | $443,644 | $443,644 |
| 2015 | $266,674 | $175,000 | $0 | $441,674 | $441,674 |
| 2014 | $269,706 | $175,000 | $0 | $444,706 | $444,706 |
| 2013 | $272,735 | $281,340 | $0 | $554,075 | $554,075 |
| 2012 | $275,767 | $281,340 | $0 | $557,107 | $557,107 |
| 2011 | $278,797 | $312,600 | $0 | $591,397 | $591,397 |
| 2010 | $281,869 | $312,600 | $0 | $594,469 | $594,469 |
| 2009 | $296,794 | $338,650 | $0 | $635,444 | $635,444 |
| 2008 | $310,046 | $416,800 | $0 | $726,846 | $726,846 |
| 2007 | $393,039 | $416,800 | $0 | $809,839 | $809,839 |
Deed and Sales History
| 1 | 11/14/2018 | QCD | Quit Claim Deed | GIBSON III, LANDON MACK | EGGERMAN, M. IRENE | | | $0.00 | 36732 | 4455366 |
| 2 | 11/19/2018 | WD | Warranty Deed | MCINTYRE-WORKMAN JTWROS, DENISE | EGGERMAN, M. IRENE | | | $735,000.00 | 36730 | 4455365 |
| 3 | 03/29/2017 | WD | Warranty Deed | PICKARD, KENNETH C | MCINTYRE-WORKMAN JTWROS, DENISE | | | $735,000.00 | 28715 | 4420070 |
| 4 | 10/26/2004 | DECREE | Divorce Decree/Legal Separation | PICKARD, KENNETH C | PICKARD, KENNETH C | | | $0.00 | 45050 | 4116572 |
| 5 | 09/25/2003 | QCD | Quit Claim Deed | PICKARD ET AL, KENNETH C | PICKARD, KENNETH C | | | $44,000.00 | 34464 | 4077634 |
| 6 | 08/16/1999 | WD | Warranty Deed | NORMOYLE, KIM R | PICKARD ET AL, KENNETH C | | | $65,900.00 | 93383 | 99019470 |
| 7 | 04/03/1998 | WD | Warranty Deed | Unknown | NORMOYLE, KIM R | | | $56,000.00 | 81300 | 98007097 |
| 8 | 02/01/1992 | WD | Warranty Deed | REUBLE, LAWRENCE O | REUBLE, LOUISE S | | | $0.00 | 20456 | 92002120 |
| 9 | 01/01/1900 | OTHER | Other - Misc. Documents | Unknown | REUBLE, LAWRENCE O | | | $0.00 | 0 | 0 |
Payout Agreement
| No payout information available.. |