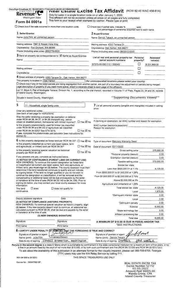
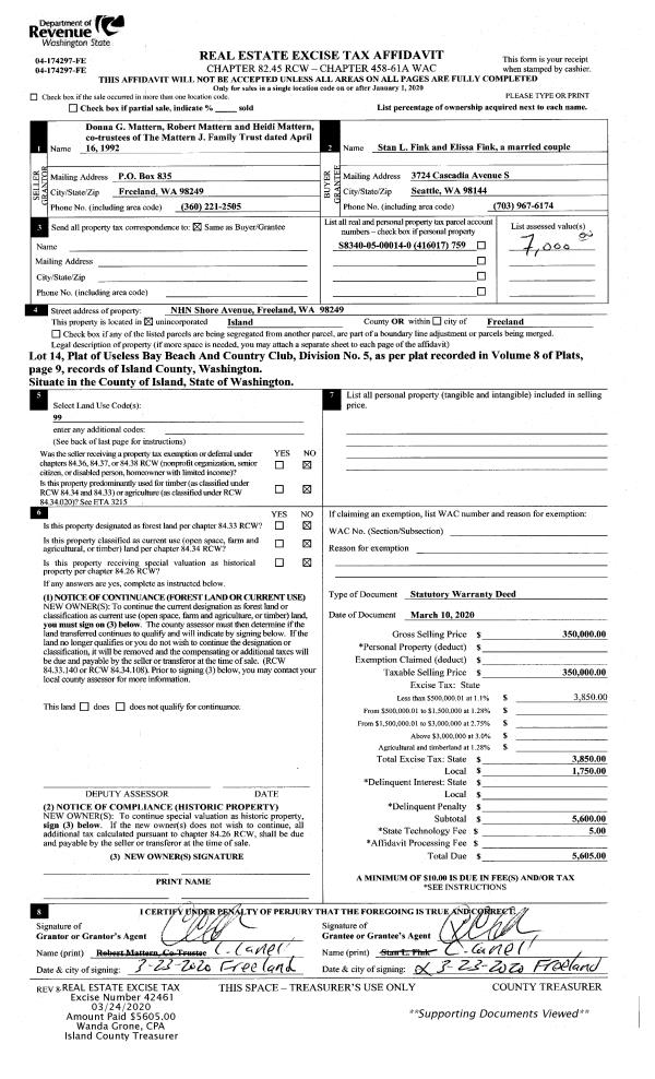
Property
Account |
| Property ID: | 61587 | Abbreviated Legal Description: | 29 - S/2 SW SW LY W OF ST HWY 525 TGW E65'OF S/2 SE SE SEC 17-30-2E LY E OF OLD CO RD TGW & SUB VIEW EZ AF#93026501 AF#94019924 AF#94019925 EX PT TO ST OF WASH AF#96013257 |
| Geographic ID: | R23016-037-0200 | Agent Code: | |
| Type: | Real | | |
| Tax Area: | 312 - APPRAISER-Cpvl Schl Dist, outside Cpvl, improved, greater than 1 acre | Land Use Code | 11 |
| Open Space: | N | DFL | N |
| Historic Property: | N | Remodel Property: | N |
| Multi-Family Redevelopment: | N | | |
| Township: | 30 | Section: | 16 |
| Range: | R2 |
Location |
| Address: | 23923 SR525 GREENBANK, WA 98253 | Mapsco: | |
| Neighborhood: | Cycle 3 | Map ID: | 381 |
| Neighborhood CD: | 3 |
Owner |
| Name: | MUDGE, JAMES T | Owner ID: | 301598 |
| Mailing Address: | JODIE MUDGE 23923 SR 525 GREENBANK, WA 98253 | % Ownership: | 100.0000000000% |
| | | Exemptions: | |
Taxes and Assessment Details
Values
| (+) Improvement Homesite Value: | + | $0 | |
| (+) Improvement Non-Homesite Value: | + | $319,419 | |
| (+) Land Homesite Value: | + | $0 | |
| (+) Land Non-Homesite Value: | + | $350,000 | |
| (+) Curr Use (HS): | + | $0 | $0 |
| (+) Curr Use (NHS): | + | $0 | $0 |
| | | -------------------------- | |
| (=) Market Value: | = | $669,419 | |
| (–) Productivity Loss: | – | $0 | |
| | | -------------------------- | |
| (=) Subtotal: | = | $669,419 | |
| (+) Senior Appraised Value: | + | $0 | |
| (+) Non-Senior Appraised Value: | + | $669,419 | |
| | | -------------------------- | |
| (=) Total Appraised Value: | = | $669,419 | |
| (–) Senior Exemption Loss: | – | $0 | |
| (–) Exemption Loss: | – | $0 | |
| | | -------------------------- | |
| (=) Taxable Value: | = | $669,419 | |
Taxing Jurisdiction
| Owner: | MUDGE, JAMES T | | |
| % Ownership: | 100.0000000000% | | |
| Total Value: | $669,419 | | |
| Tax Area: | 312 - APPRAISER-Cpvl Schl Dist, outside Cpvl, improved, greater than 1 acre |
| CF | Conservation Futures | 0.0316035091 | $669,419 | $669,419 | $21.16 | | |
| CEM2 | Cemetery #2 | 0.0095056933 | $669,419 | $669,419 | $6.36 | | |
| FIRE5 | Fire & Rescue Dist #5 C Whidbey GEN | 1.2008080668 | $669,419 | $669,419 | $803.84 | | |
| FIRE5BOND | Fire & Rescue Dist #5 C Whidbey BOND | 0.1400090713 | $669,419 | $669,419 | $93.72 | | |
| HOBOND | Hospital BOND | 0.1910887512 | $669,419 | $669,419 | $127.92 | | |
| HOGEN | Hospital GEN | 0.3902502903 | $669,419 | $669,419 | $261.24 | | |
| CE | County Current Expense | 0.3708482477 | $669,419 | $669,419 | $248.25 | | |
| CR | County Roads | 0.4584763726 | $669,419 | $669,419 | $306.91 | | |
| ISLANDEMS | Hospital GEN (EMS) | 0.5000000000 | $669,419 | $669,419 | $334.71 | | |
| LIB | Library Sno-Isle GEN | 0.3153421757 | $669,419 | $669,419 | $211.10 | | |
| LIBCAP | Library Sno-Isle BOND (Cap Fac Imp Area) | 0.0543427938 | $669,419 | $669,419 | $36.38 | | |
| POCOUP | Port of Coupeville GEN | 0.1093371703 | $669,419 | $669,419 | $73.19 | | |
| POCOUPIDD | Port of Coupeville IDD | 0.3409740022 | $669,419 | $669,419 | $228.25 | | |
| COUPSDTECH | School 204 CP (TECH) | 0.7545480007 | $669,419 | $669,419 | $505.11 | | |
| SCH204MO | School 204 Enrichment | 0.6716186034 | $669,419 | $669,419 | $449.59 | | |
| ST | State School | 1.3035497053 | $669,419 | $669,419 | $872.62 | | |
| ST2 | State School Part 2 | 0.8169543533 | $669,419 | $669,419 | $546.88 | | |
| | Total Tax Rate: | 7.6592568070 | | | | | |
| | | | | Taxes w/Current Exemptions: | $5,127.23 | | |
| | | | | Taxes w/o Exemptions: | $5,127.23 | | |
Improvement / Building
| Improvement #1: | RESIDENTIAL | State Code: | Y | 2784.0 sqft | Value: | $319,419 |
| Bathrooms: | 3 | Bedrooms: | 3 | | Ceiling: | DRYWALL PAINTED | Exterior Wall/Cover: | ASBESTOES/ASPHALT | | Floor Covering: | CARPET/VINYL 80-20 | Floor Structure: | WOOD W/SUBFLOOR | | Foundation: | CONCRETE | Heating: | FHA GAS | | Interior Finish: | DRYWALL PAINT | Plumbing Fixture Cnt: | 9 | | Roof Slope: | 5" IN 12" | Roof Structure/Cover: | CJ ASPHALT |
|
| | Type | Description | Class CD | Sub Class CD | Year Built | Area |
| | BAS | BASE/MAIN FLOOR | 3 | 0 | 1944 | 1152.0 |
| | OWP | OPEN WOOD PORCH W/STEPS | 3 | 0 | 1944 | 320.0 |
| | OWR | OPEN WOOD PORCH W/STEPS/ROOF | 3 | 0 | 1944 | 81.0 |
| | UPH | HALF STORY | 3 | 0 | 1944 | 912.0 |
| | LOF | LOFT | 3 | 0 | 1944 | 216.0 |
| | LOF | LOFT | 3 | 0 | 1944 | 504.0 |
| | UTY | STORAGE/UTILITY | 3 | 0 | 1944 | 576.0 |
| | OWR | OPEN WOOD PORCH W/STEPS/ROOF | 3 | 0 | 1944 | 64.0 |
| | DGR | DETACHED GARAGE | 3 | 0 | 1944 | 420.0 |
Sketch
Property Image
Land
| 1 | 32 | AC (03.01-09.99) | 7.4200 | 0.00 | 0.00 | 0.00 | 1.00 | $350,000 | $0 |
Roll Value History
| 2026 | N/A | N/A | N/A | N/A | N/A |
| 2025 | $319,419 | $350,000 | $0 | $669,419 | $669,419 |
| 2024 | $323,664 | $340,000 | $0 | $663,664 | $663,664 |
| 2023 | $327,908 | $320,000 | $0 | $647,908 | $647,908 |
| 2022 | $300,759 | $260,000 | $0 | $560,759 | $560,759 |
| 2021 | $231,824 | $230,000 | $0 | $461,824 | $461,824 |
| 2020 | $227,028 | $180,000 | $0 | $407,028 | $407,028 |
| 2019 | $171,671 | $230,000 | $0 | $401,671 | $401,671 |
| 2018 | $172,132 | $220,000 | $0 | $392,132 | $392,132 |
| 2017 | $173,053 | $160,000 | $0 | $333,053 | $333,053 |
| 2016 | $174,897 | $165,000 | $0 | $339,897 | $339,897 |
| 2015 | $176,740 | $130,000 | $0 | $306,740 | $306,740 |
| 2014 | $178,585 | $125,000 | $0 | $303,585 | $303,585 |
| 2013 | $181,034 | $180,306 | $0 | $361,340 | $361,340 |
| 2012 | $182,877 | $180,306 | $0 | $363,183 | $363,183 |
| 2011 | $184,721 | $200,340 | $0 | $385,061 | $385,061 |
| 2010 | $195,992 | $200,340 | $0 | $396,332 | $396,332 |
| 2009 | $203,150 | $237,440 | $0 | $440,590 | $440,590 |
| 2008 | $205,969 | $250,425 | $0 | $456,394 | $456,394 |
| 2007 | $182,422 | $222,960 | $0 | $405,382 | $405,382 |
Deed and Sales History
| 1 | 09/28/2021 | WD | Warranty Deed | VILLAPUDUA, JOHN | MUDGE, JAMES T | | | $799,000.00 | 50495 | 4531524 |
| 2 | 08/29/2006 | WD | Warranty Deed | TORNATZKY, ERIC J | VILLAPUDUA, JOHN | | | $465,000.00 | 63734 | 4180398 |
| 3 | 08/26/2004 | WD | Warranty Deed | FEUSIER, JACQUELINE | TORNATZKY, ERIC J | | | $280,000.00 | 43868 | 4110562 |
| 4 | 08/10/2004 | ESTSEPPROP | Establish Separate Property | TORNATZKY, ERIC J | TORNATZKY, ERIC J | | | $0.00 | 43870 | 4110592 |
| 5 | 01/31/2004 | PRD | Personal Representatives Deed | HALL, JUDITH M | FEUSIER, JACQUELINE | | | $0.00 | 40516 | 4090998 |
| 6 | 02/11/1998 | WD | Warranty Deed | HALL, JUDITH M | HALL, JUDITH M | | | $15,700.00 | 81200 | 98006500 |
| 7 | 07/01/1996 | WD | Warranty Deed | JONES, YUKIKO M | HALL, JUDITH M | | | $4,700.00 | 67075 | 96013257 |
| 8 | 02/01/1995 | OTHER | Other - Misc. Documents | JONES, YUKIKO M | JONES, YUKIKO M | | | $0.00 | 66238 | 95000746 |
| 9 | 01/01/1995 | QCD | Quit Claim Deed | HALL, JUDITH M | JONES, YUKIKO M | | | $0.00 | 50150 | 95000747 |
| 10 | 01/01/1995 | WD | Warranty Deed | JONES, YUKIKO M | HALL, JUDITH M | | | $240,000.00 | 50290 | 95001318 |
| 11 | 05/01/1993 | QCD | Quit Claim Deed | JONES, YUKIKO M | JONES, YUKIKO M | | | $0.00 | 31604 | 93008246 |
| 12 | 06/01/1990 | WD | Warranty Deed | TINIUS, MABEL M | JONES, YUKIKO M | | | $0.00 | 3855 | 90012547 |
| 13 | 01/01/1900 | OTHER | Other - Misc. Documents | Unknown | TINIUS, MABEL M | | | $0.00 | 0 | 0 |
Payout Agreement
| No payout information available.. |