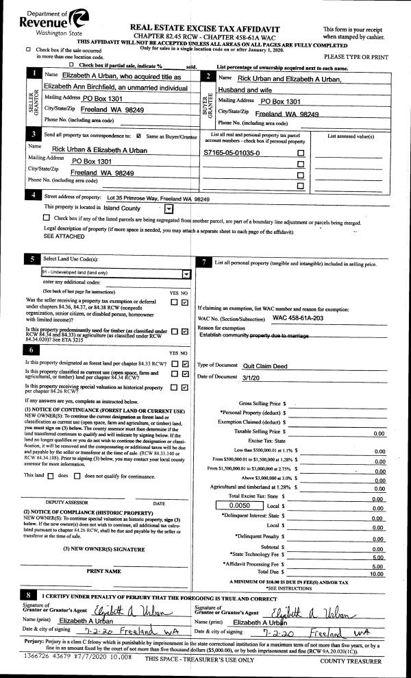
Property
Account |
| Property ID: | 617014 | Abbreviated Legal Description: | LOT B SP 84-118.23021.350-3880 V2 SP P113 AF#87003725 |
| Geographic ID: | R23021-318-3880 | Agent Code: | |
| Type: | Real | | |
| Tax Area: | 319 - APPRAISER-Cpvl Schl Dist, outside Cpvl, vacant & 50 acres or less | Land Use Code | 91 |
| Open Space: | N | DFL | N |
| Historic Property: | N | Remodel Property: | N |
| Multi-Family Redevelopment: | N | | |
| Township: | 30 | Section: | 21 |
| Range: | R2 |
Location |
| Address: | | Mapsco: | |
| Neighborhood: | Cycle 3 | Map ID: | 403 |
| Neighborhood CD: | 3 |
Owner |
| Name: | O'DONNELL, KEVIN P & | Owner ID: | 52576 |
| Mailing Address: | O'DONNELL, KELLI N 2930 38TH AVE NE TACOMA, WA 98422-2602 | % Ownership: | 100.0000000000% |
| | | Exemptions: | |
Taxes and Assessment Details
Values
| (+) Improvement Homesite Value: | + | $0 | |
| (+) Improvement Non-Homesite Value: | + | $0 | |
| (+) Land Homesite Value: | + | $0 | |
| (+) Land Non-Homesite Value: | + | $210,000 | |
| (+) Curr Use (HS): | + | $0 | $0 |
| (+) Curr Use (NHS): | + | $0 | $0 |
| | | -------------------------- | |
| (=) Market Value: | = | $210,000 | |
| (–) Productivity Loss: | – | $0 | |
| | | -------------------------- | |
| (=) Subtotal: | = | $210,000 | |
| (+) Senior Appraised Value: | + | $0 | |
| (+) Non-Senior Appraised Value: | + | $210,000 | |
| | | -------------------------- | |
| (=) Total Appraised Value: | = | $210,000 | |
| (–) Senior Exemption Loss: | – | $0 | |
| (–) Exemption Loss: | – | $0 | |
| | | -------------------------- | |
| (=) Taxable Value: | = | $210,000 | |
Taxing Jurisdiction
| Owner: | O'DONNELL, KEVIN P & | | |
| % Ownership: | 100.0000000000% | | |
| Total Value: | $210,000 | | |
| Tax Area: | 319 - APPRAISER-Cpvl Schl Dist, outside Cpvl, vacant & 50 acres or less |
| CF | Conservation Futures | 0.0316035091 | $210,000 | $210,000 | $6.64 | | |
| CEM2 | Cemetery #2 | 0.0095056933 | $210,000 | $210,000 | $2.00 | | |
| HOBOND | Hospital BOND | 0.1910887512 | $210,000 | $210,000 | $40.13 | | |
| HOGEN | Hospital GEN | 0.3902502903 | $210,000 | $210,000 | $81.95 | | |
| CE | County Current Expense | 0.3708482477 | $210,000 | $210,000 | $77.88 | | |
| CR | County Roads | 0.4584763726 | $210,000 | $210,000 | $96.28 | | |
| ISLANDEMS | Hospital GEN (EMS) | 0.5000000000 | $210,000 | $210,000 | $105.00 | | |
| LIB | Library Sno-Isle GEN | 0.3153421757 | $210,000 | $210,000 | $66.22 | | |
| LIBCAP | Library Sno-Isle BOND (Cap Fac Imp Area) | 0.0543427938 | $210,000 | $210,000 | $11.41 | | |
| POCOUP | Port of Coupeville GEN | 0.1093371703 | $210,000 | $210,000 | $22.96 | | |
| POCOUPIDD | Port of Coupeville IDD | 0.3409740022 | $210,000 | $210,000 | $71.60 | | |
| COUPSDTECH | School 204 CP (TECH) | 0.7545480007 | $210,000 | $210,000 | $158.46 | | |
| SCH204MO | School 204 Enrichment | 0.6716186034 | $210,000 | $210,000 | $141.04 | | |
| ST | State School | 1.3035497053 | $210,000 | $210,000 | $273.75 | | |
| ST2 | State School Part 2 | 0.8169543533 | $210,000 | $210,000 | $171.56 | | |
| | Total Tax Rate: | 6.3184396689 | | | | | |
| | | | | Taxes w/Current Exemptions: | $1,326.88 | | |
| | | | | Taxes w/o Exemptions: | $1,326.88 | | |
Improvement / Building
Sketch
| No sketches available for this property. |
Property Image
Land
| 1 | 32 | AC (03.01-09.99) | 4.0200 | 0.00 | 0.00 | 0.00 | 1.00 | $210,000 | $0 |
Roll Value History
| 2026 | N/A | N/A | N/A | N/A | N/A |
| 2025 | $0 | $210,000 | $0 | $210,000 | $210,000 |
| 2024 | $0 | $200,000 | $0 | $200,000 | $200,000 |
| 2023 | $0 | $180,000 | $0 | $180,000 | $180,000 |
| 2022 | $0 | $170,000 | $0 | $170,000 | $170,000 |
| 2021 | $0 | $115,000 | $0 | $115,000 | $115,000 |
| 2020 | $0 | $90,000 | $0 | $90,000 | $90,000 |
| 2019 | $0 | $120,000 | $0 | $120,000 | $120,000 |
| 2018 | $0 | $85,000 | $0 | $85,000 | $85,000 |
| 2017 | $0 | $75,000 | $0 | $75,000 | $75,000 |
| 2016 | $0 | $80,000 | $0 | $80,000 | $80,000 |
| 2015 | $0 | $80,000 | $0 | $80,000 | $80,000 |
| 2014 | $8 | $125,000 | $0 | $125,008 | $125,008 |
| 2013 | $8 | $72,360 | $0 | $72,368 | $72,368 |
| 2012 | $8 | $72,360 | $0 | $72,368 | $72,368 |
| 2011 | $8 | $80,400 | $0 | $80,408 | $80,408 |
| 2010 | $8 | $80,400 | $0 | $80,408 | $80,408 |
| 2009 | $8 | $124,410 | $0 | $124,418 | $124,418 |
| 2008 | $8 | $120,488 | $0 | $120,496 | $120,496 |
| 2007 | $8 | $100,500 | $0 | $100,508 | $100,508 |
Deed and Sales History
| 1 | 11/01/1987 | QCD | Quit Claim Deed | O'DONNELL, KEVIN P | O'DONNELL, KEVIN P | | | $0.00 | 73729 | 87016310 |
| 2 | 01/01/1900 | OTHER | Other - Misc. Documents | Unknown | O'DONNELL, KEVIN P | | | $0.00 | 84024 | 338406 |
Payout Agreement
| No payout information available.. |