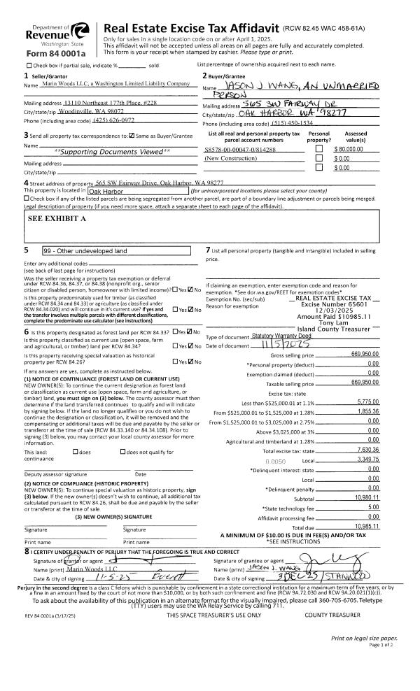
Property
Account |
| Property ID: | 617087 | Abbreviated Legal Description: | LOT 4 SP 84-100.22923.437-2980 V2 SP P111 AF#87002686 |
| Geographic ID: | R22923-411-2930 | Agent Code: | |
| Type: | Real | | |
| Tax Area: | 719 - APPRAISER-S Whid Schl Dist, outside Langley, vacant & 50 acres or less | Land Use Code | 91 |
| Open Space: | N | DFL | N |
| Historic Property: | N | Remodel Property: | N |
| Multi-Family Redevelopment: | N | | |
| Township: | 29 | Section: | 23 |
| Range: | R2 |
Location |
| Address: | | Mapsco: | |
| Neighborhood: | Cycle 3 | Map ID: | 341 |
| Neighborhood CD: | 3 |
Owner |
| Name: | SGT II, LLC | Owner ID: | 289044 |
| Mailing Address: | PO BOX 253 FREELAND, WA 98249 | % Ownership: | 100.0000000000% |
| | | Exemptions: | |
Taxes and Assessment Details
Values
| (+) Improvement Homesite Value: | + | $0 | |
| (+) Improvement Non-Homesite Value: | + | $0 | |
| (+) Land Homesite Value: | + | $0 | |
| (+) Land Non-Homesite Value: | + | $250,000 | |
| (+) Curr Use (HS): | + | $0 | $0 |
| (+) Curr Use (NHS): | + | $0 | $0 |
| | | -------------------------- | |
| (=) Market Value: | = | $250,000 | |
| (–) Productivity Loss: | – | $0 | |
| | | -------------------------- | |
| (=) Subtotal: | = | $250,000 | |
| (+) Senior Appraised Value: | + | $0 | |
| (+) Non-Senior Appraised Value: | + | $250,000 | |
| | | -------------------------- | |
| (=) Total Appraised Value: | = | $250,000 | |
| (–) Senior Exemption Loss: | – | $0 | |
| (–) Exemption Loss: | – | $0 | |
| | | -------------------------- | |
| (=) Taxable Value: | = | $250,000 | |
Taxing Jurisdiction
| Owner: | SGT II, LLC | | |
| % Ownership: | 100.0000000000% | | |
| Total Value: | $250,000 | | |
| Tax Area: | 719 - APPRAISER-S Whid Schl Dist, outside Langley, vacant & 50 acres or less |
| CF | Conservation Futures | 0.0316035091 | $250,000 | $250,000 | $7.90 | | |
| HOBOND | Hospital BOND | 0.1910887512 | $250,000 | $250,000 | $47.77 | | |
| HOGEN | Hospital GEN | 0.3902502903 | $250,000 | $250,000 | $97.56 | | |
| CE | County Current Expense | 0.3708482477 | $250,000 | $250,000 | $92.71 | | |
| CR | County Roads | 0.4584763726 | $250,000 | $250,000 | $114.62 | | |
| ISLANDEMS | Hospital GEN (EMS) | 0.5000000000 | $250,000 | $250,000 | $125.00 | | |
| LIB | Library Sno-Isle GEN | 0.3153421757 | $250,000 | $250,000 | $78.84 | | |
| PORTWHID | Port of S Whidbey GEN | 0.1094540357 | $250,000 | $250,000 | $27.36 | | |
| SCH206BOND | School 206 BOND | 0.3161759235 | $250,000 | $250,000 | $79.04 | | |
| SCH206MO | School 206 Enrichment | 0.4547169547 | $250,000 | $250,000 | $113.68 | | |
| ST | State School | 1.3035497053 | $250,000 | $250,000 | $325.89 | | |
| ST2 | State School Part 2 | 0.8169543533 | $250,000 | $250,000 | $204.24 | | |
| SWHIDPRBD | P & R S Whidbey BOND | 0.0152817568 | $250,000 | $250,000 | $3.82 | | |
| SWHIDPRBD2 | P & R S Whidbey BOND2 | 0.0138911264 | $250,000 | $250,000 | $3.47 | | |
| SWHIDPRMT | P & R S Whidbey GEN | 0.2053334452 | $250,000 | $250,000 | $51.33 | | |
| | Total Tax Rate: | 5.4929666475 | | | | | |
| | | | | Taxes w/Current Exemptions: | $1,373.23 | | |
| | | | | Taxes w/o Exemptions: | $1,373.23 | | |
Improvement / Building
Sketch
| No sketches available for this property. |
Property Image
Land
| 1 | 18 | AC (02.01-03.00) | 2.5000 | 108900.00 | 0.00 | 0.00 | 1.00 | $250,000 | $0 |
Roll Value History
| 2026 | N/A | N/A | N/A | N/A | N/A |
| 2025 | $0 | $250,000 | $0 | $250,000 | $250,000 |
| 2024 | $0 | $250,000 | $0 | $250,000 | $250,000 |
| 2023 | $0 | $230,000 | $0 | $230,000 | $230,000 |
| 2022 | $0 | $230,000 | $0 | $230,000 | $230,000 |
| 2021 | $0 | $220,000 | $0 | $220,000 | $220,000 |
| 2020 | $0 | $200,000 | $0 | $200,000 | $200,000 |
| 2019 | $0 | $220,000 | $0 | $220,000 | $220,000 |
| 2018 | $0 | $190,000 | $0 | $190,000 | $190,000 |
| 2017 | $0 | $180,000 | $0 | $180,000 | $180,000 |
| 2016 | $0 | $180,000 | $0 | $180,000 | $180,000 |
| 2015 | $0 | $180,000 | $0 | $180,000 | $180,000 |
| 2014 | $0 | $180,000 | $0 | $180,000 | $180,000 |
| 2013 | $0 | $126,795 | $0 | $126,795 | $126,795 |
| 2012 | $0 | $126,795 | $0 | $126,795 | $126,795 |
| 2011 | $0 | $126,795 | $0 | $126,795 | $126,795 |
| 2010 | $0 | $126,795 | $0 | $126,795 | $126,795 |
| 2009 | $0 | $150,000 | $0 | $150,000 | $150,000 |
| 2008 | $0 | $371,200 | $0 | $371,200 | $371,200 |
| 2007 | $0 | $364,031 | $0 | $364,031 | $364,031 |
Deed and Sales History
| 1 | 03/01/2019 | WD | Warranty Deed | ERICKSON, JEANETTE RENEE | SGT II, LLC | | | $235,000.00 | 37831 | 4460319 |
| 2 | 06/13/2013 | WD | Warranty Deed | OLSON, KURT | ERICKSON, JEANETTE RENEE | | | $220,000.00 | 11710 | 4342320 |
| 3 | 05/26/2005 | WD | Warranty Deed | COLLINS, RUTH EVELYN | OLSON, KURT | | | $259,500.00 | 52441 | 4135856 |
| 4 | 05/20/2005 | ESTSEPPROP | Establish Separate Property | COLLINS, RUTH EVELYN | COLLINS, RUTH EVELYN | | | $0.00 | 52440 | 4135857 |
| 5 | 05/06/1999 | PRD | Personal Representatives Deed | Unknown | COLLINS, RUTH EVELYN | | | $0.00 | 91774 | 99011434 |
Payout Agreement
| No payout information available.. |