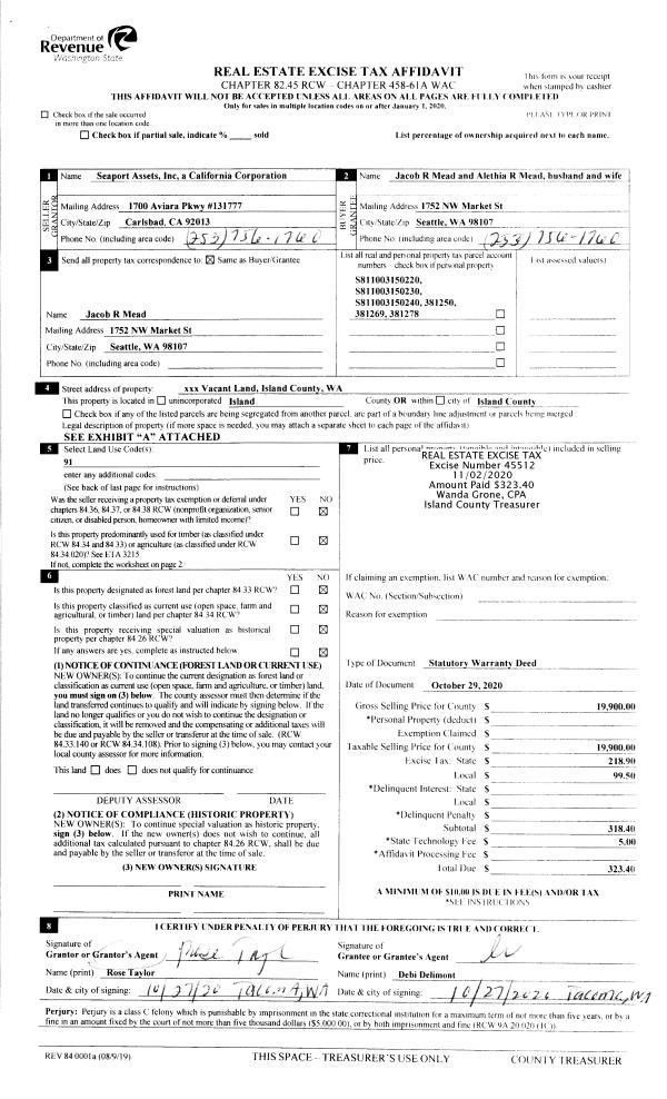
Property
Account |
| Property ID: | 61729 | Abbreviated Legal Description: | 19 - IN GL2 BG NW CR GL2 S990'TPB S TO SW CR GL2 E TO SH/LN NWLY ALG SH/LN TP E OF TPB W TPB TGW ADJ TIDES |
| Geographic ID: | R23016-149-2281 | Agent Code: | |
| Type: | Real | | |
| Tax Area: | 312 - APPRAISER-Cpvl Schl Dist, outside Cpvl, improved, greater than 1 acre | Land Use Code | 88 |
| Open Space: | Y | DFL | N |
| Historic Property: | N | Remodel Property: | N |
| Multi-Family Redevelopment: | N | | |
| Township: | 30 | Section: | 16 |
| Range: | R2 |
Location |
| Address: | 3486 CAMANO VISTA ST GREENBANK, WA 98253 | Mapsco: | |
| Neighborhood: | Cycle 3 | Map ID: | 381 |
| Neighborhood CD: | 3 |
Owner |
| Name: | RICHARDSON, DEBRA A | Owner ID: | 301339 |
| Mailing Address: | SHERRY B RICHARDSON 3486 CAMANO VISTA ST GREENBANK, WA 98253 | % Ownership: | 100.0000000000% |
| | | Exemptions: | |
Taxes and Assessment Details
Values
| (+) Improvement Homesite Value: | + | $0 | |
| (+) Improvement Non-Homesite Value: | + | $429,403 | |
| (+) Land Homesite Value: | + | $0 | |
| (+) Land Non-Homesite Value: | + | $546,633 | |
| (+) Curr Use (HS): | + | $0 | $0 |
| (+) Curr Use (NHS): | + | $666,667 | $1,696 |
| | | -------------------------- | |
| (=) Market Value: | = | $1,642,703 | |
| (–) Productivity Loss: | – | $664,971 | |
| | | -------------------------- | |
| (=) Subtotal: | = | $977,732 | |
| (+) Senior Appraised Value: | + | $0 | |
| (+) Non-Senior Appraised Value: | + | $977,732 | |
| | | -------------------------- | |
| (=) Total Appraised Value: | = | $977,732 | |
| (–) Senior Exemption Loss: | – | $0 | |
| (–) Exemption Loss: | – | $0 | |
| | | -------------------------- | |
| (=) Taxable Value: | = | $977,732 | |
Taxing Jurisdiction
| Owner: | RICHARDSON, DEBRA A | | |
| % Ownership: | 100.0000000000% | | |
| Total Value: | $1,642,703 | | |
| Tax Area: | 312 - APPRAISER-Cpvl Schl Dist, outside Cpvl, improved, greater than 1 acre |
| CF | Conservation Futures | 0.0316035091 | $977,732 | $977,732 | $30.90 | | |
| CEM2 | Cemetery #2 | 0.0095056933 | $977,732 | $977,732 | $9.29 | | |
| FIRE5 | Fire & Rescue Dist #5 C Whidbey GEN | 1.2008080668 | $977,732 | $977,732 | $1,174.07 | | |
| FIRE5BOND | Fire & Rescue Dist #5 C Whidbey BOND | 0.1400090713 | $977,732 | $977,732 | $136.89 | | |
| HOBOND | Hospital BOND | 0.1910887512 | $977,732 | $977,732 | $186.83 | | |
| HOGEN | Hospital GEN | 0.3902502903 | $977,732 | $977,732 | $381.56 | | |
| CE | County Current Expense | 0.3708482477 | $977,732 | $977,732 | $362.59 | | |
| CR | County Roads | 0.4584763726 | $977,732 | $977,732 | $448.27 | | |
| ISLANDEMS | Hospital GEN (EMS) | 0.5000000000 | $977,732 | $977,732 | $488.87 | | |
| LIB | Library Sno-Isle GEN | 0.3153421757 | $977,732 | $977,732 | $308.32 | | |
| LIBCAP | Library Sno-Isle BOND (Cap Fac Imp Area) | 0.0543427938 | $977,732 | $977,732 | $53.13 | | |
| POCOUP | Port of Coupeville GEN | 0.1093371703 | $977,732 | $977,732 | $106.90 | | |
| POCOUPIDD | Port of Coupeville IDD | 0.3409740022 | $977,732 | $977,732 | $333.38 | | |
| COUPSDTECH | School 204 CP (TECH) | 0.7545480007 | $977,732 | $977,732 | $737.75 | | |
| SCH204MO | School 204 Enrichment | 0.6716186034 | $977,732 | $977,732 | $656.66 | | |
| ST | State School | 1.3035497053 | $977,732 | $977,732 | $1,274.52 | | |
| ST2 | State School Part 2 | 0.8169543533 | $977,732 | $977,732 | $798.76 | | |
| | Total Tax Rate: | 7.6592568070 | | | | | |
| | | | | Taxes w/Current Exemptions: | $7,488.69 | | |
| | | | | Taxes w/o Exemptions: | $7,488.69 | | |
Improvement / Building
| Improvement #1: | RESIDENTIAL | State Code: | Y | 4096.9 sqft | Value: | $429,403 |
| Bathrooms: | 3 | Bedrooms: | 3 | | Ceiling: | BEAM PAINTED | Exterior Wall/Cover: | WOOD SIDING | | Floor Covering: | CARPET/VINYL 60-40 | Floor Structure: | WOOD W/SUBFLOOR | | Foundation: | CONCRETE | Heating: | B/B HOT WATER-OIL | | Interior Finish: | DRYWALL PAINT | Plumbing Fixture Cnt: | 12 | | Roof Slope: | 4" IN 12" | Roof Structure/Cover: | BEAM ALUMINUM HEAVY |
|
| | Type | Description | Class CD | Sub Class CD | Year Built | Area |
| | BAS | BASE/MAIN FLOOR | 3 | 0 | 1972 | 2031.2 |
| | DWN | DOWNSTAIRS LIVING AREA | 3 | 0 | 1972 | 2065.7 |
| | OP1 | OPEN PORCH SLAB | 3 | 0 | 1972 | 1402.5 |
| | OP4 | OPEN PORCH W/CEILING-ROOF | 3 | 0 | 1972 | 34.4 |
| | DGR | DETACHED GARAGE | 3 | 0 | 1972 | 490.9 |
| | OWP | OPEN WOOD PORCH W/STEPS | 3 | 0 | 1972 | 1336.2 |
| | DGR | DETACHED GARAGE | 3 | 0 | 1972 | 616.0 |
| | OCP | OPEN CARPORT | 3 | 0 | 1972 | 280.0 |
Sketch
Property Image
Land
| 1 | HB | HIGH BLUFF | 1.0000 | 43560.00 | 330.00 | 0.00 | 1.00 | $410,000 | $0 |
| 2 | 55 | TIDES | 0.0000 | 0.00 | 330.00 | 0.00 | 1.00 | $3,300 | $0 |
| 3 | 88 | DESIGNATED FOREST | 8.4000 | 365904.00 | 0.00 | 0.00 | 1.00 | $560,000 | $1,562 |
| 4 | 88 | DESIGNATED FOREST | 1.6000 | 69696.00 | 0.00 | 0.00 | 1.00 | $106,667 | $134 |
| 5 | HB | HIGH BLUFF | 2.0000 | 87120.00 | 330.00 | 0.00 | 1.00 | $133,333 | $0 |
Roll Value History
| 2026 | N/A | N/A | N/A | N/A | N/A |
| 2025 | $429,403 | $1,213,300 | $1,696 | $977,732 | $977,732 |
| 2024 | $428,105 | $1,153,300 | $1,705 | $949,777 | $949,777 |
| 2023 | $434,570 | $1,103,300 | $1,634 | $693,350 | $693,350 |
| 2022 | $399,346 | $1,053,301 | $1,634 | $646,588 | $646,588 |
| 2021 | $352,410 | $903,300 | $1,634 | $565,036 | $565,036 |
| 2020 | $345,660 | $853,300 | $1,634 | $546,748 | $546,748 |
| 2019 | $191,713 | $908,300 | $1,578 | $405,437 | $405,437 |
| 2018 | $192,481 | $745,472 | $1,559 | $769,512 | $769,512 |
| 2017 | $194,016 | $745,472 | $1,559 | $771,047 | $771,047 |
| 2016 | $197,085 | $745,472 | $980 | $773,537 | $773,537 |
| 2015 | $200,154 | $745,472 | $980 | $776,606 | $776,606 |
| 2014 | $203,222 | $745,472 | $980 | $779,674 | $779,674 |
| 2013 | $204,410 | $745,472 | $980 | $780,862 | $780,862 |
| 2012 | $207,564 | $575,472 | $0 | $783,036 | $783,036 |
| 2011 | $210,720 | $575,472 | $0 | $786,192 | $786,192 |
| 2010 | $231,706 | $575,472 | $0 | $807,178 | $807,178 |
| 2009 | $241,641 | $732,866 | $0 | $974,507 | $974,507 |
| 2008 | $245,231 | $732,866 | $0 | $978,097 | $978,097 |
| 2007 | $233,152 | $432,996 | $0 | $666,148 | $666,148 |
Deed and Sales History
| 1 | 09/24/2021 | SPWARDEED | Special Warranty Deed | MONTAGUE, JAMES D | RICHARDSON, DEBRA A | | | $0.00 | 50237 | 4530296 |
| 2 | 09/15/2003 | WD | Warranty Deed | MONTAGUE, JAMES D | MONTAGUE, JAMES D | | | $247,125.00 | 34620 | 4079060 |
| 3 | 08/01/2000 | WD | Warranty Deed | RAZMUS, JOHN P | MONTAGUE, JAMES D | | | $450,000.00 | 3197 | 20014952 |
| 4 | 01/01/1900 | OTHER | Other - Misc. Documents | Unknown | RAZMUS, JOHN P | | | $0.00 | 0 | 0 |
Payout Agreement
| No payout information available.. |