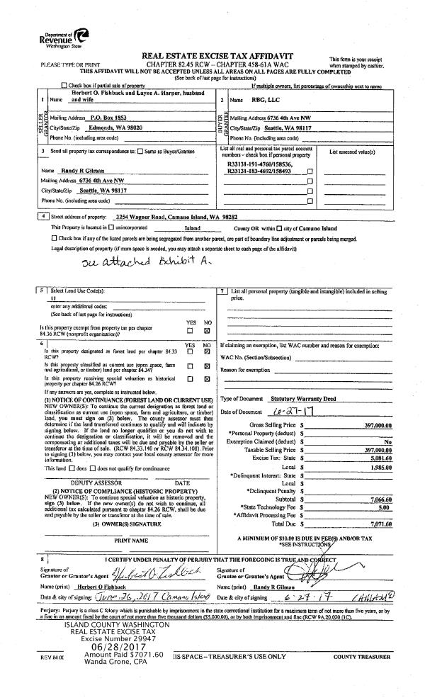
Property
Account |
| Property ID: | 617372 | Abbreviated Legal Description: | LOT 1 SP 86-21.13208.199-1650 V2 SP P115 AF#87004317 ALTERATION (MISC# 81423) LOT 1 SP ALTERATION 328-08.13208.165-1820, .165-1490 & .232-1630 AF#4263101 |
| Geographic ID: | R13208-165-1820 | Agent Code: | |
| Type: | Real | | |
| Tax Area: | 112 - APPRAISER-OH Schl Dist, outside OH, improved, greater than 1 acre | Land Use Code | 11 |
| Open Space: | N | DFL | N |
| Historic Property: | N | Remodel Property: | N |
| Multi-Family Redevelopment: | N | | |
| Township: | 32 | Section: | 08 |
| Range: | R1 |
Location |
| Address: | 1963 ZYLSTRA RD OAK HARBOR, WA 98277 | Mapsco: | |
| Neighborhood: | Cycle 1 | Map ID: | 108 |
| Neighborhood CD: | 1 |
Owner |
| Name: | SWITZER, RICHARD | Owner ID: | 279817 |
| Mailing Address: | 1963 ZYLSTRA RD OAK HARBOR, WA 98277 | % Ownership: | 100.0000000000% |
| | | Exemptions: | |
Taxes and Assessment Details
Values
| (+) Improvement Homesite Value: | + | $0 | |
| (+) Improvement Non-Homesite Value: | + | $352,979 | |
| (+) Land Homesite Value: | + | $0 | |
| (+) Land Non-Homesite Value: | + | $290,000 | |
| (+) Curr Use (HS): | + | $0 | $0 |
| (+) Curr Use (NHS): | + | $0 | $0 |
| | | -------------------------- | |
| (=) Market Value: | = | $642,979 | |
| (–) Productivity Loss: | – | $0 | |
| | | -------------------------- | |
| (=) Subtotal: | = | $642,979 | |
| (+) Senior Appraised Value: | + | $0 | |
| (+) Non-Senior Appraised Value: | + | $642,979 | |
| | | -------------------------- | |
| (=) Total Appraised Value: | = | $642,979 | |
| (–) Senior Exemption Loss: | – | $0 | |
| (–) Exemption Loss: | – | $0 | |
| | | -------------------------- | |
| (=) Taxable Value: | = | $642,979 | |
Taxing Jurisdiction
| Owner: | SWITZER, RICHARD | | |
| % Ownership: | 100.0000000000% | | |
| Total Value: | $642,979 | | |
| Tax Area: | 112 - APPRAISER-OH Schl Dist, outside OH, improved, greater than 1 acre |
| CF | Conservation Futures | 0.0316035091 | $642,979 | $642,979 | $20.32 | | |
| CEM1 | Cemetery #1 | 0.0040320932 | $642,979 | $642,979 | $2.59 | | |
| FIRE2 | Fire & Rescue Dist #2 N Whidbey GEN | 0.5475949600 | $642,979 | $642,979 | $352.09 | | |
| HOBOND | Hospital BOND | 0.1910887512 | $642,979 | $642,979 | $122.87 | | |
| HOGEN | Hospital GEN | 0.3902502903 | $642,979 | $642,979 | $250.92 | | |
| CE | County Current Expense | 0.3708482477 | $642,979 | $642,979 | $238.45 | | |
| CR | County Roads | 0.4584763726 | $642,979 | $642,979 | $294.79 | | |
| ISLANDEMS | Hospital GEN (EMS) | 0.5000000000 | $642,979 | $642,979 | $321.49 | | |
| LIB | Library Sno-Isle GEN | 0.3153421757 | $642,979 | $642,979 | $202.76 | | |
| NWHIDPRMT | P & R N Whidbey GEN | 0.2004466701 | $642,979 | $642,979 | $128.88 | | |
| SCH201MO | School 201 Enrichment | 1.8559231640 | $642,979 | $642,979 | $1,193.32 | | |
| ST | State School | 1.3035497053 | $642,979 | $642,979 | $838.16 | | |
| ST2 | State School Part 2 | 0.8169543533 | $642,979 | $642,979 | $525.28 | | |
| | Total Tax Rate: | 6.9861102925 | | | | | |
| | | | | Taxes w/Current Exemptions: | $4,491.92 | | |
| | | | | Taxes w/o Exemptions: | $4,491.92 | | |
Improvement / Building
| Improvement #1: | RESIDENTIAL | State Code: | Y | 3264.0 sqft | Value: | $352,979 |
| Bathrooms: | 2 | Bedrooms: | 3 | | Ceiling: | DRYWALL PAINTED | Exterior Wall/Cover: | WOOD SIDING | | Floor Covering: | HARDWOOD/CARP 20-80 | Floor Structure: | WOOD W/SUBFLOOR | | Foundation: | CONCRETE | Heating: | FHA ELECTRIC | | Interior Finish: | DRYWALL PAINT | Plumbing Fixture Cnt: | 14 | | Roof Slope: | 4" IN 12" | Roof Structure/Cover: | CJ ASPHALT |
|
| | Type | Description | Class CD | Sub Class CD | Year Built | Area |
| | BAS | BASE/MAIN FLOOR | 3 | 0 | 1981 | 1984.0 |
| | UB8 | BASEMENT UNFINISHED 8" | 3 | 0 | 1981 | 220.0 |
| | BGR | BASEMENT GARAGE | 3 | 0 | 1981 | 484.0 |
| | OWP | OPEN WOOD PORCH W/STEPS | 3 | 0 | 1981 | 450.0 |
| | DWN | DOWNSTAIRS LIVING AREA | 3 | 0 | 1981 | 1280.0 |
| | DGR | DETACHED GARAGE | 3 | 0 | 1981 | 624.0 |
| | CPD | OPEN CARPORT DIRT FLOOR | 3 | 0 | 1981 | 440.0 |
| | DGR | DETACHED GARAGE | 3 | 0 | 1981 | 1296.0 |
Sketch
Property Image
Land
| 1 | 32 | AC (03.01-09.99) | 4.3800 | 0.00 | 0.00 | 0.00 | 1.00 | $290,000 | $0 |
Roll Value History
| 2026 | N/A | N/A | N/A | N/A | N/A |
| 2025 | $352,979 | $290,000 | $0 | $642,979 | $642,979 |
| 2024 | $358,386 | $260,000 | $0 | $618,386 | $618,386 |
| 2023 | $358,386 | $250,000 | $0 | $608,386 | $608,386 |
| 2022 | $329,421 | $220,000 | $0 | $549,421 | $549,421 |
| 2021 | $290,711 | $190,000 | $0 | $480,711 | $480,711 |
| 2020 | $284,596 | $140,000 | $0 | $424,596 | $424,596 |
| 2019 | $228,810 | $200,000 | $0 | $428,810 | $428,810 |
| 2018 | $229,625 | $170,000 | $0 | $399,625 | $399,625 |
| 2017 | $217,106 | $160,000 | $0 | $377,106 | $377,106 |
| 2016 | $220,139 | $160,000 | $0 | $380,139 | $380,139 |
| 2015 | $223,171 | $135,000 | $0 | $358,171 | $358,171 |
| 2014 | $226,203 | $135,000 | $0 | $361,203 | $361,203 |
| 2013 | $229,237 | $108,405 | $0 | $337,642 | $337,642 |
| 2012 | $232,268 | $108,405 | $0 | $340,673 | $340,673 |
| 2011 | $241,037 | $120,450 | $0 | $361,487 | $361,487 |
| 2010 | $247,567 | $120,450 | $0 | $368,017 | $368,017 |
| 2009 | $257,656 | $164,250 | $0 | $421,906 | $421,906 |
| 2008 | $269,695 | $164,250 | $0 | $433,945 | $433,945 |
| 2007 | $256,669 | $178,363 | $0 | $435,032 | $435,032 |
Deed and Sales History
| 1 | 04/28/2017 | WD | Warranty Deed | ISLAND MUSIC ENTERPRISES LLC | SWITZER, RICHARD | | | $0.00 | 29215 | 4422161 |
| 2 | 05/17/2010 | QCD | Quit Claim Deed | SWITZER TRUSTEE, RICHARD J | ISLAND MUSIC ENTERPRISES LLC, | | | $0.00 | 1175 | 4273898 |
| 3 | 10/02/2008 | WD | Warranty Deed | FROSTAD, JOHN G | SWITZER TRUSTEE, RICHARD J | | | $425,000.00 | 82772 | 4238835 |
| 4 | 04/26/2006 | WD | Warranty Deed | ABRAHAMSE, GREGORY A | FROSTAD, JOHN G | | | $420,000.00 | 61820 | 4168751 |
| 5 | 08/07/2003 | WD | Warranty Deed | TAKAMATSU, KAZUHIRO | ABRAHAMSE, GREGORY A | | | $273,818.00 | 33504 | 4070568 |
| 6 | 11/01/1989 | WD | Warranty Deed | MULLINS, KENNETH P | TAKAMATSU, KAZUHIRO | | | $159,800.00 | 95159 | 89016630 |
| 7 | 01/01/1900 | OTHER | Other - Misc. Documents | Unknown | MULLINS, KENNETH P | | | $0.00 | 0 | 0 |
Payout Agreement
| No payout information available.. |