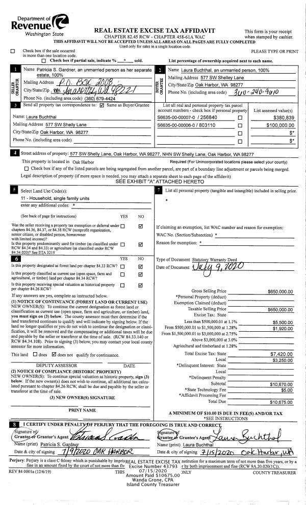
Property
Account |
| Property ID: | 617737 | Abbreviated Legal Description: | LOT B SP 87-03.22915.096-2540 & .110-2550 V2 SP P116 AF#87004443 TGW & SUB EZ AF#88013734 AF#93016581 |
| Geographic ID: | R22915-110-2590 | Agent Code: | |
| Type: | Real | | |
| Tax Area: | 710 - APPRAISER-S Whid Schl Dist, outside Langley, improved & 1 acre or less | Land Use Code | 11 |
| Open Space: | N | DFL | N |
| Historic Property: | N | Remodel Property: | N |
| Multi-Family Redevelopment: | N | | |
| Township: | 29 | Section: | 15 |
| Range: | R2 |
Location |
| Address: | 1392 MANOR WAY FREELAND, WA 98249 | Mapsco: | |
| Neighborhood: | Cycle 3 | Map ID: | 329 |
| Neighborhood CD: | 3 |
Owner |
| Name: | GRISWOLD, WILLIAM L | Owner ID: | 296952 |
| Mailing Address: | 1392 MANOR WAY FREELAND, WA 98249 | % Ownership: | 100.0000000000% |
| | | Exemptions: | |
Taxes and Assessment Details
Values
| (+) Improvement Homesite Value: | + | $0 | |
| (+) Improvement Non-Homesite Value: | + | $541,191 | |
| (+) Land Homesite Value: | + | $0 | |
| (+) Land Non-Homesite Value: | + | $340,000 | |
| (+) Curr Use (HS): | + | $0 | $0 |
| (+) Curr Use (NHS): | + | $0 | $0 |
| | | -------------------------- | |
| (=) Market Value: | = | $881,191 | |
| (–) Productivity Loss: | – | $0 | |
| | | -------------------------- | |
| (=) Subtotal: | = | $881,191 | |
| (+) Senior Appraised Value: | + | $0 | |
| (+) Non-Senior Appraised Value: | + | $881,191 | |
| | | -------------------------- | |
| (=) Total Appraised Value: | = | $881,191 | |
| (–) Senior Exemption Loss: | – | $0 | |
| (–) Exemption Loss: | – | $0 | |
| | | -------------------------- | |
| (=) Taxable Value: | = | $881,191 | |
Taxing Jurisdiction
| Owner: | GRISWOLD, WILLIAM L | | |
| % Ownership: | 100.0000000000% | | |
| Total Value: | $881,191 | | |
| Tax Area: | 710 - APPRAISER-S Whid Schl Dist, outside Langley, improved & 1 acre or less |
| CF | Conservation Futures | 0.0316035091 | $881,191 | $881,191 | $27.85 | | |
| FIRE3 | Fire & Rescue Dist #3 S Whidbey GEN | 1.2004855531 | $881,191 | $881,191 | $1,057.86 | | |
| HOBOND | Hospital BOND | 0.1910887512 | $881,191 | $881,191 | $168.39 | | |
| HOGEN | Hospital GEN | 0.3902502903 | $881,191 | $881,191 | $343.89 | | |
| CE | County Current Expense | 0.3708482477 | $881,191 | $881,191 | $326.79 | | |
| CR | County Roads | 0.4584763726 | $881,191 | $881,191 | $404.01 | | |
| ISLANDEMS | Hospital GEN (EMS) | 0.5000000000 | $881,191 | $881,191 | $440.60 | | |
| LIB | Library Sno-Isle GEN | 0.3153421757 | $881,191 | $881,191 | $277.88 | | |
| PORTWHID | Port of S Whidbey GEN | 0.1094540357 | $881,191 | $881,191 | $96.45 | | |
| SCH206BOND | School 206 BOND | 0.3161759235 | $881,191 | $881,191 | $278.61 | | |
| SCH206MO | School 206 Enrichment | 0.4547169547 | $881,191 | $881,191 | $400.69 | | |
| ST | State School | 1.3035497053 | $881,191 | $881,191 | $1,148.68 | | |
| ST2 | State School Part 2 | 0.8169543533 | $881,191 | $881,191 | $719.89 | | |
| SWHIDPRBD | P & R S Whidbey BOND | 0.0152817568 | $881,191 | $881,191 | $13.47 | | |
| SWHIDPRBD2 | P & R S Whidbey BOND2 | 0.0138911264 | $881,191 | $881,191 | $12.24 | | |
| SWHIDPRMT | P & R S Whidbey GEN | 0.2053334452 | $881,191 | $881,191 | $180.94 | | |
| | Total Tax Rate: | 6.6934522006 | | | | | |
| | | | | Taxes w/Current Exemptions: | $5,898.24 | | |
| | | | | Taxes w/o Exemptions: | $5,898.24 | | |
Improvement / Building
| Improvement #1: | RESIDENTIAL | State Code: | Y | 2337.9 sqft | Value: | $541,191 |
| Bathrooms: | 4 | Bedrooms: | 3 | | Ceiling: | DRYWALL PAINTED | Cooling: | HEAT PUMP/CONV/V | | Exterior Wall/Cover: | SHINGLE | Floor Covering: | HARDWOOD/CARP 20-80 | | Floor Structure: | WOOD W/SUBFLOOR | Foundation: | CONCRETE | | Interior Finish: | DRYWALL PAINT | Plumbing Fixture Cnt: | 14 | | Roof Slope: | 6" IN 12" | Roof Structure/Cover: | BEAM WOOD SHAKES |
|
| | Type | Description | Class CD | Sub Class CD | Year Built | Area |
| | BAS | BASE/MAIN FLOOR | 5 | 0 | 1988 | 1589.4 |
| | UB8 | BASEMENT UNFINISHED 8" | 5 | 0 | 1988 | 837.5 |
| | BGR | BASEMENT GARAGE | 5 | 0 | 1988 | 753.6 |
| | UPS | UPPER STORY | 5 | 0 | 1988 | 748.5 |
| | BAW | BALCONY WOOD RAIL | 5 | 0 | 1988 | 60.0 |
| | OWP | OPEN WOOD PORCH W/STEPS | 5 | 0 | 1988 | 167.1 |
| | OWP | OPEN WOOD PORCH W/STEPS | 5 | 0 | 1988 | 241.0 |
Sketch
Property Image
Land
| 1 | 15 | SQ (12001-21780) | 0.2900 | 12632.40 | 0.00 | 0.00 | 1.00 | $340,000 | $0 |
Roll Value History
| 2026 | N/A | N/A | N/A | N/A | N/A |
| 2025 | $541,191 | $340,000 | $0 | $881,191 | $881,191 |
| 2024 | $548,581 | $320,000 | $0 | $868,581 | $868,581 |
| 2023 | $547,147 | $300,000 | $0 | $847,147 | $847,147 |
| 2022 | $502,040 | $280,000 | $0 | $782,040 | $782,040 |
| 2021 | $442,280 | $190,000 | $0 | $632,280 | $632,280 |
| 2020 | $430,741 | $180,000 | $0 | $610,741 | $610,741 |
| 2019 | $318,925 | $190,000 | $0 | $508,925 | $508,925 |
| 2018 | $319,986 | $165,000 | $0 | $484,986 | $484,986 |
| 2017 | $322,016 | $165,000 | $0 | $487,016 | $487,016 |
| 2016 | $326,252 | $125,000 | $0 | $451,252 | $451,252 |
| 2015 | $330,488 | $125,000 | $0 | $455,488 | $455,488 |
| 2014 | $334,726 | $125,000 | $0 | $459,726 | $459,726 |
| 2013 | $340,391 | $125,000 | $0 | $465,391 | $465,391 |
| 2012 | $329,440 | $140,250 | $0 | $469,690 | $469,690 |
| 2011 | $333,804 | $165,000 | $0 | $498,804 | $498,804 |
| 2010 | $345,754 | $165,000 | $0 | $510,754 | $510,754 |
| 2009 | $360,736 | $200,000 | $0 | $560,736 | $560,736 |
| 2008 | $365,197 | $223,000 | $0 | $588,197 | $588,197 |
| 2007 | $371,399 | $154,500 | $0 | $525,899 | $525,899 |
Deed and Sales History
| 1 | 05/01/2015 | TOD | Transfer On Death Deed | GRISWOLD, MARY LEE | GRISWOLD, WILLIAM L | | | $0.00 | 45233 | 4377626 |
| 2 | 03/19/2001 | WD | Warranty Deed | GRAY, DAVID M | GRISWOLD, MARY LEE | | | $385,000.00 | 10949 | 20028058 |
| 3 | 08/01/1988 | QCD | Quit Claim Deed | GRAY, DAVID M | GRAY, DAVID M | | | $0.00 | 82966 | 88011367 |
| 4 | 04/01/1987 | WD | Warranty Deed | OSLAND, JOHN A | GRAY, DAVID M | | | $31,500.00 | 71087 | 87005511 |
| 5 | 01/01/1900 | OTHER | Other - Misc. Documents | Unknown | OSLAND, JOHN A | | | $0.00 | 63325 | 86015001 |
Payout Agreement
| No payout information available.. |