Property
Account |
| Property ID: | 617979 | Abbreviated Legal Description: | W/2 OF S330'OF NW SE EX: BG NWCR W/2 OF S330'OF NW SE S88*E36.37'TP ELN GOLDIE RD TPB S88*E390' S1*W330.11' N88*W326.50' NWLY TPB EX CO RD TGW EZ FR 149-3000 |
| Geographic ID: | R13326-149-3180 | Agent Code: | |
| Type: | Real | | |
| Tax Area: | 100 - APPRAISER-OH Schl Dist, in OH | Land Use Code | 68 |
| Open Space: | N | DFL | N |
| Historic Property: | N | Remodel Property: | N |
| Multi-Family Redevelopment: | N | | |
| Township: | 33 | Section: | 26 |
| Range: | R1 |
Location |
| Address: | 981 NE 21ST CT OAK HARBOR, WA 98277 | Mapsco: | |
| Neighborhood: | 6AcOH-goldie rd | Map ID: | 231 |
| Neighborhood CD: | 6AcOHgolde |
Owner |
| Name: | OAK HARBOR INVEST GP | Owner ID: | 25284 |
| Mailing Address: | C/O MATT RIDUFF 7235 WEST RIDGE RD MERCER ISLAND, WA 98040 | % Ownership: | 100.0000000000% |
| | | Exemptions: | EX |
Taxes and Assessment Details
Values
| (+) Improvement Homesite Value: | + | $0 | |
| (+) Improvement Non-Homesite Value: | + | $769,004 | |
| (+) Land Homesite Value: | + | $0 | |
| (+) Land Non-Homesite Value: | + | $446,490 | |
| (+) Curr Use (HS): | + | $0 | $0 |
| (+) Curr Use (NHS): | + | $0 | $0 |
| | | -------------------------- | |
| (=) Market Value: | = | $1,215,494 | |
| (–) Productivity Loss: | – | $0 | |
| | | -------------------------- | |
| (=) Subtotal: | = | $1,215,494 | |
| (+) Senior Appraised Value: | + | $0 | |
| (+) Non-Senior Appraised Value: | + | $1,215,494 | |
| | | -------------------------- | |
| (=) Total Appraised Value: | = | $1,215,494 | |
| (–) Senior Exemption Loss: | – | $0 | |
| (–) Exemption Loss: | – | $1,215,494 | |
| | | -------------------------- | |
| (=) Taxable Value: | = | $0 | |
Taxing Jurisdiction
| Owner: | OAK HARBOR INVEST GP | | |
| % Ownership: | 100.0000000000% | | |
| Total Value: | $1,215,494 | | |
| Tax Area: | 100 - APPRAISER-OH Schl Dist, in OH |
| CF | Conservation Futures | 0.0316035091 | $1,215,494 | $0 | $0.00 | | |
| CEM1 | Cemetery #1 | 0.0040320932 | $1,215,494 | $0 | $0.00 | | |
| COH | City of Oak Harbor | 2.3001546061 | $1,215,494 | $0 | $0.00 | | |
| OAKBOND | City of Oak Harbor BOND | 0.1926904192 | $1,215,494 | $0 | $0.00 | | |
| HOBOND | Hospital BOND | 0.1910887512 | $1,215,494 | $0 | $0.00 | | |
| HOGEN | Hospital GEN | 0.3902502903 | $1,215,494 | $0 | $0.00 | | |
| CE | County Current Expense | 0.3708482477 | $1,215,494 | $0 | $0.00 | | |
| ISLANDEMS | Hospital GEN (EMS) | 0.5000000000 | $1,215,494 | $0 | $0.00 | | |
| LIB | Library Sno-Isle GEN | 0.3153421757 | $1,215,494 | $0 | $0.00 | | |
| NWHIDPRMT | P & R N Whidbey GEN | 0.2004466701 | $1,215,494 | $0 | $0.00 | | |
| SCH201MO | School 201 Enrichment | 1.8559231640 | $1,215,494 | $0 | $0.00 | | |
| ST | State School | 1.3035497053 | $1,215,494 | $0 | $0.00 | | |
| ST2 | State School Part 2 | 0.8169543533 | $1,215,494 | $0 | $0.00 | | |
| | Total Tax Rate: | 8.4728839852 | | | | | |
| | | | | Taxes w/Current Exemptions: | $0.00 | | |
| | | | | Taxes w/o Exemptions: | $10,298.73 | | |
Improvement / Building
| Improvement #1: | COMMERCIAL | State Code: | F1 | 5993.0 sqft | Value: | $769,004 |
| Bathrooms: | 0 | Bedrooms: | 0 | | Ceiling: | SUSPENDED | Exterior Wall/Cover: | WD/WD OR STEEL STUDS | | Floor Covering: | CARPET 100% | Floor Structure: | CONCRETE ON GROUND | | Foundation: | SLAB | Heating: | ZONED AC/HEAT | | Interior Finish: | OFFICE | Plumbing Fixture Cnt: | 1 | | Roof Structure/Cover: | COMP OPEN WOOD |   |   |
|
| | Type | Description | Class CD | Sub Class CD | Year Built | Area |
| | BAS | BASE/MAIN FLOOR | 2 | 0 | 1993 | 5993.0 |
| | OP1 | OPEN PORCH SLAB | 2 | 0 | 1993 | 1676.0 |
| | OP4 | OPEN PORCH W/CEILING-ROOF | 2 | 0 | 1993 | 98.0 |
| | oPV1 | PV/ASPH 2" | 2 | 0 | 1993 | 13500.0 |
Sketch
Property Image
Land
| 1 | 64 | PERSONAL BUSINESS | 2.0500 | 89298.00 | 0.00 | 0.00 | 1.00 | $446,490 | $0 |
Roll Value History
| 2026 | N/A | N/A | N/A | N/A | N/A |
| 2025 | $769,004 | $446,490 | $0 | $1,215,494 | $0 |
| 2024 | $788,734 | $446,490 | $0 | $1,235,224 | $0 |
| 2023 | $808,461 | $446,490 | $0 | $1,254,951 | $0 |
| 2022 | $579,346 | $446,490 | $0 | $1,025,836 | $0 |
| 2021 | $576,717 | $446,490 | $0 | $1,023,207 | $0 |
| 2020 | $576,387 | $446,490 | $0 | $1,022,877 | $0 |
| 2019 | $551,016 | $357,192 | $0 | $908,208 | $0 |
| 2018 | $551,064 | $312,543 | $0 | $863,607 | $0 |
| 2017 | $551,157 | $379,517 | $0 | $930,674 | $0 |
| 2016 | $463,975 | $379,517 | $0 | $843,492 | $0 |
| 2015 | $463,975 | $379,517 | $0 | $843,492 | $0 |
| 2014 | $463,975 | $379,517 | $0 | $843,492 | $0 |
| 2013 | $463,975 | $379,517 | $0 | $843,492 | $0 |
| 2012 | $463,975 | $379,517 | $0 | $843,492 | $0 |
| 2011 | $463,975 | $379,517 | $0 | $843,492 | $0 |
| 2010 | $562,570 | $379,517 | $0 | $942,087 | $942,087 |
| 2009 | $569,535 | $415,236 | $0 | $984,771 | $984,771 |
| 2008 | $590,729 | $436,667 | $0 | $1,027,396 | $1,027,396 |
| 2007 | $598,219 | $436,667 | $0 | $1,034,886 | $1,034,886 |
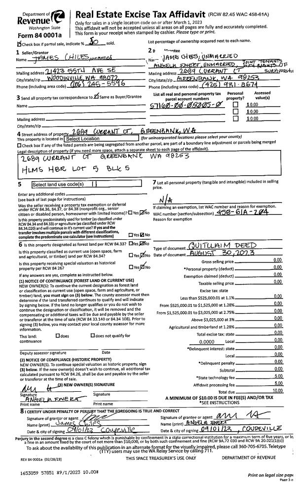
Deed and Sales History
| 1 | 07/23/2007 | QCD | Quit Claim Deed | 1031 TG OAK HARBOR LLC, | OAK HARBOR INVEST., G.P., | | | $0.00 | 72498 | 4207907 |
| 2 | 01/08/2007 | WD | Warranty Deed | PRICE TRUSTEE, WILLIAM CARROLL | 1031 TG OAK HARBOR LLC, | | | $970,000.00 | 70370 | 4193274 |
| 3 | 12/02/2004 | PRD | Personal Representatives Deed | PRICE, WILLIAM C | PRICE TRUSTEE, WILLIAM CARROLL | | | $0.00 | 52084 | 4122655 |
| 4 | 12/02/2004 | QCD | Quit Claim Deed | OAK, HARBOR I | PRICE, WILLIAM C | | | $0.00 | 50083 | 4122654 |
| 5 | 10/01/1992 | WD | Warranty Deed | CAPITAL, DEVELOPMENT C | OAK, HARBOR I | | | $77,785.00 | 24259 | 92020783 |
| 6 | 01/01/1900 | TRUSTEED | Trustee's Deed | Unknown | CAPITAL, DEVELOPMENT C | | | $0.00 | 60474 | 0 |
Payout Agreement
| No payout information available.. |