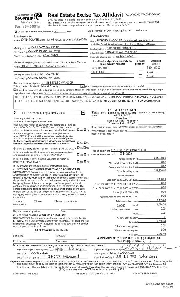
Property
Account |
| Property ID: | 618148 | Abbreviated Legal Description: | LOT 4 V6 SURVEYS P253 AF#87008384 TGW EZ COMM BCH AF#4410866 AKA LOT 4 - BROWN'S POINT |
| Geographic ID: | R33217-323-3560 | Agent Code: | |
| Type: | Real | | |
| Tax Area: | 512 - APPRAISER-Stan/Cam Schl Dist, improved, greater than 1 acre | Land Use Code | 11 |
| Open Space: | N | DFL | N |
| Historic Property: | N | Remodel Property: | N |
| Multi-Family Redevelopment: | N | | |
| Township: | 32 | Section: | 17 |
| Range: | R3 |
Location |
| Address: | 673 TILLICUM WAY CAMANO ISLAND, WA 98282 | Mapsco: | |
| Neighborhood: | North Camano | Map ID: | 956 |
| Neighborhood CD: | 06-C |
Owner |
| Name: | FROGCLIFF LLC | Owner ID: | 153958 |
| Mailing Address: | C/O BRIAN WHITAKER 801 2ND AVE SUITE 1600 SEATTLE, WA 98104 | % Ownership: | 100.0000000000% |
| | | Exemptions: | |
Taxes and Assessment Details
Values
| (+) Improvement Homesite Value: | + | $0 | |
| (+) Improvement Non-Homesite Value: | + | $900,363 | |
| (+) Land Homesite Value: | + | $0 | |
| (+) Land Non-Homesite Value: | + | $1,200,000 | |
| (+) Curr Use (HS): | + | $0 | $0 |
| (+) Curr Use (NHS): | + | $0 | $0 |
| | | -------------------------- | |
| (=) Market Value: | = | $2,100,363 | |
| (–) Productivity Loss: | – | $0 | |
| | | -------------------------- | |
| (=) Subtotal: | = | $2,100,363 | |
| (+) Senior Appraised Value: | + | $0 | |
| (+) Non-Senior Appraised Value: | + | $2,100,363 | |
| | | -------------------------- | |
| (=) Total Appraised Value: | = | $2,100,363 | |
| (–) Senior Exemption Loss: | – | $0 | |
| (–) Exemption Loss: | – | $0 | |
| | | -------------------------- | |
| (=) Taxable Value: | = | $2,100,363 | |
Taxing Jurisdiction
| Owner: | FROGCLIFF LLC | | |
| % Ownership: | 100.0000000000% | | |
| Total Value: | $2,100,363 | | |
| Tax Area: | 512 - APPRAISER-Stan/Cam Schl Dist, improved, greater than 1 acre |
| CF | Conservation Futures | 0.0316035091 | $2,100,363 | $2,100,363 | $66.38 | | |
| EMS1 | Fire & Rescue Dist #1 Camano GEN (EMS) | 0.3677864386 | $2,100,363 | $2,100,363 | $772.49 | | |
| FIRE1 | Fire & Rescue Dist #1 Camano GEN | 1.2502910536 | $2,100,363 | $2,100,363 | $2,626.07 | | |
| FIRE1BOND | Fire & Rescue Dist #1 Camano BOND | 0.1570001679 | $2,100,363 | $2,100,363 | $329.76 | | |
| CE | County Current Expense | 0.3708482477 | $2,100,363 | $2,100,363 | $778.92 | | |
| CR | County Roads | 0.4584763726 | $2,100,363 | $2,100,363 | $962.97 | | |
| LCIB | Library Sno-Isle BOND (Camano Island) | 0.0396325772 | $2,100,363 | $2,100,363 | $83.24 | | |
| LIB | Library Sno-Isle GEN | 0.3153421757 | $2,100,363 | $2,100,363 | $662.33 | | |
| SCH205_401 | School 205-401 Enrichment | 1.2698420524 | $2,100,363 | $2,100,363 | $2,667.13 | | |
| SCH205BOND | School 205-401 BOND | 0.9396497583 | $2,100,363 | $2,100,363 | $1,973.61 | | |
| ST | State School | 1.3035497053 | $2,100,363 | $2,100,363 | $2,737.93 | | |
| ST2 | State School Part 2 | 0.8169543533 | $2,100,363 | $2,100,363 | $1,715.90 | | |
| | Total Tax Rate: | 7.3209764117 | | | | | |
| | | | | Taxes w/Current Exemptions: | $15,376.73 | | |
| | | | | Taxes w/o Exemptions: | $15,376.73 | | |
Improvement / Building
| Improvement #1: | RESIDENTIAL | State Code: | Y | 3890.8 sqft | Value: | $900,363 |
| Bathrooms: | 3 | Bedrooms: | 3 | | Ceiling: | DRYWALL PAINTED | Cooling: | HEAT PUMP/CONV/V | | Exterior Wall/Cover: | COMMON BRICK VENEER | Floor Covering: | HARDWOOD/CARP 60-40 | | Floor Structure: | WOOD W/SUBFLOOR | Foundation: | CONCRETE | | Interior Finish: | DRYWALL PAINT | Plumbing Fixture Cnt: | 16 | | Roof Slope: | 5" IN 12" | Roof Structure/Cover: | CJ CONCRETE TILE |
|
| | Type | Description | Class CD | Sub Class CD | Year Built | Area |
| | BAS | BASE/MAIN FLOOR | 5 | 0 | 1994 | 3170.8 |
| | OP1 | OPEN PORCH SLAB | 5 | 0 | 1994 | 225.5 |
| | OP1 | OPEN PORCH SLAB | 5 | 0 | 1994 | 792.0 |
| | OP4 | OPEN PORCH W/CEILING-ROOF | 5 | 0 | 1994 | 120.0 |
| | OP4 | OPEN PORCH W/CEILING-ROOF | 5 | 0 | 1994 | 164.0 |
| | DGR | DETACHED GARAGE | 5 | 0 | 1994 | 756.0 |
| | OWC | OPEN WOOD PORCH W/STEPS/ROOF/C | 5 | 0 | 1994 | 117.0 |
| | UPH | HALF STORY | 5 | 0 | 1994 | 720.0 |
| | oPOL | POLE BARN | 5 | 0 | 1994 | 0.0 |
Sketch
Property Image
Land
| 1 | HB | HIGH BLUFF | 10.0000 | 435600.00 | 343.00 | 0.00 | 1.00 | $1,200,000 | $0 |
Roll Value History
| 2026 | N/A | N/A | N/A | N/A | N/A |
| 2025 | $900,363 | $1,200,000 | $0 | $2,100,363 | $2,100,363 |
| 2024 | $910,939 | $1,200,000 | $0 | $2,110,939 | $2,110,939 |
| 2023 | $921,512 | $1,225,000 | $0 | $2,146,512 | $2,146,512 |
| 2022 | $788,452 | $1,125,000 | $0 | $1,913,452 | $1,913,452 |
| 2021 | $696,540 | $900,000 | $0 | $1,596,540 | $1,596,540 |
| 2020 | $680,661 | $700,000 | $0 | $1,380,661 | $1,380,661 |
| 2019 | $600,965 | $700,000 | $0 | $1,300,965 | $1,300,965 |
| 2018 | $602,711 | $450,000 | $0 | $1,052,711 | $1,052,711 |
| 2017 | $606,199 | $400,000 | $0 | $1,006,199 | $1,006,199 |
| 2016 | $593,384 | $400,000 | $0 | $993,384 | $993,384 |
| 2015 | $600,641 | $450,000 | $0 | $1,050,641 | $1,050,641 |
| 2014 | $607,899 | $450,000 | $0 | $1,057,899 | $1,057,899 |
| 2013 | $615,158 | $541,116 | $0 | $1,156,274 | $1,156,274 |
| 2012 | $622,415 | $541,116 | $0 | $1,163,531 | $1,163,531 |
| 2011 | $629,673 | $569,596 | $0 | $1,199,269 | $1,199,269 |
| 2010 | $740,430 | $569,596 | $0 | $1,310,026 | $1,310,026 |
| 2009 | $882,052 | $632,115 | $0 | $1,514,167 | $1,514,167 |
| 2008 | $920,895 | $679,672 | $0 | $1,600,567 | $1,600,567 |
| 2007 | $932,231 | $679,672 | $0 | $1,611,903 | $1,611,903 |
Deed and Sales History
| 1 | 08/11/2016 | QCD | Quit Claim Deed | FROGCLIFF LLC | FROGCLIFF LLC | | | $0.00 | 26810 | 4410866 |
| 2 | 03/24/2010 | WD | Warranty Deed | TREDE, BRIAN E | FROGCLIFF LLC, | | | $1,091,500.00 | 668 | 4271019 |
| 3 | 10/10/2001 | WD | Warranty Deed | SHAW, GARRY D | TREDE, BRIAN E | | | $945,000.00 | 13598 | 20043062 |
| 4 | 02/01/1995 | DECREE | Divorce Decree/Legal Separation | SHAW, GARRY D | SHAW, GARRY D | | | $0.00 | 50895 | 95004327 |
| 5 | 08/01/1992 | WD | Warranty Deed | LEE, KENNETH E | SHAW, GARRY D | | | $240,000.00 | 23580 | 92017333 |
| 6 | 05/01/1989 | QCD | Quit Claim Deed | MEJLAENDER, EBBE D | LEE, KENNETH E | | | $22,778.00 | 91995 | 89006856 |
| 7 | 08/01/1988 | WD | Warranty Deed | POPE, RESOURCES | MEJLAENDER, EBBE D | | | $68,400.00 | 82505 | 88009462 |
| 8 | 01/01/1900 | OTHER | Other - Misc. Documents | Unknown | , | | | $0.00 | 0 | 0 |
| 9 | 01/01/1900 | OTHER | Other - Misc. Documents | , | POPE, RESOURCES | | | $0.00 | 53557 | 85014075 |
Payout Agreement
| No payout information available.. |