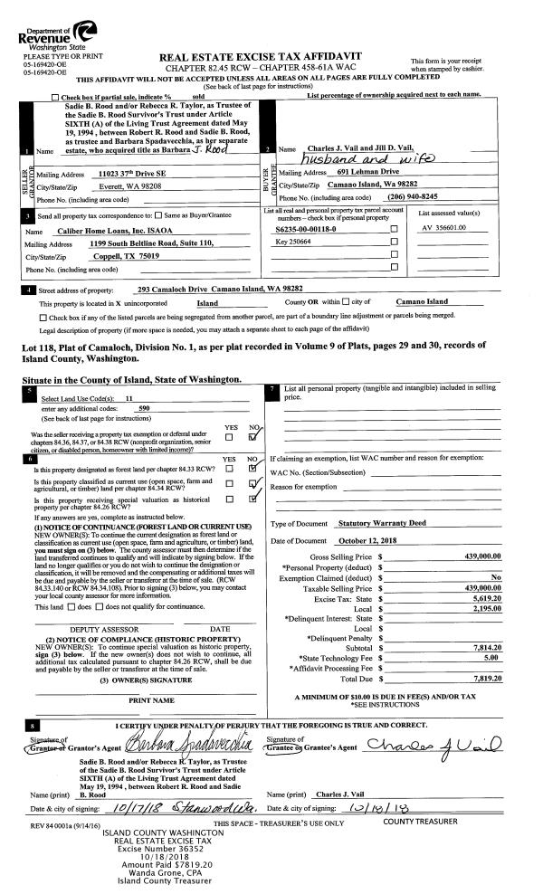
Property
Account |
| Property ID: | 618488 | Abbreviated Legal Description: | RIDGEHAVEN #1 LOT 15 |
| Geographic ID: | S8012-00-00015-0 | Agent Code: | |
| Type: | Real | | |
| Tax Area: | 100 - APPRAISER-OH Schl Dist, in OH | Land Use Code | 11 |
| Open Space: | N | DFL | N |
| Historic Property: | N | Remodel Property: | N |
| Multi-Family Redevelopment: | N | | |
| Township: | | Section: | |
| Range: | |
Location |
| Address: | 1270 SW KALAMA LOOP OAK HARBOR, WA 98277 | Mapsco: | |
| Neighborhood: | Cycle 1 | Map ID: | 90 |
| Neighborhood CD: | 1 |
Owner |
| Name: | SINKS, BRUCE A | Owner ID: | 287969 |
| Mailing Address: | FE T SINKS 1270 SW KALAMA LOOP OAK HARBOR, WA 98277 | % Ownership: | 100.0000000000% |
| | | Exemptions: | |
Taxes and Assessment Details
Values
| (+) Improvement Homesite Value: | + | $0 | |
| (+) Improvement Non-Homesite Value: | + | $319,251 | |
| (+) Land Homesite Value: | + | $0 | |
| (+) Land Non-Homesite Value: | + | $200,000 | |
| (+) Curr Use (HS): | + | $0 | $0 |
| (+) Curr Use (NHS): | + | $0 | $0 |
| | | -------------------------- | |
| (=) Market Value: | = | $519,251 | |
| (–) Productivity Loss: | – | $0 | |
| | | -------------------------- | |
| (=) Subtotal: | = | $519,251 | |
| (+) Senior Appraised Value: | + | $0 | |
| (+) Non-Senior Appraised Value: | + | $519,251 | |
| | | -------------------------- | |
| (=) Total Appraised Value: | = | $519,251 | |
| (–) Senior Exemption Loss: | – | $0 | |
| (–) Exemption Loss: | – | $0 | |
| | | -------------------------- | |
| (=) Taxable Value: | = | $519,251 | |
Taxing Jurisdiction
| Owner: | SINKS, BRUCE A | | |
| % Ownership: | 100.0000000000% | | |
| Total Value: | $519,251 | | |
| Tax Area: | 100 - APPRAISER-OH Schl Dist, in OH |
| CF | Conservation Futures | 0.0316035091 | $519,251 | $519,251 | $16.41 | | |
| CEM1 | Cemetery #1 | 0.0040320932 | $519,251 | $519,251 | $2.09 | | |
| COH | City of Oak Harbor | 2.3001546061 | $519,251 | $519,251 | $1,194.36 | | |
| OAKBOND | City of Oak Harbor BOND | 0.1926904192 | $519,251 | $519,251 | $100.05 | | |
| HOBOND | Hospital BOND | 0.1910887512 | $519,251 | $519,251 | $99.22 | | |
| HOGEN | Hospital GEN | 0.3902502903 | $519,251 | $519,251 | $202.64 | | |
| CE | County Current Expense | 0.3708482477 | $519,251 | $519,251 | $192.56 | | |
| ISLANDEMS | Hospital GEN (EMS) | 0.5000000000 | $519,251 | $519,251 | $259.63 | | |
| LIB | Library Sno-Isle GEN | 0.3153421757 | $519,251 | $519,251 | $163.74 | | |
| NWHIDPRMT | P & R N Whidbey GEN | 0.2004466701 | $519,251 | $519,251 | $104.08 | | |
| SCH201MO | School 201 Enrichment | 1.8559231640 | $519,251 | $519,251 | $963.69 | | |
| ST | State School | 1.3035497053 | $519,251 | $519,251 | $676.87 | | |
| ST2 | State School Part 2 | 0.8169543533 | $519,251 | $519,251 | $424.20 | | |
| | Total Tax Rate: | 8.4728839852 | | | | | |
| | | | | Taxes w/Current Exemptions: | $4,399.54 | | |
| | | | | Taxes w/o Exemptions: | $4,399.54 | | |
Improvement / Building
| Improvement #1: | RESIDENTIAL | State Code: | Y | 1902.0 sqft | Value: | $319,251 |
| Bathrooms: | 2 | Bedrooms: | 3 | | Ceiling: | DRYWALL PAINTED | Exterior Wall/Cover: | PLY/HARDBOARD T-111 | | Floor Covering: | CARPET/VINYL 80-20 | Floor Structure: | WOOD W/SUBFLOOR | | Foundation: | CONCRETE | Heating: | FHA GAS | | Interior Finish: | DRYWALL PAINT | Plumbing Fixture Cnt: | 10 | | Roof Slope: | 6" IN 12" | Roof Structure/Cover: | CJ ASPHALT |
|
| | Type | Description | Class CD | Sub Class CD | Year Built | Area |
| | BAS | BASE/MAIN FLOOR | 3 | 0 | 1988 | 1902.0 |
| | AGR | ATTACHED GARAGE | 3 | 0 | 1988 | 572.0 |
| | OWP | OPEN WOOD PORCH W/STEPS | 3 | 0 | 1988 | 36.0 |
Sketch
Property Image
Land
| 1 | 14 | SQ (08001-12000) | 0.0000 | 0.00 | 0.00 | 0.00 | 1.00 | $200,000 | $0 |
Roll Value History
| 2026 | N/A | N/A | N/A | N/A | N/A |
| 2025 | $319,251 | $200,000 | $0 | $519,251 | $519,251 |
| 2024 | $323,085 | $190,000 | $0 | $513,085 | $513,085 |
| 2023 | $319,251 | $200,000 | $0 | $519,251 | $519,251 |
| 2022 | $292,550 | $180,000 | $0 | $472,550 | $472,550 |
| 2021 | $257,422 | $150,000 | $0 | $407,422 | $407,422 |
| 2020 | $250,951 | $100,000 | $0 | $350,951 | $350,951 |
| 2019 | $189,005 | $150,000 | $0 | $339,005 | $339,005 |
| 2018 | $189,547 | $130,000 | $0 | $319,547 | $319,547 |
| 2017 | $184,367 | $110,000 | $0 | $294,367 | $294,367 |
| 2016 | $186,485 | $90,000 | $0 | $276,485 | $276,485 |
| 2015 | $188,606 | $70,000 | $0 | $258,606 | $258,606 |
| 2014 | $190,724 | $55,000 | $0 | $245,724 | $245,724 |
| 2013 | $192,843 | $55,000 | $0 | $247,843 | $247,843 |
| 2012 | $194,964 | $60,000 | $0 | $254,964 | $254,964 |
| 2011 | $200,915 | $50,000 | $0 | $250,915 | $250,915 |
| 2010 | $211,085 | $50,000 | $0 | $261,085 | $261,085 |
| 2009 | $211,377 | $60,000 | $0 | $271,377 | $271,377 |
| 2008 | $213,758 | $73,000 | $0 | $286,758 | $286,758 |
| 2007 | $216,140 | $73,000 | $0 | $289,140 | $289,140 |
Deed and Sales History
| 1 | 11/16/2018 | WD | Warranty Deed | DUARTE, MICHAEL | SINKS, BRUCE A | | | $353,000.00 | 36717 | 4455295 |
| 2 | 12/03/2015 | WD | Warranty Deed | LIPSTEIN JTWROS, JACQUELINE A | DUARTE, MICHAEL | | | $297,000.00 | 22403 | 4390688 |
| 3 | 03/28/2011 | WD | Warranty Deed | LANDOLT, ANTHONY M | LIPSTEIN JTWROS, JACQUELINE A | | | $263,000.00 | 4081 | 4293430 |
| 4 | 08/01/2003 | WD | Warranty Deed | KELLER, DAVID E | LANDOLT, ANTHONY M | | | $205,000.00 | 33471 | 4070178 |
| 5 | 08/07/2002 | WD | Warranty Deed | ANDERSON, DANIEL S | KELLER, DAVID E | | | $164,300.00 | 23145 | 4028165 |
| 6 | 11/01/1992 | WD | Warranty Deed | HASSETT, STEPHEN H | ANDERSON, DANIEL S | | | $155,500.00 | 24624 | 92022714 |
| 7 | 05/01/1989 | WD | Warranty Deed | HARBOR, CONSTRUCTION I | HASSETT, STEPHEN H | | | $119,000.00 | 91794 | 89006219 |
| 8 | 05/01/1987 | WD | Warranty Deed | LOFGREN, JAMES A | HARBOR, CONSTRUCTION I | | | $16,000.00 | 71301 | 87006389 |
| 9 | 01/01/1900 | OTHER | Other - Misc. Documents | Unknown | LOFGREN, JAMES A | | | $0.00 | 0 | 0 |
Payout Agreement
| No payout information available.. |