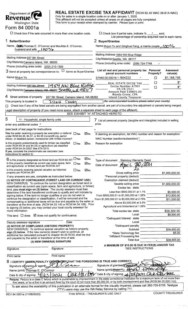
Property
Account |
| Property ID: | 619147 | Abbreviated Legal Description: | WOODSIDE NORTH CONDO APT 701 |
| Geographic ID: | S8495-00-00701-0 | Agent Code: | |
| Type: | Real | | |
| Tax Area: | 100 - APPRAISER-OH Schl Dist, in OH | Land Use Code | 14 |
| Open Space: | N | DFL | N |
| Historic Property: | N | Remodel Property: | N |
| Multi-Family Redevelopment: | N | | |
| Township: | | Section: | |
| Range: | |
Location |
| Address: | 690 NW ATALANTA WAY BLDG D, UNIT D101 OAK HARBOR, WA 98277 | Mapsco: | |
| Neighborhood: | 4B*OH-woodside n | Map ID: | 253 |
| Neighborhood CD: | 4B*OHwdsdn |
Owner |
| Name: | NEW LEAF INC | Owner ID: | 76245 |
| Mailing Address: | 660 SE FIDALGO AVE OAK HARBOR, WA 98277-4072 | % Ownership: | 100.0000000000% |
| | | Exemptions: | |
Taxes and Assessment Details
Values
| (+) Improvement Homesite Value: | + | $0 | |
| (+) Improvement Non-Homesite Value: | + | $124,257 | |
| (+) Land Homesite Value: | + | $0 | |
| (+) Land Non-Homesite Value: | + | $85,000 | |
| (+) Curr Use (HS): | + | $0 | $0 |
| (+) Curr Use (NHS): | + | $0 | $0 |
| | | -------------------------- | |
| (=) Market Value: | = | $209,257 | |
| (–) Productivity Loss: | – | $0 | |
| | | -------------------------- | |
| (=) Subtotal: | = | $209,257 | |
| (+) Senior Appraised Value: | + | $0 | |
| (+) Non-Senior Appraised Value: | + | $209,257 | |
| | | -------------------------- | |
| (=) Total Appraised Value: | = | $209,257 | |
| (–) Senior Exemption Loss: | – | $0 | |
| (–) Exemption Loss: | – | $0 | |
| | | -------------------------- | |
| (=) Taxable Value: | = | $209,257 | |
Taxing Jurisdiction
| Owner: | NEW LEAF INC | | |
| % Ownership: | 100.0000000000% | | |
| Total Value: | $209,257 | | |
| Tax Area: | 100 - APPRAISER-OH Schl Dist, in OH |
| CF | Conservation Futures | 0.0316035091 | $209,257 | $209,257 | $6.61 | | |
| CEM1 | Cemetery #1 | 0.0040320932 | $209,257 | $209,257 | $0.84 | | |
| COH | City of Oak Harbor | 2.3001546061 | $209,257 | $209,257 | $481.32 | | |
| OAKBOND | City of Oak Harbor BOND | 0.1926904192 | $209,257 | $209,257 | $40.32 | | |
| HOBOND | Hospital BOND | 0.1910887512 | $209,257 | $209,257 | $39.99 | | |
| HOGEN | Hospital GEN | 0.3902502903 | $209,257 | $209,257 | $81.66 | | |
| CE | County Current Expense | 0.3708482477 | $209,257 | $209,257 | $77.60 | | |
| ISLANDEMS | Hospital GEN (EMS) | 0.5000000000 | $209,257 | $209,257 | $104.63 | | |
| LIB | Library Sno-Isle GEN | 0.3153421757 | $209,257 | $209,257 | $65.99 | | |
| NWHIDPRMT | P & R N Whidbey GEN | 0.2004466701 | $209,257 | $209,257 | $41.94 | | |
| SCH201MO | School 201 Enrichment | 1.8559231640 | $209,257 | $209,257 | $388.36 | | |
| ST | State School | 1.3035497053 | $209,257 | $209,257 | $272.78 | | |
| ST2 | State School Part 2 | 0.8169543533 | $209,257 | $209,257 | $170.95 | | |
| | Total Tax Rate: | 8.4728839852 | | | | | |
| | | | | Taxes w/Current Exemptions: | $1,772.99 | | |
| | | | | Taxes w/o Exemptions: | $1,772.99 | | |
Improvement / Building
| Improvement #1: | RESIDENTIAL | State Code: | A1 | 743.0 sqft | Value: | $124,257 |
| Bathrooms: | 1 | Bedrooms: | 2 | | Ceiling: | DRYWALL PAINTED | Exterior Wall/Cover: | PLY/HARDBOARD T-111 | | Floor Covering: | CARPET/VINYL 80-20 | Floor Structure: | WOOD W/SUBFLOOR | | Foundation: | SLAB/CONCRETE | Heating: | BASEBOARD ELECTRIC | | Interior Finish: | DRYWALL PAINT | Plumbing Fixture Cnt: | 6 | | Roof Slope: | 4" IN 12" | Roof Structure/Cover: | CJ ASPHALT |
|
| | Type | Description | Class CD | Sub Class CD | Year Built | Area |
| | BAS | BASE/MAIN FLOOR | 3 | 0 | 1987 | 743.0 |
| | OP1 | OPEN PORCH SLAB | 3 | 0 | 1987 | 24.0 |
| | UTY | STORAGE/UTILITY | 3 | 0 | 1987 | 9.0 |
| | ENP | ENCLOSED PORCH | 3 | 0 | 1987 | 52.0 |
| | COMA | Common Area Improvement | 3 | 0 | 1987 | 0.0 |
Sketch
Property Image
Land
| 1 | 61 | MULTIPLE RESIDENCES | 0.0000 | 2290.00 | 0.00 | 0.00 | 1.00 | $85,000 | $0 |
Roll Value History
| 2026 | N/A | N/A | N/A | N/A | N/A |
| 2025 | $124,257 | $85,000 | $0 | $209,257 | $209,257 |
| 2024 | $128,551 | $90,000 | $0 | $218,551 | $218,551 |
| 2023 | $130,225 | $75,000 | $0 | $205,225 | $205,225 |
| 2022 | $119,526 | $60,000 | $0 | $179,526 | $179,526 |
| 2021 | $105,378 | $50,000 | $0 | $155,378 | $155,378 |
| 2020 | $71,714 | $35,000 | $0 | $106,714 | $106,714 |
| 2019 | $50,170 | $70,000 | $0 | $120,170 | $120,170 |
| 2018 | $50,347 | $65,000 | $0 | $115,347 | $115,347 |
| 2017 | $50,698 | $7,000 | $0 | $57,698 | $57,698 |
| 2016 | $51,402 | $7,000 | $0 | $58,402 | $58,402 |
| 2015 | $52,106 | $7,000 | $0 | $59,106 | $59,106 |
| 2014 | $66,010 | $16,030 | $0 | $82,040 | $82,040 |
| 2013 | $66,890 | $16,030 | $0 | $82,920 | $82,920 |
| 2012 | $68,648 | $16,030 | $0 | $84,678 | $84,678 |
| 2011 | $68,648 | $16,030 | $0 | $84,678 | $84,678 |
| 2010 | $70,907 | $12,687 | $0 | $83,594 | $83,594 |
| 2009 | $73,924 | $22,900 | $0 | $96,824 | $96,824 |
| 2008 | $74,920 | $29,770 | $0 | $104,690 | $104,690 |
| 2007 | $75,803 | $29,770 | $0 | $105,573 | $105,573 |
Deed and Sales History
| 1 | 03/14/2025 | WD | Warranty Deed | PICKARD TRUSTEE, JANICE L | NEW LEAF INC | | | $660,000.00 | 62808 | 4583251 |
|   | |
| 2 | 12/08/2015 | TRUSTEED | Trustee's Deed | PICKARD, JANICE L | PICKARD TRUSTEE, JANICE L | | | $0.00 | 22434 | 4390840 |
| 3 | 07/07/2004 | WD | Warranty Deed | GREEN, ARTHUR | PICKARD, JANICE L | | | $71,393.00 | 43135 | 4106708 |
| 4 | 12/26/2001 | WD | Warranty Deed | DAUGHERTY, BURDON R | GREEN, ARTHUR | | | $50,892.00 | 20061 | 4007525 |
| 5 | 11/01/1994 | QCD | Quit Claim Deed | DAUGHERTY, BURDON R | DAUGHERTY, BURDON R | | | $0.00 | 44802 | 94024529 |
| 6 | 03/01/1992 | QCD | Quit Claim Deed | DAUGHERTY, BURDON R | DAUGHERTY, BURDON R | | | $0.00 | 20924 | 92004731 |
| 7 | 02/01/1987 | QCD | Quit Claim Deed | DAUGHERTY, BURDON R | DAUGHERTY, BURDON R | | | $0.00 | 70301 | 87002001 |
| 8 | 12/01/1986 | WD | Warranty Deed | ALPHA, GROUP I | DAUGHERTY, BURDON R | | | $35,750.00 | 63746 | 86016672 |
| 9 | 12/01/1986 | WD | Warranty Deed | DAUGHERTY, BURDON R | DAUGHERTY, BURDON R | | | $0.00 | 71522 | 87007192 |
| 10 | 12/01/1986 | QCD | Quit Claim Deed | DAUGHERTY, BURDON R | DAUGHERTY, BURDON R | | | $0.00 | 71523 | 87007193 |
| 11 | 01/01/1900 | OTHER | Other - Misc. Documents | Unknown | ALPHA, GROUP I | | | $0.00 | 0 | 0 |
Payout Agreement
| No payout information available.. |