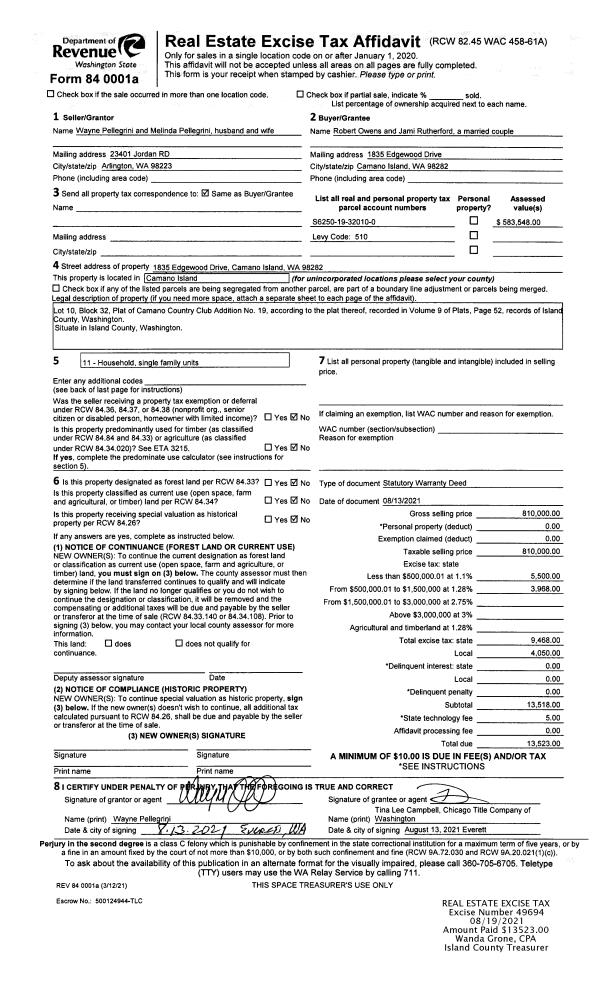
Property
Account |
| Property ID: | 620082 | Abbreviated Legal Description: | 2.3000 Acres ins Section 03s Township 32s Range R2s LOT B BLA 388-15;s |
| Geographic ID: | R23203-165-1800 | Agent Code: | |
| Type: | Real | | |
| Tax Area: | 112 - APPRAISER-OH Schl Dist, outside OH, improved, greater than 1 acre | Land Use Code | 11 |
| Open Space: | N | DFL | N |
| Historic Property: | N | Remodel Property: | N |
| Multi-Family Redevelopment: | N | | |
| Township: | 32 | Section: | 03 |
| Range: | R2 |
Location |
| Address: | 2210 CORSAIR LN OAK HARBOR, WA 98277 | Mapsco: | |
| Neighborhood: | Cycle 6 | Map ID: | 540 |
| Neighborhood CD: | 6 |
Owner |
| Name: | GREHAN, JEROME DOUGLAS | Owner ID: | 297840 |
| Mailing Address: | CHERYL LYNN GREHAN 2210 CORSAIR LN OAK HARBOR, WA 98277 | % Ownership: | 100.0000000000% |
| | | Exemptions: | |
Taxes and Assessment Details
Values
| (+) Improvement Homesite Value: | + | $0 | |
| (+) Improvement Non-Homesite Value: | + | $416,573 | |
| (+) Land Homesite Value: | + | $0 | |
| (+) Land Non-Homesite Value: | + | $250,000 | |
| (+) Curr Use (HS): | + | $0 | $0 |
| (+) Curr Use (NHS): | + | $0 | $0 |
| | | -------------------------- | |
| (=) Market Value: | = | $666,573 | |
| (–) Productivity Loss: | – | $0 | |
| | | -------------------------- | |
| (=) Subtotal: | = | $666,573 | |
| (+) Senior Appraised Value: | + | $0 | |
| (+) Non-Senior Appraised Value: | + | $666,573 | |
| | | -------------------------- | |
| (=) Total Appraised Value: | = | $666,573 | |
| (–) Senior Exemption Loss: | – | $0 | |
| (–) Exemption Loss: | – | $0 | |
| | | -------------------------- | |
| (=) Taxable Value: | = | $666,573 | |
Taxing Jurisdiction
| Owner: | GREHAN, JEROME DOUGLAS | | |
| % Ownership: | 100.0000000000% | | |
| Total Value: | $666,573 | | |
| Tax Area: | 112 - APPRAISER-OH Schl Dist, outside OH, improved, greater than 1 acre |
| CF | Conservation Futures | 0.0316035091 | $666,573 | $666,573 | $21.07 | | |
| CEM1 | Cemetery #1 | 0.0040320932 | $666,573 | $666,573 | $2.69 | | |
| FIRE2 | Fire & Rescue Dist #2 N Whidbey GEN | 0.5475949600 | $666,573 | $666,573 | $365.01 | | |
| HOBOND | Hospital BOND | 0.1910887512 | $666,573 | $666,573 | $127.37 | | |
| HOGEN | Hospital GEN | 0.3902502903 | $666,573 | $666,573 | $260.13 | | |
| CE | County Current Expense | 0.3708482477 | $666,573 | $666,573 | $247.20 | | |
| CR | County Roads | 0.4584763726 | $666,573 | $666,573 | $305.61 | | |
| ISLANDEMS | Hospital GEN (EMS) | 0.5000000000 | $666,573 | $666,573 | $333.29 | | |
| LIB | Library Sno-Isle GEN | 0.3153421757 | $666,573 | $666,573 | $210.20 | | |
| NWHIDPRMT | P & R N Whidbey GEN | 0.2004466701 | $666,573 | $666,573 | $133.61 | | |
| SCH201MO | School 201 Enrichment | 1.8559231640 | $666,573 | $666,573 | $1,237.11 | | |
| ST | State School | 1.3035497053 | $666,573 | $666,573 | $868.91 | | |
| ST2 | State School Part 2 | 0.8169543533 | $666,573 | $666,573 | $544.56 | | |
| | Total Tax Rate: | 6.9861102925 | | | | | |
| | | | | Taxes w/Current Exemptions: | $4,656.76 | | |
| | | | | Taxes w/o Exemptions: | $4,656.76 | | |
Improvement / Building
| Improvement #1: | RESIDENTIAL | State Code: | Y | 1976.0 sqft | Value: | $416,573 |
| Bathrooms: | 2 | Bedrooms: | 3 | | Ceiling: | DRYWALL PAINTED | Cooling: | HEAT PUMP/CONV/V | | Exterior Wall/Cover: | CEMENT FIBER | Floor Covering: | VINYL TILE | | Floor Structure: | WOOD W/SUBFLOOR | Foundation: | CONCRETE | | Interior Finish: | DRYWALL PAINT | Plumbing Fixture Cnt: | 11 | | Roof Slope: | 6" IN 12" | Roof Structure/Cover: | CJ ASPHALT |
|
| | Type | Description | Class CD | Sub Class CD | Year Built | Area |
| | BAS | BASE/MAIN FLOOR | 3 | 0 | 2021 | 1976.0 |
| | AGR | ATTACHED GARAGE | 3 | 0 | 2021 | 900.0 |
| | OP4 | OPEN PORCH W/CEILING-ROOF | 3 | 0 | 2021 | 336.0 |
| | OP4 | OPEN PORCH W/CEILING-ROOF | 3 | 0 | 2021 | 288.0 |
| | ENP | ENCLOSED PORCH | 3 | 0 | 2021 | 120.0 |
| | OWP | OPEN WOOD PORCH W/STEPS | 3 | 0 | 2021 | 93.0 |
Sketch
Property Image
Land
| 1 | 18 | AC (02.01-03.00) | 2.3000 | 100188.00 | 0.00 | 0.00 | 1.00 | $250,000 | $0 |
Roll Value History
| 2026 | N/A | N/A | N/A | N/A | N/A |
| 2025 | $416,573 | $250,000 | $0 | $666,573 | $666,573 |
| 2024 | $419,879 | $230,000 | $0 | $649,879 | $649,879 |
| 2023 | $424,286 | $220,000 | $0 | $644,286 | $644,286 |
| 2022 | $399,159 | $210,000 | $0 | $609,159 | $609,159 |
| 2021 | $354,180 | $160,000 | $0 | $514,180 | $514,180 |
| 2020 | $0 | $70,000 | $0 | $70,000 | $70,000 |
| 2019 | $0 | $110,000 | $0 | $110,000 | $110,000 |
| 2018 | $0 | $110,000 | $0 | $110,000 | $110,000 |
| 2017 | $0 | $110,000 | $0 | $110,000 | $110,000 |
| 2016 | $0 | $80,000 | $0 | $80,000 | $80,000 |
| 2015 | $0 | $60,000 | $0 | $60,000 | $60,000 |
| 2014 | $0 | $75,000 | $0 | $75,000 | $75,000 |
| 2013 | $0 | $65,000 | $0 | $65,000 | $65,000 |
| 2012 | $0 | $72,000 | $0 | $72,000 | $72,000 |
| 2011 | $0 | $72,000 | $0 | $72,000 | $72,000 |
| 2010 | $0 | $72,000 | $0 | $72,000 | $72,000 |
| 2009 | $0 | $97,200 | $0 | $97,200 | $97,200 |
| 2008 | $0 | $135,000 | $0 | $135,000 | $135,000 |
| 2007 | $0 | $72,000 | $0 | $72,000 | $72,000 |
Deed and Sales History
| 1 | 01/19/2021 | WD | Warranty Deed | CORSAIR CONSTRUCTION, LLC | GREHAN, JEROME DOUGLAS | | | $597,700.00 | 46672 | 4508920 |
| 2 | 09/17/2020 | WD | Warranty Deed | J & D BUILDERS, INC. | CORSAIR CONSTRUCTION, LLC | | | $145,000.00 | 44862 | 4497212 |
| 3 | 03/02/2015 | WD | Warranty Deed | SMALL CO TRUSTEE, RUFUS C | J & D BUILDERS, INC. | | | $310,000.00 | 18686 | 4374382 |
|   | |
| 4 | 04/06/1999 | QCD | Quit Claim Deed | SMALL, RUFUS C | SMALL, RUFUS C | | | $0.00 | 91264 | 88008333 |
| 5 | 07/01/1987 | OTHER | Other - Misc. Documents | SMALL, RUFUS C | SMALL, RUFUS C | | | $0.00 | 62262 | 394614 |
| 6 | 03/01/1982 | EZ | Easement | Unknown | SMALL, RUFUS C | | | $15,700.00 | 20584 | 394059 |
Payout Agreement
| No payout information available.. |