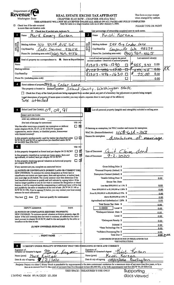
Property
Account |
| Property ID: | 62112 | Abbreviated Legal Description: | 4 - S330'OF GL 4 LY E OF ST HWY INCL ADJ TIDELANDS EX PT TO ST OF WA AF#96006110 |
| Geographic ID: | R23016-414-1490 | Agent Code: | |
| Type: | Real | | |
| Tax Area: | 312 - APPRAISER-Cpvl Schl Dist, outside Cpvl, improved, greater than 1 acre | Land Use Code | 11 |
| Open Space: | N | DFL | N |
| Historic Property: | N | Remodel Property: | N |
| Multi-Family Redevelopment: | N | | |
| Township: | 30 | Section: | 16 |
| Range: | R2 |
Location |
| Address: | 24572 SR525 GREENBANK, WA 98253 | Mapsco: | |
| Neighborhood: | Cycle 3 | Map ID: | 383 |
| Neighborhood CD: | 3 |
Owner |
| Name: | OLSON, TAB LEE | Owner ID: | 288059 |
| Mailing Address: | 24572 STATE ROUTE 525 GREENBANK, WA 98253-6228 | % Ownership: | 100.0000000000% |
| | | Exemptions: | |
Taxes and Assessment Details
Values
| (+) Improvement Homesite Value: | + | $0 | |
| (+) Improvement Non-Homesite Value: | + | $326,008 | |
| (+) Land Homesite Value: | + | $0 | |
| (+) Land Non-Homesite Value: | + | $1,128,300 | |
| (+) Curr Use (HS): | + | $0 | $0 |
| (+) Curr Use (NHS): | + | $0 | $0 |
| | | -------------------------- | |
| (=) Market Value: | = | $1,454,308 | |
| (–) Productivity Loss: | – | $0 | |
| | | -------------------------- | |
| (=) Subtotal: | = | $1,454,308 | |
| (+) Senior Appraised Value: | + | $0 | |
| (+) Non-Senior Appraised Value: | + | $1,454,308 | |
| | | -------------------------- | |
| (=) Total Appraised Value: | = | $1,454,308 | |
| (–) Senior Exemption Loss: | – | $0 | |
| (–) Exemption Loss: | – | $0 | |
| | | -------------------------- | |
| (=) Taxable Value: | = | $1,454,308 | |
Taxing Jurisdiction
| Owner: | OLSON, TAB LEE | | |
| % Ownership: | 100.0000000000% | | |
| Total Value: | $1,454,308 | | |
| Tax Area: | 312 - APPRAISER-Cpvl Schl Dist, outside Cpvl, improved, greater than 1 acre |
| CF | Conservation Futures | 0.0316035091 | $1,454,308 | $1,454,308 | $45.96 | | |
| CEM2 | Cemetery #2 | 0.0095056933 | $1,454,308 | $1,454,308 | $13.82 | | |
| FIRE5 | Fire & Rescue Dist #5 C Whidbey GEN | 1.2008080668 | $1,454,308 | $1,454,308 | $1,746.34 | | |
| FIRE5BOND | Fire & Rescue Dist #5 C Whidbey BOND | 0.1400090713 | $1,454,308 | $1,454,308 | $203.62 | | |
| HOBOND | Hospital BOND | 0.1910887512 | $1,454,308 | $1,454,308 | $277.90 | | |
| HOGEN | Hospital GEN | 0.3902502903 | $1,454,308 | $1,454,308 | $567.54 | | |
| CE | County Current Expense | 0.3708482477 | $1,454,308 | $1,454,308 | $539.33 | | |
| CR | County Roads | 0.4584763726 | $1,454,308 | $1,454,308 | $666.77 | | |
| ISLANDEMS | Hospital GEN (EMS) | 0.5000000000 | $1,454,308 | $1,454,308 | $727.15 | | |
| LIB | Library Sno-Isle GEN | 0.3153421757 | $1,454,308 | $1,454,308 | $458.60 | | |
| LIBCAP | Library Sno-Isle BOND (Cap Fac Imp Area) | 0.0543427938 | $1,454,308 | $1,454,308 | $79.03 | | |
| POCOUP | Port of Coupeville GEN | 0.1093371703 | $1,454,308 | $1,454,308 | $159.01 | | |
| POCOUPIDD | Port of Coupeville IDD | 0.3409740022 | $1,454,308 | $1,454,308 | $495.88 | | |
| COUPSDTECH | School 204 CP (TECH) | 0.7545480007 | $1,454,308 | $1,454,308 | $1,097.35 | | |
| SCH204MO | School 204 Enrichment | 0.6716186034 | $1,454,308 | $1,454,308 | $976.74 | | |
| ST | State School | 1.3035497053 | $1,454,308 | $1,454,308 | $1,895.76 | | |
| ST2 | State School Part 2 | 0.8169543533 | $1,454,308 | $1,454,308 | $1,188.10 | | |
| | Total Tax Rate: | 7.6592568070 | | | | | |
| | | | | Taxes w/Current Exemptions: | $11,138.90 | | |
| | | | | Taxes w/o Exemptions: | $11,138.90 | | |
Improvement / Building
| Improvement #1: | RESIDENTIAL | State Code: | Y | 2808.0 sqft | Value: | $326,008 |
| Bathrooms: | 2.5 | Bedrooms: | 2 | | Ceiling: | DRYWALL PAINTED | Exterior Wall/Cover: | CEMENT FIBER | | Floor Covering: | CARPET/VINYL 80-20 | Floor Structure: | WOOD W/SUBFLOOR | | Foundation: | CONCRETE | Heating: | FLOOR/WALL GAS | | Interior Finish: | DRYWALL PAINT | Plumbing Fixture Cnt: | 11 | | Roof Slope: | 4" IN 12" | Roof Structure/Cover: | CJ ASPHALT |
|
| | Type | Description | Class CD | Sub Class CD | Year Built | Area |
| | BAS | BASE/MAIN FLOOR | 3 | 0 | 1948 | 1839.0 |
| | OP4 | OPEN PORCH W/CEILING-ROOF | 3 | 0 | 1948 | 84.0 |
| | OWP | OPEN WOOD PORCH W/STEPS | 3 | 0 | 1948 | 232.0 |
| | ENP | ENCLOSED PORCH | 3 | 0 | 1948 | 420.0 |
| | UTY | STORAGE/UTILITY | 3 | 0 | 1948 | 420.0 |
| | UPS | UPPER STORY | 3 | 0 | 1948 | 969.0 |
Sketch
Property Image
Land
| 1 | HB | HIGH BLUFF | 11.4000 | 496584.00 | 330.00 | 0.00 | 1.00 | $1,125,000 | $0 |
| 2 | 55 | TIDES | 0.0000 | 0.00 | 330.00 | 0.00 | 1.00 | $3,300 | $0 |
Roll Value History
| 2026 | N/A | N/A | N/A | N/A | N/A |
| 2025 | $326,008 | $1,128,300 | $0 | $1,454,308 | $1,454,308 |
| 2024 | $330,285 | $1,128,300 | $0 | $1,458,585 | $1,458,585 |
| 2023 | $334,559 | $1,103,300 | $0 | $1,437,859 | $1,437,859 |
| 2022 | $306,825 | $978,300 | $0 | $1,285,125 | $1,285,125 |
| 2021 | $270,168 | $903,300 | $0 | $1,173,468 | $1,173,468 |
| 2020 | $263,976 | $853,300 | $0 | $1,117,276 | $1,117,276 |
| 2019 | $200,728 | $908,300 | $0 | $1,109,028 | $1,109,028 |
| 2018 | $201,314 | $803,300 | $0 | $1,004,614 | $1,004,614 |
| 2017 | $202,486 | $803,300 | $0 | $1,005,786 | $1,005,786 |
| 2016 | $204,828 | $803,300 | $0 | $1,008,128 | $1,008,128 |
| 2015 | $207,172 | $803,300 | $0 | $1,010,472 | $1,010,472 |
| 2014 | $209,515 | $803,300 | $0 | $1,012,815 | $1,012,815 |
| 2013 | $219,858 | $803,728 | $0 | $1,023,586 | $1,023,586 |
| 2012 | $222,201 | $803,728 | $0 | $1,025,929 | $1,025,929 |
| 2011 | $144,634 | $803,728 | $0 | $948,362 | $948,362 |
| 2010 | $104,076 | $803,728 | $0 | $907,804 | $907,804 |
| 2009 | $108,446 | $1,070,540 | $0 | $1,178,986 | $1,178,986 |
| 2008 | $110,169 | $1,059,187 | $0 | $1,169,356 | $1,169,356 |
| 2007 | $103,802 | $836,341 | $0 | $940,143 | $940,143 |
Deed and Sales History
| 1 | 12/10/2012 | QCD | Quit Claim Deed | OLSON, JACQUELINE | OLSON, TAB LEE | | | $0.00 | 9913 | 4330082 |
| 2 | 06/28/2011 | PRD | Personal Representatives Deed | OLSON, BOB G | OLSON, JACQUELINE | | | $0.00 | 5298 | 4299876 |
| 3 | 03/01/1996 | WD | Warranty Deed | OLSON, JACQUELINE A | OLSON, JACQUELINE A | | | $3,700.00 | 61195 | 96006110 |
| 4 | 01/01/1900 | OTHER | Other - Misc. Documents | Unknown | OLSON, JACQUELINE A | | | $0.00 | 0 | 0 |
Payout Agreement
| No payout information available.. |