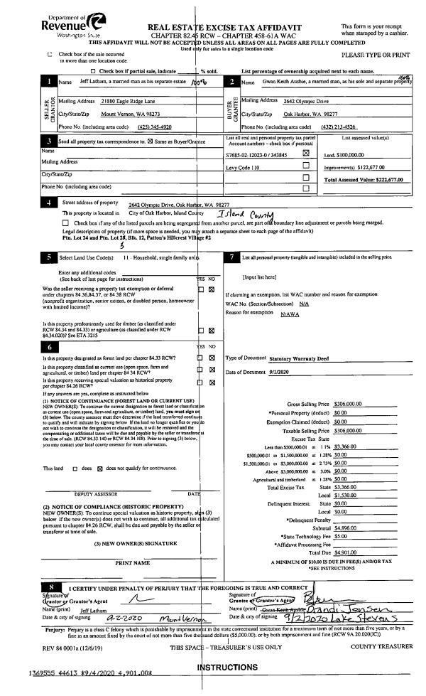
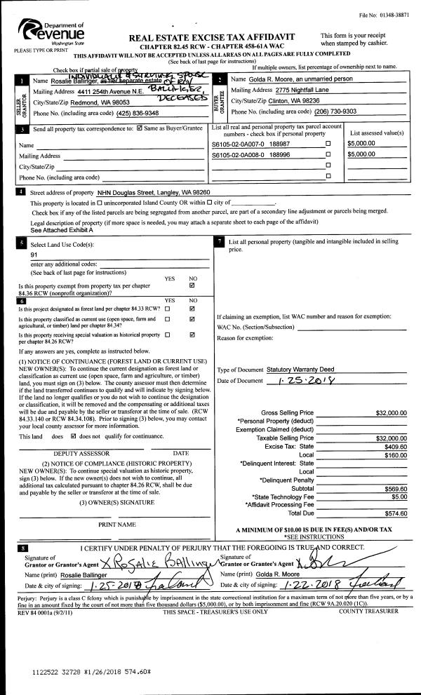
Property
Account |
| Property ID: | 62176 | Abbreviated Legal Description: | 11 - IN GL4:BG NWCR SEC16 S673.41'E1538.66'TPB S43*E 137.88' S43*E188.44'E61.97' N32*E52.75' E87.61' N27*W 303.41' TPB TGW ADJ TIDES SUB EAS TGW EAS ON LOT 1 GREEN TREE MISC#60754 |
| Geographic ID: | R23016-453-1940 | Agent Code: | |
| Type: | Real | | |
| Tax Area: | 310 - APPRAISER-Cpvl Schl Dist, outside Cpvl, improved & 1 acre or less | Land Use Code | 11 |
| Open Space: | N | DFL | N |
| Historic Property: | N | Remodel Property: | N |
| Multi-Family Redevelopment: | N | | |
| Township: | 30 | Section: | 16 |
| Range: | R2 |
Location |
| Address: | 945 LEAF LN GREENBANK, WA 98253 | Mapsco: | |
| Neighborhood: | Cycle 3 | Map ID: | 383 |
| Neighborhood CD: | 3 |
Owner |
| Name: | SINCLAIR TRUSTEE, GEORGE MICHAEL | Owner ID: | 283498 |
| Mailing Address: | MARTHA POPPY SINCLAIR TRUSTEE 945 LEAF LN GREENBANK, WA 98253 | % Ownership: | 100.0000000000% |
| | | Exemptions: | |
Taxes and Assessment Details
Values
| (+) Improvement Homesite Value: | + | $0 | |
| (+) Improvement Non-Homesite Value: | + | $397,833 | |
| (+) Land Homesite Value: | + | $0 | |
| (+) Land Non-Homesite Value: | + | $727,000 | |
| (+) Curr Use (HS): | + | $0 | $0 |
| (+) Curr Use (NHS): | + | $0 | $0 |
| | | -------------------------- | |
| (=) Market Value: | = | $1,124,833 | |
| (–) Productivity Loss: | – | $0 | |
| | | -------------------------- | |
| (=) Subtotal: | = | $1,124,833 | |
| (+) Senior Appraised Value: | + | $0 | |
| (+) Non-Senior Appraised Value: | + | $1,124,833 | |
| | | -------------------------- | |
| (=) Total Appraised Value: | = | $1,124,833 | |
| (–) Senior Exemption Loss: | – | $0 | |
| (–) Exemption Loss: | – | $0 | |
| | | -------------------------- | |
| (=) Taxable Value: | = | $1,124,833 | |
Taxing Jurisdiction
| Owner: | SINCLAIR TRUSTEE, GEORGE MICHAEL | | |
| % Ownership: | 100.0000000000% | | |
| Total Value: | $1,124,833 | | |
| Tax Area: | 310 - APPRAISER-Cpvl Schl Dist, outside Cpvl, improved & 1 acre or less |
| CF | Conservation Futures | 0.0316035091 | $1,124,833 | $1,124,833 | $35.55 | | |
| CEM2 | Cemetery #2 | 0.0095056933 | $1,124,833 | $1,124,833 | $10.69 | | |
| FIRE5 | Fire & Rescue Dist #5 C Whidbey GEN | 1.2008080668 | $1,124,833 | $1,124,833 | $1,350.71 | | |
| FIRE5BOND | Fire & Rescue Dist #5 C Whidbey BOND | 0.1400090713 | $1,124,833 | $1,124,833 | $157.49 | | |
| HOBOND | Hospital BOND | 0.1910887512 | $1,124,833 | $1,124,833 | $214.94 | | |
| HOGEN | Hospital GEN | 0.3902502903 | $1,124,833 | $1,124,833 | $438.97 | | |
| CE | County Current Expense | 0.3708482477 | $1,124,833 | $1,124,833 | $417.14 | | |
| CR | County Roads | 0.4584763726 | $1,124,833 | $1,124,833 | $515.71 | | |
| ISLANDEMS | Hospital GEN (EMS) | 0.5000000000 | $1,124,833 | $1,124,833 | $562.42 | | |
| LIB | Library Sno-Isle GEN | 0.3153421757 | $1,124,833 | $1,124,833 | $354.71 | | |
| LIBCAP | Library Sno-Isle BOND (Cap Fac Imp Area) | 0.0543427938 | $1,124,833 | $1,124,833 | $61.13 | | |
| POCOUP | Port of Coupeville GEN | 0.1093371703 | $1,124,833 | $1,124,833 | $122.99 | | |
| POCOUPIDD | Port of Coupeville IDD | 0.3409740022 | $1,124,833 | $1,124,833 | $383.54 | | |
| COUPSDTECH | School 204 CP (TECH) | 0.7545480007 | $1,124,833 | $1,124,833 | $848.74 | | |
| SCH204MO | School 204 Enrichment | 0.6716186034 | $1,124,833 | $1,124,833 | $755.46 | | |
| ST | State School | 1.3035497053 | $1,124,833 | $1,124,833 | $1,466.28 | | |
| ST2 | State School Part 2 | 0.8169543533 | $1,124,833 | $1,124,833 | $918.94 | | |
| | Total Tax Rate: | 7.6592568070 | | | | | |
| | | | | Taxes w/Current Exemptions: | $8,615.41 | | |
| | | | | Taxes w/o Exemptions: | $8,615.41 | | |
Improvement / Building
| Improvement #1: | RESIDENTIAL | State Code: | Y | 3022.5 sqft | Value: | $397,833 |
| Bathrooms: | 3 | Bedrooms: | 2 | | Ceiling: | DRY WALL SPRAYED | Exterior Wall/Cover: | WOOD SIDING | | Floor Covering: | CARPET/VINYL 80-20 | Floor Structure: | WOOD W/SUBFLOOR | | Foundation: | CONCRETE | Heating: | FHA GAS | | Interior Finish: | DRYWALL PAINT | Plumbing Fixture Cnt: | 13 | | Roof Slope: | 4" IN 12" | Roof Structure/Cover: | CJ ALUMINIUM HEAVY |
|
| | Type | Description | Class CD | Sub Class CD | Year Built | Area |
| | BAS | BASE/MAIN FLOOR | 3 | 0 | 1979 | 1522.5 |
| | DWN | DOWNSTAIRS LIVING AREA | 3 | 0 | 1979 | 1500.0 |
| | OWP | OPEN WOOD PORCH W/STEPS | 3 | 0 | 1979 | 151.5 |
| | OWP | OPEN WOOD PORCH W/STEPS | 3 | 0 | 1979 | 203.1 |
| | OWP | OPEN WOOD PORCH W/STEPS | 3 | 0 | 1979 | 190.0 |
| | OWP | OPEN WOOD PORCH W/STEPS | 3 | 0 | 1979 | 153.2 |
| | OWR | OPEN WOOD PORCH W/STEPS/ROOF | 3 | 0 | 1979 | 208.0 |
| | OWC | OPEN WOOD PORCH W/STEPS/ROOF/C | 3 | 0 | 1979 | 98.6 |
| | DGR | DETACHED GARAGE | 3 | 0 | 1979 | 576.0 |
| | UTY | STORAGE/UTILITY | 3 | 0 | 1979 | 144.0 |
| | OWP | OPEN WOOD PORCH W/STEPS | 3 | 0 | 1979 | 237.4 |
Sketch
Property Image
Land
| 1 | HB | HIGH BLUFF | 0.6300 | 27442.80 | 200.00 | 0.00 | 1.00 | $725,000 | $0 |
| 2 | 55 | TIDES | 0.0000 | 0.00 | 200.00 | 0.00 | 1.00 | $2,000 | $0 |
Roll Value History
| 2026 | N/A | N/A | N/A | N/A | N/A |
| 2025 | $397,833 | $727,000 | $0 | $1,124,833 | $1,124,833 |
| 2024 | $402,981 | $727,000 | $0 | $1,129,981 | $1,129,981 |
| 2023 | $407,806 | $702,000 | $0 | $1,109,806 | $1,109,806 |
| 2022 | $373,910 | $577,000 | $0 | $950,910 | $950,910 |
| 2021 | $329,192 | $477,000 | $0 | $806,192 | $806,192 |
| 2020 | $321,629 | $427,000 | $0 | $748,629 | $748,629 |
| 2019 | $259,407 | $477,000 | $0 | $736,407 | $736,407 |
| 2018 | $260,167 | $375,000 | $0 | $635,167 | $635,167 |
| 2017 | $169,696 | $352,000 | $0 | $521,696 | $521,696 |
| 2016 | $172,185 | $352,000 | $0 | $524,185 | $524,185 |
| 2015 | $174,676 | $352,000 | $0 | $526,676 | $526,676 |
| 2014 | $177,166 | $352,000 | $0 | $529,166 | $529,166 |
| 2013 | $179,657 | $315,466 | $0 | $495,123 | $495,123 |
| 2012 | $182,146 | $315,466 | $0 | $497,612 | $497,612 |
| 2011 | $184,636 | $315,466 | $0 | $500,102 | $500,102 |
| 2010 | $200,106 | $315,466 | $0 | $515,572 | $515,572 |
| 2009 | $208,487 | $419,955 | $0 | $628,442 | $628,442 |
| 2008 | $211,231 | $418,592 | $0 | $629,823 | $629,823 |
| 2007 | $199,235 | $247,454 | $0 | $446,689 | $446,689 |
Deed and Sales History
| 1 | 07/15/2020 | QCD | Quit Claim Deed | SINCLAIR TRUSTEE, GEORGE MICHAEL | SINCLAIR TRUSTEE, GEORGE MICHAEL | | | $0.00 | 46328 | 4506527 |
| 2 | 01/03/2018 | WD | Warranty Deed | MELVER, RONALD A | SINCLAIR TRUSTEE, GEORGE MICHAEL | | | $670,000.00 | 32524 | 4436947 |
| 3 | 04/15/2010 | PRD | Personal Representatives Deed | MELVER, ROALD A | MELVER, RONALD A | | | $0.00 | 879 | 4272202 |
| 4 | 04/12/2010 | QCD | Quit Claim Deed | MELVER, RONALD A | MELVER, RONALD A | | | $0.00 | 1084 | 4273377 |
| 5 | 04/12/2010 | QCD | Quit Claim Deed | MELVER, RONALD A | MELVER, RONALD A | | | $0.00 | 1011 | 4272974 |
| 6 | 08/25/2003 | 5 | DNU - Marriage License/Name Change | MELVER, ROALD A | MELVER, ROALD A | | | $0.00 | 69986 | 0 |
| 7 | 01/01/1900 | OTHER | Other - Misc. Documents | Unknown | MELVER, ROALD A | | | $0.00 | 0 | 0 |
Payout Agreement
| No payout information available.. |