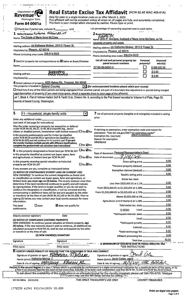
Property
Account |
| Property ID: | 621937 | Abbreviated Legal Description: | IN J C DAVIS DC: BG NECR SD DC 48.18'S OF NWCR TS DAVIS DC S519.64' W20' TO WLN SHERMAN RD TPB W320' N92.20 TO NLN J C DAVIS DC E320' S92.20' TPB TGW & SUB EZ FR 033-499 & PT 025-499 |
| Geographic ID: | R13232-032-4990 | Agent Code: | |
| Type: | Real | | |
| Tax Area: | 310 - APPRAISER-Cpvl Schl Dist, outside Cpvl, improved & 1 acre or less | Land Use Code | 11 |
| Open Space: | N | DFL | N |
| Historic Property: | N | Remodel Property: | N |
| Multi-Family Redevelopment: | N | | |
| Township: | 32 | Section: | 32 |
| Range: | R1 |
Location |
| Address: | 24 MOUW LN COUPEVILLE, WA 98239 | Mapsco: | |
| Neighborhood: | Cycle 2 | Map ID: | 171 |
| Neighborhood CD: | 2 |
Owner |
| Name: | HAWKINS-GOLDMAN, LEANNE MARY | Owner ID: | 298887 |
| Mailing Address: | DAVID GOLDMAN 26 S EBEY RD COUPEVILLE, WA 98239 | % Ownership: | 100.0000000000% |
| | | Exemptions: | |
Taxes and Assessment Details
Values
| (+) Improvement Homesite Value: | + | $0 | |
| (+) Improvement Non-Homesite Value: | + | $706,610 | |
| (+) Land Homesite Value: | + | $0 | |
| (+) Land Non-Homesite Value: | + | $340,000 | |
| (+) Curr Use (HS): | + | $0 | $0 |
| (+) Curr Use (NHS): | + | $0 | $0 |
| | | -------------------------- | |
| (=) Market Value: | = | $1,046,610 | |
| (–) Productivity Loss: | – | $0 | |
| | | -------------------------- | |
| (=) Subtotal: | = | $1,046,610 | |
| (+) Senior Appraised Value: | + | $0 | |
| (+) Non-Senior Appraised Value: | + | $1,046,610 | |
| | | -------------------------- | |
| (=) Total Appraised Value: | = | $1,046,610 | |
| (–) Senior Exemption Loss: | – | $0 | |
| (–) Exemption Loss: | – | $0 | |
| | | -------------------------- | |
| (=) Taxable Value: | = | $1,046,610 | |
Taxing Jurisdiction
| Owner: | HAWKINS-GOLDMAN, LEANNE MARY | | |
| % Ownership: | 100.0000000000% | | |
| Total Value: | $1,046,610 | | |
| Tax Area: | 310 - APPRAISER-Cpvl Schl Dist, outside Cpvl, improved & 1 acre or less |
| CF | Conservation Futures | 0.0316035091 | $1,046,610 | $1,046,610 | $33.08 | | |
| CEM2 | Cemetery #2 | 0.0095056933 | $1,046,610 | $1,046,610 | $9.95 | | |
| FIRE5 | Fire & Rescue Dist #5 C Whidbey GEN | 1.2008080668 | $1,046,610 | $1,046,610 | $1,256.78 | | |
| FIRE5BOND | Fire & Rescue Dist #5 C Whidbey BOND | 0.1400090713 | $1,046,610 | $1,046,610 | $146.53 | | |
| HOBOND | Hospital BOND | 0.1910887512 | $1,046,610 | $1,046,610 | $200.00 | | |
| HOGEN | Hospital GEN | 0.3902502903 | $1,046,610 | $1,046,610 | $408.44 | | |
| CE | County Current Expense | 0.3708482477 | $1,046,610 | $1,046,610 | $388.13 | | |
| CR | County Roads | 0.4584763726 | $1,046,610 | $1,046,610 | $479.85 | | |
| ISLANDEMS | Hospital GEN (EMS) | 0.5000000000 | $1,046,610 | $1,046,610 | $523.31 | | |
| LIB | Library Sno-Isle GEN | 0.3153421757 | $1,046,610 | $1,046,610 | $330.04 | | |
| LIBCAP | Library Sno-Isle BOND (Cap Fac Imp Area) | 0.0543427938 | $1,046,610 | $1,046,610 | $56.88 | | |
| POCOUP | Port of Coupeville GEN | 0.1093371703 | $1,046,610 | $1,046,610 | $114.43 | | |
| POCOUPIDD | Port of Coupeville IDD | 0.3409740022 | $1,046,610 | $1,046,610 | $356.87 | | |
| COUPSDTECH | School 204 CP (TECH) | 0.7545480007 | $1,046,610 | $1,046,610 | $789.72 | | |
| SCH204MO | School 204 Enrichment | 0.6716186034 | $1,046,610 | $1,046,610 | $702.92 | | |
| ST | State School | 1.3035497053 | $1,046,610 | $1,046,610 | $1,364.31 | | |
| ST2 | State School Part 2 | 0.8169543533 | $1,046,610 | $1,046,610 | $855.03 | | |
| | Total Tax Rate: | 7.6592568070 | | | | | |
| | | | | Taxes w/Current Exemptions: | $8,016.27 | | |
| | | | | Taxes w/o Exemptions: | $8,016.27 | | |
Improvement / Building
| Improvement #1: | RESIDENTIAL | State Code: | Y | 3247.8 sqft | Value: | $706,610 |
| Bathrooms: | 2.5 | Bedrooms: | 3 | | Ceiling: | DRYWALL PAINTED | Cooling: | HEAT PUMP/CONV/V | | Exterior Wall/Cover: | CEMENT FIBER | Floor Covering: | HARDWOOD/CARP 80-20 | | Floor Structure: | WOOD W/SUBFLOOR | Foundation: | CONCRETE | | Interior Finish: | DRYWALL PAINT | Plumbing Fixture Cnt: | 16 | | Roof Slope: | 6" IN 12" | Roof Structure/Cover: | CJ ASPHALT |
|
| | Type | Description | Class CD | Sub Class CD | Year Built | Area |
| | BAS | BASE/MAIN FLOOR | 4 | 0 | 1992 | 3247.8 |
| | OWP | OPEN WOOD PORCH W/STEPS | 4 | 0 | 1992 | 790.2 |
| | OWP | OPEN WOOD PORCH W/STEPS | 4 | 0 | 1992 | 1081.4 |
| | oGAR | GARAGE | 4 | 0 | 1992 | 1440.0 |
Sketch
Property Image
Land
| 1 | HS | HOMESITE | 0.6800 | 29620.80 | 0.00 | 0.00 | 1.00 | $340,000 | $0 |
Roll Value History
| 2026 | N/A | N/A | N/A | N/A | N/A |
| 2025 | $706,610 | $340,000 | $0 | $1,046,610 | $1,046,610 |
| 2024 | $690,794 | $330,000 | $0 | $1,020,794 | $1,020,794 |
| 2023 | $699,402 | $320,000 | $0 | $1,019,402 | $1,019,402 |
| 2022 | $641,126 | $280,000 | $0 | $921,126 | $921,126 |
| 2021 | $529,632 | $200,000 | $0 | $729,632 | $729,632 |
| 2020 | $516,985 | $180,000 | $0 | $696,985 | $696,985 |
| 2019 | $410,907 | $210,000 | $0 | $620,907 | $620,907 |
| 2018 | $405,397 | $180,000 | $0 | $585,397 | $585,397 |
| 2017 | $407,998 | $180,000 | $0 | $587,998 | $587,998 |
| 2016 | $413,161 | $180,000 | $0 | $593,161 | $593,161 |
| 2015 | $418,326 | $145,000 | $0 | $563,326 | $563,326 |
| 2014 | $423,491 | $140,250 | $0 | $563,741 | $563,741 |
| 2013 | $428,655 | $140,250 | $0 | $568,905 | $568,905 |
| 2012 | $420,394 | $140,250 | $0 | $560,644 | $560,644 |
| 2011 | $424,714 | $165,000 | $0 | $589,714 | $589,714 |
| 2010 | $440,448 | $165,000 | $0 | $605,448 | $605,448 |
| 2009 | $457,780 | $175,000 | $0 | $632,780 | $632,780 |
| 2008 | $478,024 | $150,000 | $0 | $628,024 | $628,024 |
| 2007 | $484,515 | $107,250 | $0 | $591,765 | $591,765 |
Deed and Sales History
| 1 | 04/12/2021 | WD | Warranty Deed | MOUW, H GLENN | HAWKINS-GOLDMAN, LEANNE MARY | | | $770,000.00 | 47777 | 4516489 |
| 2 | 03/21/2001 | WD | Warranty Deed | WERK, DON W | MOUW, H HLENN | | | $285,000.00 | 10865 | 20027735 |
| 3 | 06/01/1991 | WD | Warranty Deed | SHERMAN, CLARK H | WERK, DON W | | | $55,000.00 | 11996 | 91008500 |
| 4 | 09/01/1987 | OTHER | Other - Misc. Documents | SHERMAN, CLARK H | SHERMAN, CLARK H | | | $0.00 | 62357 | 87007336 |
| 5 | 01/01/1900 | OTHER | Other - Misc. Documents | Unknown | SHERMAN, CLARK H | | | $0.00 | 0 | 0 |
Payout Agreement
| No payout information available.. |