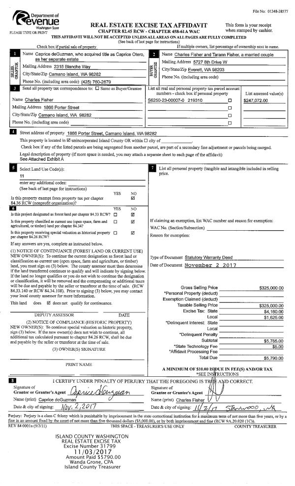
Property
Account |
| Property ID: | 622339 | Abbreviated Legal Description: | MIDWAY TRADERS VILLAGE CONDO APT 14 |
| Geographic ID: | S7507-00-00014-0 | Agent Code: | |
| Type: | Real | | |
| Tax Area: | 100 - APPRAISER-OH Schl Dist, in OH | Land Use Code | 50 |
| Open Space: | N | DFL | N |
| Historic Property: | N | Remodel Property: | N |
| Multi-Family Redevelopment: | N | | |
| Township: | | Section: | |
| Range: | |
Location |
| Address: | 390 NE MIDWAY BLVD UNIT 14 OAK HARBOR, WA 98277 | Mapsco: | |
| Neighborhood: | 6BcOH-ne midway | Map ID: | 257 |
| Neighborhood CD: | 6BcOHnemid |
Owner |
| Name: | THE KATIE GROUP LLC | Owner ID: | 305277 |
| Mailing Address: | 1450 BALDA RD OAK HARBOR, WA 98277 | % Ownership: | 100.0000000000% |
| | | Exemptions: | |
Taxes and Assessment Details
Values
| (+) Improvement Homesite Value: | + | $0 | |
| (+) Improvement Non-Homesite Value: | + | $29,400 | |
| (+) Land Homesite Value: | + | $0 | |
| (+) Land Non-Homesite Value: | + | $5,000 | |
| (+) Curr Use (HS): | + | $0 | $0 |
| (+) Curr Use (NHS): | + | $0 | $0 |
| | | -------------------------- | |
| (=) Market Value: | = | $34,400 | |
| (–) Productivity Loss: | – | $0 | |
| | | -------------------------- | |
| (=) Subtotal: | = | $34,400 | |
| (+) Senior Appraised Value: | + | $0 | |
| (+) Non-Senior Appraised Value: | + | $34,400 | |
| | | -------------------------- | |
| (=) Total Appraised Value: | = | $34,400 | |
| (–) Senior Exemption Loss: | – | $0 | |
| (–) Exemption Loss: | – | $0 | |
| | | -------------------------- | |
| (=) Taxable Value: | = | $34,400 | |
Taxing Jurisdiction
| Owner: | THE KATIE GROUP LLC | | |
| % Ownership: | 100.0000000000% | | |
| Total Value: | $34,400 | | |
| Tax Area: | 100 - APPRAISER-OH Schl Dist, in OH |
| CF | Conservation Futures | 0.0316035091 | $34,400 | $34,400 | $1.09 | | |
| CEM1 | Cemetery #1 | 0.0040320932 | $34,400 | $34,400 | $0.14 | | |
| COH | City of Oak Harbor | 2.3001546061 | $34,400 | $34,400 | $79.13 | | |
| OAKBOND | City of Oak Harbor BOND | 0.1926904192 | $34,400 | $34,400 | $6.63 | | |
| HOBOND | Hospital BOND | 0.1910887512 | $34,400 | $34,400 | $6.57 | | |
| HOGEN | Hospital GEN | 0.3902502903 | $34,400 | $34,400 | $13.42 | | |
| CE | County Current Expense | 0.3708482477 | $34,400 | $34,400 | $12.76 | | |
| ISLANDEMS | Hospital GEN (EMS) | 0.5000000000 | $34,400 | $34,400 | $17.20 | | |
| LIB | Library Sno-Isle GEN | 0.3153421757 | $34,400 | $34,400 | $10.85 | | |
| NWHIDPRMT | P & R N Whidbey GEN | 0.2004466701 | $34,400 | $34,400 | $6.90 | | |
| SCH201MO | School 201 Enrichment | 1.8559231640 | $34,400 | $34,400 | $63.84 | | |
| ST | State School | 1.3035497053 | $34,400 | $34,400 | $44.84 | | |
| ST2 | State School Part 2 | 0.8169543533 | $34,400 | $34,400 | $28.10 | | |
| | Total Tax Rate: | 8.4728839852 | | | | | |
| | | | | Taxes w/Current Exemptions: | $291.47 | | |
| | | | | Taxes w/o Exemptions: | $291.47 | | |
Improvement / Building
| Improvement #1: | COMMERCIAL | State Code: | F1 | 607.5 sqft | Value: | $29,400 |
| Bathrooms: | 0 | Bedrooms: | 0 | | Ceiling: | PAINT OPEN FLOOR BAS | Exterior Wall/Cover: | WD SIDING/WOOD FRAME | | Floor Covering: | CARPET 100% | Floor Structure: | WOOD ON WOOD JOIST | | Foundation: | CONCRETE | Heating: | FHA ELECTRIC | | Interior Finish: | SHOPPING CENTER | Plumbing Fixture Cnt: | 1 | | Roof Structure/Cover: | CJ WOOD SHAKES |   |   |
|
| | Type | Description | Class CD | Sub Class CD | Year Built | Area |
| | BAS | BASE/MAIN FLOOR | 3 | 0 | 1986 | 607.5 |
| | COMA | Common Area Improvement | 3 | 0 | 1986 | 0.0 |
Sketch
Property Image
Land
| 1 | 68 | COMMERCIAL RETAIL | 0.0000 | 1261.00 | 0.00 | 0.00 | 1.00 | $5,000 | $0 |
Roll Value History
| 2026 | N/A | N/A | N/A | N/A | N/A |
| 2025 | $29,400 | $5,000 | $0 | $34,400 | $34,400 |
| 2024 | $33,304 | $5,000 | $0 | $38,304 | $38,304 |
| 2023 | $35,907 | $5,000 | $0 | $40,907 | $40,907 |
| 2022 | $26,277 | $5,000 | $0 | $31,277 | $31,277 |
| 2021 | $23,319 | $5,000 | $0 | $28,319 | $28,319 |
| 2020 | $22,988 | $5,000 | $0 | $27,988 | $27,988 |
| 2019 | $28,229 | $6,880 | $0 | $35,109 | $35,109 |
| 2018 | $18,670 | $21,891 | $0 | $40,561 | $40,561 |
| 2017 | $18,792 | $21,891 | $0 | $40,683 | $40,683 |
| 2016 | $14,046 | $21,891 | $0 | $35,937 | $35,937 |
| 2015 | $14,244 | $21,891 | $0 | $36,135 | $36,135 |
| 2014 | $14,443 | $21,891 | $0 | $36,334 | $36,334 |
| 2013 | $41,831 | $21,891 | $0 | $63,722 | $63,722 |
| 2012 | $45,482 | $21,891 | $0 | $67,373 | $67,373 |
| 2011 | $45,482 | $21,891 | $0 | $67,373 | $67,373 |
| 2010 | $29,914 | $21,891 | $0 | $51,805 | $51,805 |
| 2009 | $30,380 | $25,157 | $0 | $55,537 | $55,537 |
| 2008 | $31,312 | $25,157 | $0 | $56,469 | $56,469 |
| 2007 | $31,779 | $25,157 | $0 | $56,936 | $56,936 |
Deed and Sales History
| 1 | 07/26/2022 | WD | Warranty Deed | STE. MARIE, KAREN T | THE KATIE GROUP LLC | | | $71,000.00 | 54019 | 4549098 |
|   | |
| 2 | 11/30/2017 | WD | Warranty Deed | PEOPLES BANK | STE. MARIE, KAREN T | | | $55,000.00 | 32153 | 4435196 |
|   | |
| 3 | 04/19/2013 | DEEDINLIEU | Deed In Lieu Of Foreclosure | SEATREE PROPERTIES LLC | PEOPLES BANK | | | $0.00 | 11091 | 4338352 |
| 4 | 03/29/2003 | WD | Warranty Deed | WILLIS, JOHN H | SEATREE PROPERTIES LLC, | | | $23,210.00 | 31362 | 4053426 |
| 5 | 02/01/1990 | TRUSTEED | Trustee's Deed | MIDWAY, TRADERS V | WILLIS, JOHN H | | | $0.00 | 1266 | 90004059 |
| 6 | 02/01/1990 | TRUSTEED | Trustee's Deed | WILLIS, JOHN H | WILLIS, JOHN H | | | $0.00 | 1569 | 90005062 |
| 7 | 01/01/1900 | OTHER | Other - Misc. Documents | Unknown | MIDWAY, TRADERS V | | | $0.00 | 0 | 0 |
Payout Agreement
| No payout information available.. |