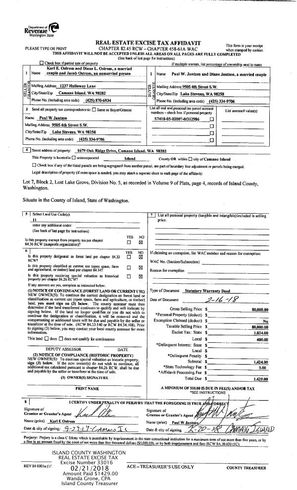
Property
Account |
| Property ID: | 62238 | Abbreviated Legal Description: | 8 - S135' OF N165' OF GL4 EX PT LY W OF HWY 525 EX W343' INCL ADJ TIDES TGW EZ WELL SITE (TR 2 & PT TR 1 SP 74-037) |
| Geographic ID: | R23016-521-1150 | Agent Code: | |
| Type: | Real | | |
| Tax Area: | 312 - APPRAISER-Cpvl Schl Dist, outside Cpvl, improved, greater than 1 acre | Land Use Code | 11 |
| Open Space: | N | DFL | N |
| Historic Property: | N | Remodel Property: | N |
| Multi-Family Redevelopment: | N | | |
| Township: | 30 | Section: | 16 |
| Range: | R2 |
Location |
| Address: | 24842 SR 525 GREENBANK, WA 98253 | Mapsco: | |
| Neighborhood: | Cycle 3 | Map ID: | 383 |
| Neighborhood CD: | 3 |
Owner |
| Name: | KAREN SCHWEERS COOK & | Owner ID: | 283712 |
| Mailing Address: | DONOVAN J COOK REVOCABLE TRUST 512 GERONA RD STANFORD, CA 94305-8449 | % Ownership: | 100.0000000000% |
| | | Exemptions: | |
Taxes and Assessment Details
Values
| (+) Improvement Homesite Value: | + | $0 | |
| (+) Improvement Non-Homesite Value: | + | $22,690 | |
| (+) Land Homesite Value: | + | $0 | |
| (+) Land Non-Homesite Value: | + | $351,350 | |
| (+) Curr Use (HS): | + | $0 | $0 |
| (+) Curr Use (NHS): | + | $0 | $0 |
| | | -------------------------- | |
| (=) Market Value: | = | $374,040 | |
| (–) Productivity Loss: | – | $0 | |
| | | -------------------------- | |
| (=) Subtotal: | = | $374,040 | |
| (+) Senior Appraised Value: | + | $0 | |
| (+) Non-Senior Appraised Value: | + | $374,040 | |
| | | -------------------------- | |
| (=) Total Appraised Value: | = | $374,040 | |
| (–) Senior Exemption Loss: | – | $0 | |
| (–) Exemption Loss: | – | $0 | |
| | | -------------------------- | |
| (=) Taxable Value: | = | $374,040 | |
Taxing Jurisdiction
| Owner: | KAREN SCHWEERS COOK & | | |
| % Ownership: | 100.0000000000% | | |
| Total Value: | $374,040 | | |
| Tax Area: | 312 - APPRAISER-Cpvl Schl Dist, outside Cpvl, improved, greater than 1 acre |
| CF | Conservation Futures | 0.0316035091 | $374,040 | $374,040 | $11.82 | | |
| CEM2 | Cemetery #2 | 0.0095056933 | $374,040 | $374,040 | $3.56 | | |
| FIRE5 | Fire & Rescue Dist #5 C Whidbey GEN | 1.2008080668 | $374,040 | $374,040 | $449.15 | | |
| FIRE5BOND | Fire & Rescue Dist #5 C Whidbey BOND | 0.1400090713 | $374,040 | $374,040 | $52.37 | | |
| HOBOND | Hospital BOND | 0.1910887512 | $374,040 | $374,040 | $71.47 | | |
| HOGEN | Hospital GEN | 0.3902502903 | $374,040 | $374,040 | $145.97 | | |
| CE | County Current Expense | 0.3708482477 | $374,040 | $374,040 | $138.71 | | |
| CR | County Roads | 0.4584763726 | $374,040 | $374,040 | $171.49 | | |
| ISLANDEMS | Hospital GEN (EMS) | 0.5000000000 | $374,040 | $374,040 | $187.02 | | |
| LIB | Library Sno-Isle GEN | 0.3153421757 | $374,040 | $374,040 | $117.95 | | |
| LIBCAP | Library Sno-Isle BOND (Cap Fac Imp Area) | 0.0543427938 | $374,040 | $374,040 | $20.33 | | |
| POCOUP | Port of Coupeville GEN | 0.1093371703 | $374,040 | $374,040 | $40.90 | | |
| POCOUPIDD | Port of Coupeville IDD | 0.3409740022 | $374,040 | $374,040 | $127.54 | | |
| COUPSDTECH | School 204 CP (TECH) | 0.7545480007 | $374,040 | $374,040 | $282.23 | | |
| SCH204MO | School 204 Enrichment | 0.6716186034 | $374,040 | $374,040 | $251.21 | | |
| ST | State School | 1.3035497053 | $374,040 | $374,040 | $487.58 | | |
| ST2 | State School Part 2 | 0.8169543533 | $374,040 | $374,040 | $305.57 | | |
| | Total Tax Rate: | 7.6592568070 | | | | | |
| | | | | Taxes w/Current Exemptions: | $2,864.87 | | |
| | | | | Taxes w/o Exemptions: | $2,864.87 | | |
Improvement / Building
| Improvement #1: | RESIDENTIAL | State Code: | Y | 0.0 sqft | Value: | $22,690 |
Sketch
Property Image
Land
| 1 | HB | HIGH BLUFF | 2.2600 | 98445.60 | 130.00 | 0.00 | 1.00 | $350,000 | $0 |
| 2 | 55 | TIDES | 0.0000 | 0.00 | 135.00 | 0.00 | 1.00 | $1,350 | $0 |
Roll Value History
| 2026 | N/A | N/A | N/A | N/A | N/A |
| 2025 | $22,690 | $351,350 | $0 | $374,040 | $374,040 |
| 2024 | $22,690 | $351,350 | $0 | $374,040 | $374,040 |
| 2023 | $22,690 | $351,350 | $0 | $374,040 | $374,040 |
| 2022 | $22,690 | $301,350 | $0 | $324,040 | $324,040 |
| 2021 | $22,690 | $251,350 | $0 | $274,040 | $274,040 |
| 2020 | $22,690 | $226,350 | $0 | $249,040 | $249,040 |
| 2019 | $15,955 | $426,350 | $0 | $442,305 | $442,305 |
| 2018 | $15,955 | $350,000 | $0 | $365,955 | $365,955 |
| 2017 | $15,955 | $301,350 | $0 | $317,305 | $317,305 |
| 2016 | $15,955 | $301,350 | $0 | $317,305 | $317,305 |
| 2015 | $15,955 | $301,350 | $0 | $317,305 | $317,305 |
| 2014 | $15,955 | $301,350 | $0 | $317,305 | $317,305 |
| 2013 | $15,955 | $247,362 | $0 | $263,317 | $263,317 |
| 2012 | $15,955 | $247,362 | $0 | $263,317 | $263,317 |
| 2011 | $15,955 | $247,362 | $0 | $263,317 | $263,317 |
| 2010 | $15,955 | $247,362 | $0 | $263,317 | $263,317 |
| 2009 | $16,171 | $329,359 | $0 | $345,530 | $345,530 |
| 2008 | $16,387 | $323,788 | $0 | $340,175 | $340,175 |
| 2007 | $14,246 | $229,093 | $0 | $243,339 | $243,339 |
Deed and Sales History
| 1 | 11/28/2017 | SPWARDEED | Special Warranty Deed | COOK, KAREN S & DONOVAN J | KAREN SCHWEERS COOK & | | | $0.00 | 32745 | 4438170 |
| 2 | 07/01/1988 | WD | Warranty Deed | COOK, KAREN S | COOK, KAREN S | | | $42,900.00 | 82358 | 88008936 |
| 3 | 07/01/1988 | QCD | Quit Claim Deed | HOOVER, CLAYTON Q | COOK, KAREN S | | | $0.00 | 82360 | 88008940 |
| 4 | 01/01/1900 | OTHER | Other - Misc. Documents | Unknown | HOOVER, CLAYTON Q | | | $0.00 | 0 | 0 |
Payout Agreement
| No payout information available.. |