Property
Account |
| Property ID: | 622543 | Abbreviated Legal Description: | MIDWAY TRADERS VILLAGE CONDO APT 35 |
| Geographic ID: | S7507-00-00035-0 | Agent Code: | |
| Type: | Real | | |
| Tax Area: | 100 - APPRAISER-OH Schl Dist, in OH | Land Use Code | 50 |
| Open Space: | N | DFL | N |
| Historic Property: | N | Remodel Property: | N |
| Multi-Family Redevelopment: | N | | |
| Township: | | Section: | |
| Range: | |
Location |
| Address: | 390 NE MIDWAY BLVD UNIT 35 OAK HARBOR, WA 98277 | Mapsco: | |
| Neighborhood: | 6BcOH-ne midway | Map ID: | 257 |
| Neighborhood CD: | 6BcOHnemid |
Owner |
| Name: | LIGHTHOUSE BEHAVIORAL HEALTH, PLLC | Owner ID: | 307018 |
| Mailing Address: | 2459 OLYMPIC DR OAK HARBOR, WA 98277 | % Ownership: | 100.0000000000% |
| | | Exemptions: | |
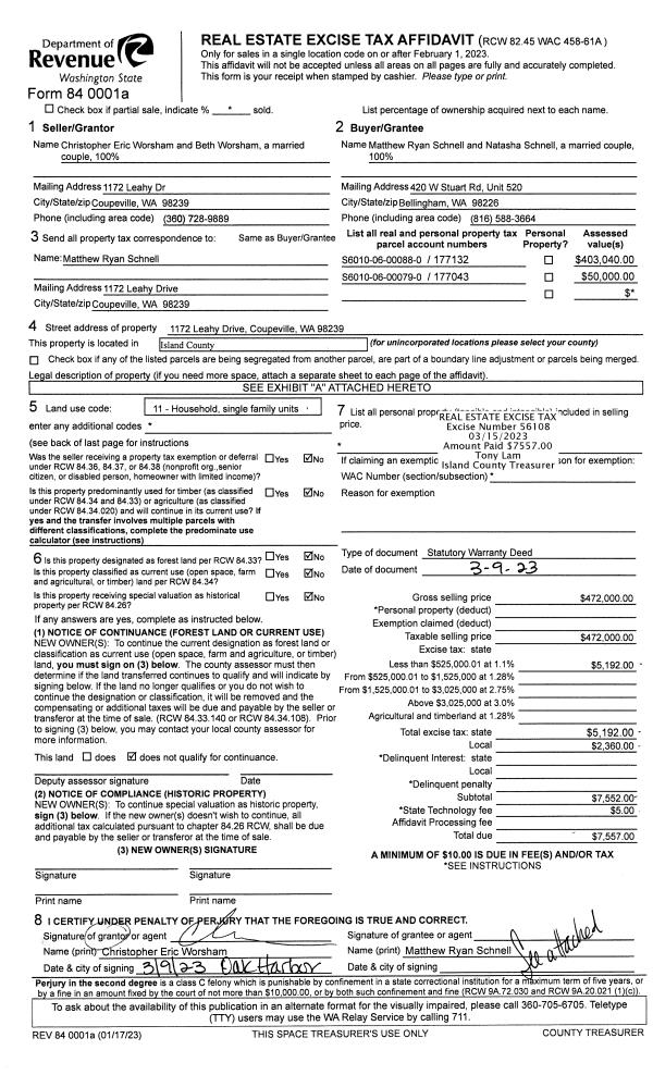
Taxes and Assessment Details
Values
| (+) Improvement Homesite Value: | + | $0 | |
| (+) Improvement Non-Homesite Value: | + | $9,685 | |
| (+) Land Homesite Value: | + | $0 | |
| (+) Land Non-Homesite Value: | + | $5,000 | |
| (+) Curr Use (HS): | + | $0 | $0 |
| (+) Curr Use (NHS): | + | $0 | $0 |
| | | -------------------------- | |
| (=) Market Value: | = | $14,685 | |
| (–) Productivity Loss: | – | $0 | |
| | | -------------------------- | |
| (=) Subtotal: | = | $14,685 | |
| (+) Senior Appraised Value: | + | $0 | |
| (+) Non-Senior Appraised Value: | + | $14,685 | |
| | | -------------------------- | |
| (=) Total Appraised Value: | = | $14,685 | |
| (–) Senior Exemption Loss: | – | $0 | |
| (–) Exemption Loss: | – | $0 | |
| | | -------------------------- | |
| (=) Taxable Value: | = | $14,685 | |
Taxing Jurisdiction
| Owner: | LIGHTHOUSE BEHAVIORAL HEALTH, PLLC | | |
| % Ownership: | 100.0000000000% | | |
| Total Value: | $14,685 | | |
| Tax Area: | 100 - APPRAISER-OH Schl Dist, in OH |
| CF | Conservation Futures | 0.0316035091 | $14,685 | $14,685 | $0.46 | | |
| CEM1 | Cemetery #1 | 0.0040320932 | $14,685 | $14,685 | $0.06 | | |
| COH | City of Oak Harbor | 2.3001546061 | $14,685 | $14,685 | $33.78 | | |
| OAKBOND | City of Oak Harbor BOND | 0.1926904192 | $14,685 | $14,685 | $2.83 | | |
| HOBOND | Hospital BOND | 0.1910887512 | $14,685 | $14,685 | $2.81 | | |
| HOGEN | Hospital GEN | 0.3902502903 | $14,685 | $14,685 | $5.73 | | |
| CE | County Current Expense | 0.3708482477 | $14,685 | $14,685 | $5.45 | | |
| ISLANDEMS | Hospital GEN (EMS) | 0.5000000000 | $14,685 | $14,685 | $7.34 | | |
| LIB | Library Sno-Isle GEN | 0.3153421757 | $14,685 | $14,685 | $4.63 | | |
| NWHIDPRMT | P & R N Whidbey GEN | 0.2004466701 | $14,685 | $14,685 | $2.94 | | |
| SCH201MO | School 201 Enrichment | 1.8559231640 | $14,685 | $14,685 | $27.25 | | |
| ST | State School | 1.3035497053 | $14,685 | $14,685 | $19.14 | | |
| ST2 | State School Part 2 | 0.8169543533 | $14,685 | $14,685 | $12.00 | | |
| | Total Tax Rate: | 8.4728839852 | | | | | |
| | | | | Taxes w/Current Exemptions: | $124.42 | | |
| | | | | Taxes w/o Exemptions: | $124.42 | | |
Improvement / Building
| Improvement #1: | COMMERCIAL | State Code: | F1 | 435.0 sqft | Value: | $9,685 |
| | Type | Description | Class CD | Sub Class CD | Year Built | Area |
| | UB8 | BASEMENT UNFINISHED 8" | 3 | 0 | 1986 | 97.5 |
| | COMA | Common Area Improvement | 3 | 0 | 1986 | 0.0 |
| | DWN | DOWNSTAIRS LIVING AREA | 3 | 0 | 1986 | 435.0 |
Sketch
Property Image
Land
| 1 | 68 | COMMERCIAL RETAIL | 0.0000 | 299.00 | 0.00 | 0.00 | 1.00 | $5,000 | $0 |
Roll Value History
| 2026 | N/A | N/A | N/A | N/A | N/A |
| 2025 | $9,685 | $5,000 | $0 | $14,685 | $14,685 |
| 2024 | $10,983 | $5,000 | $0 | $15,983 | $15,983 |
| 2023 | $11,849 | $5,000 | $0 | $16,849 | $16,849 |
| 2022 | $9,033 | $5,000 | $0 | $14,033 | $14,033 |
| 2021 | $9,033 | $5,000 | $0 | $14,033 | $14,033 |
| 2020 | $9,033 | $5,000 | $0 | $14,033 | $14,033 |
| 2019 | $15,055 | $6,880 | $0 | $21,935 | $21,935 |
| 2018 | $5,269 | $4,685 | $0 | $9,954 | $9,954 |
| 2017 | $5,269 | $4,685 | $0 | $9,954 | $9,954 |
| 2016 | $1,275 | $4,685 | $0 | $5,960 | $5,960 |
| 2015 | $1,275 | $4,685 | $0 | $5,960 | $5,960 |
| 2014 | $1,275 | $4,685 | $0 | $5,960 | $5,960 |
| 2013 | $3,644 | $4,685 | $0 | $8,329 | $8,329 |
| 2012 | $3,644 | $4,685 | $0 | $8,329 | $8,329 |
| 2011 | $3,644 | $4,685 | $0 | $8,329 | $8,329 |
| 2010 | $3,664 | $4,685 | $0 | $8,349 | $8,349 |
| 2009 | $3,664 | $5,382 | $0 | $9,046 | $9,046 |
| 2008 | $3,664 | $5,965 | $0 | $9,629 | $9,629 |
| 2007 | $3,664 | $5,965 | $0 | $9,629 | $9,629 |
Deed and Sales History
| 1 | 12/06/2022 | WD | Warranty Deed | PARRY, WILLIAM | LIGHTHOUSE BEHAVIORAL HEALTH, PLLC | | | $81,830.00 | 55448 | 4555036 |
|   | |
| 2 | 10/09/2006 | WD | Warranty Deed | SEATREE PROPERTIES LLC, | PARRY, WILLIAM | | | $9,939.00 | 64416 | 4184111 |
| 3 | 03/29/2003 | WD | Warranty Deed | WILLIS, JOHN H | SEATREE PROPERTIES LLC, | | | $2,750.00 | 31362 | 4053426 |
| 4 | 02/01/1990 | TRUSTEED | Trustee's Deed | MIDWAY, TRADERS V | WILLIS, JOHN H | | | $0.00 | 1266 | 90004059 |
| 5 | 02/01/1990 | TRUSTEED | Trustee's Deed | WILLIS, JOHN H | WILLIS, JOHN H | | | $0.00 | 1569 | 90005062 |
| 6 | 01/01/1900 | OTHER | Other - Misc. Documents | Unknown | MIDWAY, TRADERS V | | | $0.00 | 0 | 0 |
Payout Agreement
| No payout information available.. |