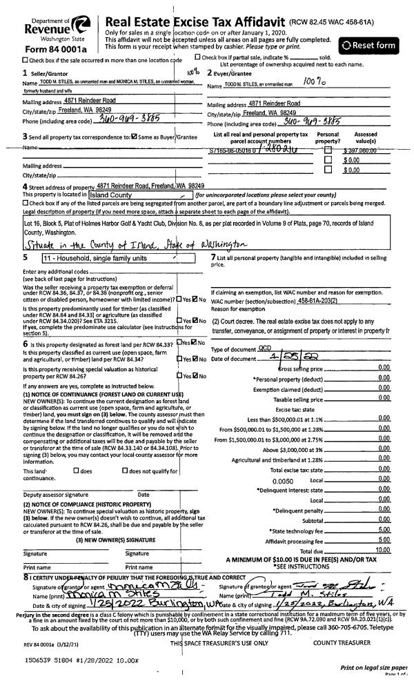
Property
Account |
| Property ID: | 622696 | Abbreviated Legal Description: | MIDWAY TRADERS VILLAGE CONDO APT 50 |
| Geographic ID: | S7507-00-00050-0 | Agent Code: | |
| Type: | Real | | |
| Tax Area: | 100 - APPRAISER-OH Schl Dist, in OH | Land Use Code | 50 |
| Open Space: | N | DFL | N |
| Historic Property: | N | Remodel Property: | N |
| Multi-Family Redevelopment: | N | | |
| Township: | | Section: | |
| Range: | |
Location |
| Address: | 390 NE MIDWAY BLVD UNIT 50 OAK HARBOR, WA 98277 | Mapsco: | |
| Neighborhood: | 6BcOH-ne midway | Map ID: | 257 |
| Neighborhood CD: | 6BcOHnemid |
Owner |
| Name: | ATKINS-CHAPEL, VALERIE GAY | Owner ID: | 311088 |
| Mailing Address: | 273 NW CALISTA COURT OAK HARBOR, WA 98277 | % Ownership: | 100.0000000000% |
| | | Exemptions: | |
Taxes and Assessment Details
Values
| (+) Improvement Homesite Value: | + | $0 | |
| (+) Improvement Non-Homesite Value: | + | $26,677 | |
| (+) Land Homesite Value: | + | $0 | |
| (+) Land Non-Homesite Value: | + | $5,000 | |
| (+) Curr Use (HS): | + | $0 | $0 |
| (+) Curr Use (NHS): | + | $0 | $0 |
| | | -------------------------- | |
| (=) Market Value: | = | $31,677 | |
| (–) Productivity Loss: | – | $0 | |
| | | -------------------------- | |
| (=) Subtotal: | = | $31,677 | |
| (+) Senior Appraised Value: | + | $0 | |
| (+) Non-Senior Appraised Value: | + | $31,677 | |
| | | -------------------------- | |
| (=) Total Appraised Value: | = | $31,677 | |
| (–) Senior Exemption Loss: | – | $0 | |
| (–) Exemption Loss: | – | $0 | |
| | | -------------------------- | |
| (=) Taxable Value: | = | $31,677 | |
Taxing Jurisdiction
| Owner: | ATKINS-CHAPEL, VALERIE GAY | | |
| % Ownership: | 100.0000000000% | | |
| Total Value: | $31,677 | | |
| Tax Area: | 100 - APPRAISER-OH Schl Dist, in OH |
| CF | Conservation Futures | 0.0316035091 | $31,677 | $31,677 | $1.00 | | |
| CEM1 | Cemetery #1 | 0.0040320932 | $31,677 | $31,677 | $0.13 | | |
| COH | City of Oak Harbor | 2.3001546061 | $31,677 | $31,677 | $72.86 | | |
| OAKBOND | City of Oak Harbor BOND | 0.1926904192 | $31,677 | $31,677 | $6.10 | | |
| HOBOND | Hospital BOND | 0.1910887512 | $31,677 | $31,677 | $6.05 | | |
| HOGEN | Hospital GEN | 0.3902502903 | $31,677 | $31,677 | $12.36 | | |
| CE | County Current Expense | 0.3708482477 | $31,677 | $31,677 | $11.75 | | |
| ISLANDEMS | Hospital GEN (EMS) | 0.5000000000 | $31,677 | $31,677 | $15.84 | | |
| LIB | Library Sno-Isle GEN | 0.3153421757 | $31,677 | $31,677 | $9.99 | | |
| NWHIDPRMT | P & R N Whidbey GEN | 0.2004466701 | $31,677 | $31,677 | $6.35 | | |
| SCH201MO | School 201 Enrichment | 1.8559231640 | $31,677 | $31,677 | $58.79 | | |
| ST | State School | 1.3035497053 | $31,677 | $31,677 | $41.29 | | |
| ST2 | State School Part 2 | 0.8169543533 | $31,677 | $31,677 | $25.88 | | |
| | Total Tax Rate: | 8.4728839852 | | | | | |
| | | | | Taxes w/Current Exemptions: | $268.39 | | |
| | | | | Taxes w/o Exemptions: | $268.39 | | |
Improvement / Building
| Improvement #1: | COMMERCIAL | State Code: | F1 | 532.5 sqft | Value: | $26,677 |
| Bathrooms: | 0 | Bedrooms: | 0 | | Ceiling: | PAINT OPEN FLOOR BAS | Exterior Wall/Cover: | WD SIDING/WOOD FRAME | | Floor Covering: | SOFTWOOD 100% | Floor Structure: | WOOD ON WOOD JOIST | | Foundation: | CONCRETE | Heating: | FHA ELECTRIC | | Interior Finish: | SHOPPING CENTER | Plumbing Fixture Cnt: | 1 | | Roof Structure/Cover: | CJ WOOD SHAKES |   |   |
|
| | Type | Description | Class CD | Sub Class CD | Year Built | Area |
| | BAS | BASE/MAIN FLOOR | 3 | 0 | 1986 | 532.5 |
| | COMA | Common Area Improvement | 3 | 0 | 1986 | 0.0 |
Sketch
Property Image
Land
| 1 | 68 | COMMERCIAL RETAIL | 0.0000 | 1097.00 | 0.00 | 0.00 | 1.00 | $5,000 | $0 |
Roll Value History
| 2026 | N/A | N/A | N/A | N/A | N/A |
| 2025 | $26,677 | $5,000 | $0 | $31,677 | $31,677 |
| 2024 | $30,174 | $5,000 | $0 | $35,174 | $35,174 |
| 2023 | $32,504 | $5,000 | $0 | $37,504 | $37,504 |
| 2022 | $25,343 | $5,000 | $0 | $30,343 | $30,343 |
| 2021 | $22,478 | $5,000 | $0 | $27,478 | $27,478 |
| 2020 | $22,156 | $5,000 | $0 | $27,156 | $27,156 |
| 2019 | $27,036 | $6,880 | $0 | $33,916 | $33,916 |
| 2018 | $17,975 | $19,044 | $0 | $37,019 | $37,019 |
| 2017 | $18,094 | $19,044 | $0 | $37,138 | $37,138 |
| 2016 | $12,991 | $19,044 | $0 | $32,035 | $32,035 |
| 2015 | $13,175 | $19,044 | $0 | $32,219 | $32,219 |
| 2014 | $13,359 | $19,044 | $0 | $32,403 | $32,403 |
| 2013 | $38,694 | $19,044 | $0 | $57,738 | $57,738 |
| 2012 | $42,075 | $19,044 | $0 | $61,119 | $61,119 |
| 2011 | $42,075 | $19,044 | $0 | $61,119 | $61,119 |
| 2010 | $27,201 | $19,044 | $0 | $46,245 | $46,245 |
| 2009 | $27,625 | $21,885 | $0 | $49,510 | $49,510 |
| 2008 | $23,880 | $18,015 | $0 | $41,895 | $41,895 |
| 2007 | $28,899 | $21,885 | $0 | $50,784 | $50,784 |
Deed and Sales History
| 1 | 01/03/2024 | QCD | Quit Claim Deed | ATKINS, AVON | ATKINS-CHAPEL, VALERIE GAY | | | $0.00 | 58917 | 4568214 |
| 2 | 02/17/2021 | QCD | Quit Claim Deed | ATKINS, CARMELITA BATULA | ATKINS, AVON | | | $0.00 | 48122 | 4518338 |
| 3 | 02/25/2021 | QCD | Quit Claim Deed | ATKINS, CARMELITA BATULA | ATKINS, AVON | | | $0.00 | 47090 | 4511969 |
| 4 | 02/18/2021 | BARGSLD | Bargain And Sale Deed | BUSINESS BANK OF SKAGIT COUNTY | ATKINS, AVON | | | $65,000.00 | 47089 | 4511968 |
|   | |
| 5 | 04/19/2013 | DEEDINLIEU | Deed In Lieu Of Foreclosure | SEATREE PROPERTIES LLC | BUSINESS BANK OF SKAGIT COUNTY | | | $0.00 | 11085 | 4338350 |
| 6 | 03/29/2003 | WD | Warranty Deed | WILLIS, JOHN H | SEATREE PROPERTIES LLC, | | | $20,900.00 | 31362 | 4053426 |
| 7 | 02/01/1990 | TRUSTEED | Trustee's Deed | MIDWAY, TRADERS V | WILLIS, JOHN H | | | $0.00 | 1266 | 90004059 |
| 8 | 02/01/1990 | TRUSTEED | Trustee's Deed | WILLIS, JOHN H | WILLIS, JOHN H | | | $0.00 | 1569 | 90005062 |
| 9 | 01/01/1900 | OTHER | Other - Misc. Documents | Unknown | MIDWAY, TRADERS V | | | $0.00 | 0 | 0 |
Payout Agreement
| No payout information available.. |