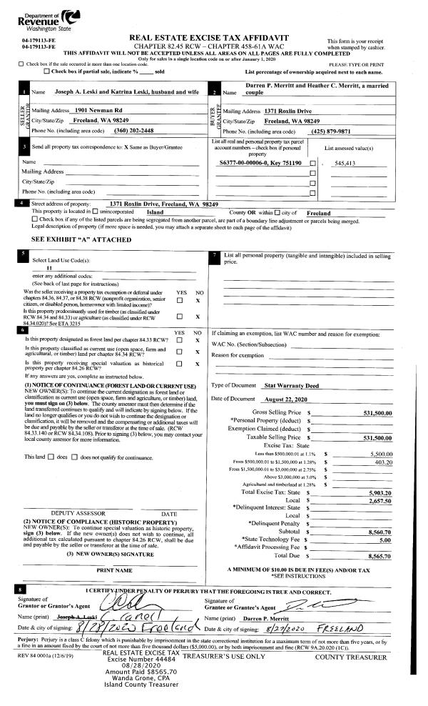
Property
Account |
| Property ID: | 622945 | Abbreviated Legal Description: | 0.3400 Acres ins Section 10s Township 32s Range R1s PARCEL B BLA 4539033.;s |
| Geographic ID: | R13210-270-3480 | Agent Code: | |
| Type: | Real | | |
| Tax Area: | 100 - APPRAISER-OH Schl Dist, in OH | Land Use Code | 11 |
| Open Space: | N | DFL | N |
| Historic Property: | N | Remodel Property: | N |
| Multi-Family Redevelopment: | N | | |
| Township: | 32 | Section: | 10 |
| Range: | R1 |
Location |
| Address: | 2835 SW SCENIC HEIGHTS ST OAK HARBOR, WA 98277 | Mapsco: | |
| Neighborhood: | Cycle 1 | Map ID: | 119 |
| Neighborhood CD: | 1 |
Owner |
| Name: | JAMES, BENJAMIN | Owner ID: | 304316 |
| Mailing Address: | 2835 SOUTHWEST SCENIC HEIGHTS ST OAK HARBOR, WA 98277 | % Ownership: | 100.0000000000% |
| | | Exemptions: | |
Taxes and Assessment Details
Values
| (+) Improvement Homesite Value: | + | $0 | |
| (+) Improvement Non-Homesite Value: | + | $165,039 | |
| (+) Land Homesite Value: | + | $0 | |
| (+) Land Non-Homesite Value: | + | $250,000 | |
| (+) Curr Use (HS): | + | $0 | $0 |
| (+) Curr Use (NHS): | + | $0 | $0 |
| | | -------------------------- | |
| (=) Market Value: | = | $415,039 | |
| (–) Productivity Loss: | – | $0 | |
| | | -------------------------- | |
| (=) Subtotal: | = | $415,039 | |
| (+) Senior Appraised Value: | + | $0 | |
| (+) Non-Senior Appraised Value: | + | $415,039 | |
| | | -------------------------- | |
| (=) Total Appraised Value: | = | $415,039 | |
| (–) Senior Exemption Loss: | – | $0 | |
| (–) Exemption Loss: | – | $0 | |
| | | -------------------------- | |
| (=) Taxable Value: | = | $415,039 | |
Taxing Jurisdiction
| Owner: | JAMES, BENJAMIN | | |
| % Ownership: | 100.0000000000% | | |
| Total Value: | $415,039 | | |
| Tax Area: | 100 - APPRAISER-OH Schl Dist, in OH |
| CF | Conservation Futures | 0.0316035091 | $415,039 | $415,039 | $13.12 | | |
| CEM1 | Cemetery #1 | 0.0040320932 | $415,039 | $415,039 | $1.67 | | |
| COH | City of Oak Harbor | 2.3001546061 | $415,039 | $415,039 | $954.65 | | |
| OAKBOND | City of Oak Harbor BOND | 0.1926904192 | $415,039 | $415,039 | $79.97 | | |
| HOBOND | Hospital BOND | 0.1910887512 | $415,039 | $415,039 | $79.31 | | |
| HOGEN | Hospital GEN | 0.3902502903 | $415,039 | $415,039 | $161.97 | | |
| CE | County Current Expense | 0.3708482477 | $415,039 | $415,039 | $153.92 | | |
| ISLANDEMS | Hospital GEN (EMS) | 0.5000000000 | $415,039 | $415,039 | $207.52 | | |
| LIB | Library Sno-Isle GEN | 0.3153421757 | $415,039 | $415,039 | $130.88 | | |
| NWHIDPRMT | P & R N Whidbey GEN | 0.2004466701 | $415,039 | $415,039 | $83.19 | | |
| SCH201MO | School 201 Enrichment | 1.8559231640 | $415,039 | $415,039 | $770.28 | | |
| ST | State School | 1.3035497053 | $415,039 | $415,039 | $541.02 | | |
| ST2 | State School Part 2 | 0.8169543533 | $415,039 | $415,039 | $339.07 | | |
| | Total Tax Rate: | 8.4728839852 | | | | | |
| | | | | Taxes w/Current Exemptions: | $3,516.57 | | |
| | | | | Taxes w/o Exemptions: | $3,516.57 | | |
Improvement / Building
| Improvement #1: | RESIDENTIAL | State Code: | Y | 587.0 sqft | Value: | $165,039 |
| Bathrooms: | 1 | Bedrooms: | 1 | | Ceiling: | DRY WALL SPRAYED | Cooling: | HEAT PUMP/CONV/V | | Exterior Wall/Cover: | CEMENT FIBER | Floor Covering: | VINYL/HARDWOOD 60-40 | | Floor Structure: | WOOD W/SUBFLOOR | Foundation: | CONCRETE | | Interior Finish: | DRYWALL PAINT | Plumbing Fixture Cnt: | 6 | | Roof Slope: | 5" IN 12" | Roof Structure/Cover: | CJ ASPHALT |
|
| | Type | Description | Class CD | Sub Class CD | Year Built | Area |
| | BAS | BASE/MAIN FLOOR | 3 | 0 | 1957 | 587.0 |
| | UTY | STORAGE/UTILITY | 3 | 0 | 1957 | 63.0 |
| | AGR | ATTACHED GARAGE | 3 | 0 | 1957 | 440.0 |
Sketch
Property Image
Land
| 1 | 15 | SQ (12001-21780) | 0.3472 | 15123.00 | 0.00 | 0.00 | 1.00 | $250,000 | $0 |
Roll Value History
| 2026 | N/A | N/A | N/A | N/A | N/A |
| 2025 | $165,039 | $250,000 | $0 | $415,039 | $415,039 |
| 2024 | $166,426 | $220,000 | $0 | $386,426 | $386,426 |
| 2023 | $167,905 | $220,000 | $0 | $387,905 | $387,905 |
| 2022 | $87,435 | $180,000 | $0 | $267,435 | $267,435 |
| 2021 | $77,232 | $135,000 | $0 | $212,232 | $212,232 |
| 2020 | $75,125 | $100,000 | $0 | $175,125 | $175,125 |
| 2019 | $52,120 | $160,000 | $0 | $212,120 | $212,120 |
| 2018 | $52,317 | $140,000 | $0 | $192,317 | $192,317 |
| 2017 | $30,165 | $120,000 | $0 | $150,165 | $150,165 |
| 2016 | $30,757 | $120,000 | $0 | $150,757 | $150,757 |
| 2015 | $31,347 | $90,000 | $0 | $121,347 | $121,347 |
| 2014 | $31,939 | $90,000 | $0 | $121,939 | $121,939 |
| 2013 | $32,530 | $102,000 | $0 | $134,530 | $134,530 |
| 2012 | $33,122 | $102,000 | $0 | $135,122 | $135,122 |
| 2011 | $32,987 | $120,000 | $0 | $152,987 | $152,987 |
| 2010 | $34,513 | $120,000 | $0 | $154,513 | $154,513 |
| 2009 | $36,143 | $152,460 | $0 | $188,603 | $188,603 |
| 2008 | $36,707 | $152,460 | $0 | $189,167 | $189,167 |
| 2007 | $37,272 | $152,460 | $0 | $189,732 | $189,732 |
Deed and Sales History
| 1 | 05/14/2022 | WD | Warranty Deed | DEVRIES, PETER | JAMES, BENJAMIN | | | $405,000.00 | 53146 | 4545296 |
| 2 | 02/15/2022 | WD | Warranty Deed | JAMES, BENJAMIN | HAUTER, KEITH A | | | $89,315.00 | 51990 | 4539033 |
| 3 | 01/22/2020 | QCD | Quit Claim Deed | JANSEN, JENNIE | DEVRIES, PETER | | | $0.00 | 51980 | 4539920 |
| 4 | 01/22/2020 | QCD | Quit Claim Deed | JANSEN, JENNIE | DEVRIES, PETER | | | $0.00 | 41944 | 4480335 |
| 5 | 07/28/2016 | WD | Warranty Deed | ONGNA, PAUL E | JANSEN, JENNIE | | | $160,000.00 | 25428 | 4404034 |
| 6 | 01/01/1991 | WD | Warranty Deed | MAYLOR, ETHYLEE | ONGNA, PAUL E | | | $54,600.00 | 10214 | 91001077 |
| 7 | 07/01/1988 | OTHER | Other - Misc. Documents | MAYLOR, THEODORE | MAYLOR, ETHYLEE | | | $0.00 | 62693 | 0 |
| 8 | 01/01/1900 | OTHER | Other - Misc. Documents | Unknown | MAYLOR, THEODORE | | | $0.00 | 0 | 0 |
Payout Agreement
| No payout information available.. |