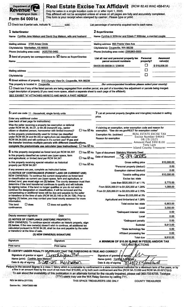
Property
Account |
| Property ID: | 623105 | Abbreviated Legal Description: | WHARFSIDE CONDO UNIT 203 16.67% INT |
| Geographic ID: | S8399-00-00203-0 | Agent Code: | |
| Type: | Real | | |
| Tax Area: | 300 - APPRAISER-Cpvl Schl Dist, in Cpvl | Land Use Code | 14 |
| Open Space: | N | DFL | N |
| Historic Property: | N | Remodel Property: | N |
| Multi-Family Redevelopment: | N | | |
| Township: | | Section: | |
| Range: | |
Location |
| Address: | 904 NW ALEXANDER ST UNIT 203 COUPEVILLE, WA 98239 | Mapsco: | |
| Neighborhood: | Cycle 2 | Map ID: | 175 |
| Neighborhood CD: | 2 |
Owner |
| Name: | ADAMS, BETTY | Owner ID: | 291834 |
| Mailing Address: | LEE ADAMS 10112 W COURT ST PASCO, WA 99301 | % Ownership: | 100.0000000000% |
| | | Exemptions: | |
Taxes and Assessment Details
Values
| (+) Improvement Homesite Value: | + | $0 | |
| (+) Improvement Non-Homesite Value: | + | $233,369 | |
| (+) Land Homesite Value: | + | $0 | |
| (+) Land Non-Homesite Value: | + | $350,000 | |
| (+) Curr Use (HS): | + | $0 | $0 |
| (+) Curr Use (NHS): | + | $0 | $0 |
| | | -------------------------- | |
| (=) Market Value: | = | $583,369 | |
| (–) Productivity Loss: | – | $0 | |
| | | -------------------------- | |
| (=) Subtotal: | = | $583,369 | |
| (+) Senior Appraised Value: | + | $0 | |
| (+) Non-Senior Appraised Value: | + | $583,369 | |
| | | -------------------------- | |
| (=) Total Appraised Value: | = | $583,369 | |
| (–) Senior Exemption Loss: | – | $0 | |
| (–) Exemption Loss: | – | $0 | |
| | | -------------------------- | |
| (=) Taxable Value: | = | $583,369 | |
Taxing Jurisdiction
| Owner: | ADAMS, BETTY | | |
| % Ownership: | 100.0000000000% | | |
| Total Value: | $583,369 | | |
| Tax Area: | 300 - APPRAISER-Cpvl Schl Dist, in Cpvl |
| CF | Conservation Futures | 0.0316035091 | $583,369 | $583,369 | $18.44 | | |
| CEM2 | Cemetery #2 | 0.0095056933 | $583,369 | $583,369 | $5.55 | | |
| COUP | City: Town of Coupeville | 0.8426414490 | $583,369 | $583,369 | $491.57 | | |
| FIRE5 | Fire & Rescue Dist #5 C Whidbey GEN | 1.2008080668 | $583,369 | $583,369 | $700.51 | | |
| FIRE5BOND | Fire & Rescue Dist #5 C Whidbey BOND | 0.1400090713 | $583,369 | $583,369 | $81.68 | | |
| HOBOND | Hospital BOND | 0.1910887512 | $583,369 | $583,369 | $111.48 | | |
| HOGEN | Hospital GEN | 0.3902502903 | $583,369 | $583,369 | $227.66 | | |
| CE | County Current Expense | 0.3708482477 | $583,369 | $583,369 | $216.34 | | |
| ISLANDEMS | Hospital GEN (EMS) | 0.5000000000 | $583,369 | $583,369 | $291.68 | | |
| LIB | Library Sno-Isle GEN | 0.3153421757 | $583,369 | $583,369 | $183.96 | | |
| LIBCAP | Library Sno-Isle BOND (Cap Fac Imp Area) | 0.0543427938 | $583,369 | $583,369 | $31.70 | | |
| POCOUP | Port of Coupeville GEN | 0.1093371703 | $583,369 | $583,369 | $63.78 | | |
| POCOUPIDD | Port of Coupeville IDD | 0.3409740022 | $583,369 | $583,369 | $198.91 | | |
| COUPSDTECH | School 204 CP (TECH) | 0.7545480007 | $583,369 | $583,369 | $440.18 | | |
| SCH204MO | School 204 Enrichment | 0.6716186034 | $583,369 | $583,369 | $391.80 | | |
| ST | State School | 1.3035497053 | $583,369 | $583,369 | $760.45 | | |
| ST2 | State School Part 2 | 0.8169543533 | $583,369 | $583,369 | $476.59 | | |
| | Total Tax Rate: | 8.0434218834 | | | | | |
| | | | | Taxes w/Current Exemptions: | $4,692.28 | | |
| | | | | Taxes w/o Exemptions: | $4,692.28 | | |
Improvement / Building
| Improvement #1: | RESIDENTIAL/COMMERCIAL | State Code: | A1 | 1328.0 sqft | Value: | $233,369 |
| Bathrooms: | 2 | Bedrooms: | 2 | | Ceiling: | DRYWALL PAINTED | Exterior Wall/Cover: | CEMENT FIBER | | Floor Covering: | CARPET/VINYL 80-20 | Floor Structure: | WOOD W/SUBFLOOR | | Foundation: | CONCRETE | Heating: | FHA ELECTRIC | | Interior Finish: | DRYWALL PAINT | Plumbing Fixture Cnt: | 9 | | Roof Slope: | 4" IN 12" | Roof Structure/Cover: | CJ ASPHALT |
|
| | Type | Description | Class CD | Sub Class CD | Year Built | Area |
| | BAS | BASE/MAIN FLOOR | 3 | 0 | 1987 | 1328.0 |
| | OWP | OPEN WOOD PORCH W/STEPS | 3 | 0 | 1987 | 72.0 |
| | OWP | OPEN WOOD PORCH W/STEPS | 3 | 0 | 1987 | 108.0 |
| | DGR | DETACHED GARAGE | 3 | 0 | 1987 | 440.0 |
| | COMA | Common Area Improvement | 3 | 0 | 1987 | 0.0 |
Sketch
Property Image
Land
| 1 | 61 | MULTIPLE RESIDENCES | 0.1058 | 4608.65 | 0.00 | 0.00 | 1.00 | $350,000 | $0 |
Roll Value History
| 2026 | N/A | N/A | N/A | N/A | N/A |
| 2025 | $233,369 | $350,000 | $0 | $583,369 | $583,369 |
| 2024 | $194,317 | $290,000 | $0 | $484,317 | $484,317 |
| 2023 | $197,319 | $290,000 | $0 | $487,319 | $487,319 |
| 2022 | $181,525 | $290,000 | $0 | $471,525 | $471,525 |
| 2021 | $160,387 | $260,000 | $0 | $420,387 | $420,387 |
| 2020 | $156,561 | $250,000 | $0 | $406,561 | $406,561 |
| 2019 | $112,965 | $200,000 | $0 | $312,965 | $312,965 |
| 2018 | $202,198 | $120,000 | $0 | $322,198 | $322,198 |
| 2017 | $203,619 | $97,778 | $0 | $301,397 | $301,397 |
| 2016 | $206,515 | $97,778 | $0 | $304,293 | $304,293 |
| 2015 | $209,413 | $97,778 | $0 | $307,191 | $307,191 |
| 2014 | $212,309 | $97,778 | $0 | $310,087 | $310,087 |
| 2013 | $148,418 | $97,778 | $0 | $246,196 | $246,196 |
| 2012 | $152,414 | $97,778 | $0 | $250,192 | $250,192 |
| 2011 | $152,414 | $97,778 | $0 | $250,192 | $250,192 |
| 2010 | $161,536 | $97,778 | $0 | $259,314 | $259,314 |
| 2009 | $168,449 | $123,751 | $0 | $292,200 | $292,200 |
| 2008 | $170,484 | $123,751 | $0 | $294,235 | $294,235 |
| 2007 | $172,518 | $123,751 | $0 | $296,269 | $296,269 |
Deed and Sales History
| 1 | 09/09/2019 | WD | Warranty Deed | BRUGMAN, PATRICIA R | ADAMS, BETTY | | | $426,000.00 | 40346 | 4471716 |
| 2 | 11/13/2014 | WD | Warranty Deed | STEMLAR, TR, JOHN S | BRUGMAN, PATRICIA R | | | $335,000.00 | 17534 | 4368497 |
| 3 | 08/14/2000 | QCD | Quit Claim Deed | STEMLAR, JOHN S | STEMLAR, TR, JOHN S | | | $0.00 | 3074 | 20014409 |
| 4 | 01/01/1988 | WD | Warranty Deed | BAME, JOHN D | STEMLAR, JOHN S | | | $128,950.00 | 80060 | 88000242 |
| 5 | 01/01/1900 | OTHER | Other - Misc. Documents | Unknown | BAME, JOHN D | | | $0.00 | 0 | 0 |
Payout Agreement
| No payout information available.. |