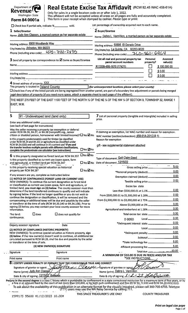
Property
Account |
| Property ID: | 623365 | Abbreviated Legal Description: | BG NECR GL4 N89*W ON NLN SD GL4 1138' S PARA/TO ELN SD GL4 419.00' TPB N89*W333.48' N4' N89*W TO HTDLN SLY ON HTDLN TO NLN OF S185' OF N/2 GL4 ELY TP LY S OF TPB N TPB INCL ADJ TIDES TGW & SUB EZ AF#85009235-EZ |
| Geographic ID: | R13303-086-3810 | Agent Code: | |
| Type: | Real | | |
| Tax Area: | 110 - APPRAISER-OH Schl Dist, outside OH, improved & 1 acre or less | Land Use Code | 11 |
| Open Space: | N | DFL | N |
| Historic Property: | N | Remodel Property: | N |
| Multi-Family Redevelopment: | N | | |
| Township: | 33 | Section: | 03 |
| Range: | R1 |
Location |
| Address: | 4475 MORAN BEACH LN OAK HARBOR, WA 98277 | Mapsco: | |
| Neighborhood: | Cycle 6 | Map ID: | 197 |
| Neighborhood CD: | 6 |
Owner |
| Name: | BROWNE, RUSSELL L | Owner ID: | 262962 |
| Mailing Address: | ANNA EDWARDS 2965 SLATTER RD OAK HARBOR, WA 98277 | % Ownership: | 100.0000000000% |
| | | Exemptions: | |
Taxes and Assessment Details
Values
| (+) Improvement Homesite Value: | + | $0 | |
| (+) Improvement Non-Homesite Value: | + | $205,132 | |
| (+) Land Homesite Value: | + | $0 | |
| (+) Land Non-Homesite Value: | + | $720,500 | |
| (+) Curr Use (HS): | + | $0 | $0 |
| (+) Curr Use (NHS): | + | $0 | $0 |
| | | -------------------------- | |
| (=) Market Value: | = | $925,632 | |
| (–) Productivity Loss: | – | $0 | |
| | | -------------------------- | |
| (=) Subtotal: | = | $925,632 | |
| (+) Senior Appraised Value: | + | $0 | |
| (+) Non-Senior Appraised Value: | + | $925,632 | |
| | | -------------------------- | |
| (=) Total Appraised Value: | = | $925,632 | |
| (–) Senior Exemption Loss: | – | $0 | |
| (–) Exemption Loss: | – | $0 | |
| | | -------------------------- | |
| (=) Taxable Value: | = | $925,632 | |
Taxing Jurisdiction
| Owner: | BROWNE, RUSSELL L | | |
| % Ownership: | 100.0000000000% | | |
| Total Value: | $925,632 | | |
| Tax Area: | 110 - APPRAISER-OH Schl Dist, outside OH, improved & 1 acre or less |
| CF | Conservation Futures | 0.0316035091 | $925,632 | $925,632 | $29.25 | | |
| CEM1 | Cemetery #1 | 0.0040320932 | $925,632 | $925,632 | $3.73 | | |
| FIRE2 | Fire & Rescue Dist #2 N Whidbey GEN | 0.5475949600 | $925,632 | $925,632 | $506.87 | | |
| HOBOND | Hospital BOND | 0.1910887512 | $925,632 | $925,632 | $176.88 | | |
| HOGEN | Hospital GEN | 0.3902502903 | $925,632 | $925,632 | $361.23 | | |
| CE | County Current Expense | 0.3708482477 | $925,632 | $925,632 | $343.27 | | |
| CR | County Roads | 0.4584763726 | $925,632 | $925,632 | $424.38 | | |
| ISLANDEMS | Hospital GEN (EMS) | 0.5000000000 | $925,632 | $925,632 | $462.82 | | |
| LIB | Library Sno-Isle GEN | 0.3153421757 | $925,632 | $925,632 | $291.89 | | |
| NWHIDPRMT | P & R N Whidbey GEN | 0.2004466701 | $925,632 | $925,632 | $185.54 | | |
| SCH201MO | School 201 Enrichment | 1.8559231640 | $925,632 | $925,632 | $1,717.90 | | |
| ST | State School | 1.3035497053 | $925,632 | $925,632 | $1,206.61 | | |
| ST2 | State School Part 2 | 0.8169543533 | $925,632 | $925,632 | $756.20 | | |
| | Total Tax Rate: | 6.9861102925 | | | | | |
| | | | | Taxes w/Current Exemptions: | $6,466.57 | | |
| | | | | Taxes w/o Exemptions: | $6,466.57 | | |
Improvement / Building
| Improvement #1: | RESIDENTIAL | State Code: | Y | 1200.0 sqft | Value: | $205,132 |
| Bathrooms: | 2 | Bedrooms: | 2 | | Ceiling: | TONGUE & GROOVE | Cooling: | HEAT PUMP/CONV/V | | Exterior Wall/Cover: | WOOD SIDING | Floor Covering: | CARPET/VINYL 80-20 | | Floor Structure: | WOOD W/SUBFLOOR | Foundation: | CONCRETE | | Interior Finish: | DRYWALL PAINT | Plumbing Fixture Cnt: | 9 | | Roof Slope: | 4" IN 12" | Roof Structure/Cover: | BEAM ALUMINUM HEAVY |
|
| | Type | Description | Class CD | Sub Class CD | Year Built | Area |
| | BAS | BASE/MAIN FLOOR | 3 | 0 | 1969 | 912.0 |
| | OWP | OPEN WOOD PORCH W/STEPS | 3 | 0 | 1969 | 969.0 |
| | LOF | LOFT | 3 | 0 | 1969 | 288.0 |
| | OCP | OPEN CARPORT | 3 | 0 | 1969 | 264.0 |
| | DGR | DETACHED GARAGE | 3 | 0 | 1969 | 528.0 |
Sketch
Property Image
Land
| 1 | LB | LOW BANK | 0.7000 | 30492.00 | 50.00 | 0.00 | 1.00 | $720,000 | $0 |
| 2 | 55 | TIDES | 0.0000 | 0.00 | 50.00 | 0.00 | 1.00 | $500 | $0 |
Roll Value History
| 2026 | N/A | N/A | N/A | N/A | N/A |
| 2025 | $205,132 | $720,500 | $0 | $925,632 | $925,632 |
| 2024 | $208,182 | $670,500 | $0 | $878,682 | $878,682 |
| 2023 | $211,233 | $655,500 | $0 | $866,733 | $866,733 |
| 2022 | $188,510 | $650,500 | $0 | $839,010 | $839,010 |
| 2021 | $166,318 | $350,500 | $0 | $516,818 | $516,818 |
| 2020 | $162,248 | $290,500 | $0 | $452,748 | $452,748 |
| 2019 | $115,866 | $330,500 | $0 | $446,366 | $446,366 |
| 2018 | $116,272 | $300,500 | $0 | $416,772 | $416,772 |
| 2017 | $117,086 | $300,500 | $0 | $417,586 | $417,586 |
| 2016 | $98,766 | $300,500 | $0 | $399,266 | $399,266 |
| 2015 | $100,439 | $300,500 | $0 | $400,939 | $400,939 |
| 2014 | $102,114 | $300,500 | $0 | $402,614 | $402,614 |
| 2013 | $107,135 | $283,730 | $0 | $390,865 | $390,865 |
| 2012 | $108,809 | $283,730 | $0 | $392,539 | $392,539 |
| 2011 | $110,483 | $307,790 | $0 | $418,273 | $167,309 |
| 2010 | $115,340 | $307,790 | $0 | $423,130 | $423,130 |
| 2009 | $120,118 | $347,415 | $0 | $467,533 | $467,533 |
| 2008 | $145,026 | $459,247 | $0 | $604,273 | $604,273 |
| 2007 | $242,346 | $363,520 | $0 | $605,866 | $605,866 |
Deed and Sales History
| 1 | 06/26/2013 | WD | Warranty Deed | JOHNSON, DORIS L | BROWNE, RUSSELL L | | | $450,777.00 | 11850 | 4342942 |
| 2 | 07/18/2008 | BLA | DNU - Boundary Line Adjustment | JOHNSON, DORIS L | JOHNSON, DORIS L | | | $0.00 | 80839 | 4147556 |
| 3 | 10/31/2002 | 5 | DNU - Marriage License/Name Change | JOHNSON, HAROLD G | JOHNSON, DORIS L | | | $0.00 | 69594 | 0 |
| 4 | 11/01/1987 | OTHER | Other - Misc. Documents | JOHNSON, HAROLD G | JOHNSON, HAROLD G | | | $0.00 | 62423 | 87015343 |
| 5 | 01/01/1900 | OTHER | Other - Misc. Documents | Unknown | JOHNSON, HAROLD G | | | $0.00 | 0 | 0 |
Payout Agreement
| No payout information available.. |