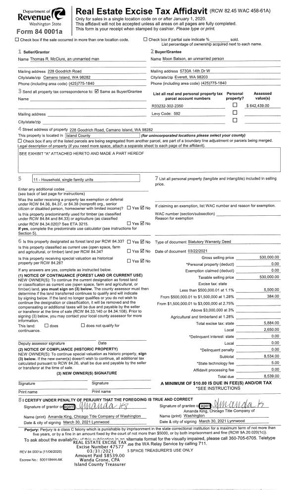
Property
Account |
| Property ID: | 624060 | Abbreviated Legal Description: | CLINTON LOTS 5, 6 & 21 BLK 2 TGW PT ADJ VAC ALLEY |
| Geographic ID: | S6380-00-02006-0 | Agent Code: | |
| Type: | Real | | |
| Tax Area: | 720 - APPRAISER-S Whid Schl Dist, Special District, improved & less than 1 acre | Land Use Code | 11 |
| Open Space: | N | DFL | N |
| Historic Property: | N | Remodel Property: | N |
| Multi-Family Redevelopment: | N | | |
| Township: | | Section: | |
| Range: | |
Location |
| Address: | 6490 HUMPHREY RD CLINTON, WA 98236 | Mapsco: | |
| Neighborhood: | Cycle 4 | Map ID: | 815 |
| Neighborhood CD: | 4 |
Owner |
| Name: | FORDE, CRAIG B | Owner ID: | 296552 |
| Mailing Address: | 6490 HUMPHREY RD CLINTON, WA 98236 | % Ownership: | 100.0000000000% |
| | | Exemptions: | |
Taxes and Assessment Details
Values
| (+) Improvement Homesite Value: | + | $0 | |
| (+) Improvement Non-Homesite Value: | + | $258,866 | |
| (+) Land Homesite Value: | + | $0 | |
| (+) Land Non-Homesite Value: | + | $240,000 | |
| (+) Curr Use (HS): | + | $0 | $0 |
| (+) Curr Use (NHS): | + | $0 | $0 |
| | | -------------------------- | |
| (=) Market Value: | = | $498,866 | |
| (–) Productivity Loss: | – | $0 | |
| | | -------------------------- | |
| (=) Subtotal: | = | $498,866 | |
| (+) Senior Appraised Value: | + | $0 | |
| (+) Non-Senior Appraised Value: | + | $498,866 | |
| | | -------------------------- | |
| (=) Total Appraised Value: | = | $498,866 | |
| (–) Senior Exemption Loss: | – | $0 | |
| (–) Exemption Loss: | – | $0 | |
| | | -------------------------- | |
| (=) Taxable Value: | = | $498,866 | |
Taxing Jurisdiction
| Owner: | FORDE, CRAIG B | | |
| % Ownership: | 100.0000000000% | | |
| Total Value: | $498,866 | | |
| Tax Area: | 720 - APPRAISER-S Whid Schl Dist, Special District, improved & less than 1 acre |
| CF | Conservation Futures | 0.0316035091 | $498,866 | $498,866 | $15.77 | | |
| FIRE3 | Fire & Rescue Dist #3 S Whidbey GEN | 1.2004855531 | $498,866 | $498,866 | $598.88 | | |
| HOBOND | Hospital BOND | 0.1910887512 | $498,866 | $498,866 | $95.33 | | |
| HOGEN | Hospital GEN | 0.3902502903 | $498,866 | $498,866 | $194.68 | | |
| CE | County Current Expense | 0.3708482477 | $498,866 | $498,866 | $185.00 | | |
| CR | County Roads | 0.4584763726 | $498,866 | $498,866 | $228.72 | | |
| ISLANDEMS | Hospital GEN (EMS) | 0.5000000000 | $498,866 | $498,866 | $249.43 | | |
| LIB | Library Sno-Isle GEN | 0.3153421757 | $498,866 | $498,866 | $157.31 | | |
| PORTWHID | Port of S Whidbey GEN | 0.1094540357 | $498,866 | $498,866 | $54.60 | | |
| SCH206BOND | School 206 BOND | 0.3161759235 | $498,866 | $498,866 | $157.73 | | |
| SCH206MO | School 206 Enrichment | 0.4547169547 | $498,866 | $498,866 | $226.84 | | |
| ST | State School | 1.3035497053 | $498,866 | $498,866 | $650.30 | | |
| ST2 | State School Part 2 | 0.8169543533 | $498,866 | $498,866 | $407.55 | | |
| SWHIDPRBD | P & R S Whidbey BOND | 0.0152817568 | $498,866 | $498,866 | $7.62 | | |
| SWHIDPRBD2 | P & R S Whidbey BOND2 | 0.0138911264 | $498,866 | $498,866 | $6.93 | | |
| SWHIDPRMT | P & R S Whidbey GEN | 0.2053334452 | $498,866 | $498,866 | $102.43 | | |
| | Total Tax Rate: | 6.6934522006 | | | | | |
| | | | | Taxes w/Current Exemptions: | $3,339.12 | | |
| | | | | Taxes w/o Exemptions: | $3,339.12 | | |
Improvement / Building
| Improvement #1: | RESIDENTIAL | State Code: | Y | 1456.0 sqft | Value: | $258,866 |
| Bathrooms: | 2 | Bedrooms: | 3 | | Ceiling: | DRYWALL PAINTED | Exterior Wall/Cover: | WOOD SIDING | | Floor Covering: | HARDWOOD/CARP 60-40 | Floor Structure: | WOOD W/SUBFLOOR | | Foundation: | CONCRETE | Heating: | WALL HEAT ELECTRIC | | Interior Finish: | DRYWALL PAINT | Plumbing Fixture Cnt: | 10 | | Roof Slope: | 12" IN 12" | Roof Structure/Cover: | CJ ASPHALT |
|
| | Type | Description | Class CD | Sub Class CD | Year Built | Area |
| | BAS | BASE/MAIN FLOOR | 3 | 0 | 1940 | 1200.0 |
| | OWP | OPEN WOOD PORCH W/STEPS | 3 | 0 | 1940 | 648.0 |
| | UPH | HALF STORY | 3 | 0 | 1940 | 256.0 |
Sketch
Property Image
Land
| 1 | 16 | AC (00.51-01.00) | 0.0000 | 0.00 | 0.00 | 0.00 | 1.00 | $240,000 | $0 |
Roll Value History
| 2026 | N/A | N/A | N/A | N/A | N/A |
| 2025 | $258,866 | $240,000 | $0 | $498,866 | $498,866 |
| 2024 | $262,217 | $230,000 | $0 | $492,217 | $492,217 |
| 2023 | $265,567 | $230,000 | $0 | $495,567 | $495,567 |
| 2022 | $243,506 | $210,000 | $0 | $453,506 | $453,506 |
| 2021 | $214,386 | $150,000 | $0 | $364,386 | $364,386 |
| 2020 | $209,682 | $130,000 | $0 | $339,682 | $339,682 |
| 2019 | $151,731 | $150,000 | $0 | $301,731 | $301,731 |
| 2018 | $152,187 | $130,000 | $0 | $282,187 | $282,187 |
| 2017 | $153,098 | $110,000 | $0 | $263,098 | $263,098 |
| 2016 | $154,921 | $125,000 | $0 | $279,921 | $279,921 |
| 2015 | $156,743 | $125,000 | $0 | $281,743 | $281,743 |
| 2014 | $163,270 | $125,000 | $0 | $288,270 | $288,270 |
| 2013 | $165,071 | $125,000 | $0 | $290,071 | $290,071 |
| 2012 | $166,871 | $127,500 | $0 | $294,371 | $294,371 |
| 2011 | $168,671 | $150,000 | $0 | $318,671 | $318,671 |
| 2010 | $175,746 | $150,000 | $0 | $325,746 | $325,746 |
| 2009 | $183,026 | $160,000 | $0 | $343,026 | $343,026 |
| 2008 | $185,235 | $165,000 | $0 | $350,235 | $350,235 |
| 2007 | $185,592 | $165,000 | $0 | $350,592 | $350,592 |
Deed and Sales History
| 1 | 11/18/2020 | QCD | Quit Claim Deed | FORDE, CRAIG B | FORDE, CRAIG B | | | $0.00 | 45806 | 4502994 |
| 2 | 01/06/2003 | BLA | DNU - Boundary Line Adjustment | FORDE, CRAIG B | FORDE, CRAIG B | | | $0.00 | 69651 | 4031706 |
| 3 | 08/07/2001 | QCD | Quit Claim Deed | FORDE, BRUCE | FORDE, CRAIG B | | | $0.00 | 13010 | 20039533 |
| 4 | 12/01/1987 | WD | Warranty Deed | FORDE, OTTO | FORDE, BRUCE | | | $12,000.00 | 74092 | 87017753 |
| 5 | 01/01/1900 | OTHER | Other - Misc. Documents | Unknown | FORDE, OTTO | | | $0.00 | 0 | 0 |
Payout Agreement
| No payout information available.. |