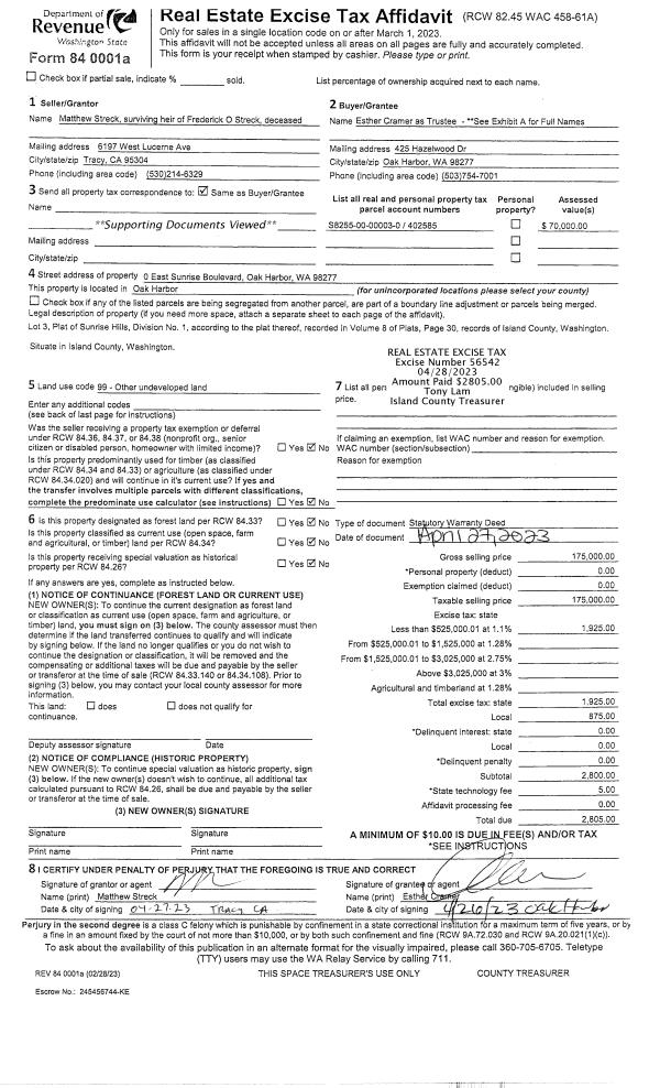
Property
Account |
| Property ID: | 624168 | Abbreviated Legal Description: | LAG PT VU TR LOTS 15, 16 & 17 |
| Geographic ID: | S7320-00-00016-0 | Agent Code: | |
| Type: | Real | | |
| Tax Area: | 322 - APPRAISER-Cpvl Schl Dist, Special Dist, improved, greater than 1 acre | Land Use Code | 11 |
| Open Space: | N | DFL | N |
| Historic Property: | N | Remodel Property: | N |
| Multi-Family Redevelopment: | N | | |
| Township: | | Section: | |
| Range: | |
Location |
| Address: | 3772 SMUGGLERS COVE RD GREENBANK, WA 98253 | Mapsco: | |
| Neighborhood: | Cycle 3 | Map ID: | 394 |
| Neighborhood CD: | 3 |
Owner |
| Name: | PRAY TTEE, MARILYNN L | Owner ID: | 307699 |
| Mailing Address: | 6542 28TH AVE NE SEATTLE, WA 98115 | % Ownership: | 100.0000000000% |
| | | Exemptions: | |
Taxes and Assessment Details
Values
| (+) Improvement Homesite Value: | + | $0 | |
| (+) Improvement Non-Homesite Value: | + | $287,150 | |
| (+) Land Homesite Value: | + | $0 | |
| (+) Land Non-Homesite Value: | + | $525,000 | |
| (+) Curr Use (HS): | + | $0 | $0 |
| (+) Curr Use (NHS): | + | $0 | $0 |
| | | -------------------------- | |
| (=) Market Value: | = | $812,150 | |
| (–) Productivity Loss: | – | $0 | |
| | | -------------------------- | |
| (=) Subtotal: | = | $812,150 | |
| (+) Senior Appraised Value: | + | $0 | |
| (+) Non-Senior Appraised Value: | + | $812,150 | |
| | | -------------------------- | |
| (=) Total Appraised Value: | = | $812,150 | |
| (–) Senior Exemption Loss: | – | $0 | |
| (–) Exemption Loss: | – | $0 | |
| | | -------------------------- | |
| (=) Taxable Value: | = | $812,150 | |
Taxing Jurisdiction
| Owner: | PRAY TTEE, MARILYNN L | | |
| % Ownership: | 100.0000000000% | | |
| Total Value: | $812,150 | | |
| Tax Area: | 322 - APPRAISER-Cpvl Schl Dist, Special Dist, improved, greater than 1 acre |
| CF | Conservation Futures | 0.0316035091 | $812,150 | $812,150 | $25.67 | | |
| CEM2 | Cemetery #2 | 0.0095056933 | $812,150 | $812,150 | $7.72 | | |
| FIRE5 | Fire & Rescue Dist #5 C Whidbey GEN | 1.2008080668 | $812,150 | $812,150 | $975.24 | | |
| FIRE5BOND | Fire & Rescue Dist #5 C Whidbey BOND | 0.1400090713 | $812,150 | $812,150 | $113.71 | | |
| HOBOND | Hospital BOND | 0.1910887512 | $812,150 | $812,150 | $155.19 | | |
| HOGEN | Hospital GEN | 0.3902502903 | $812,150 | $812,150 | $316.94 | | |
| CE | County Current Expense | 0.3708482477 | $812,150 | $812,150 | $301.18 | | |
| CR | County Roads | 0.4584763726 | $812,150 | $812,150 | $372.35 | | |
| ISLANDEMS | Hospital GEN (EMS) | 0.5000000000 | $812,150 | $812,150 | $406.08 | | |
| LIB | Library Sno-Isle GEN | 0.3153421757 | $812,150 | $812,150 | $256.11 | | |
| LIBCAP | Library Sno-Isle BOND (Cap Fac Imp Area) | 0.0543427938 | $812,150 | $812,150 | $44.13 | | |
| POCOUP | Port of Coupeville GEN | 0.1093371703 | $812,150 | $812,150 | $88.80 | | |
| POCOUPIDD | Port of Coupeville IDD | 0.3409740022 | $812,150 | $812,150 | $276.92 | | |
| COUPSDTECH | School 204 CP (TECH) | 0.7545480007 | $812,150 | $812,150 | $612.81 | | |
| SCH204MO | School 204 Enrichment | 0.6716186034 | $812,150 | $812,150 | $545.46 | | |
| ST | State School | 1.3035497053 | $812,150 | $812,150 | $1,058.68 | | |
| ST2 | State School Part 2 | 0.8169543533 | $812,150 | $812,150 | $663.49 | | |
| | Total Tax Rate: | 7.6592568070 | | | | | |
| | | | | Taxes w/Current Exemptions: | $6,220.48 | | |
| | | | | Taxes w/o Exemptions: | $6,220.48 | | |
Improvement / Building
| Improvement #1: | RESIDENTIAL | State Code: | Y | 1866.0 sqft | Value: | $287,150 |
| Bathrooms: | 2 | Bedrooms: | 2 | | Ceiling: | DRYWALL PAINTED | Exterior Wall/Cover: | WOOD SIDING | | Floor Covering: | CARPET/VINYL 60-40 | Floor Structure: | WOOD W/SUBFLOOR | | Foundation: | CONCRETE | Heating: | FHA GAS | | Interior Finish: | DRYWALL PAINT | Plumbing Fixture Cnt: | 10 | | Roof Slope: | 4" IN 12" | Roof Structure/Cover: | CJ ASPHALT |
|
| | Type | Description | Class CD | Sub Class CD | Year Built | Area |
| | BAS | BASE/MAIN FLOOR | 3 | 0 | 1988 | 1492.0 |
| | AGR | ATTACHED GARAGE | 3 | 0 | 1988 | 484.0 |
| | UPS | UPPER STORY | 3 | 0 | 1988 | 204.0 |
| | OWP | OPEN WOOD PORCH W/STEPS | 3 | 0 | 1988 | 640.0 |
| | OWR | OPEN WOOD PORCH W/STEPS/ROOF | 3 | 0 | 1988 | 78.0 |
| | OWC | OPEN WOOD PORCH W/STEPS/ROOF/C | 3 | 0 | 1988 | 168.0 |
| | LOF | LOFT | 3 | 0 | 1988 | 170.0 |
| | DGR | DETACHED GARAGE | 3 | 0 | 1988 | 1200.0 |
Sketch
Property Image
Land
| 1 | HB | HIGH BLUFF | 0.0000 | 0.00 | 180.00 | 0.00 | 1.00 | $525,000 | $0 |
Roll Value History
| 2026 | N/A | N/A | N/A | N/A | N/A |
| 2025 | $287,150 | $525,000 | $0 | $812,150 | $812,150 |
| 2024 | $291,551 | $525,000 | $0 | $816,551 | $816,551 |
| 2023 | $295,953 | $500,000 | $0 | $795,953 | $795,953 |
| 2022 | $271,988 | $480,000 | $0 | $751,988 | $751,988 |
| 2021 | $239,968 | $400,000 | $0 | $639,968 | $639,968 |
| 2020 | $234,568 | $400,000 | $0 | $634,568 | $634,568 |
| 2019 | $163,974 | $400,000 | $0 | $563,974 | $563,974 |
| 2018 | $164,557 | $400,000 | $0 | $564,557 | $564,557 |
| 2017 | $165,724 | $400,000 | $0 | $565,724 | $565,724 |
| 2016 | $168,060 | $400,000 | $0 | $568,060 | $568,060 |
| 2015 | $170,393 | $400,000 | $0 | $570,393 | $570,393 |
| 2014 | $172,727 | $481,667 | $0 | $654,394 | $654,394 |
| 2013 | $170,869 | $481,667 | $0 | $652,536 | $652,536 |
| 2012 | $172,923 | $481,667 | $0 | $654,590 | $654,590 |
| 2011 | $174,976 | $481,667 | $0 | $656,643 | $656,643 |
| 2010 | $181,495 | $481,667 | $0 | $663,162 | $663,162 |
| 2009 | $189,485 | $642,224 | $0 | $831,709 | $831,709 |
| 2008 | $192,288 | $642,224 | $0 | $834,512 | $834,512 |
| 2007 | $186,775 | $406,471 | $0 | $593,246 | $593,246 |
Deed and Sales History
| 1 | 02/15/2023 | PRD | Personal Representatives Deed | PRAY, ROLAND & MARILYNN | PRAY TTEE, MARILYNN L | | | $0.00 | 55912 | 4556975 |
| 2 | 06/14/1999 | BLA | DNU - Boundary Line Adjustment | PRAY, ROLAND & MARILYNN | PRAY, ROLAND & MARILYNN | | | $0.00 | 68310 | 99009803 |
| 3 | 08/01/1997 | WD | Warranty Deed | SCHUE, BEVERLY R | PRAY, ROLAND & | | | $199,988.00 | 72783 | 97013252 |
| 4 | 08/01/1997 | WD | Warranty Deed | PRAY, ROLAND & | PRAY, ROLAND & MARILYNN | | | $305,000.00 | 72783 | 97013252 |
| 5 | 12/01/1987 | OTHER | Other - Misc. Documents | SCHUE, BEVERLY R | SCHUE, BEVERLY R | | | $0.00 | 62456 | 87017221 |
| 6 | 08/01/1986 | WD | Warranty Deed | BEKINS, RON | SCHUE, BEVERLY R | | | $26,100.00 | 62092 | 86009784 |
| 7 | 12/01/1985 | OTHER | Other - Misc. Documents | BEKINS, VIVIAN | BEKINS, RON | | | $0.00 | 61414 | 0 |
| 8 | 01/01/1900 | OTHER | Other - Misc. Documents | Unknown | BEKINS, VIVIAN | | | $0.00 | 0 | 0 |
Payout Agreement
| No payout information available.. |