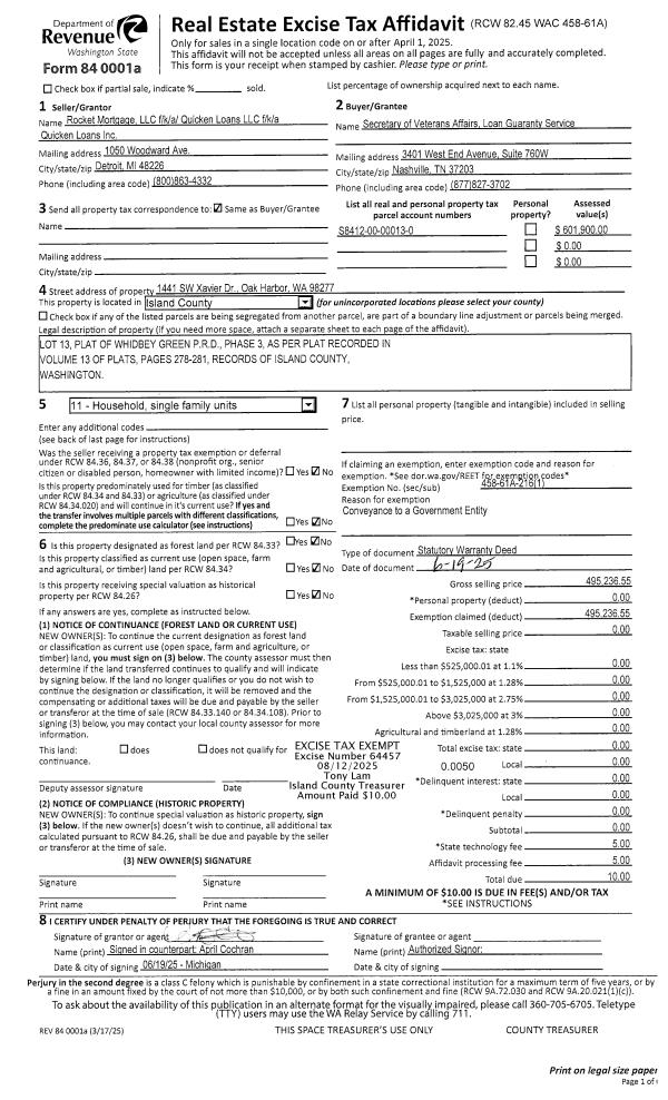
Property
Account |
| Property ID: | 624587 | Abbreviated Legal Description: | 1980 SKYLINE 14X56 VIN# 01950407N TPO $77542 FROM K-559531 |
| Geographic ID: | M9050000002A0 | Agent Code: | |
| Type: | Mobile Home | | |
| Tax Area: | 100 - APPRAISER-OH Schl Dist, in OH | Land Use Code | 11 |
| Open Space: | N | DFL | N |
| Historic Property: | N | Remodel Property: | N |
| Multi-Family Redevelopment: | N | | |
| Township: | | Section: | |
| Range: | |
Location |
| Address: | 1320 N OAK HARBOR ST # 11 OAK HARBOR, WA 98277 | Mapsco: | |
| Neighborhood: | Cycle 1 | Map ID: | |
| Neighborhood CD: | 1 |
Owner |
| Name: | LOPEZ, ENRIQUE LIQUIDANO | Owner ID: | 314749 |
| Mailing Address: | OSCAR LIQUIDANO LOPEZ 1320 N OAK HARBOR ST #11 OAK HARBOR, WA 98277 | % Ownership: | 100.0000000000% |
| | | Exemptions: | |
Taxes and Assessment Details
Values
| (+) Improvement Homesite Value: | + | $0 | |
| (+) Improvement Non-Homesite Value: | + | $6,706 | |
| (+) Land Homesite Value: | + | $0 | |
| (+) Land Non-Homesite Value: | + | $0 | |
| (+) Curr Use (HS): | + | $0 | $0 |
| (+) Curr Use (NHS): | + | $0 | $0 |
| | | -------------------------- | |
| (=) Market Value: | = | $6,706 | |
| (–) Productivity Loss: | – | $0 | |
| | | -------------------------- | |
| (=) Subtotal: | = | $6,706 | |
| (+) Senior Appraised Value: | + | $0 | |
| (+) Non-Senior Appraised Value: | + | $6,706 | |
| | | -------------------------- | |
| (=) Total Appraised Value: | = | $6,706 | |
| (–) Senior Exemption Loss: | – | $0 | |
| (–) Exemption Loss: | – | $0 | |
| | | -------------------------- | |
| (=) Taxable Value: | = | $6,706 | |
Taxing Jurisdiction
| Owner: | LOPEZ, ENRIQUE LIQUIDANO | | |
| % Ownership: | 100.0000000000% | | |
| Total Value: | $6,706 | | |
| Tax Area: | 100 - APPRAISER-OH Schl Dist, in OH |
| CF | Conservation Futures | 0.0316035091 | $6,706 | $6,706 | $0.21 | | |
| CEM1 | Cemetery #1 | 0.0040320932 | $6,706 | $6,706 | $0.03 | | |
| COH | City of Oak Harbor | 2.3001546061 | $6,706 | $6,706 | $15.42 | | |
| OAKBOND | City of Oak Harbor BOND | 0.1926904192 | $6,706 | $6,706 | $1.29 | | |
| HOBOND | Hospital BOND | 0.1910887512 | $6,706 | $6,706 | $1.28 | | |
| HOGEN | Hospital GEN | 0.3902502903 | $6,706 | $6,706 | $2.62 | | |
| CE | County Current Expense | 0.3708482477 | $6,706 | $6,706 | $2.49 | | |
| ISLANDEMS | Hospital GEN (EMS) | 0.5000000000 | $6,706 | $6,706 | $3.35 | | |
| LIB | Library Sno-Isle GEN | 0.3153421757 | $6,706 | $6,706 | $2.11 | | |
| NWHIDPRMT | P & R N Whidbey GEN | 0.2004466701 | $6,706 | $6,706 | $1.34 | | |
| SCH201MO | School 201 Enrichment | 1.8559231640 | $6,706 | $6,706 | $12.45 | | |
| ST | State School | 1.3035497053 | $6,706 | $6,706 | $8.74 | | |
| ST2 | State School Part 2 | 0.8169543533 | $6,706 | $6,706 | $5.48 | | |
| | Total Tax Rate: | 8.4728839852 | | | | | |
| | | | | Taxes w/Current Exemptions: | $56.81 | | |
| | | | | Taxes w/o Exemptions: | $56.81 | | |
Improvement / Building
| Improvement #1: | MANUFACTURED HOME | State Code: | Y | 772.0 sqft | Value: | $6,706 |
| Bathrooms: | 0 | Bedrooms: | 0 | | Ceiling: | PLASTER PAINTED | Cooling: | EVAP NO DUCT | | Exterior Wall/Cover: | VINYL | Floor Covering: | CARPET 100% | | Floor Structure: | SLAB ON GRADE | Foundation: | SLAB | | Heating: | FHA ELECTRIC | Interior Finish: | PLASTER | | Plumbing Fixture Cnt: | 1 | Roof Slope: | FLAT | | Roof Structure/Cover: | CJ ALUMINIUM HEAVY |   |   |
|
Sketch
Property Image
Land
No land segments exist for this property.
Roll Value History
| 2026 | N/A | N/A | N/A | N/A | N/A |
| 2025 | $6,706 | $0 | $0 | $6,706 | $6,706 |
| 2024 | $7,376 | $0 | $0 | $7,376 | $7,376 |
| 2023 | $2,469 | $0 | $0 | $2,469 | $2,469 |
| 2022 | $2,329 | $0 | $0 | $2,329 | $2,329 |
| 2021 | $2,187 | $0 | $0 | $2,187 | $2,187 |
| 2020 | $2,202 | $0 | $0 | $2,202 | $2,202 |
| 2019 | $1,859 | $0 | $0 | $1,859 | $1,859 |
| 2018 | $1,921 | $0 | $0 | $1,921 | $1,921 |
| 2017 | $2,045 | $0 | $0 | $2,045 | $2,045 |
| 2016 | $2,168 | $0 | $0 | $2,168 | $2,168 |
| 2015 | $2,354 | $0 | $0 | $2,354 | $2,354 |
| 2014 | $2,478 | $0 | $0 | $2,478 | $2,478 |
| 2013 | $2,602 | $0 | $0 | $2,602 | $0 |
| 2012 | $2,726 | $0 | $0 | $2,726 | $2,726 |
| 2011 | $5,807 | $0 | $0 | $5,807 | $5,807 |
| 2010 | $6,004 | $0 | $0 | $6,004 | $6,004 |
| 2009 | $6,315 | $0 | $0 | $6,315 | $6,315 |
| 2008 | $6,346 | $0 | $0 | $6,346 | $6,346 |
| 2007 | $6,385 | $0 | $0 | $6,385 | $6,385 |
Deed and Sales History
| 1 | 12/03/2024 | MANHOME | Manufactured Home | EWING JR, JAMES M | LOPEZ, ENRIQUE LIQUIDANO | | | $6,000.00 | 61994 | |
| 2 | 08/01/2015 | MANHOME | Manufactured Home | INTINI, CHRIS | EWING JR, JAMES M | | | $3,000.00 | 22591 | |
| 3 | 08/27/2014 | OTHER | Other - Misc. Documents | HELLER, KATHLEEN | INTINI, CHRIS | | | $300.00 | 16571 | |
| 4 | 03/25/2005 | OTHER | Other - Misc. Documents | OAK HOLLOW LLC, | HELLER, KATHLEEN | | | $6,000.00 | 51323 | 0 |
| 5 | 10/31/2001 | OTHER | Other - Misc. Documents | BROGI, MARIE | OAK HOLLOW LLC, | | | $1,750.00 | 14224 | 0 |
| 6 | 10/02/2000 | OTHER | Other - Misc. Documents | Unknown | BROGI, BILLIE | | | $0.00 | 3786 | 0 |
| 7 | 03/15/2000 | OTHER | Other - Misc. Documents | MARTIN, DEBRA L | BROGI, MARIE | | | $5,000.00 | 905 | 0 |
| 8 | 06/01/1997 | OTHER | Other - Misc. Documents | DANIEL, ROYCE B | MARTIN, DEBRA L | | | $9,500.00 | 72196 | 0 |
| 9 | 10/01/1994 | OTHER | Other - Misc. Documents | POLEHNA, STANLEY/ A | DANIEL, ROYCE B | | | $7,600.00 | 44198 | 0 |
| 10 | 10/01/1991 | OTHER | Other - Misc. Documents | SOSA, FRANK M | POLEHNA, STANLEY/ A | | | $8,000.00 | 13861 | 0 |
| 11 | 12/01/1982 | OTHER | Other - Misc. Documents | BROGI, BILLIE | SOSA, FRANK M | | | $13,072.00 | 23155 | 0 |
Payout Agreement
| No payout information available.. |