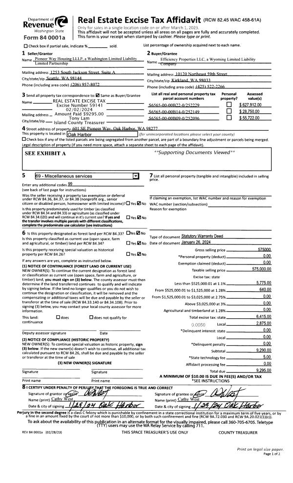
Property
Account |
| Property ID: | 624756 | Abbreviated Legal Description: | S330'OF S/2 NW SW EX RD FR 200-0820 |
| Geographic ID: | R32911-182-0800 | Agent Code: | |
| Type: | Real | | |
| Tax Area: | 712 - APPRAISER-S Whid Schl Dist, outside Langley, improved, greater than 1 acre | Land Use Code | 11 |
| Open Space: | N | DFL | N |
| Historic Property: | N | Remodel Property: | N |
| Multi-Family Redevelopment: | N | | |
| Township: | 29 | Section: | 11 |
| Range: | R3 |
Location |
| Address: | 5493 LANGLEY RD LANGLEY, WA 98260 | Mapsco: | |
| Neighborhood: | Cycle 4 | Map ID: | 758 |
| Neighborhood CD: | 4 |
Owner |
| Name: | TEAGUE, ASHLEY | Owner ID: | 310473 |
| Mailing Address: | MERRILY WYMAN 5493 LANGLEY RD LANGLEY, WA 98260 | % Ownership: | 100.0000000000% |
| | | Exemptions: | |
Taxes and Assessment Details
Values
| (+) Improvement Homesite Value: | + | $0 | |
| (+) Improvement Non-Homesite Value: | + | $547,307 | |
| (+) Land Homesite Value: | + | $0 | |
| (+) Land Non-Homesite Value: | + | $370,000 | |
| (+) Curr Use (HS): | + | $0 | $0 |
| (+) Curr Use (NHS): | + | $0 | $0 |
| | | -------------------------- | |
| (=) Market Value: | = | $917,307 | |
| (–) Productivity Loss: | – | $0 | |
| | | -------------------------- | |
| (=) Subtotal: | = | $917,307 | |
| (+) Senior Appraised Value: | + | $0 | |
| (+) Non-Senior Appraised Value: | + | $917,307 | |
| | | -------------------------- | |
| (=) Total Appraised Value: | = | $917,307 | |
| (–) Senior Exemption Loss: | – | $0 | |
| (–) Exemption Loss: | – | $0 | |
| | | -------------------------- | |
| (=) Taxable Value: | = | $917,307 | |
Taxing Jurisdiction
| Owner: | TEAGUE, ASHLEY | | |
| % Ownership: | 100.0000000000% | | |
| Total Value: | $917,307 | | |
| Tax Area: | 712 - APPRAISER-S Whid Schl Dist, outside Langley, improved, greater than 1 acre |
| CF | Conservation Futures | 0.0316035091 | $917,307 | $917,307 | $28.99 | | |
| FIRE3 | Fire & Rescue Dist #3 S Whidbey GEN | 1.2004855531 | $917,307 | $917,307 | $1,101.21 | | |
| HOBOND | Hospital BOND | 0.1910887512 | $917,307 | $917,307 | $175.29 | | |
| HOGEN | Hospital GEN | 0.3902502903 | $917,307 | $917,307 | $357.98 | | |
| CE | County Current Expense | 0.3708482477 | $917,307 | $917,307 | $340.18 | | |
| CR | County Roads | 0.4584763726 | $917,307 | $917,307 | $420.56 | | |
| ISLANDEMS | Hospital GEN (EMS) | 0.5000000000 | $917,307 | $917,307 | $458.65 | | |
| LIB | Library Sno-Isle GEN | 0.3153421757 | $917,307 | $917,307 | $289.27 | | |
| PORTWHID | Port of S Whidbey GEN | 0.1094540357 | $917,307 | $917,307 | $100.40 | | |
| SCH206BOND | School 206 BOND | 0.3161759235 | $917,307 | $917,307 | $290.03 | | |
| SCH206MO | School 206 Enrichment | 0.4547169547 | $917,307 | $917,307 | $417.12 | | |
| ST | State School | 1.3035497053 | $917,307 | $917,307 | $1,195.76 | | |
| ST2 | State School Part 2 | 0.8169543533 | $917,307 | $917,307 | $749.40 | | |
| SWHIDPRBD | P & R S Whidbey BOND | 0.0152817568 | $917,307 | $917,307 | $14.02 | | |
| SWHIDPRBD2 | P & R S Whidbey BOND2 | 0.0138911264 | $917,307 | $917,307 | $12.74 | | |
| SWHIDPRMT | P & R S Whidbey GEN | 0.2053334452 | $917,307 | $917,307 | $188.35 | | |
| | Total Tax Rate: | 6.6934522006 | | | | | |
| | | | | Taxes w/Current Exemptions: | $6,139.95 | | |
| | | | | Taxes w/o Exemptions: | $6,139.95 | | |
Improvement / Building
| Improvement #1: | RESIDENTIAL | State Code: | Y | 3301.1 sqft | Value: | $547,307 |
| Bathrooms: | 2 | Bedrooms: | 3 | | Ceiling: | DRYWALL PAINTED | Cooling: | HEAT PUMP/CONV/V | | Exterior Wall/Cover: | WOOD SIDING | Floor Covering: | CARPET/VINYL 60-40 | | Floor Structure: | WOOD W/SUBFLOOR | Foundation: | CONCRETE | | Interior Finish: | DRYWALL PAINT | Plumbing Fixture Cnt: | 11 | | Roof Slope: | 4" IN 12" | Roof Structure/Cover: | CJ ASPHALT |
|
| | Type | Description | Class CD | Sub Class CD | Year Built | Area |
| | BAS | BASE/MAIN FLOOR | 3 | 0 | 1990 | 2677.1 |
| | OP1 | OPEN PORCH SLAB | 3 | 0 | 1990 | 640.0 |
| | UPS | UPPER STORY | 3 | 0 | 1990 | 624.0 |
| | OWP | OPEN WOOD PORCH W/STEPS | 3 | 0 | 1990 | 76.0 |
| | OWR | OPEN WOOD PORCH W/STEPS/ROOF | 3 | 0 | 1990 | 406.0 |
| | oPOL | POLE BARN | 3 | 0 | 1990 | 0.0 |
| | oSTA | STABLE | 3 | 0 | 1990 | 0.0 |
| | oSTA | STABLE | 3 | 0 | 1990 | 0.0 |
| | oLOF | STORAGE LOFT | 3 | 0 | 1990 | 0.0 |
| | oBAR | BARN | 3 | 0 | 1990 | 0.0 |
| | UTY | STORAGE/UTILITY | 3 | 0 | 1990 | 150.0 |
Sketch
| No sketches available for this property. |
Property Image
Land
| 1 | 32 | AC (03.01-09.99) | 9.7700 | 425581.20 | 0.00 | 0.00 | 1.00 | $370,000 | $0 |
Roll Value History
| 2026 | N/A | N/A | N/A | N/A | N/A |
| 2025 | $547,307 | $370,000 | $0 | $917,307 | $917,307 |
| 2024 | $552,702 | $350,000 | $0 | $902,702 | $902,702 |
| 2023 | $525,500 | $330,000 | $0 | $855,500 | $855,500 |
| 2022 | $490,898 | $280,000 | $0 | $770,898 | $770,898 |
| 2021 | $445,231 | $230,000 | $0 | $675,231 | $675,231 |
| 2020 | $437,082 | $190,000 | $0 | $627,082 | $627,082 |
| 2019 | $385,516 | $250,000 | $0 | $635,516 | $635,516 |
| 2018 | $386,285 | $210,000 | $0 | $596,285 | $596,285 |
| 2017 | $377,627 | $190,000 | $0 | $567,627 | $567,627 |
| 2016 | $380,577 | $165,000 | $0 | $545,577 | $545,577 |
| 2015 | $383,526 | $165,000 | $0 | $548,526 | $548,526 |
| 2014 | $391,752 | $123,600 | $0 | $515,352 | $515,352 |
| 2013 | $394,575 | $123,600 | $0 | $518,175 | $518,175 |
| 2012 | $397,397 | $123,600 | $0 | $520,997 | $520,997 |
| 2011 | $400,220 | $123,600 | $0 | $523,820 | $523,820 |
| 2010 | $410,567 | $123,600 | $0 | $534,167 | $534,167 |
| 2009 | $427,085 | $148,200 | $0 | $575,285 | $575,285 |
| 2008 | $385,402 | $118,680 | $0 | $504,082 | $504,082 |
| 2007 | $391,573 | $118,680 | $0 | $510,253 | $510,253 |
Deed and Sales History
| 1 | 10/26/2023 | WD | Warranty Deed | ZIELINSKI, KYLE | TEAGUE, ASHLEY | | | $1,200,000.00 | 58365 | 4566181 |
| 2 | 04/05/2016 | WD | Warranty Deed | ARMIJO, DEBRA A | ZIELINSKI, KYLE | | | $580,000.00 | 23806 | 4397132 |
| 3 | 05/25/2001 | WD | Warranty Deed | BLACK, DONALD D | ARMMIJO, DEBBIE A | | | $277,000.00 | 12092 | 20034212 |
| 4 | 01/01/1988 | WD | Warranty Deed | PETERS, GERALD L | BLACK, DONALD D | | | $35,500.00 | 80279 | 88001235 |
| 5 | 01/01/1988 | QCD | Quit Claim Deed | PETERS, GERALD L | PETERS, GERALD L | | | $0.00 | 80278 | 88001234 |
| 6 | 01/01/1900 | OTHER | Other - Misc. Documents | Unknown | PETERS, GERALD L | | | $0.00 | 0 | 0 |
Payout Agreement
| No payout information available.. |