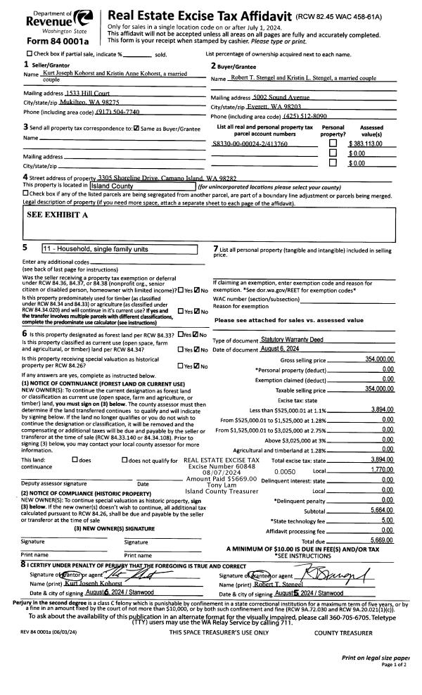
Property
Account |
| Property ID: | 624943 | Abbreviated Legal Description: | MEADOW PARK LOT 7 |
| Geographic ID: | S7497-00-00007-0 | Agent Code: | |
| Type: | Real | | |
| Tax Area: | 100 - APPRAISER-OH Schl Dist, in OH | Land Use Code | 11 |
| Open Space: | N | DFL | N |
| Historic Property: | N | Remodel Property: | N |
| Multi-Family Redevelopment: | N | | |
| Township: | | Section: | |
| Range: | |
Location |
| Address: | 1211 NW 5TH AVE OAK HARBOR, WA 98277 | Mapsco: | |
| Neighborhood: | Cycle 1 | Map ID: | 252 |
| Neighborhood CD: | 1 |
Owner |
| Name: | HILL, LISA M | Owner ID: | 77859 |
| Mailing Address: | GREGORY L HILL 1211 NW 5TH AVE OAK HARBOR, WA 98277-4440 | % Ownership: | 100.0000000000% |
| | | Exemptions: | |
Taxes and Assessment Details
Values
| (+) Improvement Homesite Value: | + | $0 | |
| (+) Improvement Non-Homesite Value: | + | $245,084 | |
| (+) Land Homesite Value: | + | $0 | |
| (+) Land Non-Homesite Value: | + | $200,000 | |
| (+) Curr Use (HS): | + | $0 | $0 |
| (+) Curr Use (NHS): | + | $0 | $0 |
| | | -------------------------- | |
| (=) Market Value: | = | $445,084 | |
| (–) Productivity Loss: | – | $0 | |
| | | -------------------------- | |
| (=) Subtotal: | = | $445,084 | |
| (+) Senior Appraised Value: | + | $0 | |
| (+) Non-Senior Appraised Value: | + | $445,084 | |
| | | -------------------------- | |
| (=) Total Appraised Value: | = | $445,084 | |
| (–) Senior Exemption Loss: | – | $0 | |
| (–) Exemption Loss: | – | $0 | |
| | | -------------------------- | |
| (=) Taxable Value: | = | $445,084 | |
Taxing Jurisdiction
| Owner: | HILL, LISA M | | |
| % Ownership: | 100.0000000000% | | |
| Total Value: | $445,084 | | |
| Tax Area: | 100 - APPRAISER-OH Schl Dist, in OH |
| CF | Conservation Futures | 0.0316035091 | $445,084 | $445,084 | $14.07 | | |
| CEM1 | Cemetery #1 | 0.0040320932 | $445,084 | $445,084 | $1.79 | | |
| COH | City of Oak Harbor | 2.3001546061 | $445,084 | $445,084 | $1,023.76 | | |
| OAKBOND | City of Oak Harbor BOND | 0.1926904192 | $445,084 | $445,084 | $85.76 | | |
| HOBOND | Hospital BOND | 0.1910887512 | $445,084 | $445,084 | $85.05 | | |
| HOGEN | Hospital GEN | 0.3902502903 | $445,084 | $445,084 | $173.69 | | |
| CE | County Current Expense | 0.3708482477 | $445,084 | $445,084 | $165.06 | | |
| ISLANDEMS | Hospital GEN (EMS) | 0.5000000000 | $445,084 | $445,084 | $222.54 | | |
| LIB | Library Sno-Isle GEN | 0.3153421757 | $445,084 | $445,084 | $140.35 | | |
| NWHIDPRMT | P & R N Whidbey GEN | 0.2004466701 | $445,084 | $445,084 | $89.22 | | |
| SCH201MO | School 201 Enrichment | 1.8559231640 | $445,084 | $445,084 | $826.04 | | |
| ST | State School | 1.3035497053 | $445,084 | $445,084 | $580.19 | | |
| ST2 | State School Part 2 | 0.8169543533 | $445,084 | $445,084 | $363.61 | | |
| | Total Tax Rate: | 8.4728839852 | | | | | |
| | | | | Taxes w/Current Exemptions: | $3,771.13 | | |
| | | | | Taxes w/o Exemptions: | $3,771.13 | | |
Improvement / Building
| Improvement #1: | RESIDENTIAL | State Code: | Y | 1462.7 sqft | Value: | $245,084 |
| Bathrooms: | 2 | Bedrooms: | 3 | | Ceiling: | DRYWALL PAINTED | Exterior Wall/Cover: | CEMENT FIBER | | Floor Covering: | VINYL 100% | Floor Structure: | WOOD W/SUBFLOOR | | Foundation: | CONCRETE | Heating: | FHA GAS | | Interior Finish: | DRYWALL PAINT | Plumbing Fixture Cnt: | 9 | | Roof Slope: | 5" IN 12" | Roof Structure/Cover: | CJ ASPHALT |
|
| | Type | Description | Class CD | Sub Class CD | Year Built | Area |
| | BAS | BASE/MAIN FLOOR | 3 | 0 | 1989 | 1462.7 |
| | OP1 | OPEN PORCH SLAB | 3 | 0 | 1989 | 231.0 |
| | OP2 | OPEN PORCH W/STEPS | 3 | 0 | 1989 | 15.0 |
| | AGR | ATTACHED GARAGE | 3 | 0 | 1989 | 486.0 |
Sketch
Property Image
Land
| 1 | 14 | SQ (08001-12000) | 0.0000 | 0.00 | 0.00 | 0.00 | 1.00 | $200,000 | $0 |
Roll Value History
| 2026 | N/A | N/A | N/A | N/A | N/A |
| 2025 | $245,084 | $200,000 | $0 | $445,084 | $445,084 |
| 2024 | $248,429 | $190,000 | $0 | $438,429 | $438,429 |
| 2023 | $245,084 | $190,000 | $0 | $435,084 | $435,084 |
| 2022 | $224,953 | $180,000 | $0 | $404,953 | $404,953 |
| 2021 | $198,251 | $120,000 | $0 | $318,251 | $318,251 |
| 2020 | $193,386 | $100,000 | $0 | $293,386 | $293,386 |
| 2019 | $140,540 | $150,000 | $0 | $290,540 | $290,540 |
| 2018 | $140,994 | $130,000 | $0 | $270,994 | $270,994 |
| 2017 | $121,334 | $110,000 | $0 | $231,334 | $231,334 |
| 2016 | $123,043 | $90,000 | $0 | $213,043 | $213,043 |
| 2015 | $124,751 | $70,000 | $0 | $194,751 | $194,751 |
| 2014 | $126,460 | $55,000 | $0 | $181,460 | $181,460 |
| 2013 | $128,170 | $55,000 | $0 | $183,170 | $183,170 |
| 2012 | $129,877 | $60,000 | $0 | $189,877 | $189,877 |
| 2011 | $133,683 | $50,000 | $0 | $183,683 | $183,683 |
| 2010 | $148,132 | $50,000 | $0 | $198,132 | $198,132 |
| 2009 | $154,488 | $75,000 | $0 | $229,488 | $229,488 |
| 2008 | $156,341 | $90,000 | $0 | $246,341 | $246,341 |
| 2007 | $158,194 | $90,000 | $0 | $248,194 | $248,194 |
Deed and Sales History
| 1 | 06/30/2005 | WD | Warranty Deed | VOZZA, ARLENE L | HILL, LISA M | | | $228,000.00 | 53173 | 4139697 |
| 2 | 07/01/1994 | WD | Warranty Deed | MOORE, GREGORY A | VOZZA, ARLENE L | | | $135,500.00 | 42963 | 94016169 |
| 3 | 10/01/1988 | WD | Warranty Deed | HARBOR, CONSTRUCTION | MOORE, GREGORY A | | | $90,500.00 | 83620 | 88013525 |
| 4 | 03/01/1988 | WD | Warranty Deed | MASSEY, WILLIAM L | HARBOR, CONSTRUCTION | | | $19,200.00 | 80728 | 88002907 |
| 5 | 01/01/1900 | OTHER | Other - Misc. Documents | Unknown | MASSEY, WILLIAM L | | | $0.00 | 70736 | 87003996 |
Payout Agreement
| No payout information available.. |