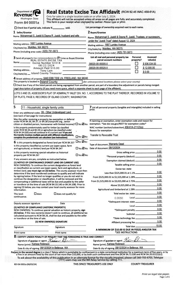
Property
Account |
| Property ID: | 625309 | Abbreviated Legal Description: | CEDAR GLEN #2 LOT 41 |
| Geographic ID: | S6352-02-00041-0 | Agent Code: | |
| Type: | Real | | |
| Tax Area: | 100 - APPRAISER-OH Schl Dist, in OH | Land Use Code | 11 |
| Open Space: | N | DFL | N |
| Historic Property: | N | Remodel Property: | N |
| Multi-Family Redevelopment: | N | | |
| Township: | | Section: | |
| Range: | |
Location |
| Address: | 1561 NW OUTRIGGER LOOP OAK HARBOR, WA 98277 | Mapsco: | |
| Neighborhood: | Cycle 1 | Map ID: | 252 |
| Neighborhood CD: | 1 |
Owner |
| Name: | RUIZ, VICTORIO G E / HELEN V | Owner ID: | 75244 |
| Mailing Address: | 1561 NW OUTRIGGER LOOP OAK HARBOR, WA 98277-8928 | % Ownership: | 100.0000000000% |
| | | Exemptions: | |
Taxes and Assessment Details
Values
| (+) Improvement Homesite Value: | + | $0 | |
| (+) Improvement Non-Homesite Value: | + | $279,045 | |
| (+) Land Homesite Value: | + | $0 | |
| (+) Land Non-Homesite Value: | + | $210,000 | |
| (+) Curr Use (HS): | + | $0 | $0 |
| (+) Curr Use (NHS): | + | $0 | $0 |
| | | -------------------------- | |
| (=) Market Value: | = | $489,045 | |
| (–) Productivity Loss: | – | $0 | |
| | | -------------------------- | |
| (=) Subtotal: | = | $489,045 | |
| (+) Senior Appraised Value: | + | $0 | |
| (+) Non-Senior Appraised Value: | + | $489,045 | |
| | | -------------------------- | |
| (=) Total Appraised Value: | = | $489,045 | |
| (–) Senior Exemption Loss: | – | $0 | |
| (–) Exemption Loss: | – | $0 | |
| | | -------------------------- | |
| (=) Taxable Value: | = | $489,045 | |
Taxing Jurisdiction
| Owner: | RUIZ, VICTORIO G E / HELEN V | | |
| % Ownership: | 100.0000000000% | | |
| Total Value: | $489,045 | | |
| Tax Area: | 100 - APPRAISER-OH Schl Dist, in OH |
| CF | Conservation Futures | 0.0316035091 | $489,045 | $489,045 | $15.46 | | |
| CEM1 | Cemetery #1 | 0.0040320932 | $489,045 | $489,045 | $1.97 | | |
| COH | City of Oak Harbor | 2.3001546061 | $489,045 | $489,045 | $1,124.88 | | |
| OAKBOND | City of Oak Harbor BOND | 0.1926904192 | $489,045 | $489,045 | $94.23 | | |
| HOBOND | Hospital BOND | 0.1910887512 | $489,045 | $489,045 | $93.45 | | |
| HOGEN | Hospital GEN | 0.3902502903 | $489,045 | $489,045 | $190.85 | | |
| CE | County Current Expense | 0.3708482477 | $489,045 | $489,045 | $181.36 | | |
| ISLANDEMS | Hospital GEN (EMS) | 0.5000000000 | $489,045 | $489,045 | $244.52 | | |
| LIB | Library Sno-Isle GEN | 0.3153421757 | $489,045 | $489,045 | $154.22 | | |
| NWHIDPRMT | P & R N Whidbey GEN | 0.2004466701 | $489,045 | $489,045 | $98.03 | | |
| SCH201MO | School 201 Enrichment | 1.8559231640 | $489,045 | $489,045 | $907.63 | | |
| ST | State School | 1.3035497053 | $489,045 | $489,045 | $637.49 | | |
| ST2 | State School Part 2 | 0.8169543533 | $489,045 | $489,045 | $399.53 | | |
| | Total Tax Rate: | 8.4728839852 | | | | | |
| | | | | Taxes w/Current Exemptions: | $4,143.62 | | |
| | | | | Taxes w/o Exemptions: | $4,143.62 | | |
Improvement / Building
| Improvement #1: | RESIDENTIAL | State Code: | Y | 1624.0 sqft | Value: | $279,045 |
| Bathrooms: | 2.5 | Bedrooms: | 3 | | Ceiling: | DRYWALL PAINTED | Exterior Wall/Cover: | PLY/HARDBOARD T-111 | | Floor Covering: | HARDWOOD/CARP 60-40 | Floor Structure: | WOOD W/SUBFLOOR | | Foundation: | CONCRETE | Heating: | FHA GAS | | Interior Finish: | DRYWALL PAINT | Plumbing Fixture Cnt: | 12 | | Roof Slope: | 5" IN 12" | Roof Structure/Cover: | CJ WOOD SHAKES |
|
| | Type | Description | Class CD | Sub Class CD | Year Built | Area |
| | BAS | BASE/MAIN FLOOR | 3 | 0 | 1991 | 864.0 |
| | AGR | ATTACHED GARAGE | 3 | 0 | 1991 | 484.0 |
| | UPS | UPPER STORY | 3 | 0 | 1991 | 760.0 |
| | OWP | OPEN WOOD PORCH W/STEPS | 3 | 0 | 1991 | 310.2 |
| | OWC | OPEN WOOD PORCH W/STEPS/ROOF/C | 3 | 0 | 1991 | 60.0 |
Sketch
Property Image
Land
| 1 | 14 | SQ (08001-12000) | 0.0000 | 0.00 | 0.00 | 0.00 | 1.00 | $210,000 | $0 |
Roll Value History
| 2026 | N/A | N/A | N/A | N/A | N/A |
| 2025 | $279,045 | $210,000 | $0 | $489,045 | $489,045 |
| 2024 | $282,658 | $190,000 | $0 | $472,658 | $472,658 |
| 2023 | $243,007 | $190,000 | $0 | $433,007 | $433,007 |
| 2022 | $223,180 | $180,000 | $0 | $403,180 | $403,180 |
| 2021 | $196,790 | $120,000 | $0 | $316,790 | $316,790 |
| 2020 | $191,778 | $100,000 | $0 | $291,778 | $291,778 |
| 2019 | $138,705 | $150,000 | $0 | $288,705 | $288,705 |
| 2018 | $139,172 | $130,000 | $0 | $269,172 | $269,172 |
| 2017 | $135,878 | $110,000 | $0 | $245,878 | $245,878 |
| 2016 | $137,740 | $90,000 | $0 | $227,740 | $227,740 |
| 2015 | $139,603 | $70,000 | $0 | $209,603 | $209,603 |
| 2014 | $141,463 | $55,000 | $0 | $196,463 | $196,463 |
| 2013 | $143,324 | $55,000 | $0 | $198,324 | $198,324 |
| 2012 | $145,185 | $60,000 | $0 | $205,185 | $205,185 |
| 2011 | $151,208 | $50,000 | $0 | $201,208 | $201,208 |
| 2010 | $158,245 | $50,000 | $0 | $208,245 | $208,245 |
| 2009 | $164,827 | $75,000 | $0 | $239,827 | $239,827 |
| 2008 | $166,713 | $100,000 | $0 | $266,713 | $266,713 |
| 2007 | $168,626 | $100,000 | $0 | $268,626 | $268,626 |
Deed and Sales History
| 1 | 08/01/1991 | WD | Warranty Deed | HARRINGTON, DAVID L | RUIZ, VICTORIO G | | | $122,950.00 | 12998 | 91012752 |
| 2 | 12/01/1990 | WD | Warranty Deed | Unknown | HARRINGTON, DAVID L | | | $33,000.00 | 6715 | 90023460 |
Payout Agreement
| No payout information available.. |