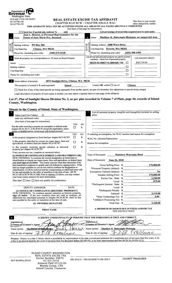
Property
Account |
| Property ID: | 625336 | Abbreviated Legal Description: | CEDAR GLEN #2 LOT 44 |
| Geographic ID: | S6352-02-00044-0 | Agent Code: | |
| Type: | Real | | |
| Tax Area: | 100 - APPRAISER-OH Schl Dist, in OH | Land Use Code | 11 |
| Open Space: | N | DFL | N |
| Historic Property: | N | Remodel Property: | N |
| Multi-Family Redevelopment: | N | | |
| Township: | | Section: | |
| Range: | |
Location |
| Address: | 1631 NW OUTRIGGER LOOP OAK HARBOR, WA 98277 | Mapsco: | |
| Neighborhood: | Cycle 1 | Map ID: | 252 |
| Neighborhood CD: | 1 |
Owner |
| Name: | PRICE, DANIEL | Owner ID: | 284987 |
| Mailing Address: | JESSICA PRICE 1631 NW OUTRIGGER LOOP OAK HARBOR, WA 98277 | % Ownership: | 100.0000000000% |
| | | Exemptions: | |
Taxes and Assessment Details
Values
| (+) Improvement Homesite Value: | + | $0 | |
| (+) Improvement Non-Homesite Value: | + | $305,220 | |
| (+) Land Homesite Value: | + | $0 | |
| (+) Land Non-Homesite Value: | + | $210,000 | |
| (+) Curr Use (HS): | + | $0 | $0 |
| (+) Curr Use (NHS): | + | $0 | $0 |
| | | -------------------------- | |
| (=) Market Value: | = | $515,220 | |
| (–) Productivity Loss: | – | $0 | |
| | | -------------------------- | |
| (=) Subtotal: | = | $515,220 | |
| (+) Senior Appraised Value: | + | $0 | |
| (+) Non-Senior Appraised Value: | + | $515,220 | |
| | | -------------------------- | |
| (=) Total Appraised Value: | = | $515,220 | |
| (–) Senior Exemption Loss: | – | $0 | |
| (–) Exemption Loss: | – | $0 | |
| | | -------------------------- | |
| (=) Taxable Value: | = | $515,220 | |
Taxing Jurisdiction
| Owner: | PRICE, DANIEL | | |
| % Ownership: | 100.0000000000% | | |
| Total Value: | $515,220 | | |
| Tax Area: | 100 - APPRAISER-OH Schl Dist, in OH |
| CF | Conservation Futures | 0.0316035091 | $515,220 | $515,220 | $16.28 | | |
| CEM1 | Cemetery #1 | 0.0040320932 | $515,220 | $515,220 | $2.08 | | |
| COH | City of Oak Harbor | 2.3001546061 | $515,220 | $515,220 | $1,185.09 | | |
| OAKBOND | City of Oak Harbor BOND | 0.1926904192 | $515,220 | $515,220 | $99.28 | | |
| HOBOND | Hospital BOND | 0.1910887512 | $515,220 | $515,220 | $98.45 | | |
| HOGEN | Hospital GEN | 0.3902502903 | $515,220 | $515,220 | $201.06 | | |
| CE | County Current Expense | 0.3708482477 | $515,220 | $515,220 | $191.07 | | |
| ISLANDEMS | Hospital GEN (EMS) | 0.5000000000 | $515,220 | $515,220 | $257.61 | | |
| LIB | Library Sno-Isle GEN | 0.3153421757 | $515,220 | $515,220 | $162.47 | | |
| NWHIDPRMT | P & R N Whidbey GEN | 0.2004466701 | $515,220 | $515,220 | $103.27 | | |
| SCH201MO | School 201 Enrichment | 1.8559231640 | $515,220 | $515,220 | $956.21 | | |
| ST | State School | 1.3035497053 | $515,220 | $515,220 | $671.61 | | |
| ST2 | State School Part 2 | 0.8169543533 | $515,220 | $515,220 | $420.91 | | |
| | Total Tax Rate: | 8.4728839852 | | | | | |
| | | | | Taxes w/Current Exemptions: | $4,365.39 | | |
| | | | | Taxes w/o Exemptions: | $4,365.39 | | |
Improvement / Building
| Improvement #1: | RESIDENTIAL | State Code: | Y | 1709.2 sqft | Value: | $305,220 |
| Bathrooms: | 2.5 | Bedrooms: | 3 | | Ceiling: | DRYWALL PAINTED | Exterior Wall/Cover: | PLY/HARDBOARD T-111 | | Floor Covering: | CARPET/VINYL 80-20 | Floor Structure: | WOOD W/SUBFLOOR | | Foundation: | CONCRETE | Heating: | FHA GAS | | Interior Finish: | DRYWALL PAINT | Plumbing Fixture Cnt: | 13 | | Roof Slope: | 4" IN 12" | Roof Structure/Cover: | CJ ASPHALT |
|
| | Type | Description | Class CD | Sub Class CD | Year Built | Area |
| | BAS | BASE/MAIN FLOOR | 3 | 0 | 1990 | 905.2 |
| | AGR | ATTACHED GARAGE | 3 | 0 | 1990 | 475.4 |
| | UPS | UPPER STORY | 3 | 0 | 1990 | 804.0 |
| | OWR | OPEN WOOD PORCH W/STEPS/ROOF | 3 | 0 | 1990 | 100.0 |
| | OWC | OPEN WOOD PORCH W/STEPS/ROOF/C | 3 | 0 | 1990 | 180.0 |
Sketch
Property Image
Land
| 1 | 14 | SQ (08001-12000) | 0.0000 | 0.00 | 0.00 | 0.00 | 1.00 | $210,000 | $0 |
Roll Value History
| 2026 | N/A | N/A | N/A | N/A | N/A |
| 2025 | $305,220 | $210,000 | $0 | $515,220 | $515,220 |
| 2024 | $309,073 | $190,000 | $0 | $499,073 | $499,073 |
| 2023 | $305,220 | $190,000 | $0 | $495,220 | $495,220 |
| 2022 | $279,875 | $180,000 | $0 | $459,875 | $459,875 |
| 2021 | $246,412 | $120,000 | $0 | $366,412 | $366,412 |
| 2020 | $239,645 | $100,000 | $0 | $339,645 | $339,645 |
| 2019 | $173,365 | $150,000 | $0 | $323,365 | $323,365 |
| 2018 | $173,885 | $130,000 | $0 | $303,885 | $303,885 |
| 2017 | $166,764 | $110,000 | $0 | $276,764 | $276,764 |
| 2016 | $168,850 | $90,000 | $0 | $258,850 | $258,850 |
| 2015 | $170,933 | $70,000 | $0 | $240,933 | $240,933 |
| 2014 | $173,018 | $55,000 | $0 | $228,018 | $228,018 |
| 2013 | $155,193 | $55,000 | $0 | $210,193 | $210,193 |
| 2012 | $157,235 | $60,000 | $0 | $217,235 | $217,235 |
| 2011 | $159,277 | $50,000 | $0 | $209,277 | $209,277 |
| 2010 | $166,025 | $50,000 | $0 | $216,025 | $216,025 |
| 2009 | $173,100 | $75,000 | $0 | $248,100 | $248,100 |
| 2008 | $175,144 | $100,000 | $0 | $275,144 | $275,144 |
| 2007 | $177,188 | $100,000 | $0 | $277,188 | $277,188 |
Deed and Sales History
| 1 | 05/04/2018 | WD | Warranty Deed | BODIN, JEREMY R | PRICE, DANIEL | | | $295,000.00 | 34049 | 4444218 |
| 2 | 12/30/2013 | SPLTDWARDE | Special Limited Warranty Deed | SECRETARY OF VETERAN AFFAIRS | BODIN, JEREMY R | | | $145,000.00 | 14012 | 4353890 |
| 3 | 11/29/2012 | WD | Warranty Deed | PNC BANK NATIONAL ASSOCIATION | SECRETARY OF VETERAN AFFAIRS | | | $149,821.00 | 9780 | 4329387 |
| 4 | 11/28/2012 | TRUSTEED | Trustee's Deed | SIADOR, EDUARDO A | PNC BANK NATIONAL ASSOCIATION | | | $149,821.00 | 9623 | 4328226 |
| 5 | 06/07/2004 | WD | Warranty Deed | GOOCH, CHARLES W | SIADOR, EDUARDO A | | | $189,900.00 | 42458 | 4103027 |
| 6 | 01/01/1993 | WD | Warranty Deed | MORTON, JEFFREY W | GOOCH, CHARLES W | | | $128,000.00 | 30422 | 93002186 |
| 7 | 11/01/1990 | WD | Warranty Deed | MERIT-YOUNG, INC | MORTON, JEFFREY W | | | $113,850.00 | 6423 | 90022226 |
| 8 | 07/01/1990 | WD | Warranty Deed | MERIT, HOMES I | MERIT-YOUNG, INC | | | $28,000.00 | 4485 | 90014740 |
| 9 | 11/01/1989 | WD | Warranty Deed | BILGA, CORPORATION & | MERIT, HOMES I | | | $19,800.00 | 95318 | 89017100 |
| 10 | 01/01/1900 | OTHER | Other - Misc. Documents | Unknown | BILGA, CORPORATION & | | | $0.00 | 33179 | 416826 |
Payout Agreement
| No payout information available.. |