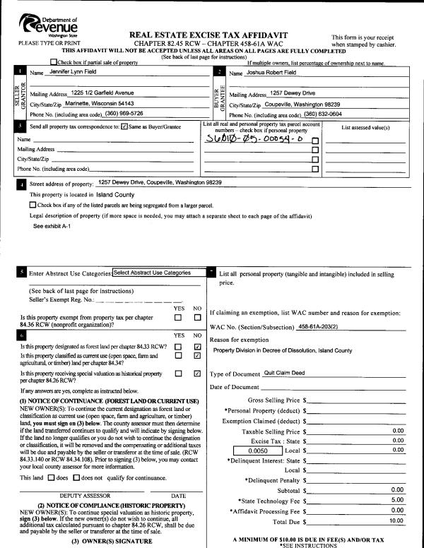
Property
Account |
| Property ID: | 627156 | Abbreviated Legal Description: | LOT 2 SP 87-25.13333.363-0300 & .363-0990 V2 SP P152 AF#88001663 |
| Geographic ID: | R13333-363-0490 | Agent Code: | |
| Type: | Real | | |
| Tax Area: | 119 - APPRAISER-OH Schl Dist, outside OH, vacant & 50 acres or less | Land Use Code | 91 |
| Open Space: | N | DFL | N |
| Historic Property: | N | Remodel Property: | N |
| Multi-Family Redevelopment: | N | | |
| Township: | 33 | Section: | 33 |
| Range: | R1 |
Location |
| Address: | | Mapsco: | |
| Neighborhood: | Cycle 1 | Map ID: | 250 |
| Neighborhood CD: | 1 |
Owner |
| Name: | MCGUIRE, PAIGE | Owner ID: | 313945 |
| Mailing Address: | KENNETH E MCGUIRE 1577 MCGUIRE PL OAK HARBOR, WA 98277 | % Ownership: | 100.0000000000% |
| | | Exemptions: | |
Taxes and Assessment Details
Values
| (+) Improvement Homesite Value: | + | $0 | |
| (+) Improvement Non-Homesite Value: | + | $0 | |
| (+) Land Homesite Value: | + | $0 | |
| (+) Land Non-Homesite Value: | + | $250,000 | |
| (+) Curr Use (HS): | + | $0 | $0 |
| (+) Curr Use (NHS): | + | $0 | $0 |
| | | -------------------------- | |
| (=) Market Value: | = | $250,000 | |
| (–) Productivity Loss: | – | $0 | |
| | | -------------------------- | |
| (=) Subtotal: | = | $250,000 | |
| (+) Senior Appraised Value: | + | $0 | |
| (+) Non-Senior Appraised Value: | + | $250,000 | |
| | | -------------------------- | |
| (=) Total Appraised Value: | = | $250,000 | |
| (–) Senior Exemption Loss: | – | $0 | |
| (–) Exemption Loss: | – | $0 | |
| | | -------------------------- | |
| (=) Taxable Value: | = | $250,000 | |
Taxing Jurisdiction
| Owner: | MCGUIRE, PAIGE | | |
| % Ownership: | 100.0000000000% | | |
| Total Value: | $250,000 | | |
| Tax Area: | 119 - APPRAISER-OH Schl Dist, outside OH, vacant & 50 acres or less |
| CF | Conservation Futures | 0.0316035091 | $250,000 | $250,000 | $7.90 | | |
| CEM1 | Cemetery #1 | 0.0040320932 | $250,000 | $250,000 | $1.01 | | |
| HOBOND | Hospital BOND | 0.1910887512 | $250,000 | $250,000 | $47.77 | | |
| HOGEN | Hospital GEN | 0.3902502903 | $250,000 | $250,000 | $97.56 | | |
| CE | County Current Expense | 0.3708482477 | $250,000 | $250,000 | $92.71 | | |
| CR | County Roads | 0.4584763726 | $250,000 | $250,000 | $114.62 | | |
| ISLANDEMS | Hospital GEN (EMS) | 0.5000000000 | $250,000 | $250,000 | $125.00 | | |
| LIB | Library Sno-Isle GEN | 0.3153421757 | $250,000 | $250,000 | $78.84 | | |
| NWHIDPRMT | P & R N Whidbey GEN | 0.2004466701 | $250,000 | $250,000 | $50.11 | | |
| SCH201MO | School 201 Enrichment | 1.8559231640 | $250,000 | $250,000 | $463.98 | | |
| ST | State School | 1.3035497053 | $250,000 | $250,000 | $325.89 | | |
| ST2 | State School Part 2 | 0.8169543533 | $250,000 | $250,000 | $204.24 | | |
| | Total Tax Rate: | 6.4385153325 | | | | | |
| | | | | Taxes w/Current Exemptions: | $1,609.63 | | |
| | | | | Taxes w/o Exemptions: | $1,609.63 | | |
Improvement / Building
Sketch
| No sketches available for this property. |
Property Image
Land
| 1 | 32 | AC (03.01-09.99) | 5.0000 | 0.00 | 0.00 | 0.00 | 1.00 | $250,000 | $0 |
Roll Value History
| 2026 | N/A | N/A | N/A | N/A | N/A |
| 2025 | $0 | $250,000 | $0 | $250,000 | $250,000 |
| 2024 | $0 | $250,000 | $0 | $250,000 | $250,000 |
| 2023 | $0 | $250,000 | $0 | $250,000 | $250,000 |
| 2022 | $0 | $210,000 | $0 | $210,000 | $210,000 |
| 2021 | $0 | $160,000 | $0 | $160,000 | $160,000 |
| 2020 | $0 | $160,000 | $0 | $160,000 | $160,000 |
| 2019 | $0 | $180,000 | $0 | $180,000 | $180,000 |
| 2018 | $0 | $160,000 | $0 | $160,000 | $160,000 |
| 2017 | $0 | $150,000 | $0 | $150,000 | $150,000 |
| 2016 | $0 | $130,000 | $0 | $130,000 | $130,000 |
| 2015 | $0 | $150,000 | $0 | $150,000 | $150,000 |
| 2014 | $0 | $150,000 | $0 | $150,000 | $150,000 |
| 2013 | $0 | $150,000 | $0 | $150,000 | $150,000 |
| 2012 | $0 | $150,000 | $0 | $150,000 | $150,000 |
| 2011 | $0 | $150,000 | $0 | $150,000 | $150,000 |
| 2010 | $0 | $150,000 | $0 | $150,000 | $150,000 |
| 2009 | $0 | $143,750 | $0 | $143,750 | $143,750 |
| 2008 | $0 | $143,750 | $0 | $143,750 | $143,750 |
| 2007 | $0 | $114,500 | $0 | $114,500 | $114,500 |
Deed and Sales History
| 1 | 09/19/2024 | QCD | Quit Claim Deed | MCGUIRE, KENNETH E | MCGUIRE, PAIGE | | | $0.00 | 61327 | 4577296 |
| 2 | 08/23/2018 | QCD | Quit Claim Deed | MORRIS, MARY JO | MCGUIRE, KENNETH E | | | $0.00 | 35814 | 4451385 |
| 3 | 11/01/1999 | 5 | DNU - Marriage License/Name Change | MCGUIRE, MARY JO | MORRIS, MARY JO | | | $0.00 | 68462 | 99010742 |
| 4 | 01/01/1986 | OTHER | Other - Misc. Documents | Unknown | MCGUIRE, MARY J | | | $0.00 | 61441 | 0 |
| 5 | 01/01/1900 | OTHER | Other - Misc. Documents | MCGUIRE, MARY J | MCGUIRE, MARY JO | | | $0.00 | 0 | 0 |
Payout Agreement
| No payout information available.. |