Property
Account |
| Property ID: | 628299 | Abbreviated Legal Description: | IN NW SW: PT FOLL DESC LY S OF WANAMAKER RD: BG NECR SD SUBD W ALG NLN 438' S1060' W280.4' S20' W80' S240' M/L TO SLN NW SW E798.4' TO SECR NW SW N1320' M/L TPB FR 180-1090 |
| Geographic ID: | R13113-143-0930 | Agent Code: | |
| Type: | Real | | |
| Tax Area: | 312 - APPRAISER-Cpvl Schl Dist, outside Cpvl, improved, greater than 1 acre | Land Use Code | 11 |
| Open Space: | N | DFL | N |
| Historic Property: | N | Remodel Property: | N |
| Multi-Family Redevelopment: | N | | |
| Township: | 31 | Section: | 13 |
| Range: | R1 |
Location |
| Address: | 15218 SR20 COUPEVILLE, WA 98239 | Mapsco: | |
| Neighborhood: | Cycle 2 | Map ID: | 58 |
| Neighborhood CD: | 2 |
Owner |
| Name: | ECKROTH IV, CONRAD RONALD | Owner ID: | 313956 |
| Mailing Address: | TINA MARIE ECKROTH 3286 MICA COURT ROSAMOND, CA 93560 | % Ownership: | 100.0000000000% |
| | | Exemptions: | |
Taxes and Assessment Details
Values
| (+) Improvement Homesite Value: | + | $0 | |
| (+) Improvement Non-Homesite Value: | + | $274,160 | |
| (+) Land Homesite Value: | + | $0 | |
| (+) Land Non-Homesite Value: | + | $328,770 | |
| (+) Curr Use (HS): | + | $0 | $0 |
| (+) Curr Use (NHS): | + | $0 | $0 |
| | | -------------------------- | |
| (=) Market Value: | = | $602,930 | |
| (–) Productivity Loss: | – | $0 | |
| | | -------------------------- | |
| (=) Subtotal: | = | $602,930 | |
| (+) Senior Appraised Value: | + | $0 | |
| (+) Non-Senior Appraised Value: | + | $602,930 | |
| | | -------------------------- | |
| (=) Total Appraised Value: | = | $602,930 | |
| (–) Senior Exemption Loss: | – | $0 | |
| (–) Exemption Loss: | – | $0 | |
| | | -------------------------- | |
| (=) Taxable Value: | = | $602,930 | |
Taxing Jurisdiction
| Owner: | ECKROTH IV, CONRAD RONALD | | |
| % Ownership: | 100.0000000000% | | |
| Total Value: | $602,930 | | |
| Tax Area: | 312 - APPRAISER-Cpvl Schl Dist, outside Cpvl, improved, greater than 1 acre |
| CF | Conservation Futures | 0.0316035091 | $602,930 | $602,930 | $19.05 | | |
| CEM2 | Cemetery #2 | 0.0095056933 | $602,930 | $602,930 | $5.73 | | |
| FIRE5 | Fire & Rescue Dist #5 C Whidbey GEN | 1.2008080668 | $602,930 | $602,930 | $724.00 | | |
| FIRE5BOND | Fire & Rescue Dist #5 C Whidbey BOND | 0.1400090713 | $602,930 | $602,930 | $84.42 | | |
| HOBOND | Hospital BOND | 0.1910887512 | $602,930 | $602,930 | $115.21 | | |
| HOGEN | Hospital GEN | 0.3902502903 | $602,930 | $602,930 | $235.29 | | |
| CE | County Current Expense | 0.3708482477 | $602,930 | $602,930 | $223.60 | | |
| CR | County Roads | 0.4584763726 | $602,930 | $602,930 | $276.43 | | |
| ISLANDEMS | Hospital GEN (EMS) | 0.5000000000 | $602,930 | $602,930 | $301.47 | | |
| LIB | Library Sno-Isle GEN | 0.3153421757 | $602,930 | $602,930 | $190.13 | | |
| LIBCAP | Library Sno-Isle BOND (Cap Fac Imp Area) | 0.0543427938 | $602,930 | $602,930 | $32.76 | | |
| POCOUP | Port of Coupeville GEN | 0.1093371703 | $602,930 | $602,930 | $65.92 | | |
| POCOUPIDD | Port of Coupeville IDD | 0.3409740022 | $602,930 | $602,930 | $205.58 | | |
| COUPSDTECH | School 204 CP (TECH) | 0.7545480007 | $602,930 | $602,930 | $454.94 | | |
| SCH204MO | School 204 Enrichment | 0.6716186034 | $602,930 | $602,930 | $404.94 | | |
| ST | State School | 1.3035497053 | $602,930 | $602,930 | $785.95 | | |
| ST2 | State School Part 2 | 0.8169543533 | $602,930 | $602,930 | $492.57 | | |
| | Total Tax Rate: | 7.6592568070 | | | | | |
| | | | | Taxes w/Current Exemptions: | $4,617.99 | | |
| | | | | Taxes w/o Exemptions: | $4,617.99 | | |
Improvement / Building
| Improvement #1: | MANUFACTURED HOME | State Code: | Y | 1820.0 sqft | Value: | $274,160 |
| Bathrooms: | 0 | Bedrooms: | 0 | | Ceiling: | PLASTER PAINTED | Cooling: | EVAP NO DUCT | | Exterior Wall/Cover: | VINYL | Floor Covering: | CARPET 100% | | Floor Structure: | SLAB ON GRADE | Foundation: | SLAB | | Heating: | FHA ELECTRIC | Interior Finish: | PLASTER | | Plumbing Fixture Cnt: | 1 | Roof Slope: | FLAT | | Roof Structure/Cover: | CJ ALUMINIUM HEAVY |   |   |
|
| | Type | Description | Class CD | Sub Class CD | Year Built | Area |
| | BAS | BASE/MAIN FLOOR | 4 | 0 | 2002 | 1820.0 |
| | oPOL | POLE BARN | 3 | 0 | 2002 | 1200.0 |
| | OWR | OPEN WOOD PORCH W/STEPS/ROOF | 4 | 0 | 2002 | 32.0 |
| | oGAR | GARAGE | 2 | 0 | 2002 | 2548.0 |
| | OWP | OPEN WOOD PORCH W/STEPS | 4 | 0 | 2002 | 72.0 |
Sketch
Property Image
Land
| 1 | HS | HOMESITE | 1.0000 | 43560.00 | 0.00 | 0.00 | 1.00 | $270,000 | $0 |
| 2 | 91 | UNDEVELOPED LAND-METES AND BOUNDS | 3.4000 | 148104.00 | 0.00 | 0.00 | 1.00 | $58,770 | $0 |
Roll Value History
| 2026 | N/A | N/A | N/A | N/A | N/A |
| 2025 | $274,160 | $328,770 | $0 | $602,930 | $602,930 |
| 2024 | $210,078 | $320,000 | $0 | $530,078 | $530,078 |
| 2023 | $187,682 | $310,000 | $0 | $497,682 | $497,682 |
| 2022 | $174,469 | $290,000 | $0 | $464,469 | $464,469 |
| 2021 | $155,659 | $220,000 | $0 | $375,659 | $375,659 |
| 2020 | $154,941 | $200,000 | $0 | $354,941 | $354,941 |
| 2019 | $125,063 | $250,000 | $0 | $375,063 | $375,063 |
| 2018 | $102,789 | $210,000 | $0 | $312,789 | $312,789 |
| 2017 | $104,861 | $180,000 | $0 | $284,861 | $284,861 |
| 2016 | $105,898 | $180,000 | $0 | $285,898 | $285,898 |
| 2015 | $123,696 | $176,000 | $0 | $299,696 | $299,696 |
| 2014 | $125,768 | $176,000 | $0 | $301,768 | $301,768 |
| 2013 | $126,806 | $106,920 | $0 | $233,726 | $233,726 |
| 2012 | $130,053 | $106,920 | $0 | $236,973 | $236,973 |
| 2011 | $81,442 | $118,800 | $0 | $200,242 | $200,242 |
| 2010 | $81,719 | $118,800 | $0 | $200,519 | $200,519 |
| 2009 | $85,808 | $132,000 | $0 | $217,808 | $217,808 |
| 2008 | $87,760 | $147,400 | $0 | $235,160 | $235,160 |
| 2007 | $90,547 | $132,000 | $0 | $222,547 | $222,547 |
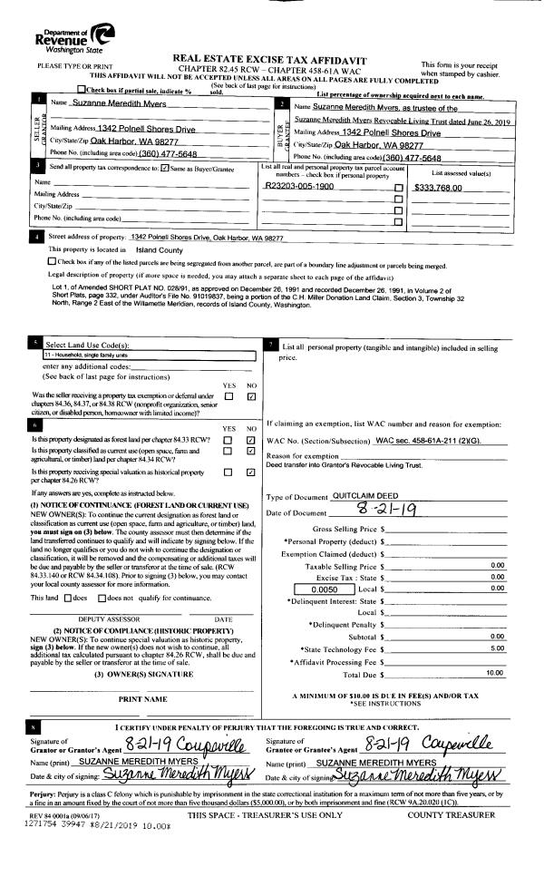
Deed and Sales History
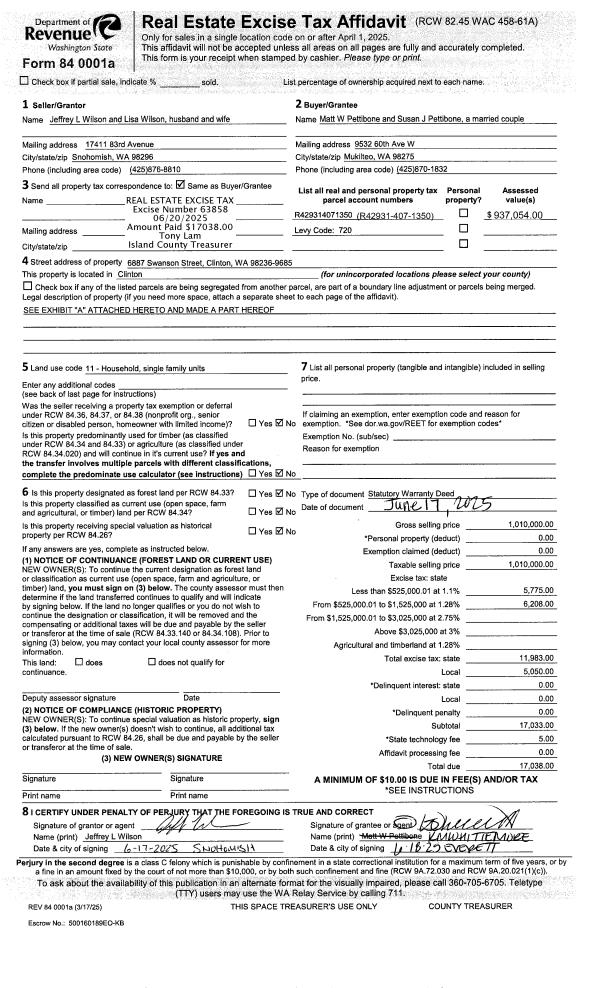
| 1 | 09/17/2024 | WD | Warranty Deed | JOHNSEN, JANE E | ECKROTH IV, CONRAD RONALD | | | $605,000.00 | 61340 | 4577355 |
| 2 | 06/13/2019 | EZ | Easement | JOHNSEN, JANE E | TOWN OF COUPEVILLE | | | $1,700.00 | 41141 | 4475783 |
| 3 | 07/25/2019 | QCD | Quit Claim Deed | JOHNSEN, GARY D | JOHNSEN, JANE E | | | $0.00 | 39677 | 4468511 |
| 4 | 02/14/2011 | WD | Warranty Deed | SECRETARY OF HOUSING AND URBAN DEVELOPMENT | JOHNSEN, GARY D | | | $165,000.00 | 3802 | 4291931 |
| 5 | 10/05/2010 | WD | Warranty Deed | Chase Home Finance LLC | SECRETARY OF HOUSING AND URBAN DEVELOPMENT | | | $201,753.00 | 2535 | 4282570 |
| 6 | 09/02/2010 | TRUSTEED | Trustee's Deed | STRATTON, CHARLES D | Chase Home Finance LLC | | | $233,457.00 | 2232 | 4280560 |
| 7 | 02/07/2003 | WD | Warranty Deed | HAYDEN, CHARLES E | STRATTON, CHARLES D | | | $110,000.00 | 30597 | 4047757 |
| 8 | 11/01/1993 | WD | Warranty Deed | ARCHIBALD, BRUCE | HAYDEN, CHARLES E | | | $55,000.00 | 34661 | 93024267 |
| 9 | 03/01/1988 | OTHER | Other - Misc. Documents | ARCHIBALD, BRUCE | ARCHIBALD, BRUCE | | | $0.00 | 62555 | 0 |
| 10 | 05/01/1986 | REC | Real Estate Contract | Unknown | ARCHIBALD, BRUCE | | | $21,600.00 | 61158 | 86005442 |
Payout Agreement
| No payout information available.. |