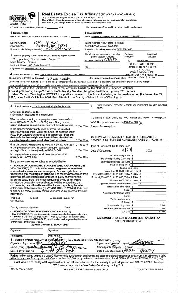
Property
Account |
| Property ID: | 629127 | Abbreviated Legal Description: | LOT 7-C SP 87-28.33119.300-0980 V2 SP P157 AF#88004167 |
| Geographic ID: | R33119-310-1090 | Agent Code: | |
| Type: | Real | | |
| Tax Area: | 512 - APPRAISER-Stan/Cam Schl Dist, improved, greater than 1 acre | Land Use Code | 11 |
| Open Space: | N | DFL | N |
| Historic Property: | N | Remodel Property: | N |
| Multi-Family Redevelopment: | N | | |
| Township: | 31 | Section: | 19 |
| Range: | R3 |
Location |
| Address: | 79 DIANA PLACE CAMANO ISLAND, WA 98282 | Mapsco: | |
| Neighborhood: | Cycle 5 | Map ID: | 931 |
| Neighborhood CD: | 5 |
Owner |
| Name: | ARRANTS, CHASE JAMES | Owner ID: | 298098 |
| Mailing Address: | 79 DIANA PL CAMANO ISLAND, WA 98282 | % Ownership: | 100.0000000000% |
| | | Exemptions: | |
Taxes and Assessment Details
Values
| (+) Improvement Homesite Value: | + | $0 | |
| (+) Improvement Non-Homesite Value: | + | $364,126 | |
| (+) Land Homesite Value: | + | $0 | |
| (+) Land Non-Homesite Value: | + | $260,000 | |
| (+) Curr Use (HS): | + | $0 | $0 |
| (+) Curr Use (NHS): | + | $0 | $0 |
| | | -------------------------- | |
| (=) Market Value: | = | $624,126 | |
| (–) Productivity Loss: | – | $0 | |
| | | -------------------------- | |
| (=) Subtotal: | = | $624,126 | |
| (+) Senior Appraised Value: | + | $0 | |
| (+) Non-Senior Appraised Value: | + | $624,126 | |
| | | -------------------------- | |
| (=) Total Appraised Value: | = | $624,126 | |
| (–) Senior Exemption Loss: | – | $0 | |
| (–) Exemption Loss: | – | $0 | |
| | | -------------------------- | |
| (=) Taxable Value: | = | $624,126 | |
Taxing Jurisdiction
| Owner: | ARRANTS, CHASE JAMES | | |
| % Ownership: | 100.0000000000% | | |
| Total Value: | $624,126 | | |
| Tax Area: | 512 - APPRAISER-Stan/Cam Schl Dist, improved, greater than 1 acre |
| CF | Conservation Futures | 0.0316035091 | $624,126 | $624,126 | $19.72 | | |
| EMS1 | Fire & Rescue Dist #1 Camano GEN (EMS) | 0.3677864386 | $624,126 | $624,126 | $229.55 | | |
| FIRE1 | Fire & Rescue Dist #1 Camano GEN | 1.2502910536 | $624,126 | $624,126 | $780.34 | | |
| FIRE1BOND | Fire & Rescue Dist #1 Camano BOND | 0.1570001679 | $624,126 | $624,126 | $97.99 | | |
| CE | County Current Expense | 0.3708482477 | $624,126 | $624,126 | $231.46 | | |
| CR | County Roads | 0.4584763726 | $624,126 | $624,126 | $286.15 | | |
| LCIB | Library Sno-Isle BOND (Camano Island) | 0.0396325772 | $624,126 | $624,126 | $24.74 | | |
| LIB | Library Sno-Isle GEN | 0.3153421757 | $624,126 | $624,126 | $196.81 | | |
| SCH205_401 | School 205-401 Enrichment | 1.2698420524 | $624,126 | $624,126 | $792.54 | | |
| SCH205BOND | School 205-401 BOND | 0.9396497583 | $624,126 | $624,126 | $586.46 | | |
| ST | State School | 1.3035497053 | $624,126 | $624,126 | $813.58 | | |
| ST2 | State School Part 2 | 0.8169543533 | $624,126 | $624,126 | $509.88 | | |
| | Total Tax Rate: | 7.3209764117 | | | | | |
| | | | | Taxes w/Current Exemptions: | $4,569.22 | | |
| | | | | Taxes w/o Exemptions: | $4,569.22 | | |
Improvement / Building
| Improvement #1: | RESIDENTIAL | State Code: | Y | 2496.5 sqft | Value: | $364,126 |
| Bathrooms: | 2 | Bedrooms: | 3 | | Ceiling: | DRYWALL PAINTED | Exterior Wall/Cover: | PLY/HARDBOARD T-111 | | Floor Covering: | HARDWOOD 100% | Floor Structure: | WOOD W/SUBFLOOR | | Foundation: | CONCRETE | Heating: | WALL HEAT ELECTRIC | | Interior Finish: | DRYWALL PAINT | Plumbing Fixture Cnt: | 9 | | Roof Slope: | 4" IN 12" | Roof Structure/Cover: | CJ ASPHALT |
|
| | Type | Description | Class CD | Sub Class CD | Year Built | Area |
| | BAS | BASE/MAIN FLOOR | 3 | 0 | 1989 | 2496.5 |
| | OP1 | OPEN PORCH SLAB | 3 | 0 | 1989 | 242.0 |
| | AGR | ATTACHED GARAGE | 3 | 0 | 1989 | 930.0 |
| | OWP | OPEN WOOD PORCH W/STEPS | 3 | 0 | 1989 | 180.8 |
| | OWP | OPEN WOOD PORCH W/STEPS | 3 | 0 | 1989 | 372.0 |
| | OWP | OPEN WOOD PORCH W/STEPS | 3 | 0 | 1989 | 427.5 |
| | CPD | OPEN CARPORT DIRT FLOOR | 3 | 0 | 1989 | 400.0 |
| | OCP | OPEN CARPORT | 3 | 0 | 1989 | 2000.0 |
Sketch
Property Image
Land
| 1 | 17 | AC (01.01-02.00) | 0.0000 | 0.00 | 0.00 | 0.00 | 1.00 | $260,000 | $0 |
Roll Value History
| 2026 | N/A | N/A | N/A | N/A | N/A |
| 2025 | $364,126 | $260,000 | $0 | $624,126 | $624,126 |
| 2024 | $369,098 | $240,000 | $0 | $609,098 | $609,098 |
| 2023 | $374,069 | $230,000 | $0 | $604,069 | $604,069 |
| 2022 | $343,208 | $240,000 | $0 | $583,208 | $583,208 |
| 2021 | $272,322 | $170,000 | $0 | $442,322 | $442,322 |
| 2020 | $266,357 | $150,000 | $0 | $416,357 | $416,357 |
| 2019 | $206,335 | $200,000 | $0 | $406,335 | $406,335 |
| 2018 | $207,004 | $150,000 | $0 | $357,004 | $357,004 |
| 2017 | $208,295 | $120,000 | $0 | $328,295 | $328,295 |
| 2016 | $210,966 | $90,000 | $0 | $300,966 | $300,966 |
| 2015 | $218,022 | $69,192 | $0 | $287,214 | $287,214 |
| 2014 | $220,564 | $69,192 | $0 | $289,756 | $289,756 |
| 2013 | $223,108 | $69,192 | $0 | $292,300 | $292,300 |
| 2012 | $225,650 | $69,192 | $0 | $294,842 | $294,842 |
| 2011 | $228,194 | $86,490 | $0 | $314,684 | $314,684 |
| 2010 | $227,116 | $86,490 | $0 | $313,606 | $313,606 |
| 2009 | $200,466 | $100,000 | $0 | $300,466 | $300,466 |
| 2008 | $202,903 | $130,000 | $0 | $332,903 | $332,903 |
| 2007 | $205,340 | $130,000 | $0 | $335,340 | $335,340 |
Deed and Sales History
| 1 | 02/10/2021 | WD | Warranty Deed | ARRANTS, TRACE P | ARRANTS, CHASE JAMES | | | $367,641.00 | 46924 | 4510772 |
| 2 | 03/31/2005 | WD | Warranty Deed | FENLEY, KENNETH R | ARRANTS, TRACE P | | | $248,000.00 | 51393 | 4130277 |
| 3 | 07/09/2001 | WD | Warranty Deed | WARNER, DAVID A | FENLEY, KENNETH R | | | $204,950.00 | 12714 | 20037607 |
| 4 | 09/22/1999 | WD | Warranty Deed | SCHOGGINS, MURRAY L | WARNER, DAVID A | | | $186,090.00 | 94236 | 99023305 |
| 5 | 05/01/1988 | QCD | Quit Claim Deed | TOMLINSON, GERALD S | STROM, JACK F | | | $0.00 | 81430 | 88005347 |
| 6 | 05/01/1988 | WD | Warranty Deed | STROM, JACK F | SCHOGGINS, MURRAY L | | | $17,500.00 | 81676 | 88006291 |
| 7 | 01/01/1900 | OTHER | Other - Misc. Documents | Unknown | TOMLINSON, GERALD S | | | $0.00 | 73255 | 87014257 |
| 8 | 01/01/1900 | OTHER | Other - Misc. Documents | SCHOGGINS, MURRAY L | SCHOGGINS, MURRAY L | | | $0.00 | 0 | 0 |
Payout Agreement
| No payout information available.. |