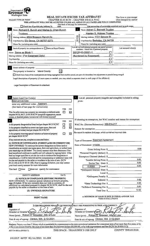
Property
Account |
| Property ID: | 629680 | Abbreviated Legal Description: | LOT 2 SP 87-17.32905.341-2561-2 V2 SP P161 AF#88005760 |
| Geographic ID: | R32905-380-2550 | Agent Code: | |
| Type: | Real | | |
| Tax Area: | 712 - APPRAISER-S Whid Schl Dist, outside Langley, improved, greater than 1 acre | Land Use Code | 11 |
| Open Space: | N | DFL | N |
| Historic Property: | N | Remodel Property: | N |
| Multi-Family Redevelopment: | N | | |
| Township: | 29 | Section: | 05 |
| Range: | R3 |
Location |
| Address: | 2993 ANDREASON RD LANGLEY, WA 98260 | Mapsco: | |
| Neighborhood: | Cycle 4 | Map ID: | 734 |
| Neighborhood CD: | 4 |
Owner |
| Name: | JURRIAANS, JENNIFER | Owner ID: | 289825 |
| Mailing Address: | SIBRAND JURRIAANS PO BOX 1015 LANGLEY, WA 98260 | % Ownership: | 100.0000000000% |
| | | Exemptions: | |
Taxes and Assessment Details
Values
| (+) Improvement Homesite Value: | + | $0 | |
| (+) Improvement Non-Homesite Value: | + | $568,818 | |
| (+) Land Homesite Value: | + | $0 | |
| (+) Land Non-Homesite Value: | + | $370,000 | |
| (+) Curr Use (HS): | + | $0 | $0 |
| (+) Curr Use (NHS): | + | $0 | $0 |
| | | -------------------------- | |
| (=) Market Value: | = | $938,818 | |
| (–) Productivity Loss: | – | $0 | |
| | | -------------------------- | |
| (=) Subtotal: | = | $938,818 | |
| (+) Senior Appraised Value: | + | $0 | |
| (+) Non-Senior Appraised Value: | + | $938,818 | |
| | | -------------------------- | |
| (=) Total Appraised Value: | = | $938,818 | |
| (–) Senior Exemption Loss: | – | $0 | |
| (–) Exemption Loss: | – | $0 | |
| | | -------------------------- | |
| (=) Taxable Value: | = | $938,818 | |
Taxing Jurisdiction
| Owner: | JURRIAANS, JENNIFER | | |
| % Ownership: | 100.0000000000% | | |
| Total Value: | $938,818 | | |
| Tax Area: | 712 - APPRAISER-S Whid Schl Dist, outside Langley, improved, greater than 1 acre |
| CF | Conservation Futures | 0.0316035091 | $938,818 | $938,818 | $29.67 | | |
| FIRE3 | Fire & Rescue Dist #3 S Whidbey GEN | 1.2004855531 | $938,818 | $938,818 | $1,127.04 | | |
| HOBOND | Hospital BOND | 0.1910887512 | $938,818 | $938,818 | $179.40 | | |
| HOGEN | Hospital GEN | 0.3902502903 | $938,818 | $938,818 | $366.37 | | |
| CE | County Current Expense | 0.3708482477 | $938,818 | $938,818 | $348.16 | | |
| CR | County Roads | 0.4584763726 | $938,818 | $938,818 | $430.43 | | |
| ISLANDEMS | Hospital GEN (EMS) | 0.5000000000 | $938,818 | $938,818 | $469.41 | | |
| LIB | Library Sno-Isle GEN | 0.3153421757 | $938,818 | $938,818 | $296.05 | | |
| PORTWHID | Port of S Whidbey GEN | 0.1094540357 | $938,818 | $938,818 | $102.76 | | |
| SCH206BOND | School 206 BOND | 0.3161759235 | $938,818 | $938,818 | $296.83 | | |
| SCH206MO | School 206 Enrichment | 0.4547169547 | $938,818 | $938,818 | $426.90 | | |
| ST | State School | 1.3035497053 | $938,818 | $938,818 | $1,223.80 | | |
| ST2 | State School Part 2 | 0.8169543533 | $938,818 | $938,818 | $766.97 | | |
| SWHIDPRBD | P & R S Whidbey BOND | 0.0152817568 | $938,818 | $938,818 | $14.35 | | |
| SWHIDPRBD2 | P & R S Whidbey BOND2 | 0.0138911264 | $938,818 | $938,818 | $13.04 | | |
| SWHIDPRMT | P & R S Whidbey GEN | 0.2053334452 | $938,818 | $938,818 | $192.77 | | |
| | Total Tax Rate: | 6.6934522006 | | | | | |
| | | | | Taxes w/Current Exemptions: | $6,283.95 | | |
| | | | | Taxes w/o Exemptions: | $6,283.95 | | |
Improvement / Building
| Improvement #1: | RESIDENTIAL | State Code: | Y | 1058.0 sqft | Value: | $231,695 |
| Bathrooms: | 1 | Bedrooms: | 1 | | Ceiling: | DRYWALL PAINTED | Exterior Wall/Cover: | SHINGLE | | Floor Covering: | HARDWOOD/CARP 80-20 | Floor Structure: | WOOD W/SUBFLOOR | | Foundation: | CONCRETE | Heating: | WALL HEAT ELECTRIC | | Interior Finish: | DRYWALL PAINT | Plumbing Fixture Cnt: | 7 | | Roof Slope: | 5" IN 12" | Roof Structure/Cover: | CJ ASPHALT |
|
| | Type | Description | Class CD | Sub Class CD | Year Built | Area |
| | BAS | BASE/MAIN FLOOR | 3 | 0 | 1990 | 1058.0 |
| | OWP | OPEN WOOD PORCH W/STEPS | 3 | 0 | 1990 | 96.0 |
| | OWR | OPEN WOOD PORCH W/STEPS/ROOF | 3 | 0 | 1990 | 60.0 |
| | OWR | OPEN WOOD PORCH W/STEPS/ROOF | 3 | 0 | 1990 | 108.0 |
| | OWR | OPEN WOOD PORCH W/STEPS/ROOF | 3 | 0 | 1990 | 32.0 |
| | oBAR | BARN | 3 | 0 | 1990 | 32.0 |
| Improvement #2: | RESIDENTIAL | State Code: | Y | 1105.0 sqft | Value: | $172,290 |
| Bathrooms: | 1 | Bedrooms: | 2 | | Ceiling: | DRYWALL PAINTED | Exterior Wall/Cover: | SHINGLE | | Floor Covering: | CARPET/VINYL 80-20 | Floor Structure: | WOOD W/SUBFLOOR | | Foundation: | WOOD BLOCKS | Heating: | WALL HEAT ELECTRIC | | Interior Finish: | DRYWALL PAINT | Plumbing Fixture Cnt: | 6 | | Roof Slope: | 12" IN 12" | Roof Structure/Cover: | CJ ASPHALT |
|
| | Type | Description | Class CD | Sub Class CD | Year Built | Area |
| | BAS | BASE/MAIN FLOOR | 3 | 0 | 1991 | 721.0 |
| | UPS | UPPER STORY | 3 | 0 | 1991 | 384.0 |
| | OWR | OPEN WOOD PORCH W/STEPS/ROOF | 3 | 0 | 1991 | 104.0 |
| | OWR | OPEN WOOD PORCH W/STEPS/ROOF | 3 | 0 | 1991 | 52.0 |
| Improvement #3: | RESIDENTIAL | State Code: | Y | 920.0 sqft | Value: | $164,833 |
| Bathrooms: | 0.5 | Bedrooms: | 0 | | Ceiling: | DRYWALL PAINTED | Exterior Wall/Cover: | CEMENT FIBER | | Floor Covering: | COLORED CONCRETE | Floor Structure: | SLAB ON GRADE | | Foundation: | SLAB | Heating: | WALL HEAT ELECTRIC | | Interior Finish: | DRYWALL PAINT | Plumbing Fixture Cnt: | 3 | | Roof Slope: | 5" IN 12" | Roof Structure/Cover: | CJ ALUMINIUM HEAVY |
|
| | Type | Description | Class CD | Sub Class CD | Year Built | Area |
| | BAS | BASE/MAIN FLOOR | 3 | 0 | 1991 | 920.0 |
| | OWP | OPEN WOOD PORCH W/STEPS | 3 | 0 | 1991 | 84.0 |
| | CPD | OPEN CARPORT DIRT FLOOR | 3 | 0 | 1991 | 484.0 |
| | UTY | STORAGE/UTILITY | 3 | 0 | 1991 | 304.0 |
Sketch
Property Image
Land
| 1 | 32 | AC (03.01-09.99) | 6.0700 | 0.00 | 0.00 | 0.00 | 1.00 | $370,000 | $0 |
Roll Value History
| 2026 | N/A | N/A | N/A | N/A | N/A |
| 2025 | $568,818 | $370,000 | $0 | $938,818 | $938,818 |
| 2024 | $575,954 | $350,000 | $0 | $925,954 | $925,954 |
| 2023 | $583,093 | $330,000 | $0 | $913,093 | $913,093 |
| 2022 | $535,872 | $290,000 | $0 | $825,872 | $825,872 |
| 2021 | $473,554 | $230,000 | $0 | $703,554 | $703,554 |
| 2020 | $453,705 | $190,000 | $0 | $643,705 | $643,705 |
| 2019 | $331,963 | $250,000 | $0 | $581,963 | $581,963 |
| 2018 | $305,901 | $210,000 | $0 | $515,901 | $515,901 |
| 2017 | $307,765 | $210,000 | $0 | $517,765 | $517,765 |
| 2016 | $311,491 | $165,000 | $0 | $476,491 | $476,491 |
| 2015 | $315,216 | $165,000 | $0 | $480,216 | $480,216 |
| 2014 | $319,554 | $163,890 | $0 | $483,444 | $483,444 |
| 2013 | $322,799 | $163,890 | $0 | $486,689 | $486,689 |
| 2012 | $326,045 | $163,890 | $0 | $489,935 | $489,935 |
| 2011 | $329,291 | $163,890 | $0 | $493,181 | $493,181 |
| 2010 | $337,676 | $163,890 | $0 | $501,566 | $501,566 |
| 2009 | $350,470 | $267,080 | $0 | $617,550 | $617,550 |
| 2008 | $246,447 | $261,010 | $0 | $507,457 | $507,457 |
| 2007 | $230,362 | $281,553 | $0 | $511,915 | $511,915 |
Deed and Sales History
| 1 | 05/10/2019 | WD | Warranty Deed | MOFFETT, BYRON L / DANA S | JURRIAANS, JENNIFER | | | $725,000.00 | 38570 | 4463632 |
| 2 | 03/01/1998 | QCD | Quit Claim Deed | MOFFETT, BYRON L | MOFFETT, BYRON L | | | $0.00 | 80870 | 98004947 |
| 3 | 11/01/1988 | WD | Warranty Deed | MCNEIL, SCOTT | MOFFETT, BYRON L | | | $27,500.00 | 84049 | 88015189 |
| 4 | 11/01/1988 | QCD | Quit Claim Deed | MOFFETT, BYRON L | MOFFETT, BYRON L | | | $0.00 | 84050 | 88015190 |
| 5 | 11/01/1988 | WD | Warranty Deed | MOFFETT, BYRON L | MOFFETT, BYRON L | | | $0.00 | 84101 | 88015347 |
| 6 | 11/01/1988 | QCD | Quit Claim Deed | MOFFETT, BYRON L | MOFFETT, BYRON L | | | $0.00 | 84102 | 88015348 |
| 7 | 01/01/1900 | OTHER | Other - Misc. Documents | Unknown | MCNEIL, SCOTT | | | $0.00 | 62500 | 86011278 |
Payout Agreement
| No payout information available.. |