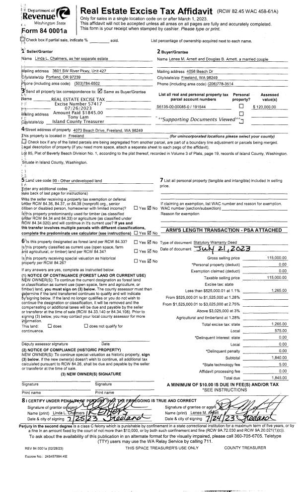
Property
Account |
| Property ID: | 630106 | Abbreviated Legal Description: | IN GL1: BG PT 732'N OF SECR GL1 W TO ML NLY ALG ML TP 852'N OF SLN SEC 22 E TO ELN SD SEC S120' TPB EX PT LY W OF WLN SUNSET DR FR 077-4270 |
| Geographic ID: | R23222-077-4700 | Agent Code: | |
| Type: | Real | | |
| Tax Area: | 512 - APPRAISER-Stan/Cam Schl Dist, improved, greater than 1 acre | Land Use Code | 11 |
| Open Space: | N | DFL | N |
| Historic Property: | N | Remodel Property: | N |
| Multi-Family Redevelopment: | N | | |
| Township: | 32 | Section: | 22 |
| Range: | R2 |
Location |
| Address: | 864 N SUNSET DR CAMANO ISLAND, WA 98282 | Mapsco: | |
| Neighborhood: | North Camano | Map ID: | 552 |
| Neighborhood CD: | 06-C |
Owner |
| Name: | WALTER, AARON ANDREW | Owner ID: | 257526 |
| Mailing Address: | 2604 CAVALERO RD LAKE STEVENS, WA 98258 | % Ownership: | 100.0000000000% |
| | | Exemptions: | |
Taxes and Assessment Details
Values
| (+) Improvement Homesite Value: | + | $0 | |
| (+) Improvement Non-Homesite Value: | + | $458,555 | |
| (+) Land Homesite Value: | + | $0 | |
| (+) Land Non-Homesite Value: | + | $360,000 | |
| (+) Curr Use (HS): | + | $0 | $0 |
| (+) Curr Use (NHS): | + | $0 | $0 |
| | | -------------------------- | |
| (=) Market Value: | = | $818,555 | |
| (–) Productivity Loss: | – | $0 | |
| | | -------------------------- | |
| (=) Subtotal: | = | $818,555 | |
| (+) Senior Appraised Value: | + | $0 | |
| (+) Non-Senior Appraised Value: | + | $818,555 | |
| | | -------------------------- | |
| (=) Total Appraised Value: | = | $818,555 | |
| (–) Senior Exemption Loss: | – | $0 | |
| (–) Exemption Loss: | – | $0 | |
| | | -------------------------- | |
| (=) Taxable Value: | = | $818,555 | |
Taxing Jurisdiction
| Owner: | WALTER, AARON ANDREW | | |
| % Ownership: | 100.0000000000% | | |
| Total Value: | $818,555 | | |
| Tax Area: | 512 - APPRAISER-Stan/Cam Schl Dist, improved, greater than 1 acre |
| CF | Conservation Futures | 0.0316035091 | $818,555 | $818,555 | $25.87 | | |
| EMS1 | Fire & Rescue Dist #1 Camano GEN (EMS) | 0.3677864386 | $818,555 | $818,555 | $301.05 | | |
| FIRE1 | Fire & Rescue Dist #1 Camano GEN | 1.2502910536 | $818,555 | $818,555 | $1,023.43 | | |
| FIRE1BOND | Fire & Rescue Dist #1 Camano BOND | 0.1570001679 | $818,555 | $818,555 | $128.51 | | |
| CE | County Current Expense | 0.3708482477 | $818,555 | $818,555 | $303.56 | | |
| CR | County Roads | 0.4584763726 | $818,555 | $818,555 | $375.29 | | |
| LCIB | Library Sno-Isle BOND (Camano Island) | 0.0396325772 | $818,555 | $818,555 | $32.44 | | |
| LIB | Library Sno-Isle GEN | 0.3153421757 | $818,555 | $818,555 | $258.12 | | |
| SCH205_401 | School 205-401 Enrichment | 1.2698420524 | $818,555 | $818,555 | $1,039.44 | | |
| SCH205BOND | School 205-401 BOND | 0.9396497583 | $818,555 | $818,555 | $769.16 | | |
| ST | State School | 1.3035497053 | $818,555 | $818,555 | $1,067.03 | | |
| ST2 | State School Part 2 | 0.8169543533 | $818,555 | $818,555 | $668.72 | | |
| | Total Tax Rate: | 7.3209764117 | | | | | |
| | | | | Taxes w/Current Exemptions: | $5,992.62 | | |
| | | | | Taxes w/o Exemptions: | $5,992.62 | | |
Improvement / Building
| Improvement #1: | RESIDENTIAL | State Code: | Y | 2160.0 sqft | Value: | $458,555 |
| Bathrooms: | 2 | Bedrooms: | 2 | | Ceiling: | DRYWALL PAINTED | Exterior Wall/Cover: | SHINGLE | | Floor Covering: | HARDWOOD/CARP 60-40 | Floor Structure: | WOOD W/SUBFLOOR | | Foundation: | CONCRETE | Heating: | WALL HEAT ELECTRIC | | Interior Finish: | DRYWALL PAINT | Plumbing Fixture Cnt: | 9 | | Roof Slope: | 6" IN 12" | Roof Structure/Cover: | CJ ALUMINIUM HEAVY |
|
| | Type | Description | Class CD | Sub Class CD | Year Built | Area |
| | BAS | BASE/MAIN FLOOR | 4 | 0 | 2003 | 1920.0 |
| | OP1 | OPEN PORCH SLAB | 4 | 0 | 2003 | 110.0 |
| | OP4 | OPEN PORCH W/CEILING-ROOF | 4 | 0 | 2003 | 288.0 |
| | LOF | LOFT | 4 | 0 | 2003 | 240.0 |
| | oLOF | STORAGE LOFT | 4 | 0 | 2003 | 648.0 |
| | oBAR | BARN | 4 | 0 | 2003 | 1512.0 |
| | oOWD | OPEN WD DK | 4 | 0 | 2003 | 60.0 |
| | oOP3 | SLAB/ROOF | 4 | 0 | 2003 | 216.0 |
| | UTY | STORAGE/UTILITY | 4 | 0 | 2003 | 120.0 |
Sketch
Property Image
Land
| 1 | 32 | AC (03.01-09.99) | 3.2700 | 142441.20 | 0.00 | 0.00 | 1.00 | $360,000 | $0 |
Roll Value History
| 2026 | N/A | N/A | N/A | N/A | N/A |
| 2025 | $458,555 | $360,000 | $0 | $818,555 | $818,555 |
| 2024 | $463,138 | $340,000 | $0 | $803,138 | $803,138 |
| 2023 | $466,576 | $320,000 | $0 | $786,576 | $786,576 |
| 2022 | $373,876 | $300,000 | $0 | $673,876 | $673,876 |
| 2021 | $335,573 | $230,000 | $0 | $565,573 | $565,573 |
| 2020 | $328,954 | $190,000 | $0 | $518,954 | $518,954 |
| 2019 | $260,647 | $220,000 | $0 | $480,647 | $480,647 |
| 2018 | $261,260 | $175,000 | $0 | $436,260 | $436,260 |
| 2017 | $262,486 | $150,000 | $0 | $412,486 | $412,486 |
| 2016 | $264,940 | $150,000 | $0 | $414,940 | $414,940 |
| 2015 | $267,392 | $73,248 | $0 | $340,640 | $340,640 |
| 2014 | $269,844 | $73,248 | $0 | $343,092 | $343,092 |
| 2013 | $310,331 | $73,248 | $0 | $383,579 | $383,579 |
| 2012 | $242,847 | $73,248 | $0 | $316,095 | $316,095 |
| 2011 | $245,544 | $93,000 | $0 | $338,544 | $338,544 |
| 2010 | $252,629 | $93,000 | $0 | $345,629 | $138,252 |
| 2009 | $263,212 | $115,000 | $0 | $378,212 | $151,285 |
| 2008 | $268,759 | $142,245 | $0 | $411,004 | $411,004 |
| 2007 | $268,777 | $142,245 | $0 | $411,022 | $411,022 |
Deed and Sales History
| 1 | 11/10/2011 | QCD | Quit Claim Deed | WALTER, AARON ANDREW | WALTER, AARON ANDREW | | | $0.00 | 7342 | 4313336 |
| 2 | 04/26/2011 | QCD | Quit Claim Deed | WALTER, KATHLEEN ANN | WALTER, AARON ANDREW | | | $0.00 | 5422 | 4300512 |
| 3 | 09/09/2009 | QCD | Quit Claim Deed | WALTER, AARON A | WALTER, KATHLEEN ANN | | | $0.00 | 92121 | 4259883 |
| 4 | 10/27/2000 | WD | Warranty Deed | SIMONSON, JOHN C | WALTER, AARON A | | | $62,000.00 | 4212 | 20019284 |
| 5 | 04/01/1995 | WD | Warranty Deed | ROGERS, RUTH D | SIMONSON, JOHN C | | | $40,000.00 | 51343 | 95006297 |
| 6 | 01/01/1990 | QCD | Quit Claim Deed | ROGERS, HORACE B | ROGERS, RUTH D | | | $0.00 | 368 | 90001124 |
| 7 | 01/01/1900 | OTHER | Other - Misc. Documents | Unknown | ROGERS, HORACE B | | | $0.00 | 0 | 0 |
Payout Agreement
| No payout information available.. |