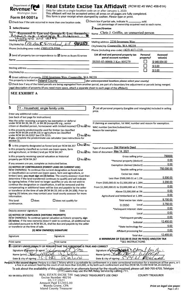
Property
Account |
| Property ID: | 630482 | Abbreviated Legal Description: | S475' OF GL4 13-28-3E INCL ADJ TIDES TGW PT SE SE SEC 14-28-3E DESC: BG SECR SEC 14 N01*W315.05' S88*W96.81' S01*E320' TO SLN SEC 14 N85*E96.94' TPB TGW EZ FR 034-011 & PT 046-467 |
| Geographic ID: | R32813-024-0100 | Agent Code: | |
| Type: | Real | | |
| Tax Area: | 712 - APPRAISER-S Whid Schl Dist, outside Langley, improved, greater than 1 acre | Land Use Code | 11 |
| Open Space: | N | DFL | N |
| Historic Property: | N | Remodel Property: | N |
| Multi-Family Redevelopment: | N | | |
| Township: | 28 | Section: | 13 |
| Range: | R3 |
Location |
| Address: | 8355 FRANKLIN RD CLINTON, WA 98236 | Mapsco: | |
| Neighborhood: | Cycle 4 | Map ID: | 707 |
| Neighborhood CD: | 4 |
Owner |
| Name: | STATE OF WASHINGTON | Owner ID: | 185347 |
| Mailing Address: | WASH STATE PARKS & REC PO BOX 42650 OLYMPIA, WA 98504-2650 | % Ownership: | 100.0000000000% |
| | | Exemptions: | EX |
Taxes and Assessment Details
Values
| (+) Improvement Homesite Value: | + | $0 | |
| (+) Improvement Non-Homesite Value: | + | $238,910 | |
| (+) Land Homesite Value: | + | $0 | |
| (+) Land Non-Homesite Value: | + | $953,250 | |
| (+) Curr Use (HS): | + | $0 | $0 |
| (+) Curr Use (NHS): | + | $0 | $0 |
| | | -------------------------- | |
| (=) Market Value: | = | $1,192,160 | |
| (–) Productivity Loss: | – | $0 | |
| | | -------------------------- | |
| (=) Subtotal: | = | $1,192,160 | |
| (+) Senior Appraised Value: | + | $0 | |
| (+) Non-Senior Appraised Value: | + | $1,192,160 | |
| | | -------------------------- | |
| (=) Total Appraised Value: | = | $1,192,160 | |
| (–) Senior Exemption Loss: | – | $0 | |
| (–) Exemption Loss: | – | $1,192,160 | |
| | | -------------------------- | |
| (=) Taxable Value: | = | $0 | |
Taxing Jurisdiction
| Owner: | STATE OF WASHINGTON | | |
| % Ownership: | 100.0000000000% | | |
| Total Value: | $1,192,160 | | |
| Tax Area: | 712 - APPRAISER-S Whid Schl Dist, outside Langley, improved, greater than 1 acre |
| CF | Conservation Futures | 0.0316035091 | $1,192,160 | $0 | $0.00 | | |
| FIRE3 | Fire & Rescue Dist #3 S Whidbey GEN | 1.2004855531 | $1,192,160 | $0 | $0.00 | | |
| HOBOND | Hospital BOND | 0.1910887512 | $1,192,160 | $0 | $0.00 | | |
| HOGEN | Hospital GEN | 0.3902502903 | $1,192,160 | $0 | $0.00 | | |
| CE | County Current Expense | 0.3708482477 | $1,192,160 | $0 | $0.00 | | |
| CR | County Roads | 0.4584763726 | $1,192,160 | $0 | $0.00 | | |
| ISLANDEMS | Hospital GEN (EMS) | 0.5000000000 | $1,192,160 | $0 | $0.00 | | |
| LIB | Library Sno-Isle GEN | 0.3153421757 | $1,192,160 | $0 | $0.00 | | |
| PORTWHID | Port of S Whidbey GEN | 0.1094540357 | $1,192,160 | $0 | $0.00 | | |
| SCH206BOND | School 206 BOND | 0.3161759235 | $1,192,160 | $0 | $0.00 | | |
| SCH206MO | School 206 Enrichment | 0.4547169547 | $1,192,160 | $0 | $0.00 | | |
| ST | State School | 1.3035497053 | $1,192,160 | $0 | $0.00 | | |
| ST2 | State School Part 2 | 0.8169543533 | $1,192,160 | $0 | $0.00 | | |
| SWHIDPRBD | P & R S Whidbey BOND | 0.0152817568 | $1,192,160 | $0 | $0.00 | | |
| SWHIDPRBD2 | P & R S Whidbey BOND2 | 0.0138911264 | $1,192,160 | $0 | $0.00 | | |
| SWHIDPRMT | P & R S Whidbey GEN | 0.2053334452 | $1,192,160 | $0 | $0.00 | | |
| | Total Tax Rate: | 6.6934522006 | | | | | |
| | | | | Taxes w/Current Exemptions: | $0.00 | | |
| | | | | Taxes w/o Exemptions: | $7,979.68 | | |
Improvement / Building
| Improvement #1: | RESIDENTIAL | State Code: | Y | 2433.0 sqft | Value: | $238,910 |
| Bathrooms: | 2 | Bedrooms: | 2 | | Ceiling: | DRYWALL PAINTED | Exterior Wall/Cover: | WOOD SIDING | | Floor Covering: | CARPET/VINYL 80-20 | Floor Structure: | WOOD W/SUBFLOOR | | Foundation: | CONCRETE | Heating: | FHA GAS | | Interior Finish: | DRYWALL PAINT | Plumbing Fixture Cnt: | 9 | | Roof Slope: | 8" IN 12" | Roof Structure/Cover: | CJ ALUMINIUM HEAVY |
|
| | Type | Description | Class CD | Sub Class CD | Year Built | Area |
| | BAS | BASE/MAIN FLOOR | 3 | 0 | 1941 | 1288.0 |
| | UB6 | BASEMENT UNFINISHED 6" | 3 | 0 | 1941 | 143.0 |
| | DWN | DOWNSTAIRS LIVING AREA | 3 | 0 | 1941 | 1145.0 |
| | OWP | OPEN WOOD PORCH W/STEPS | 3 | 0 | 1941 | 189.0 |
| | OWR | OPEN WOOD PORCH W/STEPS/ROOF | 3 | 0 | 1941 | 120.0 |
| | ENP | ENCLOSED PORCH | 3 | 0 | 1941 | 96.0 |
| | CPD | OPEN CARPORT DIRT FLOOR | 3 | 0 | 1941 | 560.0 |
| | UTY | STORAGE/UTILITY | 3 | 0 | 1941 | 192.0 |
Sketch
| No sketches available for this property. |
Property Image
Land
| 1 | LB | LOW BANK | 2.2800 | 99316.80 | 325.00 | 0.00 | 1.00 | $950,000 | $0 |
| 2 | 55 | TIDES | 0.0000 | 0.00 | 325.00 | 0.00 | 1.00 | $3,250 | $0 |
Roll Value History
| 2026 | N/A | N/A | N/A | N/A | N/A |
| 2025 | $238,910 | $953,250 | $0 | $1,192,160 | $0 |
| 2024 | $243,083 | $903,250 | $0 | $1,146,333 | $0 |
| 2023 | $247,255 | $903,250 | $0 | $1,150,505 | $0 |
| 2022 | $227,670 | $853,250 | $0 | $1,080,920 | $0 |
| 2021 | $215,476 | $703,250 | $0 | $918,726 | $0 |
| 2020 | $192,246 | $703,250 | $0 | $895,496 | $0 |
| 2019 | $139,150 | $703,250 | $0 | $842,400 | $0 |
| 2018 | $141,454 | $1,035,510 | $0 | $1,176,964 | $0 |
| 2017 | $142,548 | $1,035,510 | $0 | $1,178,058 | $0 |
| 2016 | $144,734 | $1,035,510 | $0 | $1,180,244 | $0 |
| 2015 | $146,091 | $1,035,510 | $0 | $1,181,601 | $0 |
| 2014 | $105,617 | $1,035,510 | $0 | $1,141,127 | $0 |
| 2013 | $107,810 | $1,035,510 | $0 | $1,143,320 | $0 |
| 2012 | $109,999 | $1,035,510 | $0 | $1,145,509 | $0 |
| 2011 | $112,189 | $1,035,510 | $0 | $1,147,699 | $0 |
| 2010 | $132,803 | $1,035,510 | $0 | $1,168,313 | $0 |
| 2009 | $139,300 | $1,035,510 | $0 | $1,174,810 | $0 |
| 2008 | $135,967 | $1,035,510 | $0 | $1,171,477 | $0 |
| 2007 | $138,831 | $1,033,235 | $0 | $1,172,066 | $0 |
Deed and Sales History
| 1 | 04/26/2001 | WD | Warranty Deed | ALBERTSON, ELISABETH A | STATE OF WASHINGTON, | | | $896,700.00 | 11628 | 20031899 |
| 2 | 11/01/1988 | QCD | Quit Claim Deed | ALBERTSON, ELISABETH, E | SHERWOOD, JOHN F | | | $0.00 | 83818 | 88014252 |
| 3 | 11/01/1988 | WD | Warranty Deed | SHERWOOD, JOHN F | SHERWOOD, JOHN F | | | $34,286.00 | 84110 | 88015374 |
| 4 | 11/01/1988 | WD | Warranty Deed | SHERWOOD, JOHN F | ALBERTSON, ELISABETH A | | | $165,714.00 | 84111 | 88015375 |
| 5 | 07/01/1988 | OTHER | Other - Misc. Documents | ALBERTSON, ELISABETH, E | ALBERTSON, ELISABETH, E | | | $0.00 | 62721 | 88008330 |
| 6 | 03/01/1987 | DECREE | Divorce Decree/Legal Separation | Unknown | ALBERTSON, ELISABETH, E | | | $0.00 | 70723 | 87003927 |
Payout Agreement
| No payout information available.. |