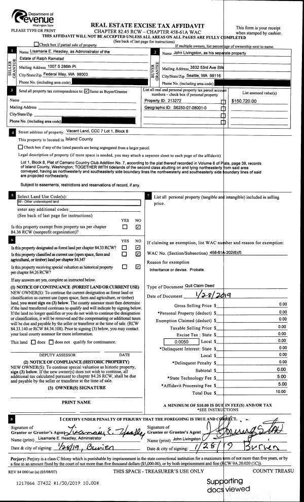
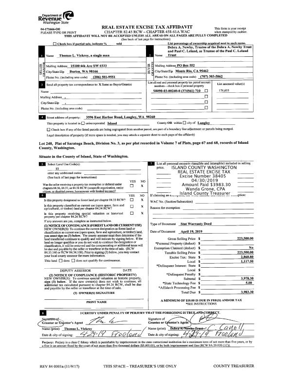
Property
Account |
| Property ID: | 63068 | Abbreviated Legal Description: | 7 - W/2 SW SE EX N900' TGW 60' EZ 30' EA SIDE N/S CLN W/2 SE/4 (AF#339420) |
| Geographic ID: | R23018-017-2990 | Agent Code: | |
| Type: | Real | | |
| Tax Area: | 312 - APPRAISER-Cpvl Schl Dist, outside Cpvl, improved, greater than 1 acre | Land Use Code | 11 |
| Open Space: | N | DFL | N |
| Historic Property: | N | Remodel Property: | N |
| Multi-Family Redevelopment: | N | | |
| Township: | 30 | Section: | 18 |
| Range: | R2 |
Location |
| Address: | 3589 SMUGGLERS COVE RD GREENBANK, WA 98253 | Mapsco: | |
| Neighborhood: | Cycle 3 | Map ID: | 389 |
| Neighborhood CD: | 3 |
Owner |
| Name: | JORGENSON, TERESA LOU | Owner ID: | 288991 |
| Mailing Address: | 3589 SMUGGLERS COVE RD GREENBANK, WA 98253 | % Ownership: | 100.0000000000% |
| | | Exemptions: | |
Taxes and Assessment Details
Values
| (+) Improvement Homesite Value: | + | $0 | |
| (+) Improvement Non-Homesite Value: | + | $352,523 | |
| (+) Land Homesite Value: | + | $0 | |
| (+) Land Non-Homesite Value: | + | $390,000 | |
| (+) Curr Use (HS): | + | $0 | $0 |
| (+) Curr Use (NHS): | + | $0 | $0 |
| | | -------------------------- | |
| (=) Market Value: | = | $742,523 | |
| (–) Productivity Loss: | – | $0 | |
| | | -------------------------- | |
| (=) Subtotal: | = | $742,523 | |
| (+) Senior Appraised Value: | + | $0 | |
| (+) Non-Senior Appraised Value: | + | $742,523 | |
| | | -------------------------- | |
| (=) Total Appraised Value: | = | $742,523 | |
| (–) Senior Exemption Loss: | – | $0 | |
| (–) Exemption Loss: | – | $0 | |
| | | -------------------------- | |
| (=) Taxable Value: | = | $742,523 | |
Taxing Jurisdiction
| Owner: | JORGENSON, TERESA LOU | | |
| % Ownership: | 100.0000000000% | | |
| Total Value: | $742,523 | | |
| Tax Area: | 312 - APPRAISER-Cpvl Schl Dist, outside Cpvl, improved, greater than 1 acre |
| CF | Conservation Futures | 0.0316035091 | $742,523 | $742,523 | $23.47 | | |
| CEM2 | Cemetery #2 | 0.0095056933 | $742,523 | $742,523 | $7.06 | | |
| FIRE5 | Fire & Rescue Dist #5 C Whidbey GEN | 1.2008080668 | $742,523 | $742,523 | $891.63 | | |
| FIRE5BOND | Fire & Rescue Dist #5 C Whidbey BOND | 0.1400090713 | $742,523 | $742,523 | $103.96 | | |
| HOBOND | Hospital BOND | 0.1910887512 | $742,523 | $742,523 | $141.89 | | |
| HOGEN | Hospital GEN | 0.3902502903 | $742,523 | $742,523 | $289.77 | | |
| CE | County Current Expense | 0.3708482477 | $742,523 | $742,523 | $275.36 | | |
| CR | County Roads | 0.4584763726 | $742,523 | $742,523 | $340.43 | | |
| ISLANDEMS | Hospital GEN (EMS) | 0.5000000000 | $742,523 | $742,523 | $371.26 | | |
| LIB | Library Sno-Isle GEN | 0.3153421757 | $742,523 | $742,523 | $234.15 | | |
| LIBCAP | Library Sno-Isle BOND (Cap Fac Imp Area) | 0.0543427938 | $742,523 | $742,523 | $40.35 | | |
| POCOUP | Port of Coupeville GEN | 0.1093371703 | $742,523 | $742,523 | $81.19 | | |
| POCOUPIDD | Port of Coupeville IDD | 0.3409740022 | $742,523 | $742,523 | $253.18 | | |
| COUPSDTECH | School 204 CP (TECH) | 0.7545480007 | $742,523 | $742,523 | $560.27 | | |
| SCH204MO | School 204 Enrichment | 0.6716186034 | $742,523 | $742,523 | $498.69 | | |
| ST | State School | 1.3035497053 | $742,523 | $742,523 | $967.92 | | |
| ST2 | State School Part 2 | 0.8169543533 | $742,523 | $742,523 | $606.61 | | |
| | Total Tax Rate: | 7.6592568070 | | | | | |
| | | | | Taxes w/Current Exemptions: | $5,687.19 | | |
| | | | | Taxes w/o Exemptions: | $5,687.19 | | |
Improvement / Building
| Improvement #1: | RESIDENTIAL | State Code: | Y | 1918.0 sqft | Value: | $352,523 |
| Bathrooms: | 2 | Bedrooms: | 2 | | Ceiling: | DRYWALL PAINTED | Exterior Wall/Cover: | WOOD SIDING | | Floor Covering: | CERAMIC TILE/CPT 40-60 | Floor Structure: | WOOD W/SUBFLOOR | | Foundation: | CONCRETE | Heating: | FHA GAS | | Interior Finish: | DRYWALL PAINT | Plumbing Fixture Cnt: | 9 | | Roof Slope: | 5" IN 12" | Roof Structure/Cover: | CJ ASPHALT |
|
| | Type | Description | Class CD | Sub Class CD | Year Built | Area |
| | BAS | BASE/MAIN FLOOR | 3 | 0 | 1996 | 1120.0 |
| | BIG | BUILT IN GARAGE | 3 | 0 | 1996 | 322.0 |
| | OWP | OPEN WOOD PORCH W/STEPS | 3 | 0 | 1996 | 264.0 |
| | ENP | ENCLOSED PORCH | 3 | 0 | 1996 | 176.0 |
| | OWP | OPEN WOOD PORCH W/STEPS | 3 | 0 | 1996 | 148.0 |
| | OWR | OPEN WOOD PORCH W/STEPS/ROOF | 3 | 0 | 1996 | 336.0 |
| | DWN | DOWNSTAIRS LIVING AREA | 3 | 0 | 1996 | 798.0 |
| | UTY | STORAGE/UTILITY | 3 | 0 | 1996 | 1344.0 |
Sketch
Property Image
Land
| 1 | 32 | AC (03.01-09.99) | 4.7000 | 0.00 | 0.00 | 0.00 | 1.00 | $390,000 | $0 |
Roll Value History
| 2026 | N/A | N/A | N/A | N/A | N/A |
| 2025 | $352,523 | $390,000 | $0 | $742,523 | $742,523 |
| 2024 | $356,914 | $370,000 | $0 | $726,914 | $726,914 |
| 2023 | $368,105 | $350,000 | $0 | $718,105 | $718,105 |
| 2022 | $337,362 | $350,000 | $0 | $687,362 | $687,362 |
| 2021 | $296,873 | $280,000 | $0 | $576,873 | $576,873 |
| 2020 | $289,781 | $240,000 | $0 | $529,781 | $529,781 |
| 2019 | $227,095 | $280,000 | $0 | $507,095 | $507,095 |
| 2018 | $191,278 | $235,000 | $0 | $426,278 | $426,278 |
| 2017 | $192,245 | $200,000 | $0 | $392,245 | $392,245 |
| 2016 | $194,175 | $180,000 | $0 | $374,175 | $374,175 |
| 2015 | $196,106 | $215,000 | $0 | $411,106 | $411,106 |
| 2014 | $198,040 | $215,000 | $0 | $413,040 | $413,040 |
| 2013 | $199,970 | $211,500 | $0 | $411,470 | $411,470 |
| 2012 | $201,901 | $211,500 | $0 | $413,401 | $413,401 |
| 2011 | $203,831 | $235,000 | $0 | $438,831 | $438,831 |
| 2010 | $208,397 | $235,000 | $0 | $443,397 | $443,397 |
| 2009 | $216,721 | $282,000 | $0 | $498,721 | $498,721 |
| 2008 | $219,756 | $258,500 | $0 | $478,256 | $478,256 |
| 2007 | $211,904 | $122,200 | $0 | $334,104 | $334,104 |
Deed and Sales History
| 1 | 02/25/2019 | WD | Warranty Deed | GARBER, WILLIAM F | JORGENSON, TERESA LOU | | | $520,000.00 | 37748 | 4459910 |
|   | |
| 2 | 08/01/2006 | PRD | Personal Representatives Deed | Unknown | GARBER, WILLIAM F | | | $645,580.00 | 63613 | 4179575 |
| 3 | 11/01/1986 | WD | Warranty Deed | JOY, WILBUR & | ARMONT, EUGENE A | | | $22,695.00 | 63207 | 86014467 |
| 4 | 09/01/1978 | OTHER | Other - Misc. Documents | Unknown | JOY, WILBUR & | | | $13,500.00 | 84405 | 339420 |
Payout Agreement
| No payout information available.. |