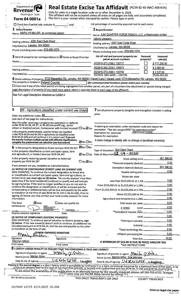
Property
Account |
| Property ID: | 630838 | Abbreviated Legal Description: | 1969 LAMPLIGHTER 12X52 VIN# 9930 TPO $22042 |
| Geographic ID: | M913000000460 | Agent Code: | |
| Type: | Mobile Home | | |
| Tax Area: | 300 - APPRAISER-Cpvl Schl Dist, in Cpvl | Land Use Code | 11 |
| Open Space: | N | DFL | N |
| Historic Property: | N | Remodel Property: | N |
| Multi-Family Redevelopment: | N | | |
| Township: | | Section: | |
| Range: | |
Location |
| Address: | 204 SW TERRY RD # 46 COUPEVILLE, WA 98239 | Mapsco: | |
| Neighborhood: | Cycle 2 | Map ID: | |
| Neighborhood CD: | 2 |
Owner |
| Name: | CAMARENA, LUIS | Owner ID: | 297026 |
| Mailing Address: | 204 SW TERRY RD TRLR 46 COUPEVILLE, WA 98239 | % Ownership: | 100.0000000000% |
| | | Exemptions: | |
Taxes and Assessment Details
Values
| (+) Improvement Homesite Value: | + | $0 | |
| (+) Improvement Non-Homesite Value: | + | $13,370 | |
| (+) Land Homesite Value: | + | $0 | |
| (+) Land Non-Homesite Value: | + | $0 | |
| (+) Curr Use (HS): | + | $0 | $0 |
| (+) Curr Use (NHS): | + | $0 | $0 |
| | | -------------------------- | |
| (=) Market Value: | = | $13,370 | |
| (–) Productivity Loss: | – | $0 | |
| | | -------------------------- | |
| (=) Subtotal: | = | $13,370 | |
| (+) Senior Appraised Value: | + | $0 | |
| (+) Non-Senior Appraised Value: | + | $13,370 | |
| | | -------------------------- | |
| (=) Total Appraised Value: | = | $13,370 | |
| (–) Senior Exemption Loss: | – | $0 | |
| (–) Exemption Loss: | – | $0 | |
| | | -------------------------- | |
| (=) Taxable Value: | = | $13,370 | |
Taxing Jurisdiction
| Owner: | CAMARENA, LUIS | | |
| % Ownership: | 100.0000000000% | | |
| Total Value: | $13,370 | | |
| Tax Area: | 300 - APPRAISER-Cpvl Schl Dist, in Cpvl |
| CF | Conservation Futures | 0.0316035091 | $13,370 | $13,370 | $0.42 | | |
| CEM2 | Cemetery #2 | 0.0095056933 | $13,370 | $13,370 | $0.13 | | |
| COUP | City: Town of Coupeville | 0.8426414490 | $13,370 | $13,370 | $11.27 | | |
| FIRE5 | Fire & Rescue Dist #5 C Whidbey GEN | 1.2008080668 | $13,370 | $13,370 | $16.05 | | |
| FIRE5BOND | Fire & Rescue Dist #5 C Whidbey BOND | 0.1400090713 | $13,370 | $13,370 | $1.87 | | |
| HOBOND | Hospital BOND | 0.1910887512 | $13,370 | $13,370 | $2.55 | | |
| HOGEN | Hospital GEN | 0.3902502903 | $13,370 | $13,370 | $5.22 | | |
| CE | County Current Expense | 0.3708482477 | $13,370 | $13,370 | $4.96 | | |
| ISLANDEMS | Hospital GEN (EMS) | 0.5000000000 | $13,370 | $13,370 | $6.69 | | |
| LIB | Library Sno-Isle GEN | 0.3153421757 | $13,370 | $13,370 | $4.22 | | |
| LIBCAP | Library Sno-Isle BOND (Cap Fac Imp Area) | 0.0543427938 | $13,370 | $13,370 | $0.73 | | |
| POCOUP | Port of Coupeville GEN | 0.1093371703 | $13,370 | $13,370 | $1.46 | | |
| POCOUPIDD | Port of Coupeville IDD | 0.3409740022 | $13,370 | $13,370 | $4.56 | | |
| COUPSDTECH | School 204 CP (TECH) | 0.7545480007 | $13,370 | $13,370 | $10.09 | | |
| SCH204MO | School 204 Enrichment | 0.6716186034 | $13,370 | $13,370 | $8.98 | | |
| ST | State School | 1.3035497053 | $13,370 | $13,370 | $17.43 | | |
| ST2 | State School Part 2 | 0.8169543533 | $13,370 | $13,370 | $10.92 | | |
| | Total Tax Rate: | 8.0434218834 | | | | | |
| | | | | Taxes w/Current Exemptions: | $107.55 | | |
| | | | | Taxes w/o Exemptions: | $107.55 | | |
Improvement / Building
| Improvement #1: | MANUFACTURED HOME | State Code: | Y | 528.0 sqft | Value: | $13,370 |
| Bathrooms: | 1 | Bedrooms: | 2 | | Ceiling: | PLASTER PAINTED | Cooling: | EVAP NO DUCT | | Exterior Wall/Cover: | VINYL | Floor Covering: | CARPET 100% | | Floor Structure: | SLAB ON GRADE | Foundation: | SLAB | | Heating: | FHA ELECTRIC | Interior Finish: | PLASTER | | Plumbing Fixture Cnt: | 1 | Roof Slope: | FLAT | | Roof Structure/Cover: | CJ ALUMINIUM HEAVY |   |   |
|
Sketch
| No sketches available for this property. |
Property Image
Land
No land segments exist for this property.
Roll Value History
| 2026 | N/A | N/A | N/A | N/A | N/A |
| 2025 | $13,370 | $0 | $0 | $13,370 | $13,370 |
| 2024 | $17,437 | $0 | $0 | $17,437 | $17,437 |
| 2023 | $7,262 | $0 | $0 | $7,262 | $7,262 |
| 2022 | $6,922 | $0 | $0 | $6,922 | $6,922 |
| 2021 | $6,320 | $0 | $0 | $6,320 | $6,320 |
| 2020 | $6,428 | $0 | $0 | $6,428 | $6,428 |
| 2019 | $5,294 | $0 | $0 | $5,294 | $5,294 |
| 2018 | $2,662 | $0 | $0 | $2,662 | $2,662 |
| 2017 | $2,773 | $0 | $0 | $2,773 | $2,773 |
| 2016 | $2,995 | $0 | $0 | $2,995 | $2,995 |
| 2015 | $3,106 | $0 | $0 | $3,106 | $3,106 |
| 2014 | $3,328 | $0 | $0 | $3,328 | $3,328 |
| 2013 | $3,439 | $0 | $0 | $3,439 | $3,439 |
| 2012 | $3,107 | $0 | $0 | $3,107 | $3,107 |
| 2011 | $4,165 | $0 | $0 | $4,165 | $4,165 |
| 2010 | $4,386 | $0 | $0 | $4,386 | $0 |
| 2009 | $4,605 | $0 | $0 | $4,605 | $0 |
| 2008 | $4,628 | $0 | $0 | $4,628 | $0 |
| 2007 | $4,647 | $0 | $0 | $4,647 | $0 |
Deed and Sales History
| 1 | 11/26/2020 | MANHOME | Manufactured Home | VASQUEZ, NORMA CELESTINO | CAMARENA, LUIS | | | $7,000.00 | 45969 | |
| 2 | 06/05/2019 | MANHOME | Manufactured Home | REYES, ADRIAN RAMIREZ | VASQUEZ, NORMA CELESTINO | | | $0.00 | 39422 | |
| 3 | 10/23/2014 | MANHOME | Manufactured Home | MCCARDLE, RYAN ALEXANDER | REYES, ADRIAN RAMIREZ | | | $2,000.00 | 17269 | |
| 4 | 03/05/2013 | OTHER | Other - Misc. Documents | MADIRIGAL, JESUS | MCCARDLE, RYAN ALEXANDER | | | $3,500.00 | 10554 | |
| 5 | 01/12/2011 | OTHER | Other - Misc. Documents | FALCON, RUTH | MADIRIGAL, JESUS | | | $3,500.00 | 3368 | |
| 6 | 01/12/1999 | OTHER | Other - Misc. Documents | OLELS, GEORGE W | FALCON, RUTH | | | $0.00 | 90141 | 0 |
| 7 | 03/01/1996 | OTHER | Other - Misc. Documents | BODIN, LEROY | OLELS, GEORGE W | | | $5,000.00 | 60761 | 0 |
| 8 | 06/01/1990 | OTHER | Other - Misc. Documents | EAGLE, HOMES | BODIN, LEROY | | | $2,500.00 | 3621000 | 0 |
| 9 | 01/01/1900 | OTHER | Other - Misc. Documents | Unknown | EAGLE, HOMES | | | $0.00 | 0 | 0 |
Payout Agreement
| No payout information available.. |