Property
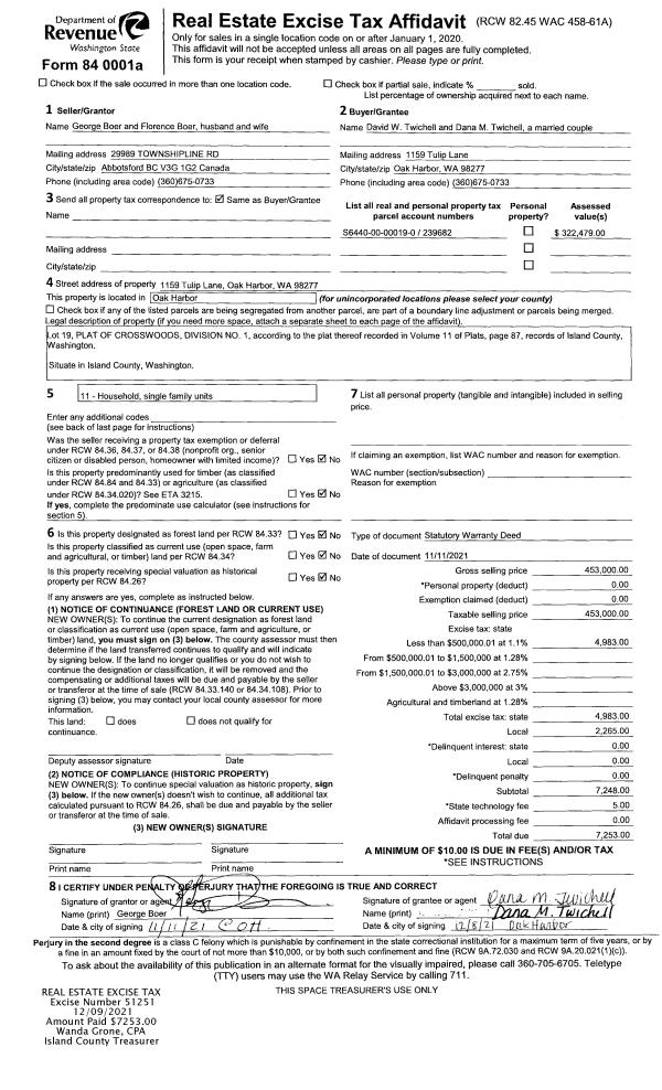
Account |
| Property ID: | 631070 | Abbreviated Legal Description: | IN SW & GL 3: BG SWCR SEC 16 N0*E517.70' S89*E510' N0*E1616.34' S46*E286.29' S0*W1938.64'TO SLN SD SUB DIV N89*W720'TPB EX MOORE RD & UTSALADY RD FR 120-0351 (HANGARS TAXI RUNWAYS) |
| Geographic ID: | R33216-025-0380 | Agent Code: | |
| Type: | Real | | |
| Tax Area: | 592 - APPRAISER-Stan/Cam Schl Dist, Special Dist, improved, greater than 1 acre | Land Use Code | 43 |
| Open Space: | N | DFL | N |
| Historic Property: | N | Remodel Property: | N |
| Multi-Family Redevelopment: | N | | |
| Township: | 32 | Section: | 16 |
| Range: | R3 |
Location |
| Address: | 1212 MOORE RD CAMANO ISLAND, WA 98282 | Mapsco: | |
| Neighborhood: | 51cRR-utsalady rd | Map ID: | 951 |
| Neighborhood CD: | 51cRRutsal |
Owner |
| Name: | KNOPP, STEVEN L | Owner ID: | 60755 |
| Mailing Address: | DBA P PONK AVIATION 1212 MOORE RD CAMANO ISLAND, WA 98282-8820 | % Ownership: | 100.0000000000% |
| | | Exemptions: | |
Taxes and Assessment Details
Values
| (+) Improvement Homesite Value: | + | $0 | |
| (+) Improvement Non-Homesite Value: | + | $593,758 | |
| (+) Land Homesite Value: | + | $0 | |
| (+) Land Non-Homesite Value: | + | $370,000 | |
| (+) Curr Use (HS): | + | $0 | $0 |
| (+) Curr Use (NHS): | + | $0 | $0 |
| | | -------------------------- | |
| (=) Market Value: | = | $963,758 | |
| (–) Productivity Loss: | – | $0 | |
| | | -------------------------- | |
| (=) Subtotal: | = | $963,758 | |
| (+) Senior Appraised Value: | + | $0 | |
| (+) Non-Senior Appraised Value: | + | $963,758 | |
| | | -------------------------- | |
| (=) Total Appraised Value: | = | $963,758 | |
| (–) Senior Exemption Loss: | – | $0 | |
| (–) Exemption Loss: | – | $0 | |
| | | -------------------------- | |
| (=) Taxable Value: | = | $963,758 | |
Taxing Jurisdiction
| Owner: | KNOPP, STEVEN L | | |
| % Ownership: | 100.0000000000% | | |
| Total Value: | $963,758 | | |
| Tax Area: | 592 - APPRAISER-Stan/Cam Schl Dist, Special Dist, improved, greater than 1 acre |
| CF | Conservation Futures | 0.0316035091 | $963,758 | $963,758 | $30.46 | | |
| EMS1 | Fire & Rescue Dist #1 Camano GEN (EMS) | 0.3677864386 | $963,758 | $963,758 | $354.46 | | |
| FIRE1 | Fire & Rescue Dist #1 Camano GEN | 1.2502910536 | $963,758 | $963,758 | $1,204.98 | | |
| FIRE1BOND | Fire & Rescue Dist #1 Camano BOND | 0.1570001679 | $963,758 | $963,758 | $151.31 | | |
| CE | County Current Expense | 0.3708482477 | $963,758 | $963,758 | $357.41 | | |
| CR | County Roads | 0.4584763726 | $963,758 | $963,758 | $441.86 | | |
| LCIB | Library Sno-Isle BOND (Camano Island) | 0.0396325772 | $963,758 | $963,758 | $38.20 | | |
| LIB | Library Sno-Isle GEN | 0.3153421757 | $963,758 | $963,758 | $303.91 | | |
| SCH205_401 | School 205-401 Enrichment | 1.2698420524 | $963,758 | $963,758 | $1,223.82 | | |
| SCH205BOND | School 205-401 BOND | 0.9396497583 | $963,758 | $963,758 | $905.59 | | |
| ST | State School | 1.3035497053 | $963,758 | $963,758 | $1,256.31 | | |
| ST2 | State School Part 2 | 0.8169543533 | $963,758 | $963,758 | $787.35 | | |
| | Total Tax Rate: | 7.3209764117 | | | | | |
| | | | | Taxes w/Current Exemptions: | $7,055.66 | | |
| | | | | Taxes w/o Exemptions: | $7,055.66 | | |
Improvement / Building
| Improvement #1: | RESIDENTIAL | State Code: | F1 | 1452.0 sqft | Value: | $274,496 |
| Bathrooms: | 1 | Bedrooms: | 3 | | Ceiling: | DRYWALL PAINTED | Exterior Wall/Cover: | WOOD SIDING | | Floor Covering: | CARPET/VINYL 80-20 | Floor Structure: | WOOD W/SUBFLOOR | | Foundation: | CONCRETE | Heating: | BASEBOARD ELECTRIC | | Interior Finish: | DRYWALL PAINT | Plumbing Fixture Cnt: | 8 | | Roof Slope: | 4" IN 12" | Roof Structure/Cover: | CJ ASPHALT |
|
| | Type | Description | Class CD | Sub Class CD | Year Built | Area |
| | BAS | BASE/MAIN FLOOR | 3 | 0 | 1965 | 1452.0 |
| | OCP | OPEN CARPORT | 3 | 0 | 1965 | 560.0 |
| | ENP | ENCLOSED PORCH | 3 | 0 | 1965 | 144.0 |
| | OWP | OPEN WOOD PORCH W/STEPS | 3 | 0 | 1965 | 136.0 |
| | DGR | DETACHED GARAGE | 3 | 0 | 1965 | 528.0 |
| Improvement #2: | COMMERCIAL | State Code: | F1 | 6600.0 sqft | Value: | $154,317 |
| Bathrooms: | 0 | Bedrooms: | 0 | | Ceiling: | PAINT OPEN FLOOR BAS | Exterior Wall/Cover: | STL/ALUM/SINGWL WD F | | Floor Covering: | CONCRETE SEALER | Floor Structure: | CONCRETE ON GROUND | | Foundation: | SLAB | Heating: | SPACE HEATERS | | Interior Finish: | OFFICE | Plumbing Fixture Cnt: | 1 | | Roof Structure/Cover: | METAL/OPEN WOOD |   |   |
|
| | Type | Description | Class CD | Sub Class CD | Year Built | Area |
| | BAS | BASE/MAIN FLOOR | 3 | 0 | 1950 | 238.0 |
| | STG | STORAGE | 3 | 0 | 1950 | 6362.0 |
| | CPD | OPEN CARPORT DIRT FLOOR | 3 | 0 | 1950 | 510.0 |
| | oPV1 | PV/ASPH 2" | 3 | 0 | 1950 | 60000.0 |
| Improvement #3: | COMMERCIAL | State Code: | F1 | 5640.0 sqft | Value: | $52,947 |
| Bathrooms: | 0 | Bedrooms: | 0 | | Ceiling: | PAINT OPEN FLOOR BAS | Exterior Wall/Cover: | STL/ALUM/SINGWL ST F | | Floor Covering: | CONCRETE SEALER | Floor Structure: | CONCRETE ON GROUND | | Foundation: | SLAB | Interior Finish: | AIRCRAFT HANGER STORAGE | | Plumbing Fixture Cnt: | 1 | Roof Structure/Cover: | METAL/OPEN STEEL |
|
| | Type | Description | Class CD | Sub Class CD | Year Built | Area |
| | BAS | BASE/MAIN FLOOR | 2 | 0 | 1958 | 5640.0 |
| | CPD | OPEN CARPORT DIRT FLOOR | 2 | 0 | 1958 | 560.0 |
| Improvement #4: | COMMERCIAL | State Code: | F1 | 5200.0 sqft | Value: | $111,998 |
| Bathrooms: | 0 | Bedrooms: | 0 | | Ceiling: | PAINT OPEN FLOOR BAS | Exterior Wall/Cover: | STL/ALUM/SINGWL ST F | | Floor Covering: | CONCRETE SEALER | Floor Structure: | CONCRETE ON GROUND | | Foundation: | SLAB | Interior Finish: | AIRCRAFT HANGER STORAGE | | Plumbing Fixture Cnt: | 1 | Roof Structure/Cover: | METAL/OPEN STEEL |
|
Sketch
Property Image
Land
| 1 | 35 | AC (10.00-30.99) | 15.0000 | 653400.00 | 0.00 | 0.00 | 1.00 | $370,000 | $0 |
Roll Value History
| 2026 | N/A | N/A | N/A | N/A | N/A |
| 2025 | $593,758 | $370,000 | $0 | $963,758 | $963,758 |
| 2024 | $609,006 | $300,000 | $0 | $909,006 | $909,006 |
| 2023 | $618,129 | $300,000 | $0 | $918,129 | $918,129 |
| 2022 | $515,244 | $270,000 | $0 | $785,244 | $785,244 |
| 2021 | $442,247 | $250,000 | $0 | $692,247 | $692,247 |
| 2020 | $435,108 | $250,000 | $0 | $685,108 | $685,108 |
| 2019 | $354,915 | $270,000 | $0 | $624,915 | $624,915 |
| 2018 | $355,368 | $375,000 | $0 | $730,368 | $730,368 |
| 2017 | $356,275 | $521,455 | $0 | $877,730 | $877,730 |
| 2016 | $359,886 | $521,455 | $0 | $881,341 | $881,341 |
| 2015 | $213,854 | $531,457 | $0 | $745,311 | $745,311 |
| 2014 | $213,854 | $531,457 | $0 | $745,311 | $745,311 |
| 2013 | $213,854 | $531,457 | $0 | $745,311 | $745,311 |
| 2012 | $213,854 | $531,457 | $0 | $745,311 | $745,311 |
| 2011 | $213,854 | $531,457 | $0 | $745,311 | $745,311 |
| 2010 | $223,034 | $531,457 | $0 | $754,491 | $754,491 |
| 2009 | $231,563 | $531,457 | $0 | $763,020 | $763,020 |
| 2008 | $234,978 | $540,273 | $0 | $775,251 | $775,251 |
| 2007 | $258,053 | $523,927 | $0 | $781,980 | $781,980 |
Deed and Sales History
| 1 | 08/01/1988 | WD | Warranty Deed | REINIG, MAX L | KNOPP, STEVEN L | | | $205,000.00 | 82610 | 88009857 |
| 2 | 04/01/1980 | TRUSTEED | Trustee's Deed | Unknown | REINIG, MAX L | | | $305,000.00 | 2114 | 370332 |
Payout Agreement
| No payout information available.. |