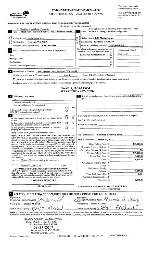
Property
Account |
| Property ID: | 631105 | Abbreviated Legal Description: | 5.2000 Acres ins Section 08s Township 32s Range R1s LOT B BLA 372-16 LOT 1 SP 88-01.13208.347-4300;s |
| Geographic ID: | R13208-379-4950 | Agent Code: | |
| Type: | Real | | |
| Tax Area: | 112 - APPRAISER-OH Schl Dist, outside OH, improved, greater than 1 acre | Land Use Code | 11 |
| Open Space: | N | DFL | N |
| Historic Property: | N | Remodel Property: | N |
| Multi-Family Redevelopment: | N | | |
| Township: | 32 | Section: | 08 |
| Range: | R1 |
Location |
| Address: | 1620 CARLTON WAY OAK HARBOR, WA 98277 | Mapsco: | |
| Neighborhood: | Cycle 1 | Map ID: | 111 |
| Neighborhood CD: | 1 |
Owner |
| Name: | BOOTHE, CALVIN D | Owner ID: | 278789 |
| Mailing Address: | NICOLE S BOOTHE PO BOX 1003 707 NE LINDSEY ST COUPEVILLE, WA 98239 | % Ownership: | 100.0000000000% |
| | | Exemptions: | |
Taxes and Assessment Details
Values
| (+) Improvement Homesite Value: | + | $0 | |
| (+) Improvement Non-Homesite Value: | + | $693,488 | |
| (+) Land Homesite Value: | + | $0 | |
| (+) Land Non-Homesite Value: | + | $290,000 | |
| (+) Curr Use (HS): | + | $0 | $0 |
| (+) Curr Use (NHS): | + | $0 | $0 |
| | | -------------------------- | |
| (=) Market Value: | = | $983,488 | |
| (–) Productivity Loss: | – | $0 | |
| | | -------------------------- | |
| (=) Subtotal: | = | $983,488 | |
| (+) Senior Appraised Value: | + | $0 | |
| (+) Non-Senior Appraised Value: | + | $983,488 | |
| | | -------------------------- | |
| (=) Total Appraised Value: | = | $983,488 | |
| (–) Senior Exemption Loss: | – | $0 | |
| (–) Exemption Loss: | – | $0 | |
| | | -------------------------- | |
| (=) Taxable Value: | = | $983,488 | |
Taxing Jurisdiction
| Owner: | BOOTHE, CALVIN D | | |
| % Ownership: | 100.0000000000% | | |
| Total Value: | $983,488 | | |
| Tax Area: | 112 - APPRAISER-OH Schl Dist, outside OH, improved, greater than 1 acre |
| CF | Conservation Futures | 0.0316035091 | $983,488 | $983,488 | $31.08 | | |
| CEM1 | Cemetery #1 | 0.0040320932 | $983,488 | $983,488 | $3.97 | | |
| FIRE2 | Fire & Rescue Dist #2 N Whidbey GEN | 0.5475949600 | $983,488 | $983,488 | $538.55 | | |
| HOBOND | Hospital BOND | 0.1910887512 | $983,488 | $983,488 | $187.93 | | |
| HOGEN | Hospital GEN | 0.3902502903 | $983,488 | $983,488 | $383.81 | | |
| CE | County Current Expense | 0.3708482477 | $983,488 | $983,488 | $364.72 | | |
| CR | County Roads | 0.4584763726 | $983,488 | $983,488 | $450.91 | | |
| ISLANDEMS | Hospital GEN (EMS) | 0.5000000000 | $983,488 | $983,488 | $491.74 | | |
| LIB | Library Sno-Isle GEN | 0.3153421757 | $983,488 | $983,488 | $310.14 | | |
| NWHIDPRMT | P & R N Whidbey GEN | 0.2004466701 | $983,488 | $983,488 | $197.14 | | |
| SCH201MO | School 201 Enrichment | 1.8559231640 | $983,488 | $983,488 | $1,825.28 | | |
| ST | State School | 1.3035497053 | $983,488 | $983,488 | $1,282.03 | | |
| ST2 | State School Part 2 | 0.8169543533 | $983,488 | $983,488 | $803.46 | | |
| | Total Tax Rate: | 6.9861102925 | | | | | |
| | | | | Taxes w/Current Exemptions: | $6,870.76 | | |
| | | | | Taxes w/o Exemptions: | $6,870.76 | | |
Improvement / Building
| Improvement #1: | RESIDENTIAL | State Code: | Y | 3138.9 sqft | Value: | $693,488 |
| Bathrooms: | 2.5 | Bedrooms: | 3 | | Ceiling: | DRYWALL PAINTED | Exterior Wall/Cover: | WOOD SIDING | | Floor Covering: | HARDWOOD/CARP 80-20 | Floor Structure: | WOOD W/SUBFLOOR | | Foundation: | CONCRETE | Heating: | FHA ELECTRIC | | Interior Finish: | DRYWALL PAINT | Plumbing Fixture Cnt: | 12 | | Roof Slope: | 6" IN 12" | Roof Structure/Cover: | CJ ASPHALT |
|
| | Type | Description | Class CD | Sub Class CD | Year Built | Area |
| | BAS | BASE/MAIN FLOOR | 4 | 0 | 1988 | 2314.9 |
| | AGR | ATTACHED GARAGE | 4 | 0 | 1988 | 672.0 |
| | ENP | ENCLOSED PORCH | 4 | 0 | 1988 | 140.0 |
| | UPS | UPPER STORY | 4 | 0 | 1988 | 704.0 |
| | OWP | OPEN WOOD PORCH W/STEPS | 4 | 0 | 1988 | 740.1 |
| | ENP | ENCLOSED PORCH | 4 | 0 | 1988 | 187.0 |
| | LOF | LOFT | 4 | 0 | 1988 | 120.0 |
| | DGR | DETACHED GARAGE | 4 | 0 | 1988 | 1188.0 |
| | UTY | STORAGE/UTILITY | 4 | 0 | 1988 | 168.0 |
| | UTY | STORAGE/UTILITY | 4 | 0 | 1988 | 672.0 |
Sketch
Property Image
Land
| 1 | 32 | AC (03.01-09.99) | 5.2003 | 226525.07 | 0.00 | 0.00 | 1.00 | $290,000 | $0 |
Roll Value History
| 2026 | N/A | N/A | N/A | N/A | N/A |
| 2025 | $693,488 | $290,000 | $0 | $983,488 | $983,488 |
| 2024 | $702,024 | $260,000 | $0 | $962,024 | $962,024 |
| 2023 | $627,797 | $250,000 | $0 | $877,797 | $877,797 |
| 2022 | $575,465 | $220,000 | $0 | $795,465 | $795,465 |
| 2021 | $506,496 | $190,000 | $0 | $696,496 | $696,496 |
| 2020 | $494,833 | $140,000 | $0 | $634,833 | $634,833 |
| 2019 | $390,763 | $200,000 | $0 | $590,763 | $590,763 |
| 2018 | $391,908 | $170,000 | $0 | $561,908 | $561,908 |
| 2017 | $368,060 | $160,000 | $0 | $528,060 | $528,060 |
| 2016 | $305,295 | $160,000 | $0 | $465,295 | $465,295 |
| 2015 | $309,209 | $135,000 | $0 | $444,209 | $444,209 |
| 2014 | $313,122 | $135,000 | $0 | $448,122 | $448,122 |
| 2013 | $317,037 | $126,225 | $0 | $443,262 | $443,262 |
| 2012 | $320,950 | $126,225 | $0 | $447,175 | $447,175 |
| 2011 | $319,164 | $140,250 | $0 | $459,414 | $459,414 |
| 2010 | $295,467 | $140,250 | $0 | $435,717 | $435,717 |
| 2009 | $308,209 | $191,250 | $0 | $499,459 | $499,459 |
| 2008 | $320,574 | $191,250 | $0 | $511,824 | $511,824 |
| 2007 | $325,804 | $191,250 | $0 | $517,054 | $517,054 |
Deed and Sales History
| 1 | 01/23/2017 | WD | Warranty Deed | BOOTHE, CALVIN D | BOOTHE, CALVIN D | | | $0.00 | 28090 | 4417190 |
| 2 | 01/23/2017 | WD | Warranty Deed | KRIEG, SHELLI L & DONALD J | BOOTHE, CALVIN D | | | $750,000.00 | 27910 | 4416169 |
|   | |
| 3 | 01/01/1900 | OTHER | Other - Misc. Documents | Unknown | KRIEG, SHELLI L | | | $0.00 | 74081 | 87017712 |
Payout Agreement
| No payout information available.. |